
With most duplex houses, a cost savings effect is expected by making the shape of the houses the same. As the shape is similar to the size and shape of the lot for sale, this method has advantages in terms of efficient construction. However, when planning two identical detached houses on a site, they are often placed side by side in the form of an 11. In this case, considering the distance from the parking space in front and the boundary of adjacent lands, the space that can be called a yard disappears. As the entrances are located on either side, the living room is often placed towards the front road and the kitchen is placed towards the back. This forces the curtains or blinds in the living room that is open toward the roadside to be closed most of the time due to the gazes of passersby. In this 11-shaped arrangement, the standard for placement is based on the front road rather than natural light, so in a way, the housing plan focuses more on business feasibility than living convenience. The Unyang-dong house had to increase construction efficiency, but also prioritize an arrangement for living convenience as well as business feasibility.
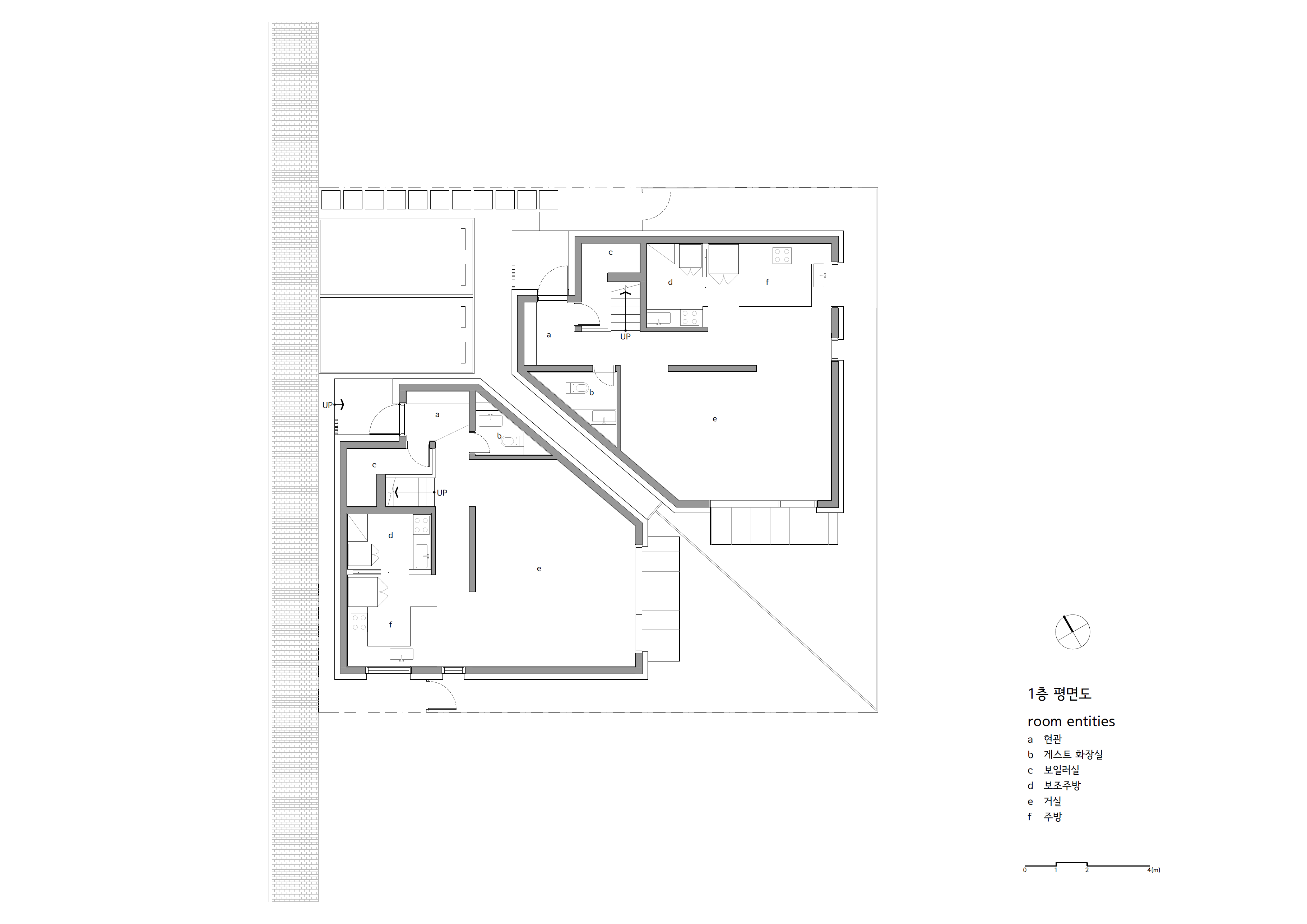
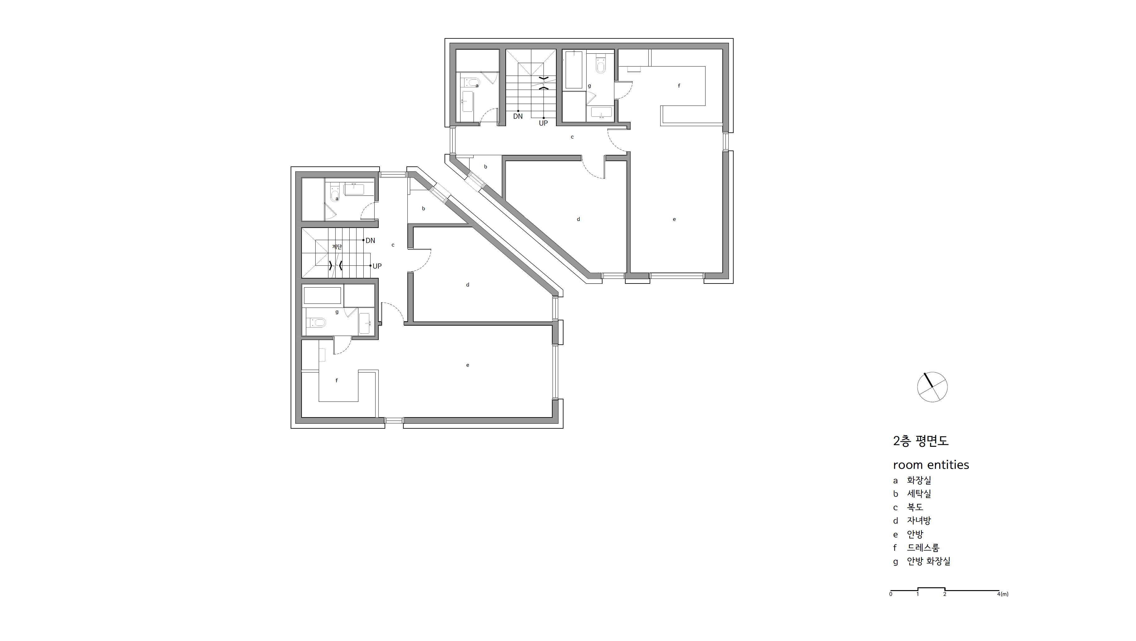
Since the site faces a neighborhood stores across the front road and is adjacent to a parking lot, it was essential to plan the building layout due to its site conditions. Rather than the usual 11-shaped arrangement, one of the buildings was turned to form an L-shaped arrangement. It was designed to allow the parking space to be created in one corner and a backyard in the other corner. The two buildings were separated by distancing the outer walls and were planned to be mirrored along the axis that lies in between. Construction efficiency was improved by unifying the sizes of sub-spaces such as the kitchen, supplementary kitchen, dressing room, and stairs. In consideration of natural light, the living room, master bedroom, and children’s room were opened towards the south, and the terrace was also planned to face the south. The height of the parapet is 1.6m, blocking the view from nearby low-rise apartments or houses, considering privacy when using the terrace.
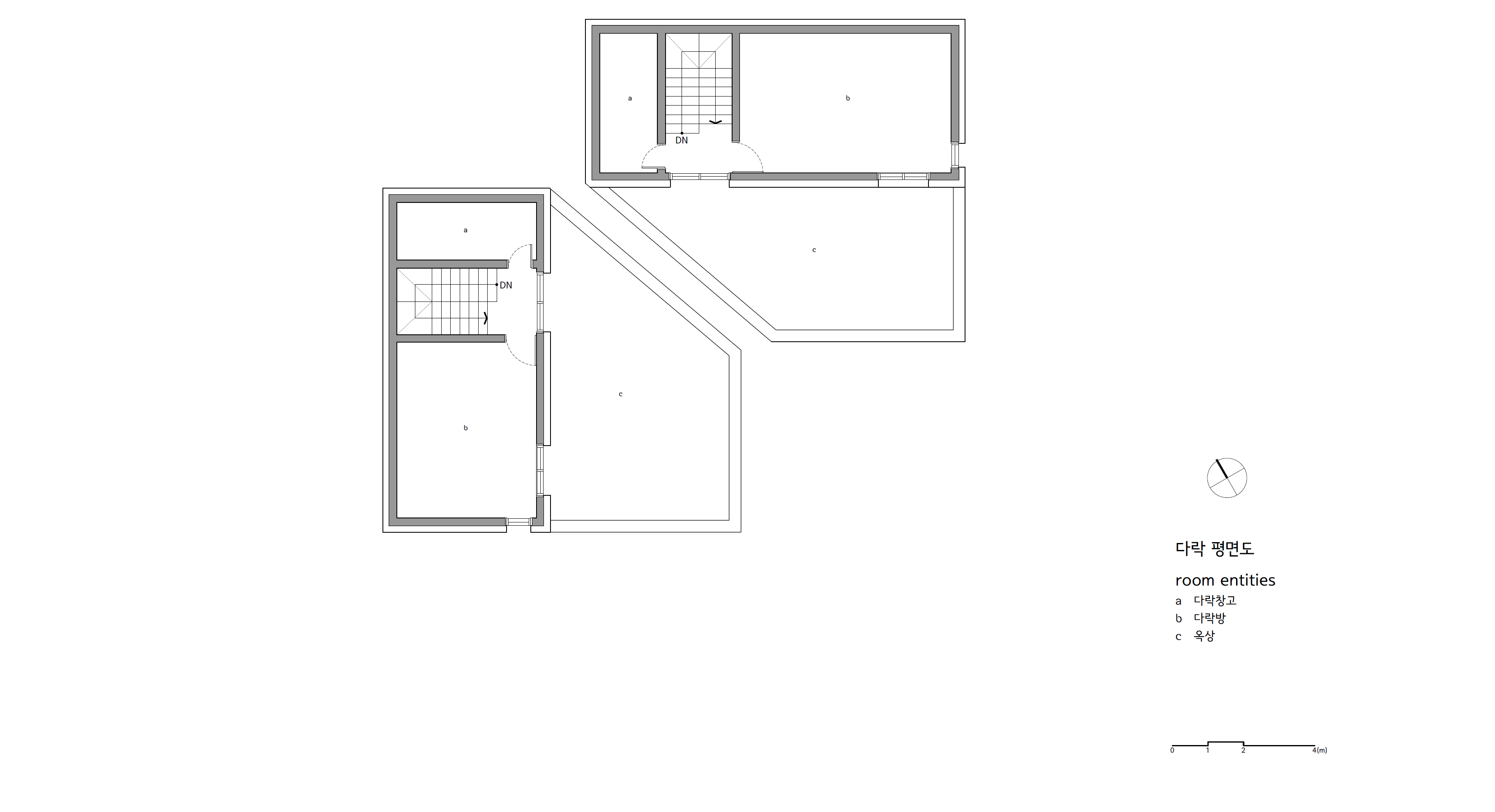
As for the floor plan, all rooms were connected by placing a corridor in the middle, but on one side, the sub-spaces such as the bathrooms, kitchen, and supplementary kitchen were placed, and on the other side, the living room, master bedroom, and children’s bedroom were arranged to allow them to have better natural lighting. In the attic space, the height of the ceiling was raised in the part where the circulation leads, and cabinet furniture was planned on the other side considering space utilization. The rooftop terrace was designed in a spacious way to enhance the usability of exterior space.

대부분 땅콩주택(듀플렉스 하우스)은 벽을 공유하는 똑같은 형태로 공사비 절감 등의 효과를 기대한다. 대지 안에 2동의 똑같은 단독주택을 계획하다 보면 11자 형태로 나란히 배치되는 경우가 많고, 이 경우 전면의 충분한 주차공간을 마련하고 인접 대지 경계에서 이격하여 주택을 배치하다 보면 마당이라고 할 수 있는 공간이 없다. 주택의 진입구가 양 측면에 위치하며, 거실이 전면 도로 방향으로, 주방이 후면으로 배치되는 경우가 많았다. 도로변으로 열린 거실은 행인들의 시선 때문에 집 안에서의 대부분 시간을 커튼이나 블라인드를 치고 살게 한다. 운양동 주택은 시공효율성은 높이되, 생활을 위한 배치가 중점이 되어야 했다.
대지는 전면도로를 마주하여 상가가 있고, 주차장 용지를 인접하고 있어 ‘운양동 같은 집 다른 집’은 하나의 동을 틀어 ㄱ자형으로 배치됐다. 2개 동은 외벽을 분리했고, 그 중심의 축으로 하여 상반된 평면을 가지도록 계획했다. 주방, 보조 주방, 드레스룸, 계단 등 보조공간의 크기를 통일시켜 시공 효율성을 높였다. 자연광을 고려하여 거실과 안방, 자녀 방의 향을 남쪽으로 개방하고, 테라스 역시 남향을 위치하도록 계획했다. 파라펫 높이는 1.6m로 인근의 저층형 아파트나 주택으로부터 시야를 차단하여 옥상 테라스를 이용하는데 불편함이 없다. 한쪽 코너에는 주차장이, 반대편 코너에는 뒷마당이 있다.
집 내부로 들어서면 복도를 중간으로 한쪽은 화장실, 주방, 보조 주방 등의 서브 공간이 있으며, 반대편은 거실, 안방, 자녀 방이 나타난다. 옥상 테라스를 넓게 계획하여 외부공간의 활용성을 제고했다.















Architects TEN-X A&D
Location Gimpo-si, Gyeonggi-do, Republic of Korea
Site area 303.5㎡
Building area 150.0㎡
Gross floor area 241.37㎡
Building to land ratio 49.42%
Floor area ratio 79.53%
Construction period 2020. 10 - 2021. 04
Completion 2021. 04
Principal architect Changwoo Ahn
Project architect Changwoo Ahn
Design team Jieyoung Lee
Structural engineer Taekyung SE
Mechanical engineer Suyang Engineering
Electrical engineer Suyang Engineering
Construction DOODAA E&C
Photographer Sooyoung Choi
해당 프로젝트는 리빙즈, 디테일 04호에 게재되었습니다.
The project was published in LIVINGS, Detail 04
[BOOK] LIVINGS, Detail 리빙즈, 디테일 03호, 04호
<LIVINGS, Detail 리빙즈, 디테일 03호, 04호> 72개의 형태와 라이프스타일을 담은 주거공간, 국내외 “디테일한 주택 프로젝트”의 엮음 매월 국내외 다양한 건축물들을 소개해 온 <월간 건축문화>가 <
www.masilwide.com
'Architecture Project > Single Family' 카테고리의 다른 글
| KELK HOUSE (0) | 2022.06.20 |
|---|---|
| HADOHILLJO TOWNHOUSE (0) | 2022.06.20 |
| YAH (Yen-A-Kart House) (0) | 2022.06.13 |
| CONCRETE HOUSE (0) | 2022.06.08 |
| INSIDE THE CLOUD (0) | 2022.06.07 |
마실와이드 | 등록번호 : 서울, 아03630 | 등록일자 : 2015년 03월 11일 | 마실와이드 | 발행ㆍ편집인 : 김명규 | 청소년보호책임자 : 최지희 | 발행소 : 서울시 마포구 월드컵로8길 45-8 1층 | 발행일자 : 매일



