
The clients of Kelk House are a couple with two children who were in Germany on an extended business trip. There, they stayed in a house with a large grassy yard and stairs, and say they didn’t experience any big difficulties even during their time of COVID-19 quarantine. Although their son claims that “It’s not a house if you can’t play soccer in it,” ‘Kelk House’ is a living space with a very special staircase and space inside, unlike what it seems on the outside.
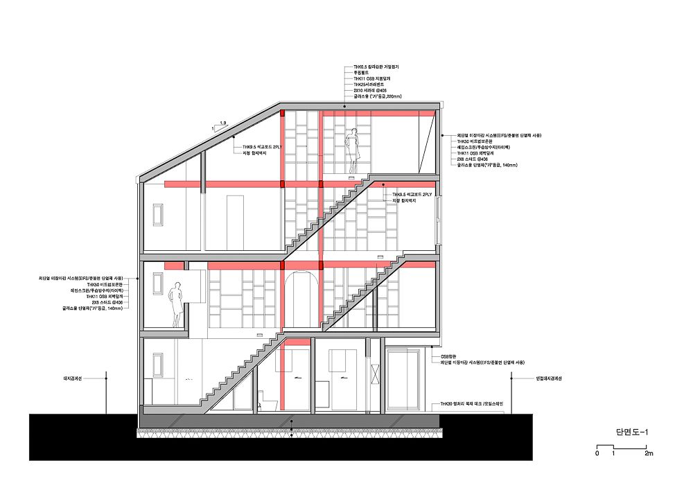
Kelk house is built with a wooden structure. Built on a narrow triangular-shaped site in Jung-gu, Seoul, the house is surrounded by houses on all sides, with no place to look, like any other small house. In the center of a city, connected with narrow alleyways, construction speed is critical. The construction period was shortened by using a factory-produced heavy timber structure for the entire structure, and with wood structure it’s possible to make the walls thin, which is also effective for space utilization. In order to secure one parking space necessary in a house construction, the end of the building is treated with a column-less cantilever, which creates a distinct feature of economical spatial use. In a wooden structure, this cantilever structure causes sagging and the building becomes prone to deformation in the long term. To prevent this, the structure was reinforced using engineered wood with structural calculations.
Due to the close proximity with the surrounding buildings, a natural characteristic of narrow houses in the city, small but functional windows were appropriately placed instead of large ones to create little interference with neighboring houses. Upon entering the house through a dark entrance hall with a small window on the first floor, the first thing that comes into view is the long staircase from the second door to the third floor and the ‘family bookshelf that runs along the stairs. This ‘family bookshelf’ is used not only for books, but has additional roles such as a desk, closet, and display cupboard. It also serves to separate the stairs from each space. As you move up along the stairs, you can appreciate the transition in the space that changes and expands on each floor.
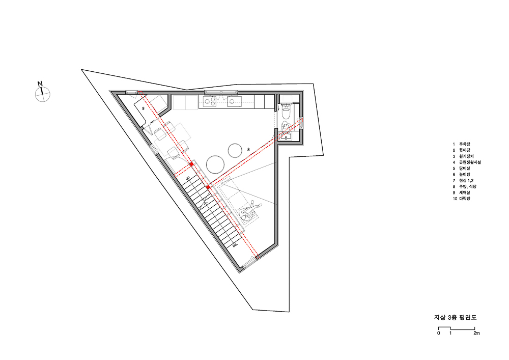
On the longest side of the triangular-shaped plane, a staircase leading from the entrance to the third floor was placed. The first floor is a space where they can interact with local residents and is connected from the window of the parking lot to the small deck space on the south side. The second floor, which is the first space you encounter when you go up the stairs, is centered on the ‘study room’, with a room for the son and daughter arranged on the left and right, and the bathroom space placed between them. The round door and space in the children’s space were borrowed from the image of the house in Germany where the client stayed.
Continue up the stairs and you are on the third floor, where there is a living room and kitchen for the whole family. This is the largest and highest space of ‘Kelk House’, and you can feel the abundance of light and openness through two skylights and pentagonal windows. The light falling from the skylight is extended to the study room on the second floor through the circular floor window. Up the stairs from the kitchen is the attic area. A protruding skylight was designed to overcome the low floor height. This space is used as the couple’s bedroom.

가족들만의 서가를 가진 도심 속 목조 협소주택, 신당동 단독주택 '켈크하우스'
‘켈크하우스’의 건축주는 독일로 장기간의 출장을 떠나 있던 두 자녀를 둔 부부로, 독일에서 잔디가 덮인 너른 마당과 계단이 있는 집에서 코로나로 인한 격리 생활에도 큰 어려움을 모르고 지냈다고 한다. 그들의 아들은 “축구를 할 수 없는 것은 집이 아니다.”라고 했지만 ‘켈크하우스’는 겉보기와는 다르게 내부에 아주 특별한 계단과 공간을 갖춘 주거공간이다.
켈크하우스의 구조는 중목구조이다. 서울 중구의 협소한 삼각형 대지 위에 지어진 집은 여느 협소 주택처럼 정면을 볼만한 곳이 딱히 없는, 사방이 집으로 둘러싸여 있다. 좁은 골목길로 이어진 도심에서는 무엇보다 빠르게 집을 짓는 것이 중요하다. 전체 구조를 공장 생산된 중목구조를 사용하여 공기를 단축했고, 목구조는 벽체를 얇게 만들 수 있는 효과가 있어 공간 활용에도 효과적이다. 주택에서 필요한 주차 1대를 확보하기 위해 건물의 끝 부분을 기둥이 없는 캔틸레버로 처리하여 공간을 알뜰하게 사용한 것도 특징이다. 목구조에서는 이런 캔틸레버구조는 처짐을 발생시켜 장기적으로 건물이 변형되기 쉬운데 이를 방지하기 위해 구조계산된 공학 목재를 이용하여 구조적 처짐을 잡아냈다.
도심 협소 주택의 특징인 주변 건물과 밀착된 배치 때문에 불편해진 큰 창 대신 기능적인 작은 창들을 적절히 배치하여 주변 집들과의 간섭이 거의 없는 상태를 만들었다. 창이 작은 어두운 1층의 현관을 지나 주택에 들어서면 중문에서 3층까지 연결되는 기다란 계단과 계단을 따라 이어지는 ‘가족서가家族書架’가 가장 먼저 보인다. ‘가족서가家族書架’는 책을 위한 역할 뿐 아니라 책상, 옷장, 장식장 등 여러 용도로 쓰이는데 계단과 각각의 공간을 분리해주는 역할도 하고 있다. 계단을 따라 위층으로 이동하면서 층마다 바뀌고 확장되는 공간의 변화를 감상할 수 있다.
삼각형 모양의 평면에서 가장 긴 변에는 현관으로부터 3층까지 연결된 계단을 배치됐다. 1층은 지역주민과 교류할 수 있는 공간으로 주차장의 통창으로부터 남쪽의 작은 데크 공간까지 연결된다. 계단을 한 층 올라와 처음 만나는 2층은 ‘공부방’을 중심으로 아들과 딸을 위한 각각의 방을 좌우로 배치하고 욕실 공간을 그 사이에 배치했다. 2층 아이들 공간에서 보이는 둥근 형태의 문과 공간은 건축주가 머물던 독일 주택의 이미지에서 차용했다.
다시 계단을 오르면 3층이다. 3층은 가족 전체를 위한 공간인 거실과 주방이 있다. 이 곳은 ‘켈크하우스’의 가장 넓고 높은 공간으로 두 개의 천창과 오각형 창을 통해 풍부한 광량과 개방감을 느낄 수 있다. 천창으로부터 떨어지는 빛은 원형의 바닥 창을 통해 2층의 공부방까지 확대된다. 주방에서 계단을 오르면 다락 공간이 있다. 다락은 낮은 층고를 극복하기 위해 돌출된 천창을 만들었다. 이 공간은 부부침실로 쓰인다.





























Architects admobe architect │ (주)에이디모베 건축사사무소
Location Dowha-dong, Jung-gu, Seoul, Republic of Korea
Program Single family house, Commercial
Site area 80.07㎡
Building area 45.24㎡
Gross floor area 119.92㎡
Building scope 3F
Building to land ratio 56.50%
Floor area ratio 148.76%
Design period 2020. 1 - 9
Construction period 2021. 3 - 9
Completion 2021. 9
Principal architect Jaehyuk Yi
Project architect Jaehyuk Yi
Design team Jaehyuk Yi, Donghyun Lim, Siyeoul Somg, Hyunbo Kang
Structural engineer HUB structure eng.
Mechanical engineer U-young eng.
Electrical engineer Geosan Eng.
Construction Supia
Client Jinhyuk Choi, Yeonju Park
Photographer Changmook Kim
해당 프로젝트는 건축문화 2022년 4월호(Vol. 491)에 게재되었습니다.
The project was published in the April, 2022 recent projects of the magazine(Vol. 491).
April 2022 : vol. 491
Contents : RECORDS DIÉBÉDO FRANCIS KÉRÉ, WINNER OF THE 2022 PRITZKER ARCHITECTURE PRIZE 2022년 프리츠커 건축상 수상자, 디에베도 프란시스 케레 : NEWS / COMPETITION / BOOKS : SKET..
anc.masilwide.com
'Architecture Project > Single Family' 카테고리의 다른 글
| CASA PR (0) | 2022.06.23 |
|---|---|
| BREJOS DA CARREGUEIRA HOUSE (0) | 2022.06.21 |
| HADOHILLJO TOWNHOUSE (0) | 2022.06.20 |
| SAME & DIFFERENT (0) | 2022.06.13 |
| YAH (Yen-A-Kart House) (0) | 2022.06.13 |
마실와이드 | 등록번호 : 서울, 아03630 | 등록일자 : 2015년 03월 11일 | 마실와이드 | 발행ㆍ편집인 : 김명규 | 청소년보호책임자 : 최지희 | 발행소 : 서울시 마포구 월드컵로8길 45-8 1층 | 발행일자 : 매일



