
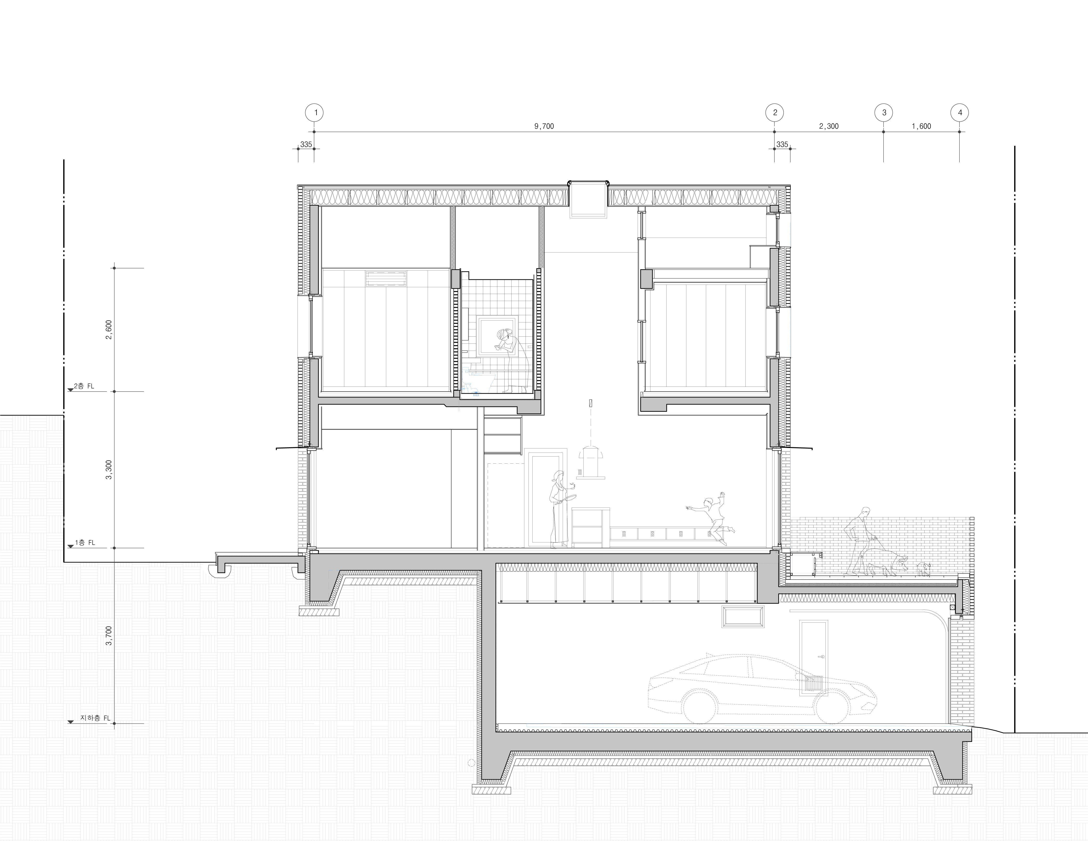
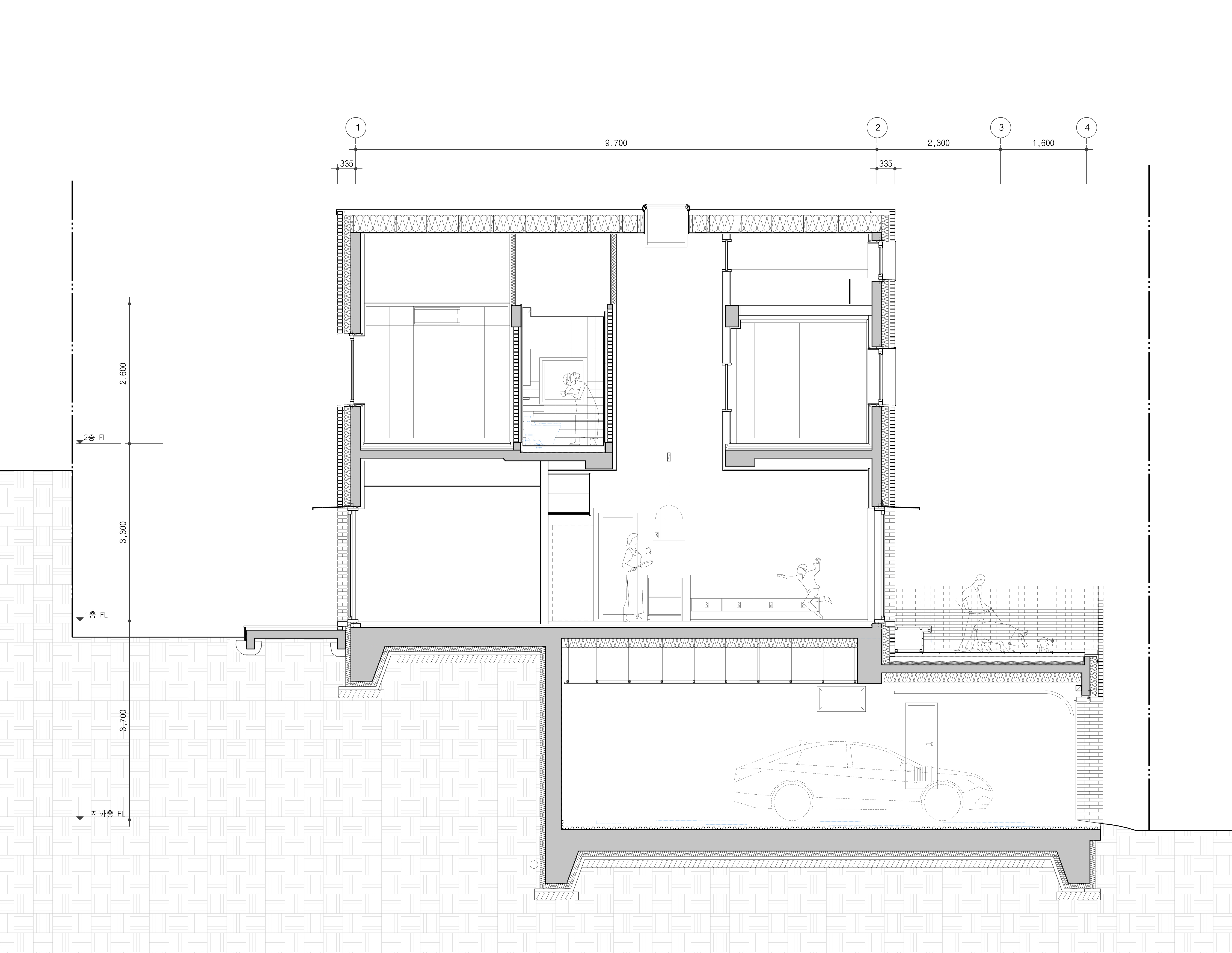
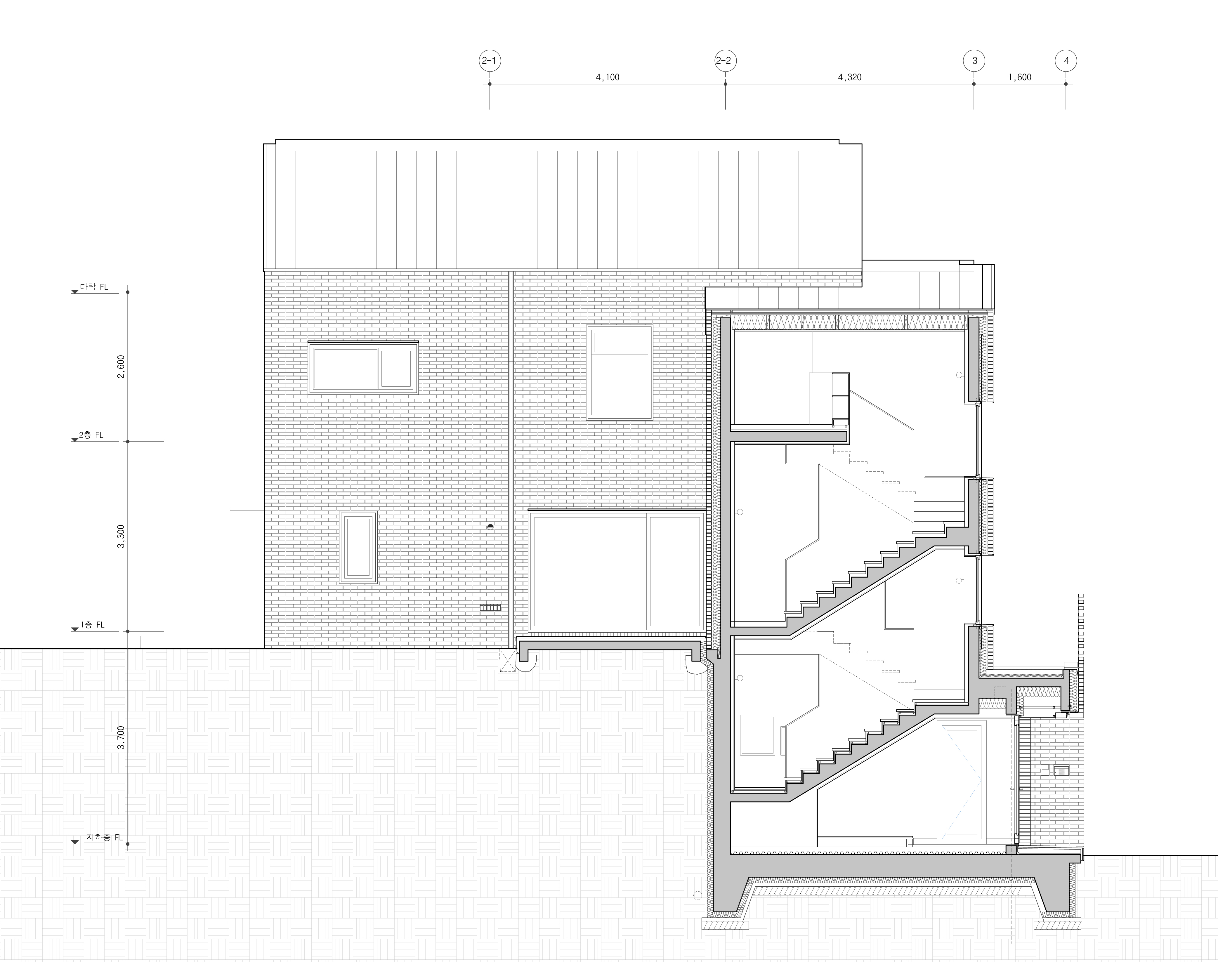
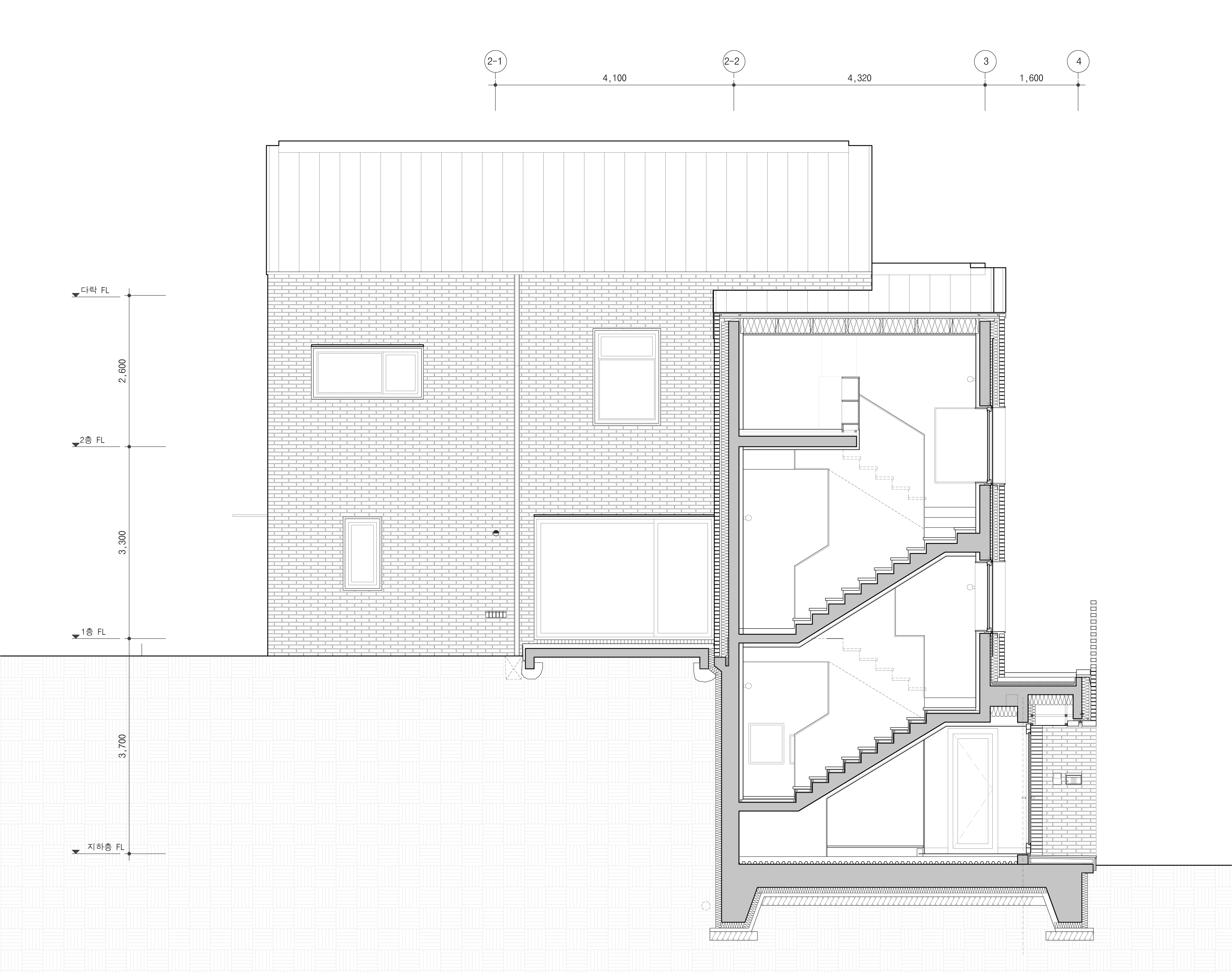
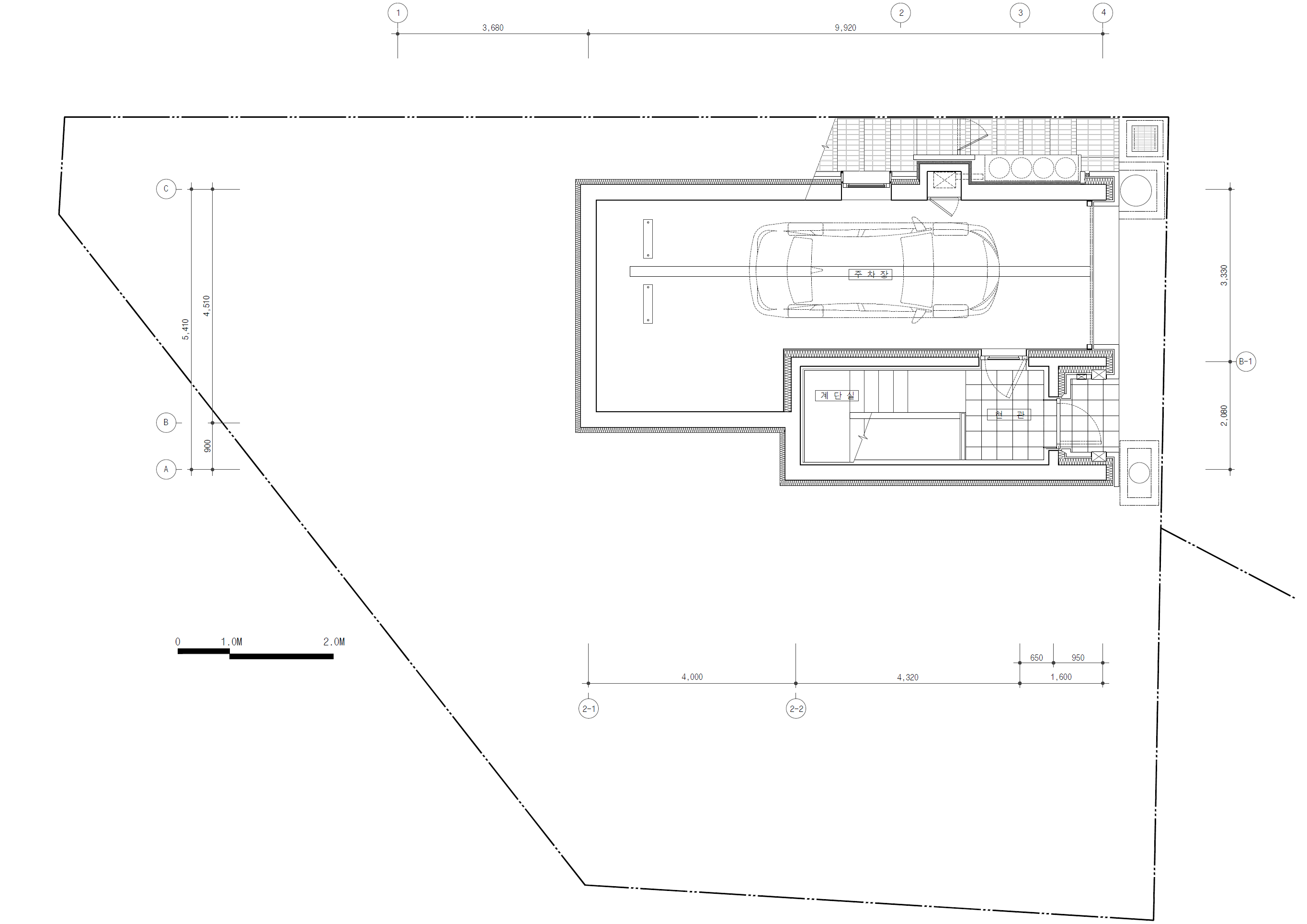
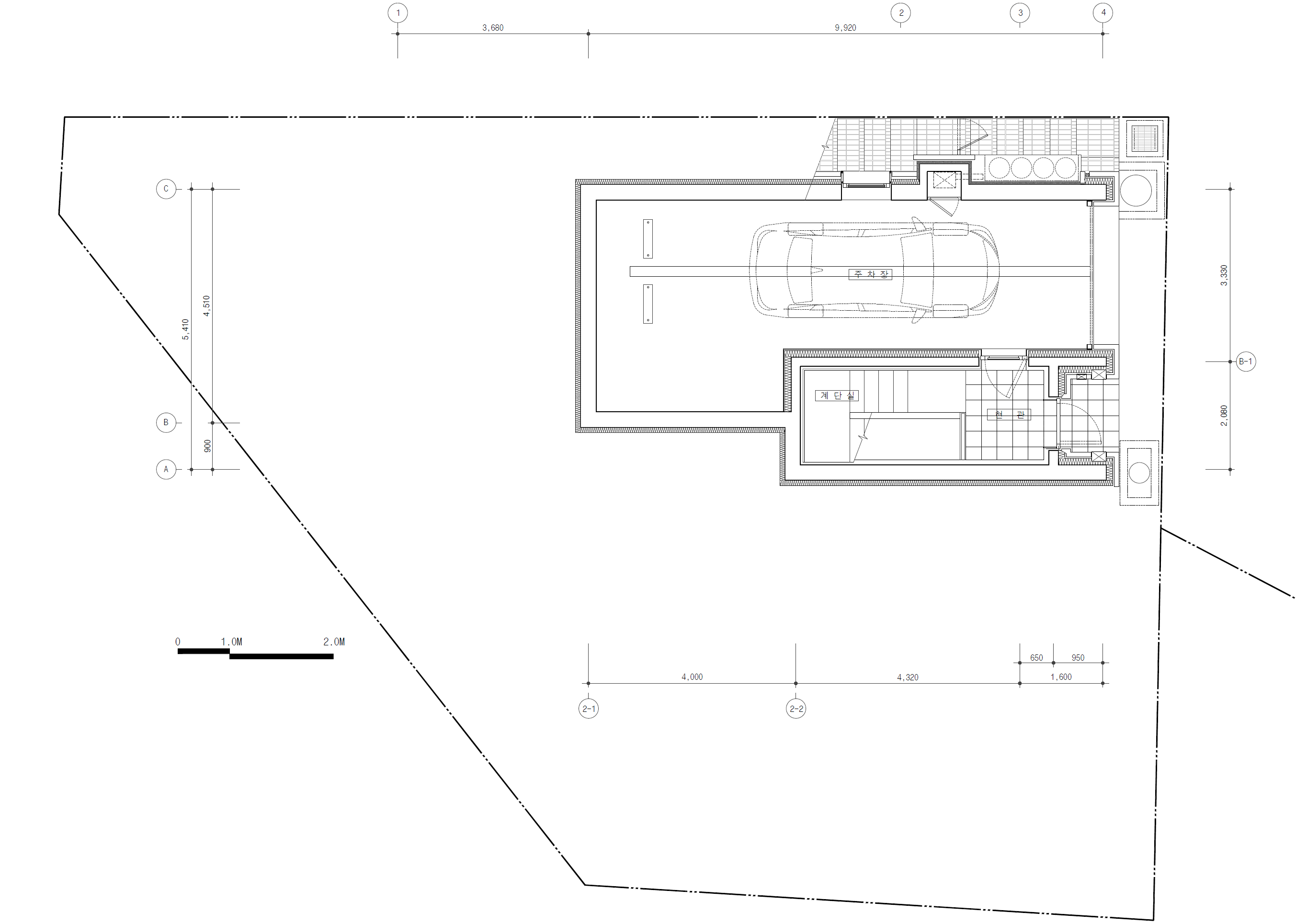
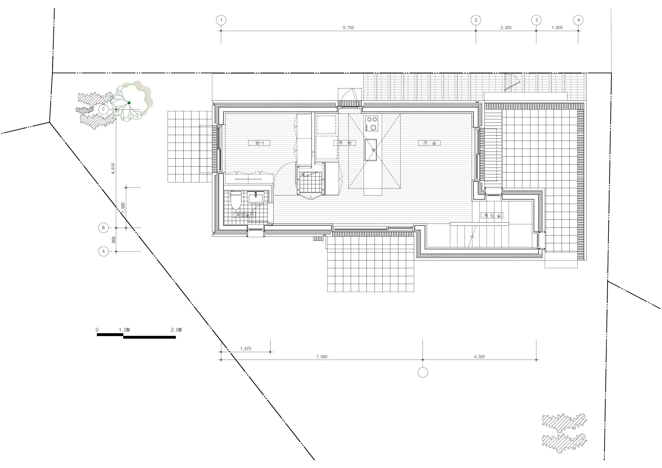
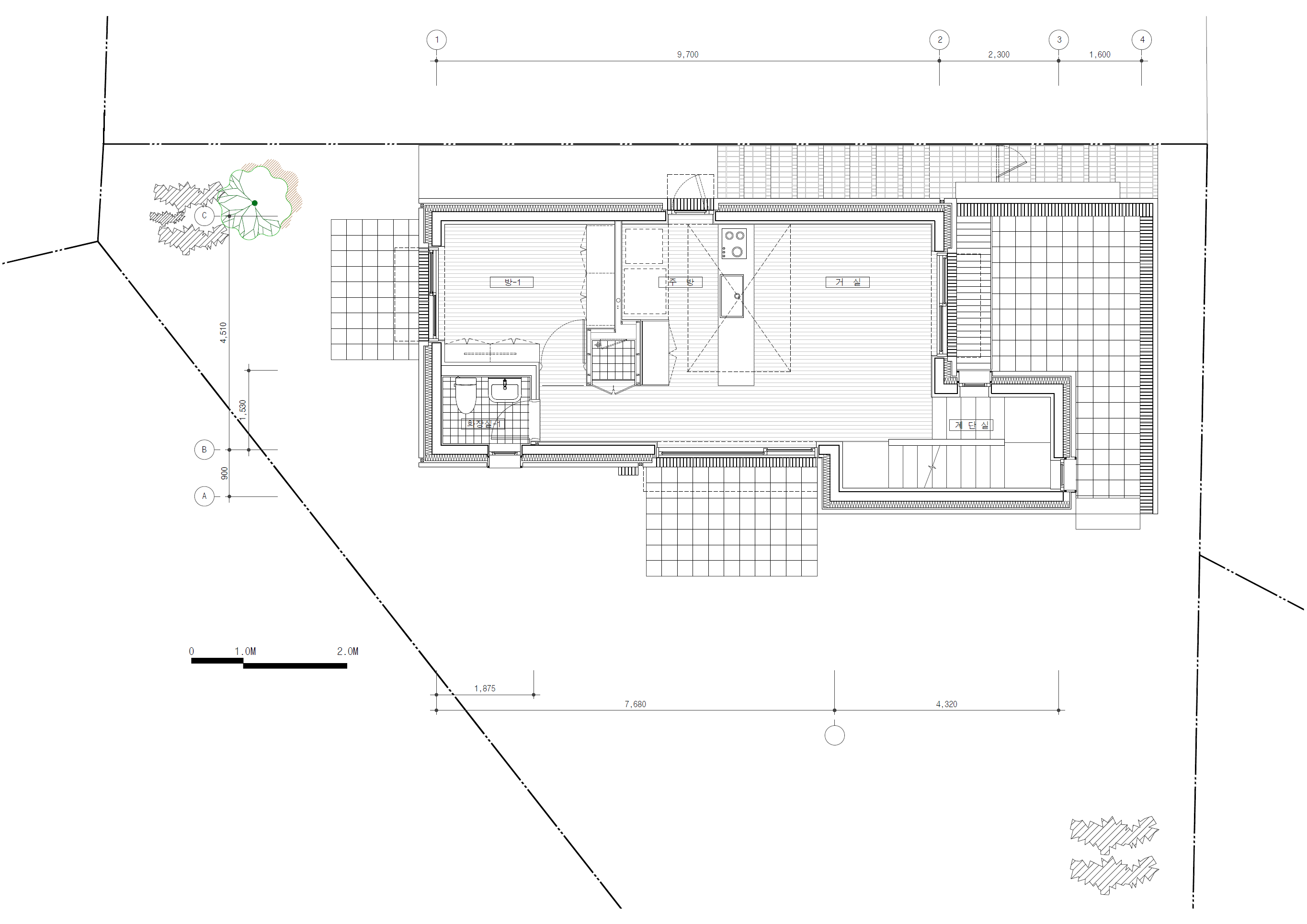
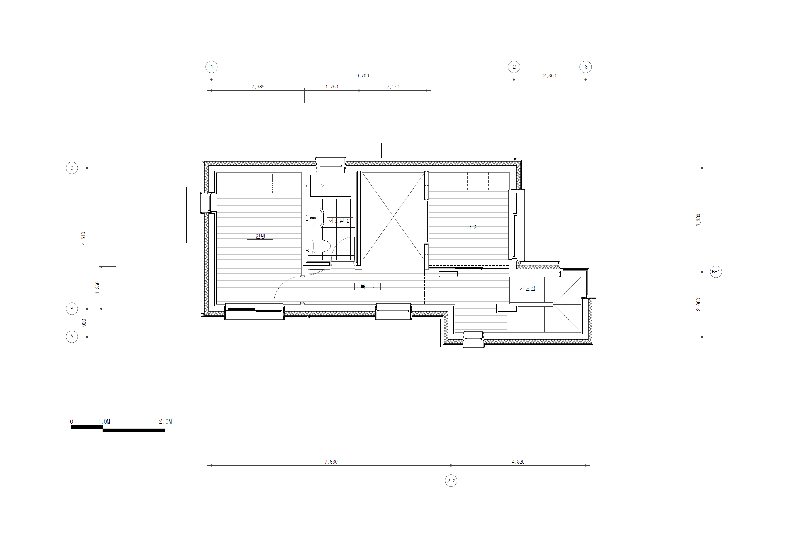
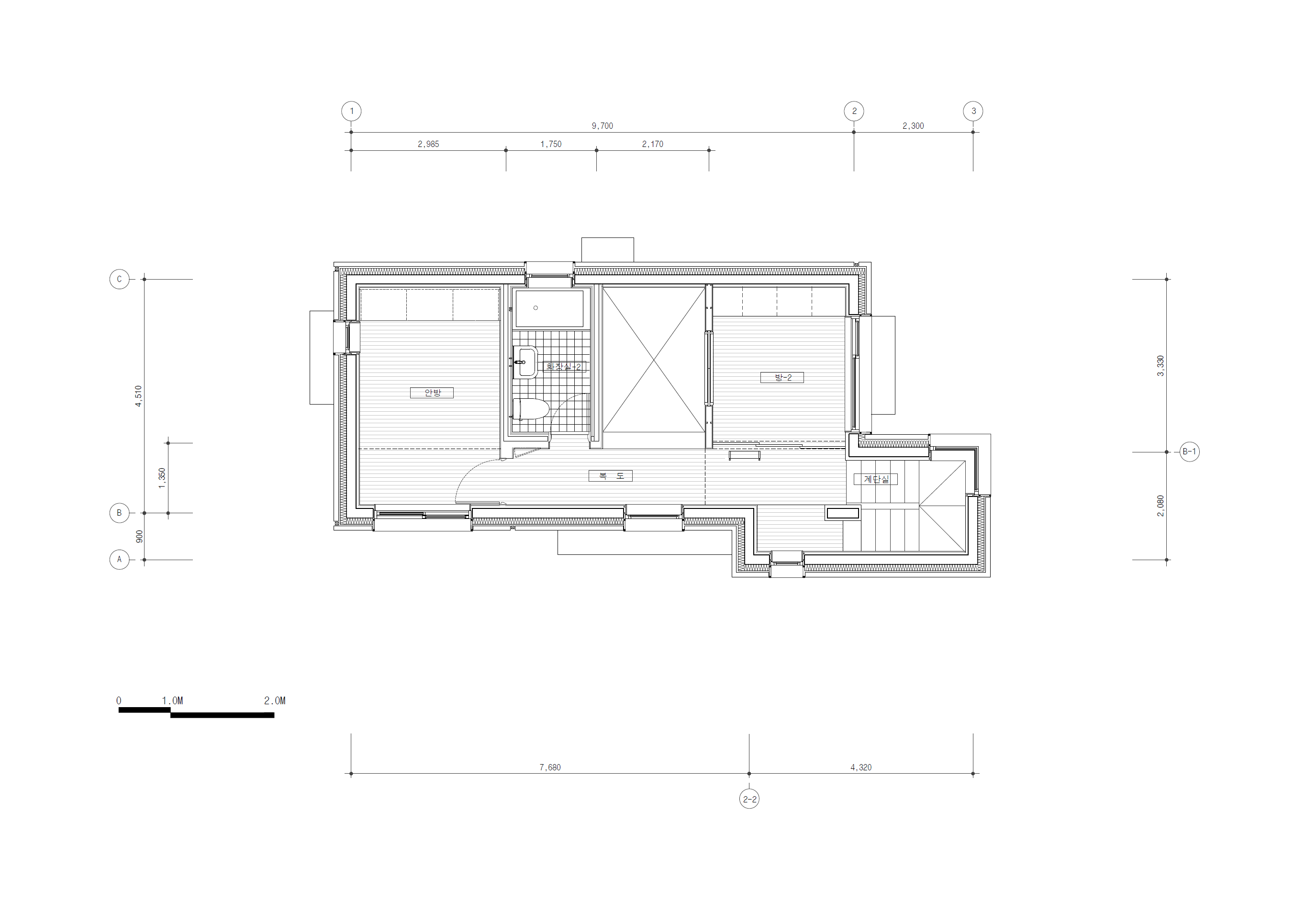
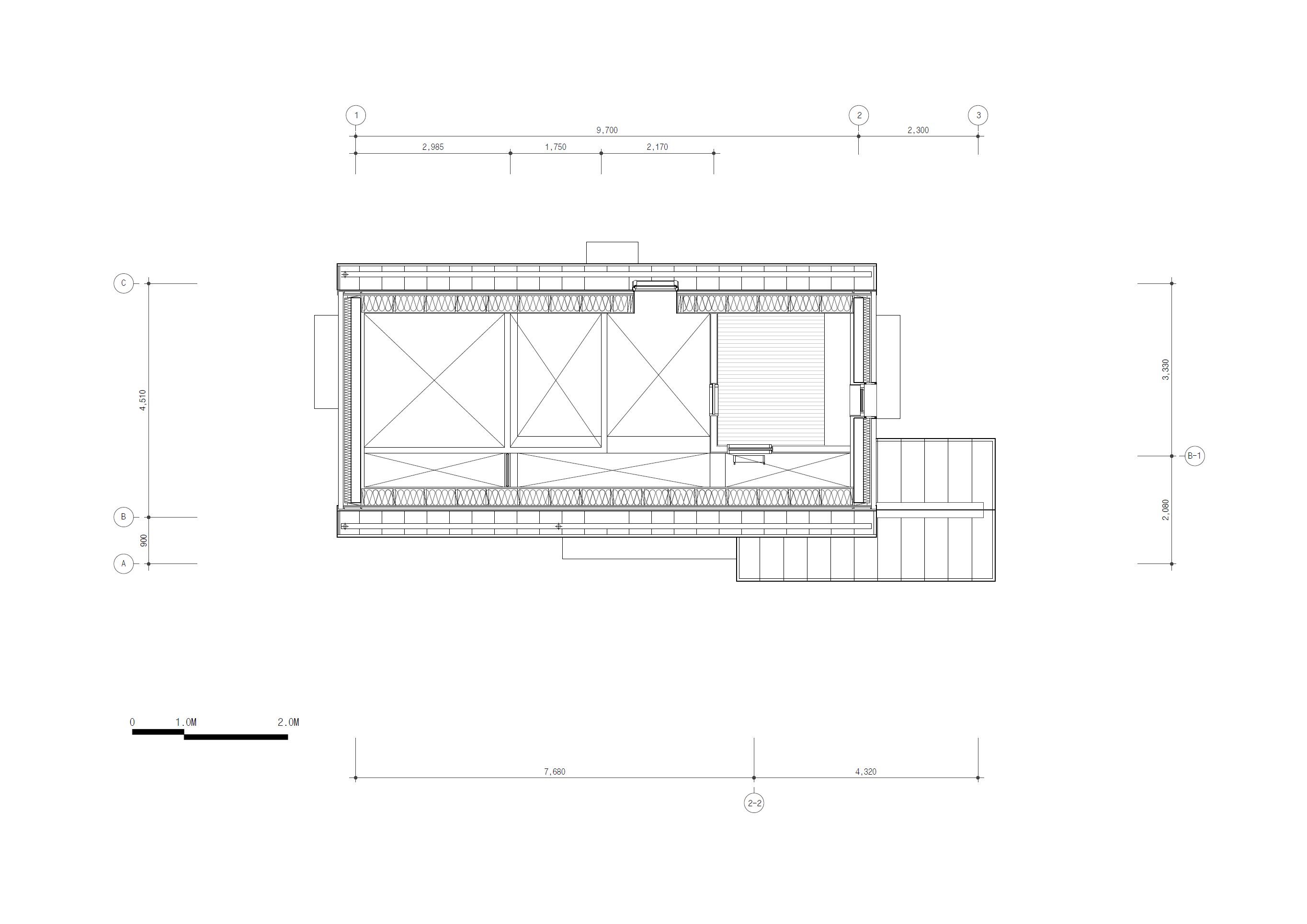
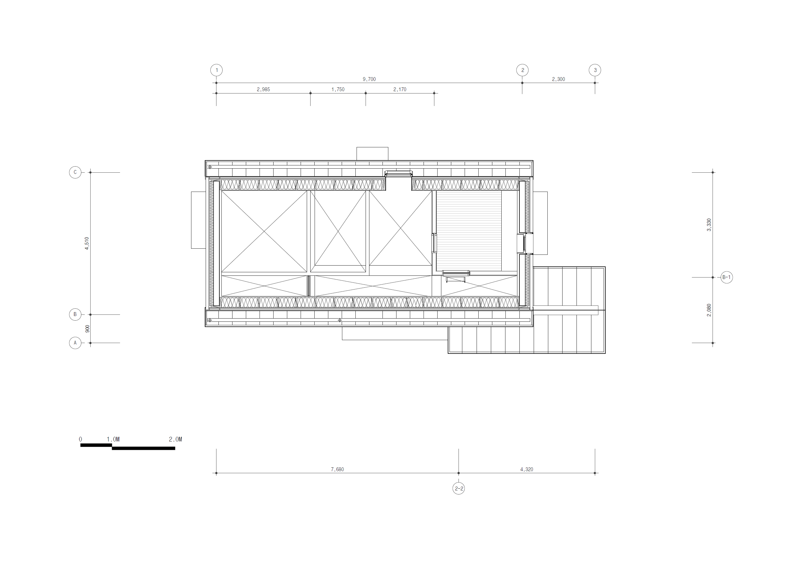
Ongi House is single-family house for a client's family with minimal living requested a cozy and tidy space. At the end of the uphill road, it was surrounded by trees and grasses without a gap and faced the ground where the outline could not be seen. A house is built on the border of landscaping stones piled up in layers right next to the road, and a height that exceeds the height of a person. There is a neighbor's house on a 4m high concrete retaining wall in the southwest, so I was worried if sun could enter the building well. The layout of the building was planned in consideration of these surrounding conditions. A large window was placed in the living room to connect with the yard so that young children could run around, and a small hideout was built on the second floor facing the stairwell. An attic was set up close to the children's room to plan a three-dimensional space for children to play. A small room for the elderly mother is located on the first floor and an independent small yard is built. By placing an atrium inside, made ventilation and lighting improved, and attempted visual communication at the same time, and we hoped it to be a space where a bond between family could be made easily. It was expected that the space would be emptied, and the warmth of the family would be filled with warm sunlight

온기 있는 집은 간소한 살림의 가족이 거주하는 아기자기하고 단정한 느낌의 단독주택이다. 오르막길 끝에 나무와 풀들로 틈 없이 에워싸여 윤곽도 볼 수 없던 대지와 마주했다. 도로 바로 옆에 겹겹이 쌓여있는 조경석을 경계로 사람 키는 너끈히 웃도는 높이 위에 집이 들어섰다. 남서쪽에 4m 높이의 콘크리트 옹벽 위로 이웃집 있어 건물로 해가 잘 들지 않을까 우려했다. 건물의 배치는 이런 주변 여건을 고려하여 계획했다. 어린 자녀들이 뛰어놀 수 있게 거실에 큰 창을 두어 마당과 연결하고 계단참과 마주한 2층에 조그만 아지트를 만들었다. 아이 방과 가까운 곳에 다락을 두어 아이들이 놀 수 있는 입체적인 공간을 계획했다. 노모를 모실 수 있는 작은 방이 1층에 위치하고 독립된 작은 마당을 조성했다. 내부에 아트리움(Atrium)을 두어 환기와 채광을 개선하는 동시에 시각적 소통을 꾀하고 가족 간의 유대감을 쉽게 만들어 갈 수 있는 공간이길 바랐다. 공간을 비워내고 그 속에 따뜻한 햇살과 함께 가족 간의 온기가 가득 채워지길 기대했다.




















Architects Bare GROUND ARCHITECTS
Location Suji-gu, Yongin-si, Gyeonggi-do, Republic of Korea
Site area 253.0㎡
Building area 50.34㎡
Gross floor area 151.71㎡
Building scope B1, 2F
Building to land ratio 19.90%
Floor area ratio 39.40%
Construction period 2016. 11 - 2017. 06
Completion 2017. 06
Principal architect Kyungsook Yoon
Project architect Juhyup Cha
Design team Gunhee Park
Structural engineer Suna Choi
Mechanical engineer Wan ENG.
Electrical engineer Wan ENG.
Construction Bandi Architecture Design
Photographer Jeonghyun Kim
해당 프로젝트는 리빙즈, 디테일 03호에 게재되었습니다.
The project was published in LIVINGS, Detail 03
[BOOK] LIVINGS, Detail 리빙즈, 디테일 03호, 04호
<LIVINGS, Detail 리빙즈, 디테일 03호, 04호> 72개의 형태와 라이프스타일을 담은 주거공간, 국내외 “디테일한 주택 프로젝트”의 엮음 매월 국내외 다양한 건축물들을 소개해 온 <월간 건축문화>가 <
www.masilwide.com
'Architecture Project > Single Family' 카테고리의 다른 글
| HOUSE JIPYEONG (0) | 2022.05.17 |
|---|---|
| NAEMAM-IDANG (0) | 2022.05.16 |
| ONE HOUSE (0) | 2022.05.12 |
| MONTAUK HOUSE (0) | 2022.05.11 |
| SISEONJAE (0) | 2022.05.10 |
마실와이드 | 등록번호 : 서울, 아03630 | 등록일자 : 2015년 03월 11일 | 마실와이드 | 발행ㆍ편집인 : 김명규 | 청소년보호책임자 : 최지희 | 발행소 : 서울시 마포구 월드컵로8길 45-8 1층 | 발행일자 : 매일



