
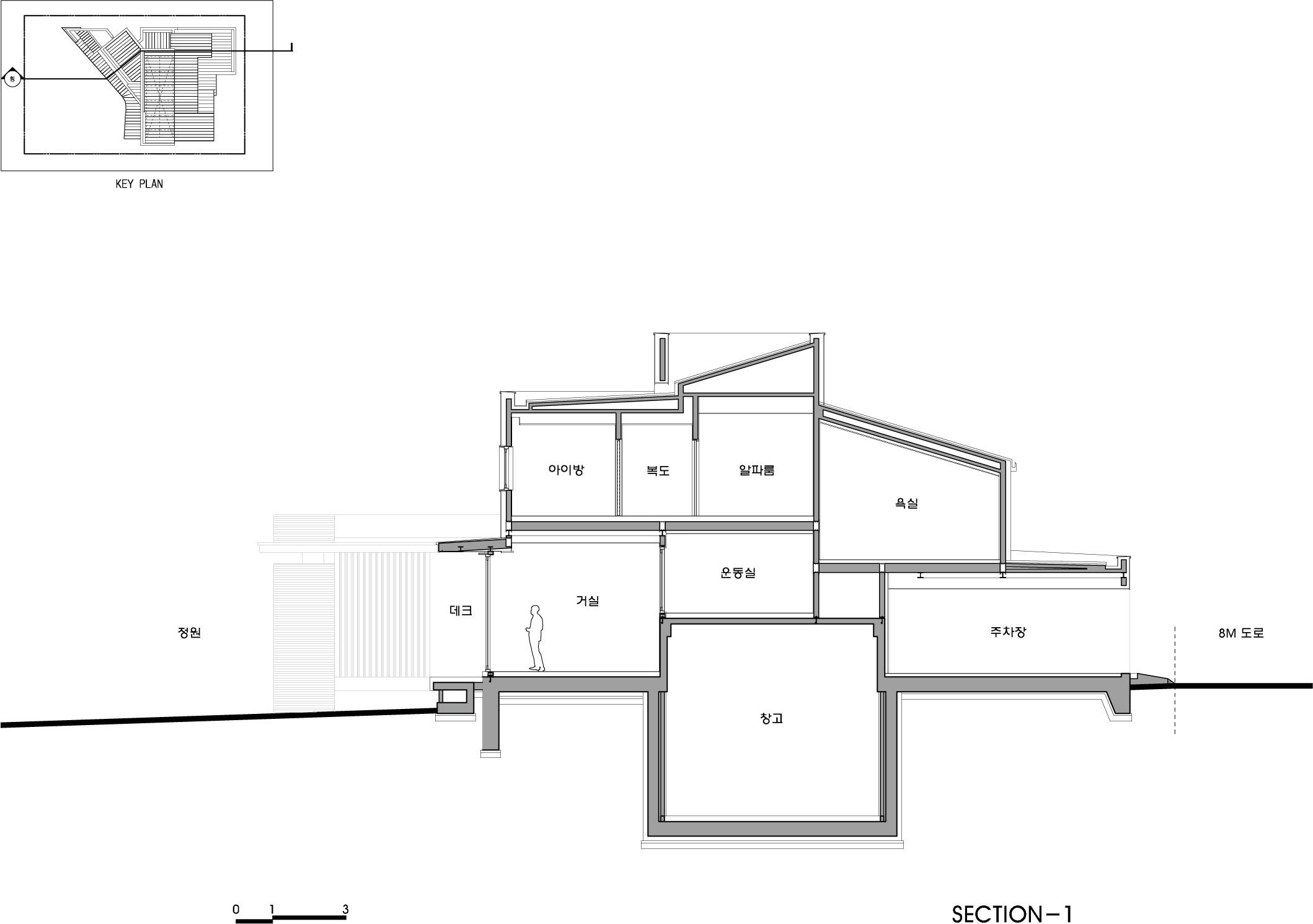
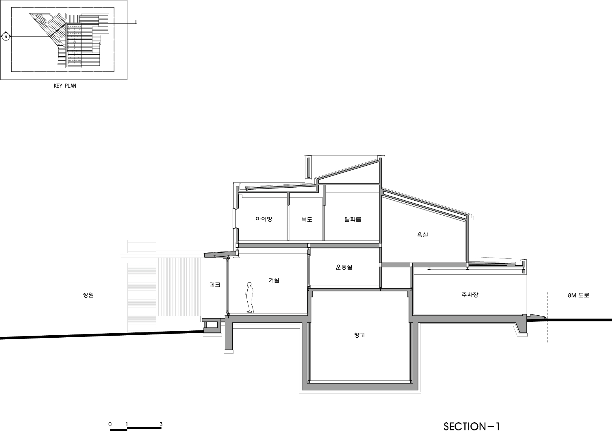
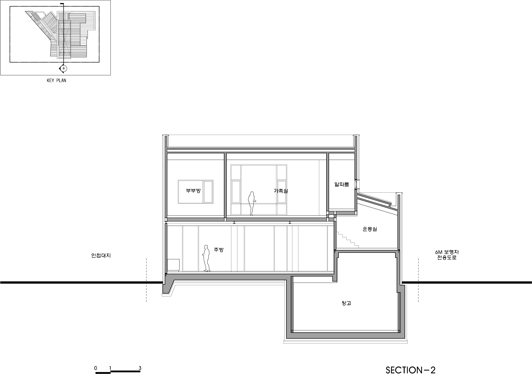
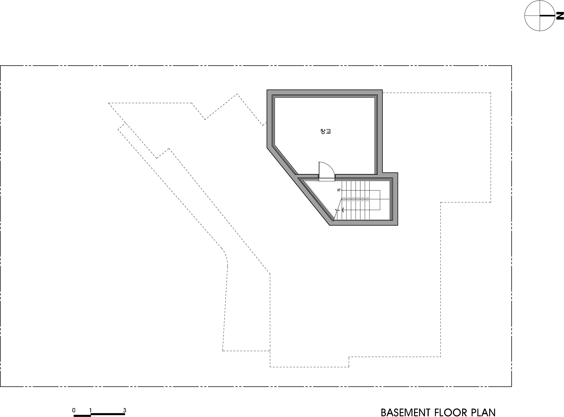
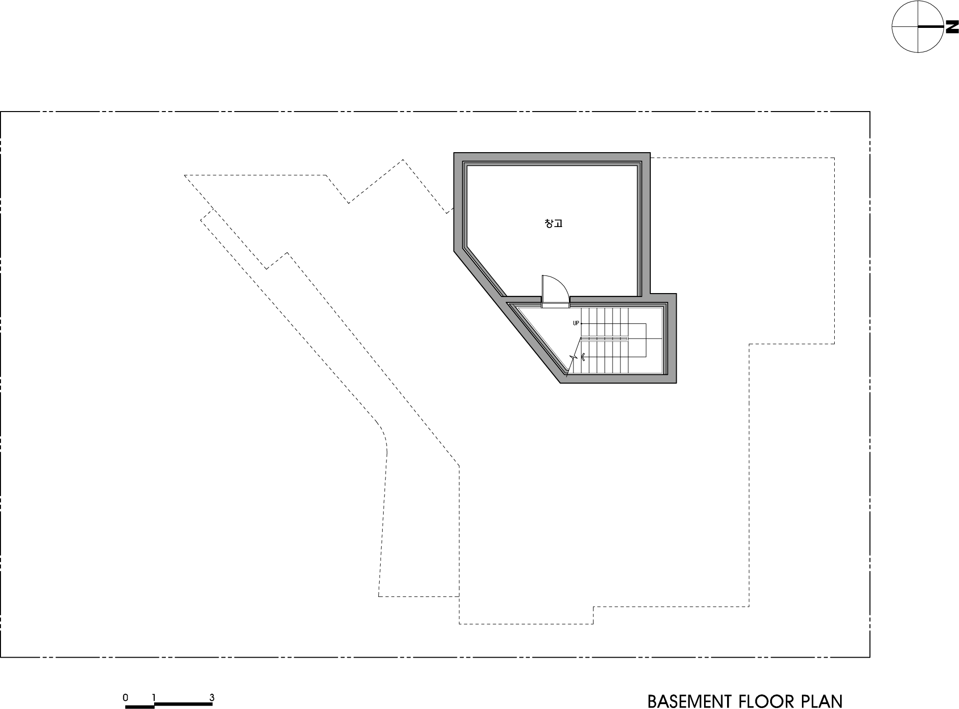
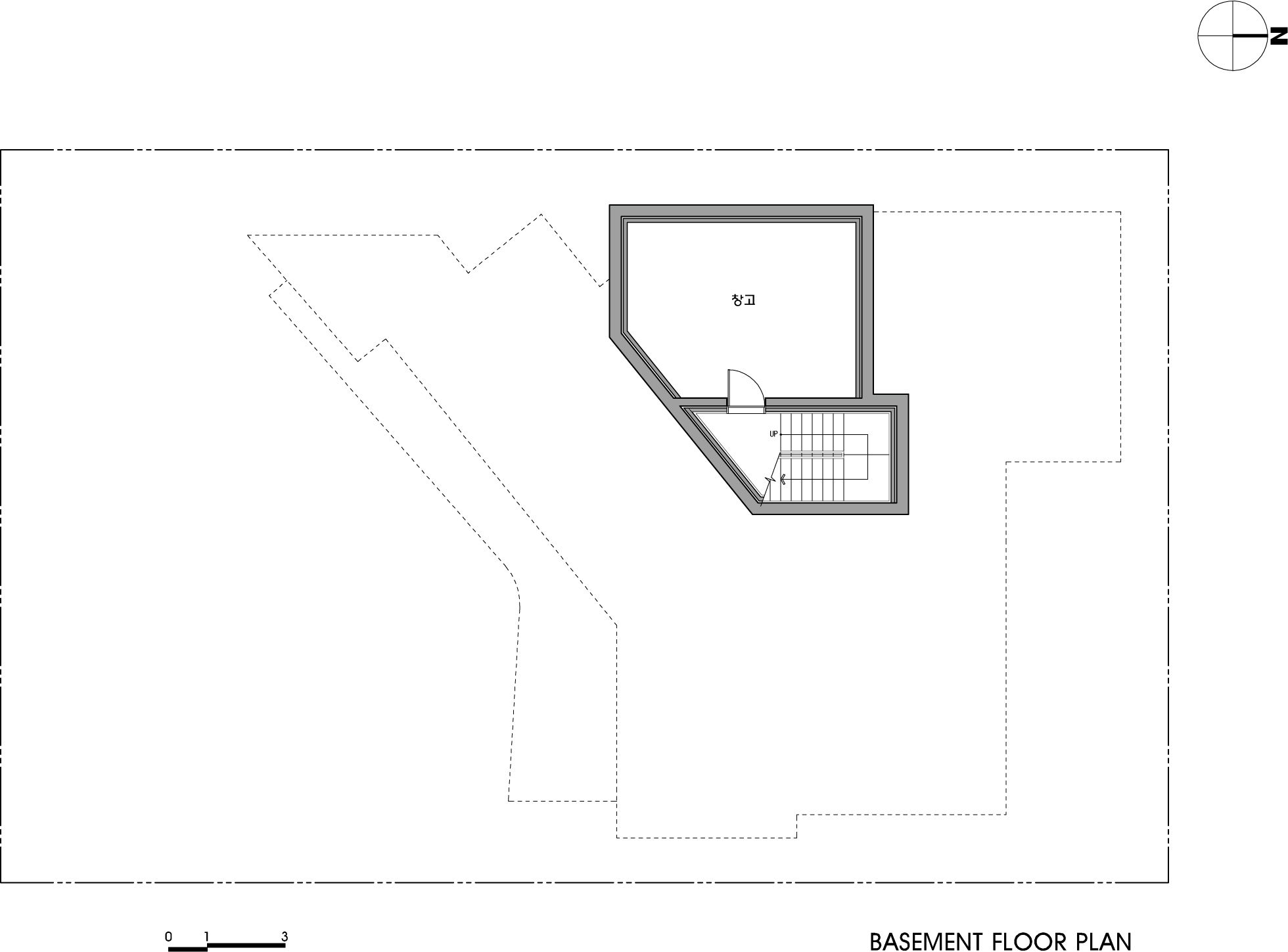
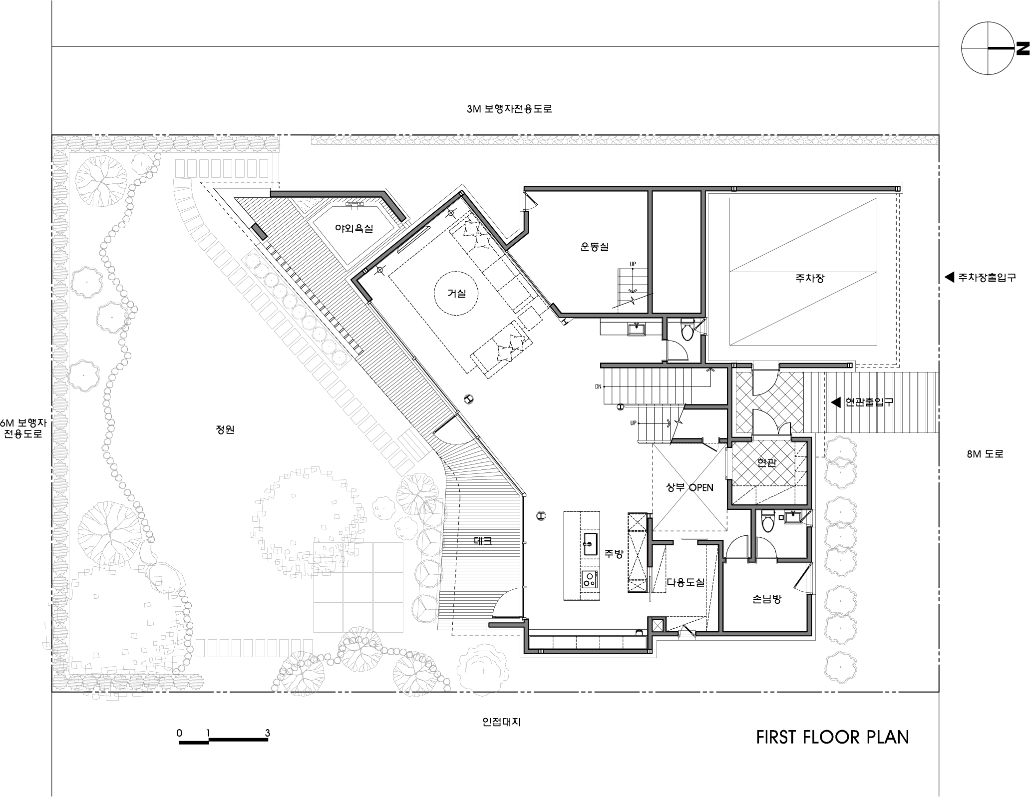
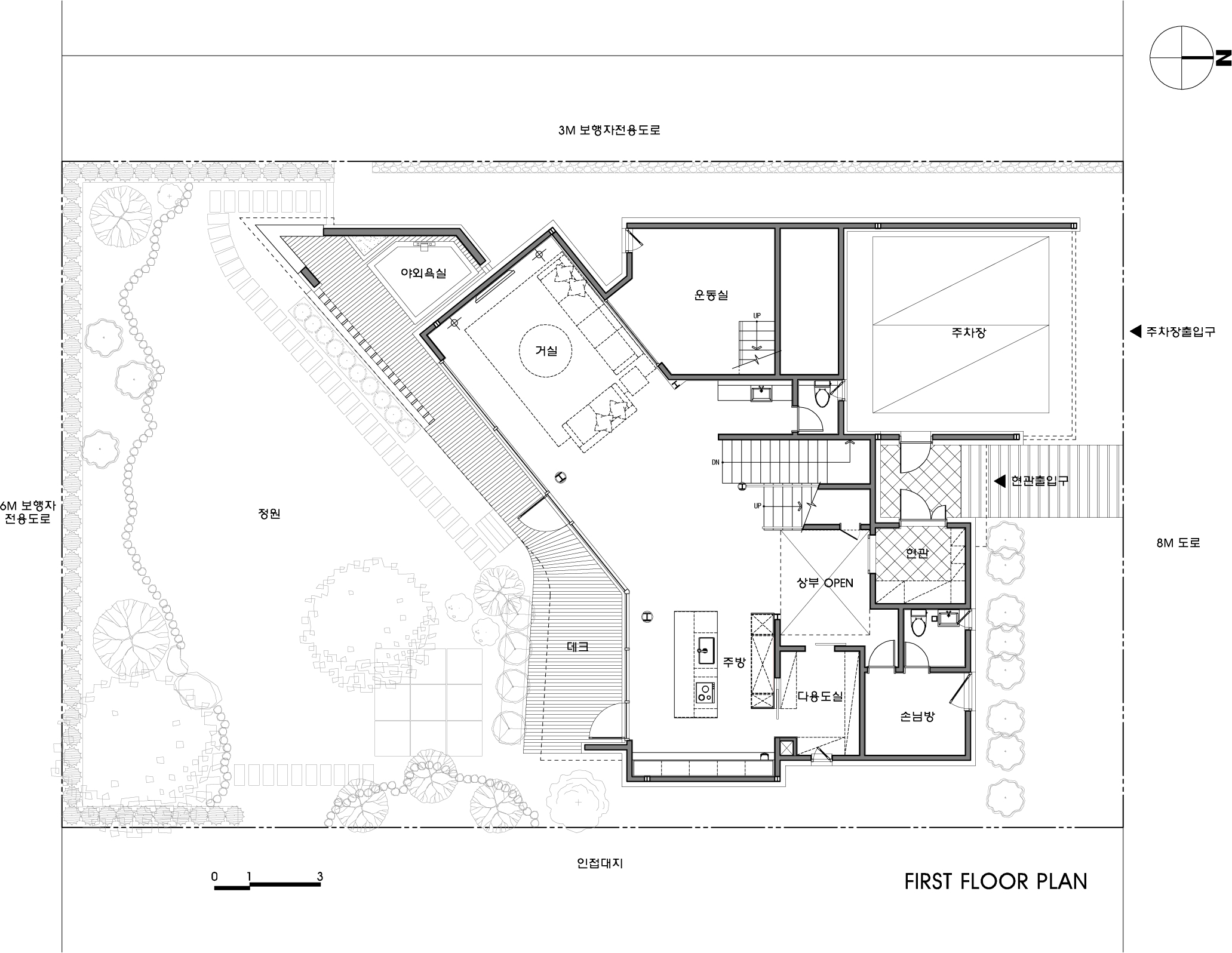
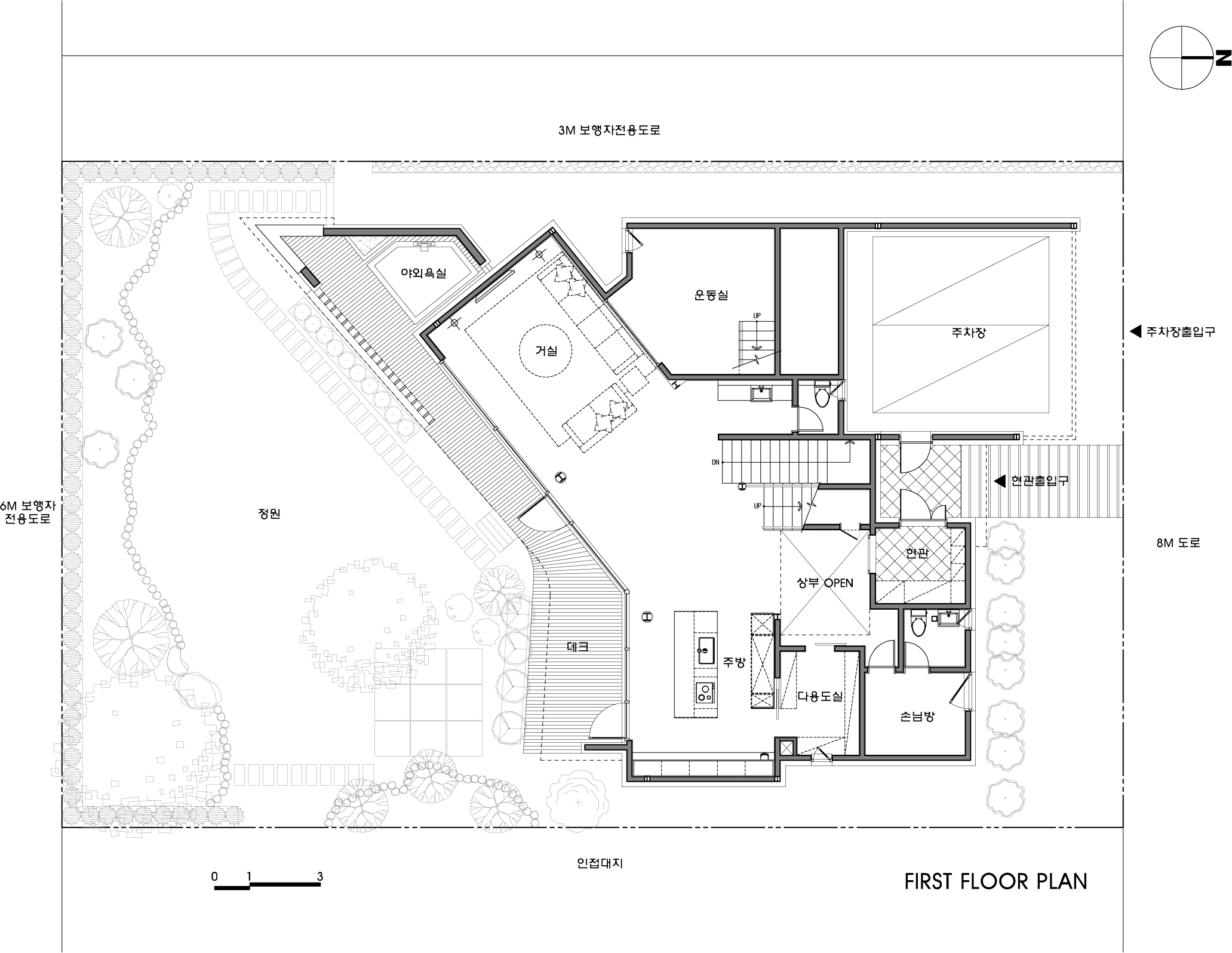
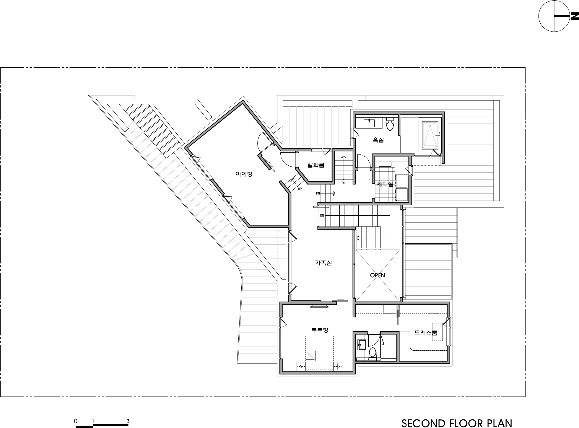
Located in a detached house complex in Sejong City, Siseonjae Pass was created by intervening diagonal elements on a square shaped site. The diagonal runs along the axis of the house's vertical movement, and at the end of the extension, the main living space, Living zone, is internally connected to Kitchen zone, but bent, dividing the gaze area and outwardly facing the north facade of the yard. Due to the underground space that forms a relatively high floor height in cross section and the exercise space located on the middle floor above it, a mass of different heights is formed in harmony and expressed on the west facade, which provides interesting attention to residents in the complex.

세종시 신도시 단독주택 단지 내 위치한 시선재는 네모난 사각형의 부지에 사선의 요소가 끼어들어 만들어졌다. 사선은 시선재의 수직 동선 중심을 축으로 내달리며, 연장선의 끝에 주 생활공간인 거실이 나타난다. 거실에서 거주자가 바라보는 시선은 내부적으로 주방과 하나로 연결되어 있지만, 꺽인 구조가 영역을 분할해준다. 또한, 시선재의 구부러진 형태는 남측 파노라마 창이 바로 인접한 이웃집으로 향하지 않고, 대각선 방향의 마당으로 시선을 닿게 만든다. 단면도상 비교적 높은 층고를 형성하고 있는 지하 공간과 그 위 중간층에 위치해 있는 운동공간으로 인해 형태적으로 높낮이 다른 매스가 형성되어 있다. 그 다른 높낮이는 거주자들 그리고 이웃 주민들까지 재밌는 시선이 향하게 만든다.



















Architects HORIM ARCHITECTS
Location Goun-dong, Sejong-si, Republic of Korea
Site area 568.10㎡
Building area 206.40㎡
Gross floor area 364.73㎡
Building scope B1, 2F
Building to land ratio 36.33%
Floor area ratio 56.39%
Construction period 2020. 08 – 2020. 11
Completion 2020. 11
Principal architect Yoonjung Ho
Project architect Junhee Kim
Structural engineer FRAME CAD
Mechanical engineer DAEWON E&C
Electrical engineer ELECTRO CONSULTING
Construction POSHOME
Photographer Youngtaek Cheon, RIMHAUS
해당 프로젝트는 리빙즈, 디테일 03호에 게재되었습니다.
The project was published in LIVINGS, Detail 03
[BOOK] LIVINGS, Detail 리빙즈, 디테일 03호, 04호
<LIVINGS, Detail 리빙즈, 디테일 03호, 04호> 72개의 형태와 라이프스타일을 담은 주거공간, 국내외 “디테일한 주택 프로젝트”의 엮음 매월 국내외 다양한 건축물들을 소개해 온 <월간 건축문화>가 <
www.masilwide.com
'Architecture Project > Single Family' 카테고리의 다른 글
| ONE HOUSE (0) | 2022.05.12 |
|---|---|
| MONTAUK HOUSE (0) | 2022.05.11 |
| DONGCHUN GREENHOUSE (0) | 2022.05.09 |
| DJ HOUSE (0) | 2022.05.06 |
| OHE HOUSE (0) | 2022.05.04 |
마실와이드 | 등록번호 : 서울, 아03630 | 등록일자 : 2015년 03월 11일 | 마실와이드 | 발행ㆍ편집인 : 김명규 | 청소년보호책임자 : 최지희 | 발행소 : 서울시 마포구 월드컵로8길 45-8 1층 | 발행일자 : 매일



