
A Solo Forest Dwelling
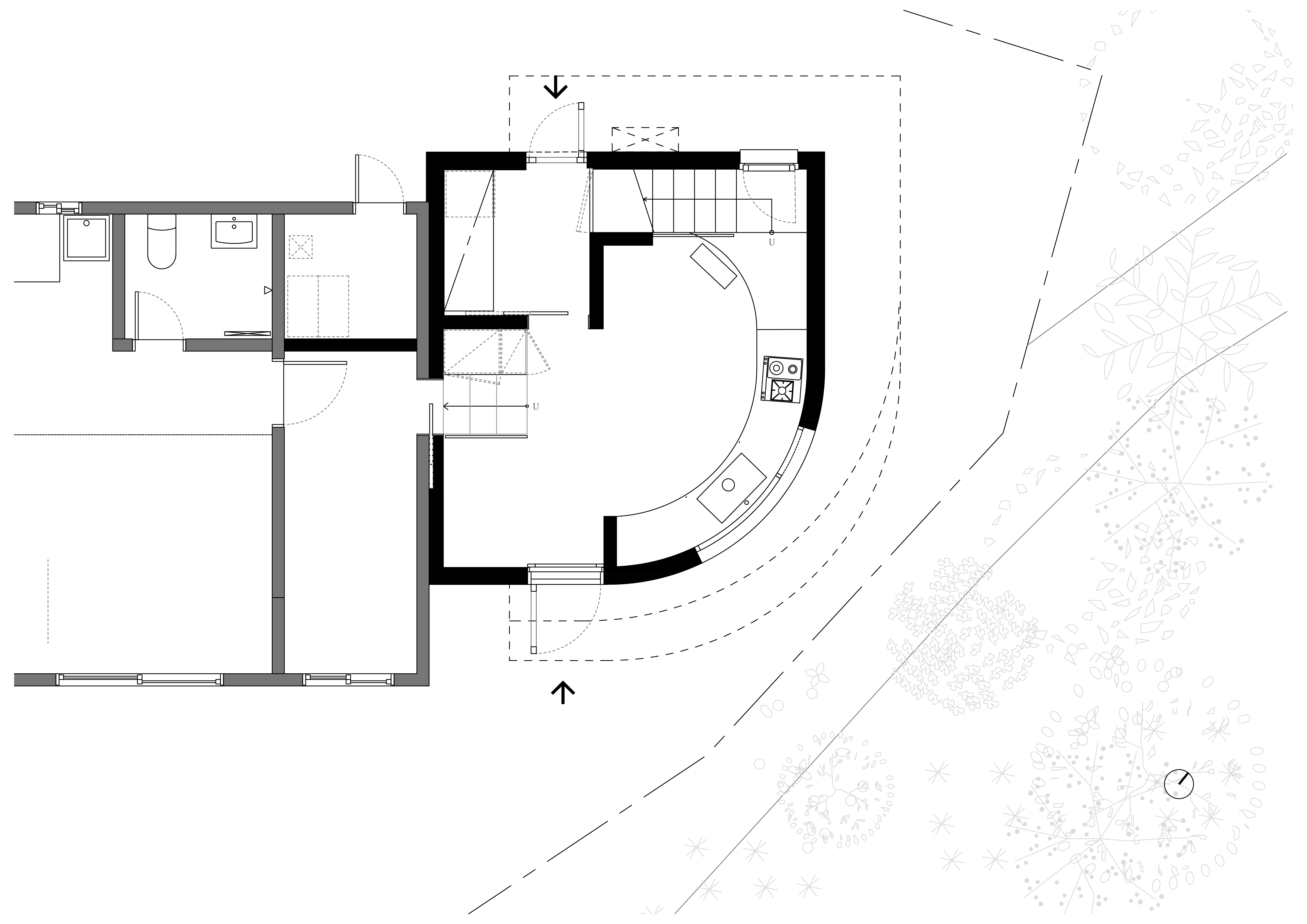
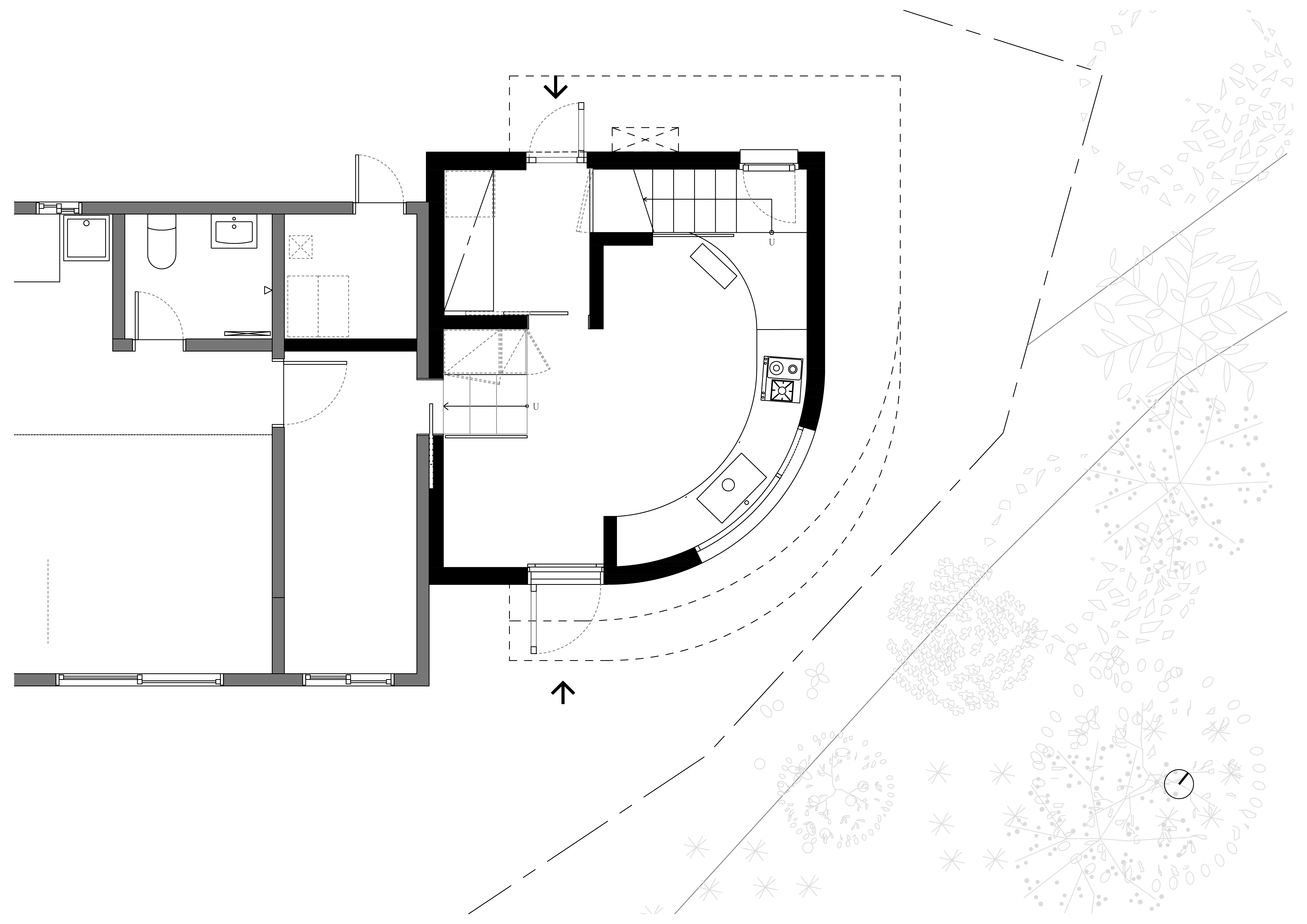
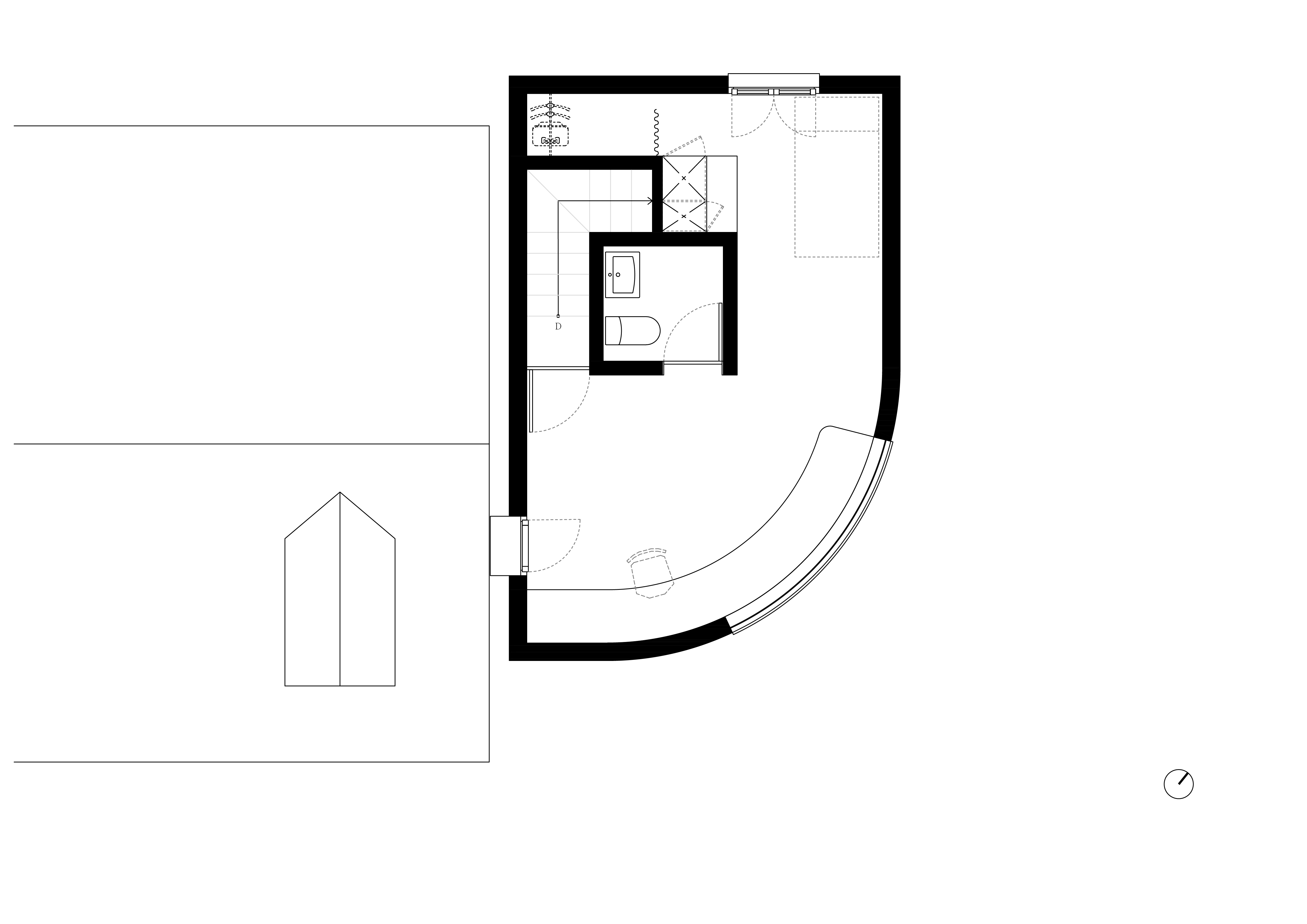
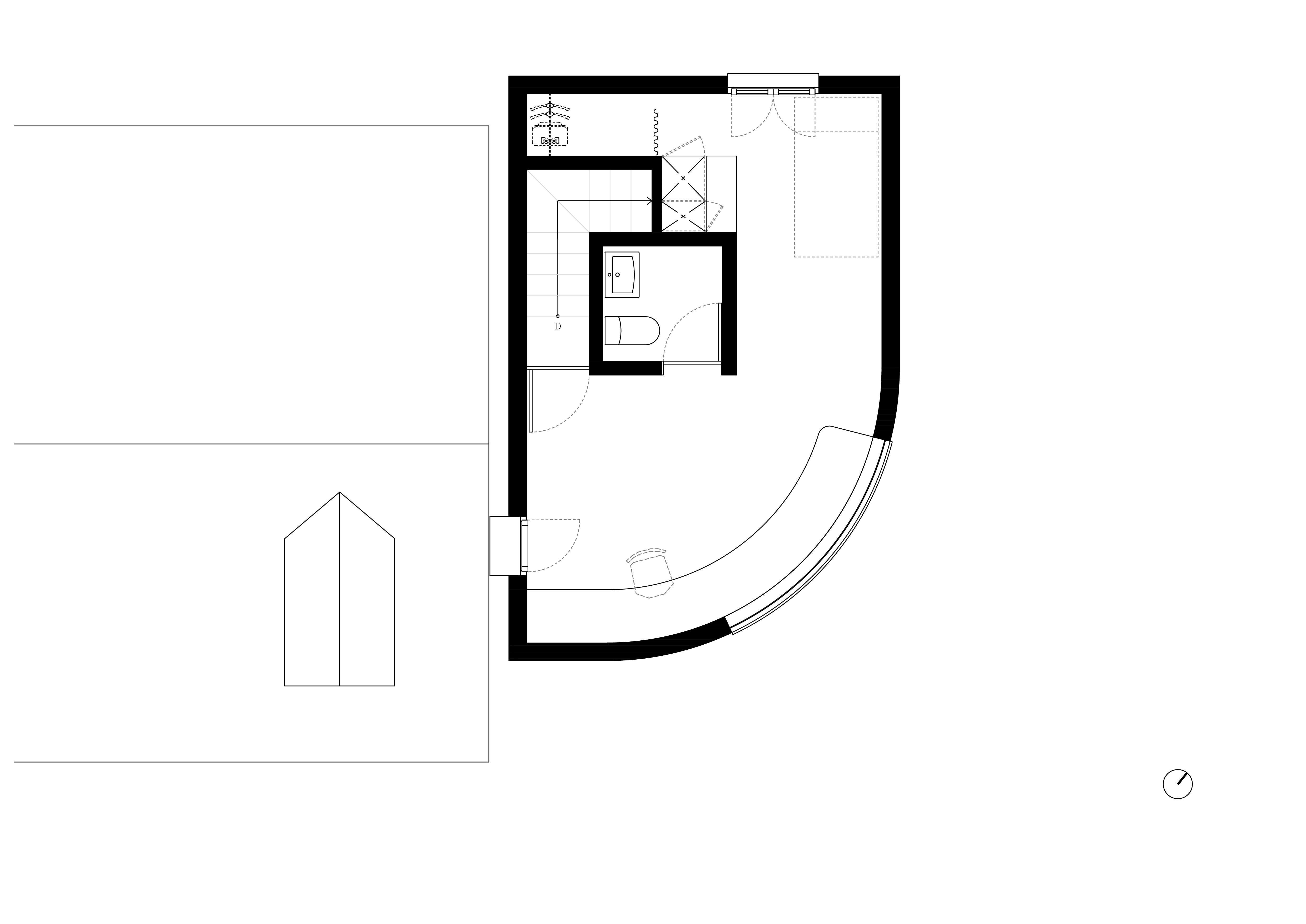
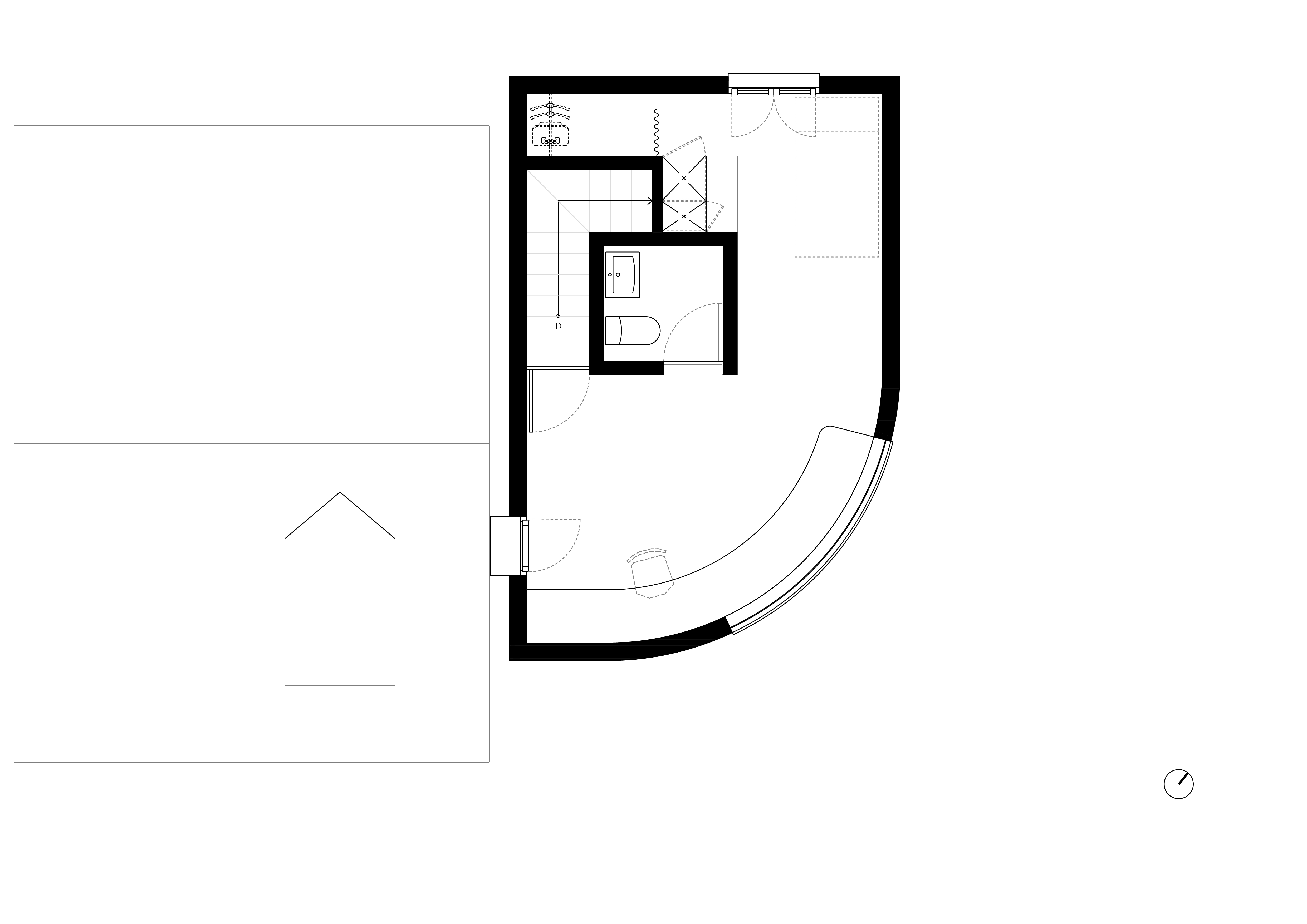
A farmhouse, on a site of an area of 670m2, sits atop a steep slope at a height of 60m from the access road. The client wanted a house in which to live with his parents so he could move to this remote, tranquil town. He approached us to fulfill the design of a new house in which he might live alone as neighbour to the existing farmhouse, within the confines of the lot owned by his parents. This house had to feature a kitchen and storage space on the first floor, and a room that connected to the existing farming house on second floor. In other words, he wanted to use the first floor as an open, shared space, and the second floor as a private space. Before the client met us, he drew up a floor plan to sketch out the arrangement and size, also studying and compiling data to do with various eco-friendly materials and facilities. By examining these findings, he conceived of his desired construction technique, in partnership with us. Most significantly, we contributed to the detailed drawings, developing six alternatives, sharing a model and 3D modeling data with the client – even though it is a small house, we were aware that we would only have to draw up new floor plans should the furniture position change. In light of the planned spatial arrangement, we set upon devising a new building for the client inside the right side of the existing building. The building could be connected to his parents’ home via the kitchen and multi-use room. However, this was close to the perimeter of the lot and because of the outside path the area available to the first floor was only 20m2, and so we designed 1m of the second floor as a cantilever structure to expand the space and manufactured furniture that adapted to the curved shaping of the walls to improve its practicality. At this same stage, we also opened up the possibility of a panoramic view within the space.
A Problematic Site Faced with a Builder’s Tenacity
Because this house is located in the middle of the mountain, a simple construction technique was required and we had difficulty selecting the right construction company. Although the construction scale was small, we wanted a competent construction company in the capital rather than a local construction company. Finally, we met a manager of a construction company through the introduction of an acquaintance; we are still really grateful to him even after long the construction work has been completed. Selecting the wrong construction company can result in poor outcomes, even if a design is nicely worked out. Construction lasted eleven weeks. We stayed in lodgings close to the construction site, because of the mountainous location, and brought in the best technicians for each construction phase or process. As a result, the completed details were of a very high quality. For the foundations of the building, we finished the floor using reinforced concrete and applied a light weight wood framing system to the walls and the roof. After that, the roof was finished with zinc and the outer walls were finished with monocouche to neaten up the curved surface of the outer walls. When planning the internal spaces, we decided to create different atmospheres, because the first floor and the second floor have different characteristics. In the shared kitchen we laid porcelain tiles on the first floor, making them easy for the client to clean, while the walls were finished with birch. The kitchen furniture along the curved wall is made of birch so people can gaze at the outside view in front of the sink. When you go up the stairs lined with the birch walls, after taking off your shoes, you reach the spaces on the second floor. This space was finished with diatomite, which is an eco-friendly material. We installed windows in primary positions in all directions so that the occupants can look down the yard or out over the distant mountains.
A Forest Dwelling in a Monumental Landscape
The clearing here in the middle of the mountain is surrounded by the mountain range, and in addition to the spectacular fall foliage, the winter snowy scenes are incredibly beautiful. You can see the surrounding landscape from inside the house and enjoy moments of meditation in nature. Although it is a single volume, the outer walls that coil softly towards the surroundings seem to expand and draw themselves into the forest. On the contrary, the external view, seen through the curved glass inside the house, makes you gaze out into many faces of the forest.

한 사람을 위한 작은 집
건축주는 인적이 드문 조용한 마을을 찾아 부모님과 함께 살 집을 지을 땅을 구입하고 설계를 의뢰해왔다. 진입 도로에서 60m 높이의 가파른 경사를 올라오면 산 중턱에 위치한 670m2 대지에 80m2의 농가 주택이 자리 잡고 있었다. 기존 농가 주택은 인테리어를 해서 부모님을 모시고, 본인은 옆에서 혼자 살 집을 짓기로 하고 설계를 시작했다. 새로운 주택의 계획 조건은 1층은 주방 겸 창고로, 2층은 방으로 하되 1층에서 기존 농가 주택과 연결되는 것이었다. 실내이지만 외부공간의 성격을 가지는 1층이 공유공간의 역할을 하고, 2층은 사유공간으로 사용하길 원한 것이다. 사실 처음 이 땅, 그리고 샌드위치 패널 구조의 기존 주택을 보고 어떻게 조화롭게 신축 주택과 배치를 해야 할지, 재료는 어떤 걸 사용해야 할지, 외관은 어떠한 관계성을 가져야 할지 고민이 많았다. ‘조화가 과연 가능한 걸까.’ 결국, 기존 주택과는 기능적 동선만 해결하도록 하고 신축 주택은 독자적인 외관을 가지는 것으로 방향을 설정하고 계획을 했다. 건축주는 미리 평면을 그려 배치와 규모를 가늠하고 각종 친환경 자재와 설비 자료에 대한 연구를 열심히 한 상태였다. 따라서 많은 자료를 살피고 나누며 건축주가 원하는 집에 대한 시공 기술을 함께 고민하며 진행했다. 배치 계획상 건축주가 살 신축 건물은 기존 건물의 우측 안쪽에 자리하게 되었다. 따라서 건축 가능한 면적이 30m2 이내인 작은 주택이기에 가구 위치만 바뀌어도 새로운 평면을 구성해야 했고 여러 대안을 발전해가며 건축주와 모형, 3D 모델링 자료를 주고받아 세세하게 도면을 정리했다. 부모님 사시는 농가 주택의 주방 및 다용도실을 통해 두 주택을 연결하고자 했는데, 대지 경계선과 가까우며 외부 통로까지 고려하다 보니 1층은 20m2 정도의 협소한 공간밖에 없었다. 그래서 2층은 캔틸레버 구조로 1m를 확장하여 공간을 확보하고, 곡면 벽을 활용해 제작 가구를 만들어 실용성을 높였다. 동시에 풍경을 파노라마로 볼 수 있도록 했다.
열악한 현장과 시공사의 집념
이 주택은 산 중턱에 위치하여 콘크리트 공사는 배제해야 했고, 시공사 선정에도 어려움이 따랐다. 작은 건축이지만 실력 있는 시공사를 찾다가 지인의 소개로 만난 시공 소장은 우리에겐 건물이 완공된 지금에서도 너무나 고마운 사람이다. 공사 기간은 총 11주가 걸렸다. 현장이 산중이기에 인근에 숙소를 정해 놓고 공정별로 훌륭한 기술자들이 시공했기에 디테일의 완성도가 아주 높다. 기초는 철근콘크리트로 바닥을 완성하고 벽과 지붕은 경량목구조를 한 후 지붕은 징크, 외벽 마감은 모노쿠쉬를 사용하여 외벽의 곡면을 단정하게 정리하였다. 내부 공간을 계획할 때 1층과 2층의 성격이 다르기에 다른 분위기로 마감을 하기로 했다. 1층은 공유 주방의 성격을 가져 바닥은 석재 타일을 시공하여 물청소가 가능하도록 하며 벽은 자작나무로 마감했다. 곡면 벽에 있는 주방 가구는 자작나무로 제작하였으며 싱크대 앞에 서면 바깥 풍경을 볼 수 있다. 신발을 벗고 자작나무 벽을 따라 계단을 오르면 백색의 규조토로 마감한 2층 공간이 펼쳐진다. 동서남북 주요 위치마다 창을 배치하여 마당을 내려다보기도 하고 멀리 산을 볼 수 있다.
숲속에 자리한 작은 건축, 풍경을 담다
건축에서 외관을 만드는 일은 단순히 형태나 파사드를 가리키는 것은 아니고, 내부 공간과 외부 공간의 경계가 어떻게 구성되어 공간을 구축하고 있는지를 정의하는 것이다. 외부 공간과 내부 공간이 어떤 식으로 공간의 경계를 구성하고 있는지는 내부와 외부의 관계성에서 비롯된다. 이 주택의 외관은 땅의 경계로부터 빚어지고 내부 공간과 외부 공간은 곡면의 창호를 통해 관계를 맺고 있다. 대지는 산으로 둘러싸여 있으며 가을 단풍, 특히 설경이 매우 아름다운 곳이다. 주변의 풍경을 주택 내부로 끌어들이고 자연에 둘러싸인 채 명상을 즐길 수 있는 집이다. 단일한 덩어리의 집이지만 주변을 향해 부드럽게 감아 도는 외벽은 숲으로의 확장과 연계를 유연하게 받아들이는 모습이고, 반대로 내부에서 곡면 유리를 통해 바라보는 외부의 전경은 다양한 숲의 표정에 시선을 던지게 한다.















Architects DRAWING WORKS
Location Sangchon-myeon, Yeongdong-gun, Chungcheongbuk-do, Republic of Korea
Site area 670㎡
Building area 38.89㎡
Gross floor area 59.26㎡
Building scope 2F
Building to land ratio 5.73%
Floor area ratio 11.30%
Design period 2018. 10 - 2019. 02
Construction period 2019. 04 – 2019. 07
Principal architect Youngbae Kim
Design team Suah Hwang
Structural engineer Eun Structure Enjineering
Mechanical engineer Yeon
Electrical engineer Yeon
Construction Analog Atelier
Photographer Jaekyeong Kim
해당 프로젝트는 리빙즈, 디테일 03호에 게재되었습니다.
The project was published in LIVINGS, Detail 03
[BOOK] LIVINGS, Detail 리빙즈, 디테일 03호, 04호
<LIVINGS, Detail 리빙즈, 디테일 03호, 04호> 72개의 형태와 라이프스타일을 담은 주거공간, 국내외 “디테일한 주택 프로젝트”의 엮음 매월 국내외 다양한 건축물들을 소개해 온 <월간 건축문화>가 <
www.masilwide.com
'Architecture Project > Single Family' 카테고리의 다른 글
| NAEMAM-IDANG (0) | 2022.05.16 |
|---|---|
| ONGI HOUSE (0) | 2022.05.13 |
| MONTAUK HOUSE (0) | 2022.05.11 |
| SISEONJAE (0) | 2022.05.10 |
| DONGCHUN GREENHOUSE (0) | 2022.05.09 |
마실와이드 | 등록번호 : 서울, 아03630 | 등록일자 : 2015년 03월 11일 | 마실와이드 | 발행ㆍ편집인 : 김명규 | 청소년보호책임자 : 최지희 | 발행소 : 서울시 마포구 월드컵로8길 45-8 1층 | 발행일자 : 매일



