
One day I met a couple with two children. I recall smiling to myself while reading their e-mails and stories. It is about a couple who met at the university and started travelling. It illustrates their difficulties while visiting Europe in a rented automobile. Following their marriage, they embarked on a round-the-world voyage while raising their growing brood. Oh, How they pushed themselves to explore new things! Even though facing these challenges seem reckless to some, they would still do what they want to do. So they were often told by their parents to grow up and be more mature. In traditional Korean standards, the lives they are living might be in a rash and overly fantastic. But personally, I think they are just living their lives instead of following the world's standards. That's why I designed a house suitable to their own lifestyle.
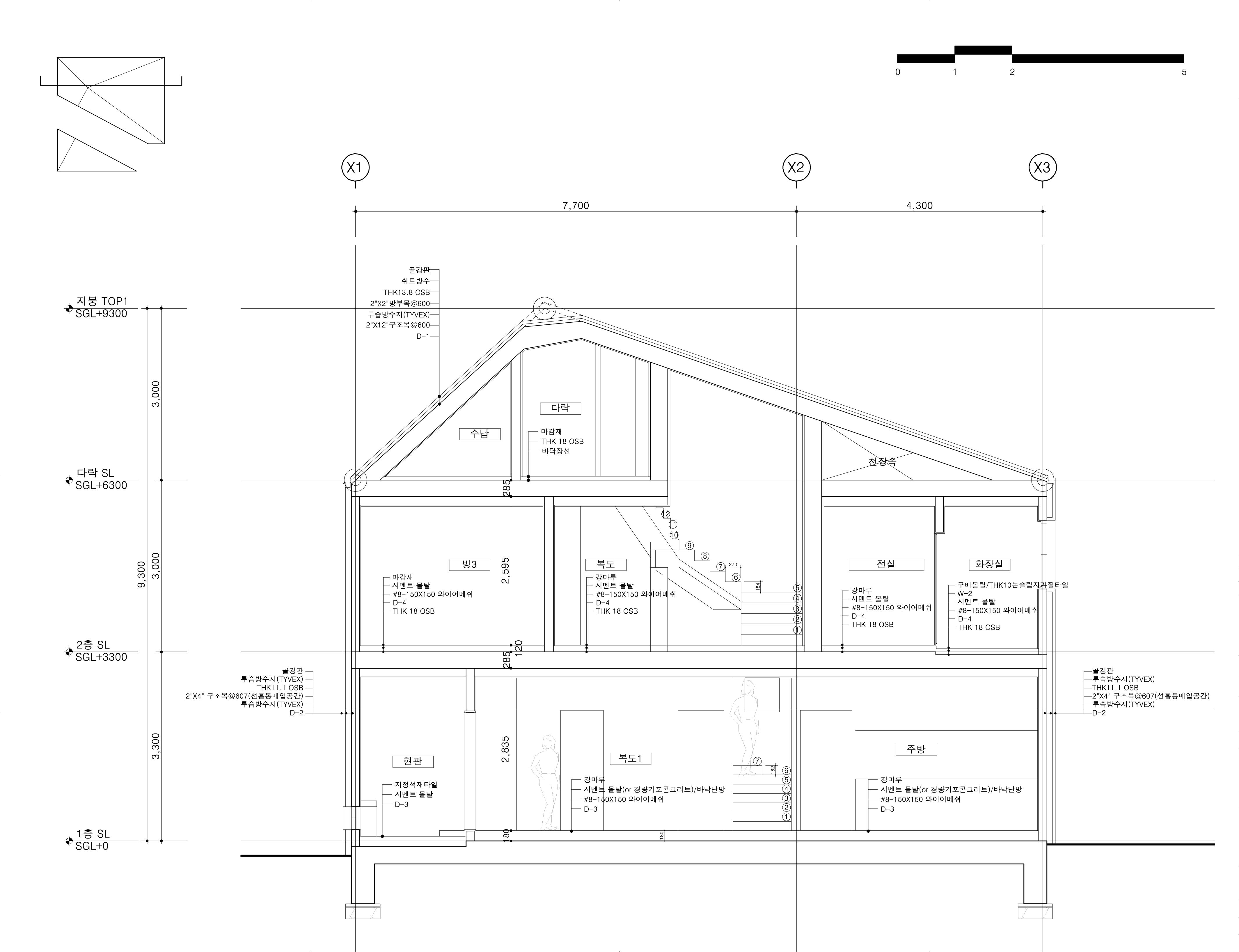
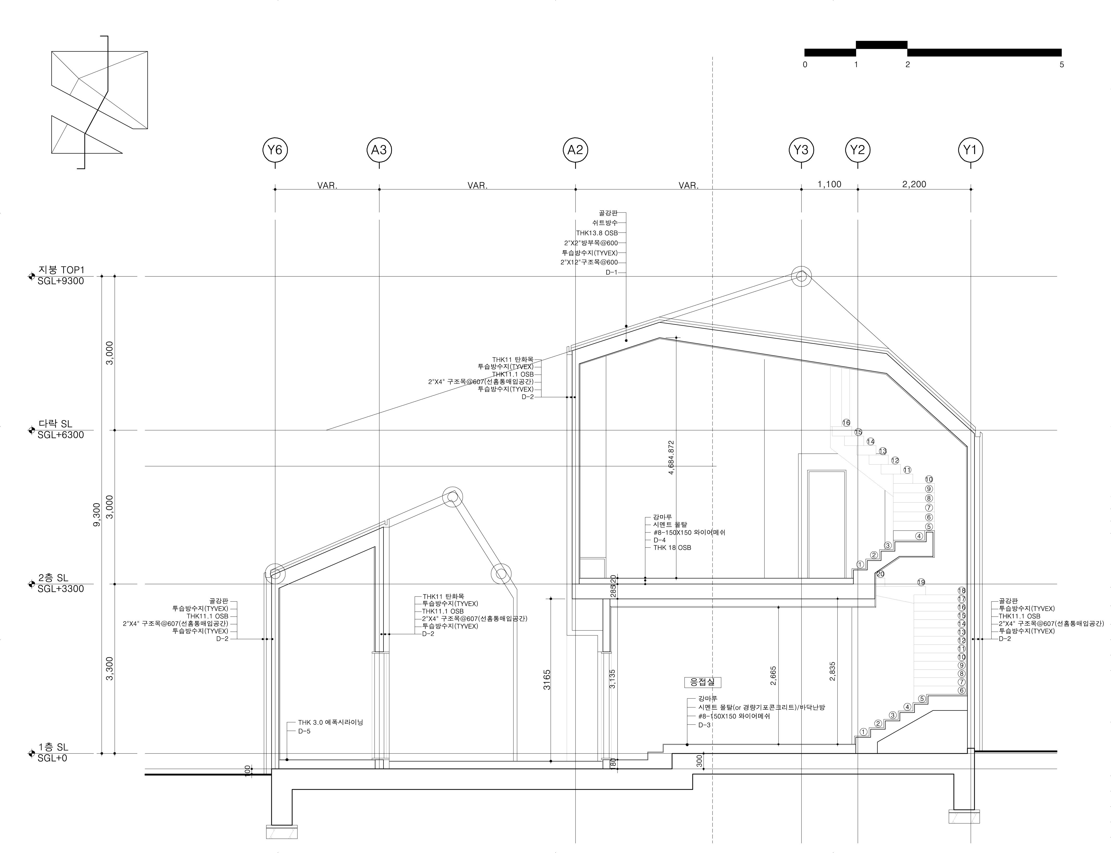
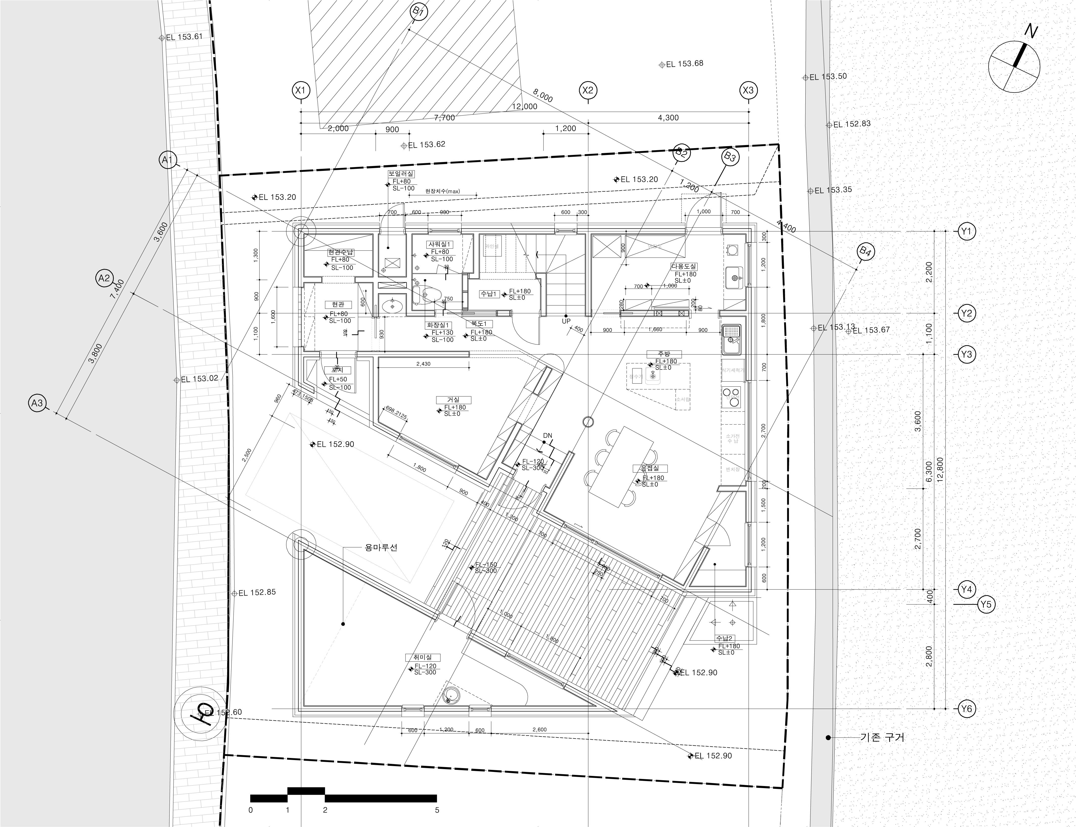
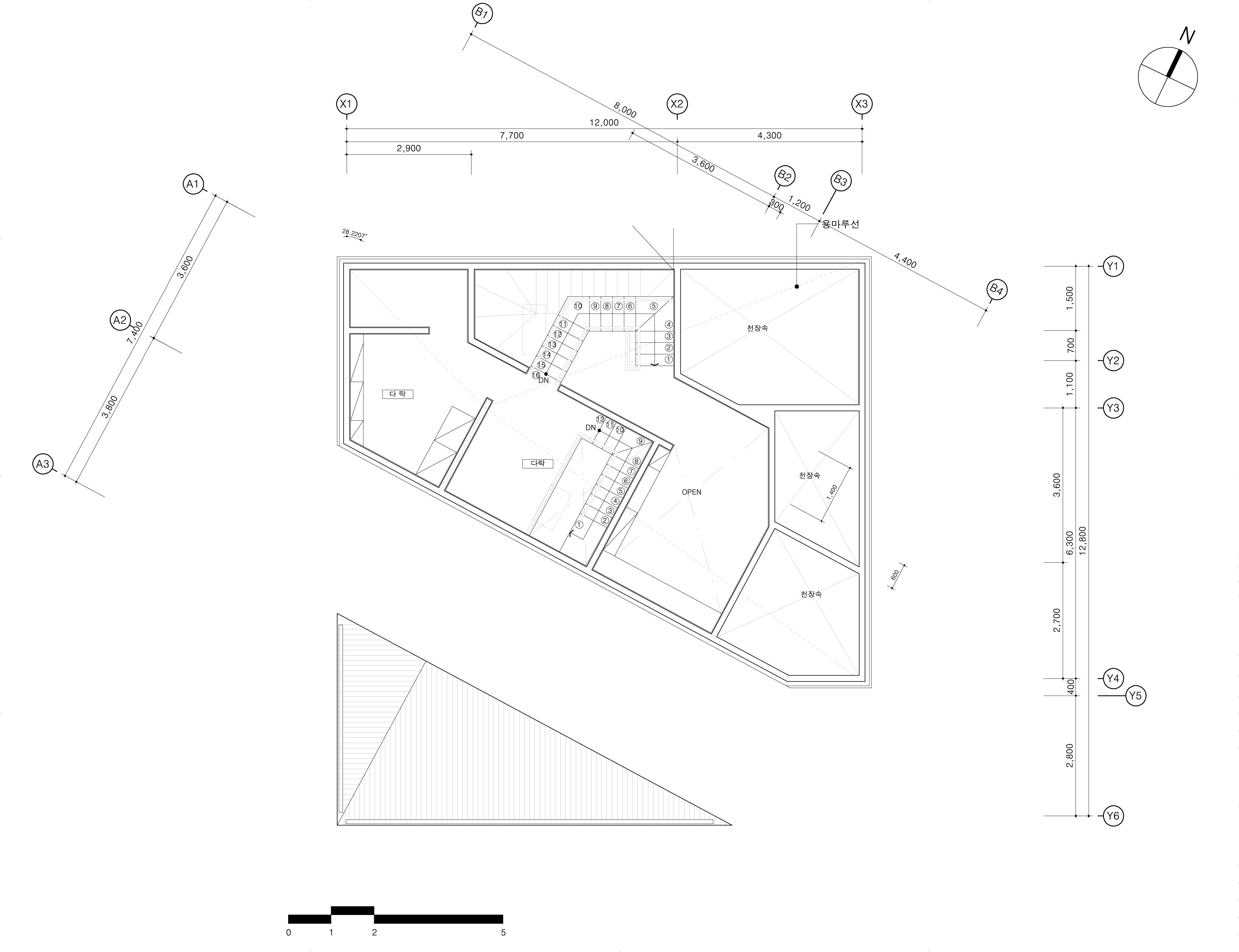
I thought of an image in which a rectangle is divided diagonally. I wanted to express the feeling of 'cutting out a different frame' from the existing mass. Due to the resulting oblique form, the interior of the house was also designed in a form different form that of an exiting house. None of the main rooms are square. Although it is made up of strong diagonal lines, there are no obstacles with its living spaces. In fact, just as there is nothing wrong with going beyond or escaping from the existing framework, such as, life, values and world-view, I am certain that the children growing up here will not become familiar with the mold.
The shape is that the annex is slightly lowered by cutting a square pyramid diagonally. For the exterior material, the same material, corrugated steel plate, was used from the roof to the exterior wall to emphasize the sense of mass, and carbonized wood was applied to the cut contrasted with the corrugated steel plates. In a lightweight wooden structure, the stud is composed of two layers to hide the gutters and the pipes.
At the initial design proposal, I remember that owners like it because it felt like their home. At least for me, unique architecture is not realized through design and persuasiveness, but rather comes from the story of the owner that can provoke a unique thought and the value that can accommodate the designed plan. Now I'm smiling at the thought of the owner who quipped that the name of the house would be ‘Because I can(naemam-idang)’.

어느 날 두 아이를 키우는 부부를 만났다. 그들의 이야기를 들으면서 자연스레 미소가 지어졌던 기억이 난다. 대학 때부터 렌터카로 고생하며 유럽을 돌아다녔던 이야기, 결혼 후 11개월 아이를 데리고 세계여행을 떠났던 이야기, 남들이 고생스럽다고 힘들다고 말리는 일이라도 하고 싶다면 도전했던 이야기, 아직도 부모님께 "언제 철들 것이냐"는 이야기. 두 아이의 부모이기도 한 건축주는 만들어진 틀 속에서 살지 않고 자신들의 의지대로 삶을 살겠다는 철학을 가진 젊은 부부였다. 도전적이고 자기주도적인 삶을 살아갈 수 있는 아이로 키우겠다는 자녀에 대한 교육관도 확고해 보였다. 무언가 대단한 집을 설계하려고 하지 않았다. 단지 그들의 삶을 닮은 집을 설계해주고 싶었다.
사각형을 사선으로 잘라내는 이미지를 생각했다. ‘틀을 자른다’라는 느낌을 매스에 그대로 표현하고 싶었다. 그로 인해 발생하는 사선면으로 인해 집의 내부 또한 기존의 주택과는 사뭇 다른 형식으로 풀었다. 내부의 주요한 실들은 네모 반듯한 것이 하나도 없다. 강한 사선들로 이뤄졌지만 사실 생활하는데 어려움은 없다. 이곳에서 자라나는 아이들은 틀에 익숙한 사람이 되지 않을 것임을 확신한다.
형태는 사각뿔을 사선으로 잘라서 별동을 약간 아래로 낮춘 것이다. 외장재는 지붕에서 외벽으로 같은 재료인 골강판을 사용하여 매스감을 강조했고, 두 매스 사이 절단면은 탄화목으로 따뜻한 속살처럼 표현되어 골강판과 대비된다. 경량 목구조 부분에는 거터와 선홈통을 숨기기 위해 스터드를 2겹으로 구성했다.
첫 계획안 미팅 때, 건축주들이 자신들을 위한 집 같다며 좋아했던 기억이 난다. 적어도 나에게서 독특한 건축은 디자인과 설득력으로 구현되는 것이 아니라, 독특한 생각을 유발할 수 있는 건축주의 이야기와 그로 인해 디자인된 계획안을 수용해줄 수 있는 가치에서 생겨난다. 어느 날 웃으며 집 이름을 ‘내맘이당’으로 짓겠다는 건축주 생각에 또 웃음이 난다.


















Architects Jaeguidang Architecture
Location Giheung-gu, Yongin-si, Gyeonggi-do, Republic of Korea
Site area 246.00m2
Building area 104.92m2
Gross floor area 190.83m2
Building scope 2F
Building to land ratio 42.65%
Floor area ratio 77.52%
Completion 2021
Principal architect Hyungeun Park
Construction Brand Housing
Photographer Kyung Roh
해당 프로젝트는 리빙즈, 디테일 03호에 게재되었습니다.
The project was published in LIVINGS, Detail 03
[BOOK] LIVINGS, Detail 리빙즈, 디테일 03호, 04호
<LIVINGS, Detail 리빙즈, 디테일 03호, 04호> 72개의 형태와 라이프스타일을 담은 주거공간, 국내외 “디테일한 주택 프로젝트”의 엮음 매월 국내외 다양한 건축물들을 소개해 온 <월간 건축문화>가 <
www.masilwide.com
'Architecture Project > Single Family' 카테고리의 다른 글
| HOUSE IN CHIKUSA (0) | 2022.05.19 |
|---|---|
| HOUSE JIPYEONG (0) | 2022.05.17 |
| ONGI HOUSE (0) | 2022.05.13 |
| ONE HOUSE (0) | 2022.05.12 |
| MONTAUK HOUSE (0) | 2022.05.11 |
마실와이드 | 등록번호 : 서울, 아03630 | 등록일자 : 2015년 03월 11일 | 마실와이드 | 발행ㆍ편집인 : 김명규 | 청소년보호책임자 : 최지희 | 발행소 : 서울시 마포구 월드컵로8길 45-8 1층 | 발행일자 : 매일



