
A house of unified divisions
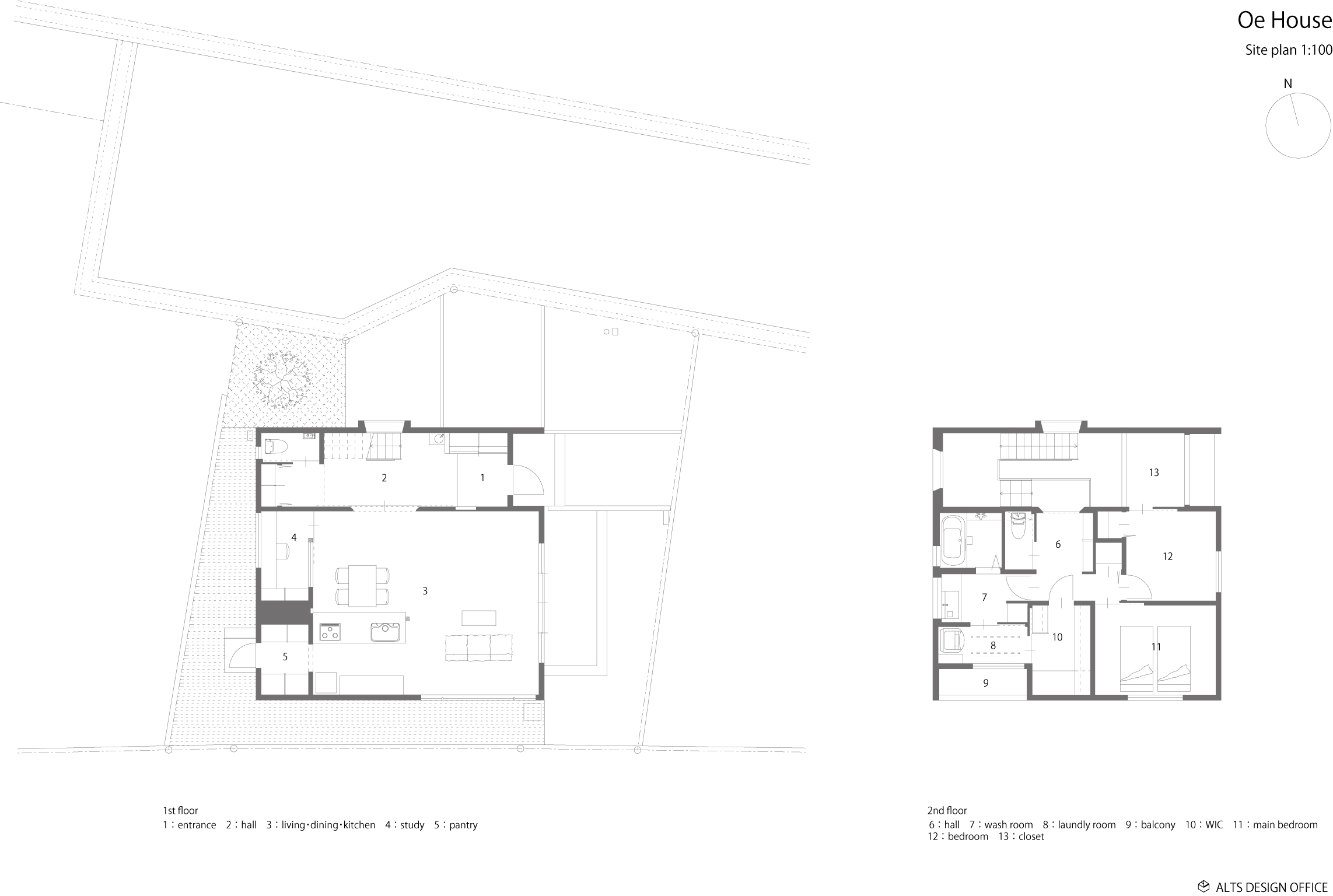
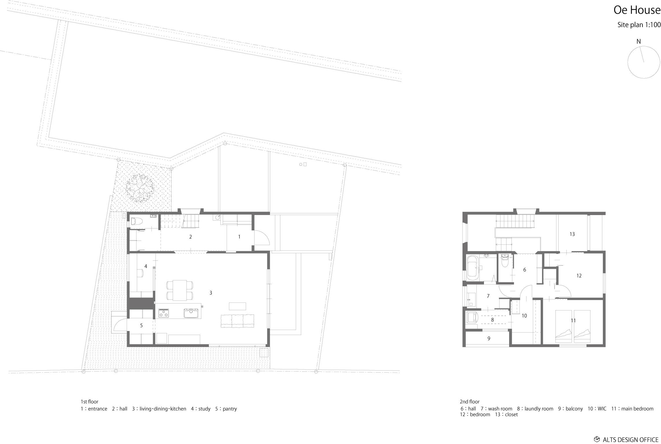
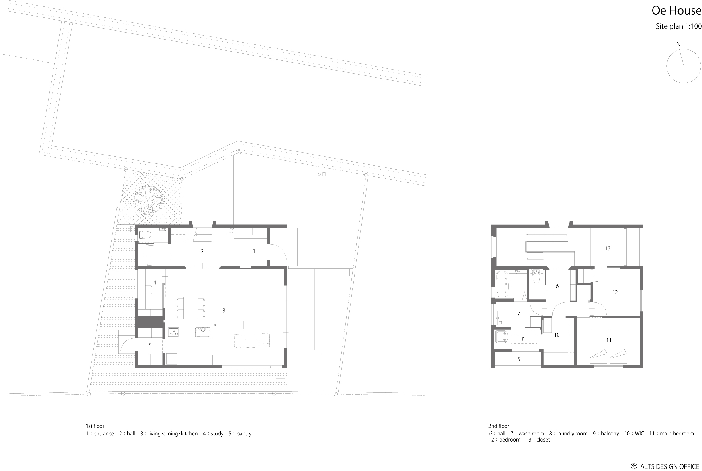
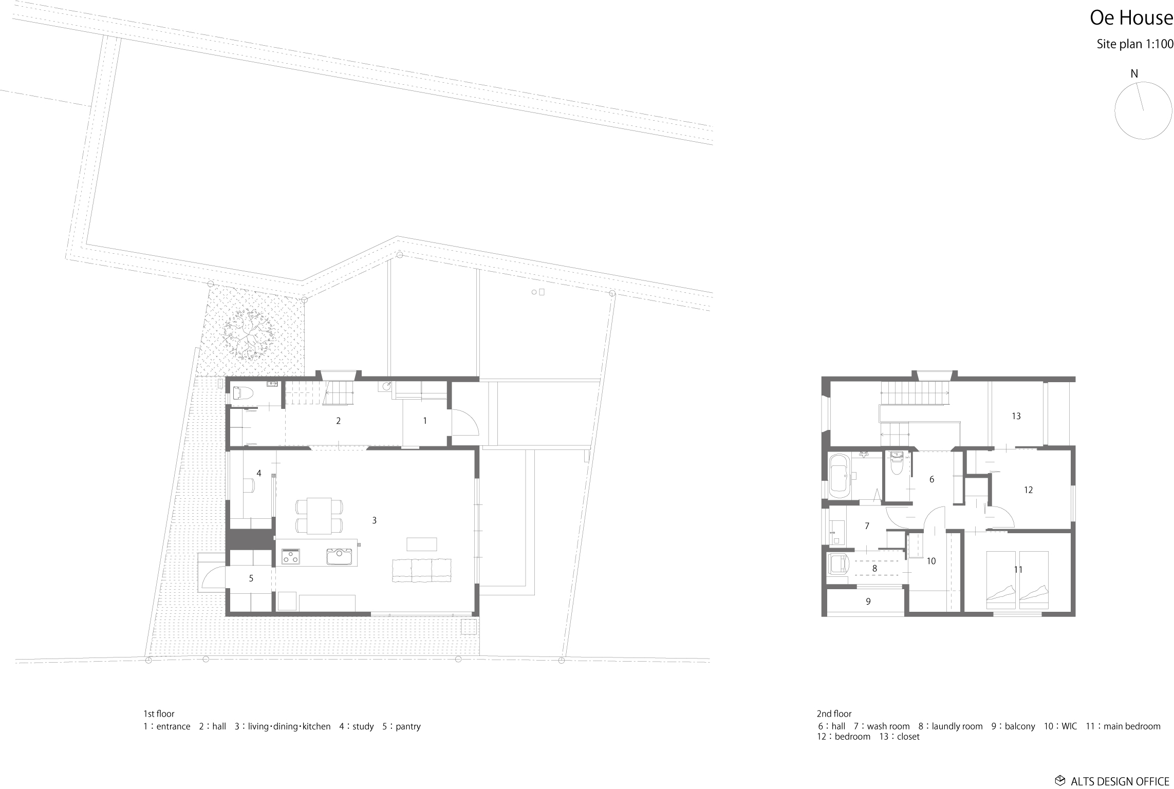
This reconstructed house is located in an old residential neighborhood. The north side of the house faces a street and the other three sides are facing neighbors’ houses, which made it challenging for us to open up the space to the outside. Thus, our focus was to design a comfortable interior space. The entrance and the living space are intentionally separated in a way that one can feel both outside and inside at the entrance. Our intention is to create a “comfortable disorder” and a unique connection between interior, exterior, and somewhere in between. The entrance has a kind of stillness reminiscent of a museum. A door to the living space cuts out from the entrance in a square shape, and the atmosphere changes by the color of the sky or the shape of the clouds. The two entrances (to outside and to the living space) are designed to be identical, which creates continuity between interior and exterior. The house is designed so that people pay attention to the landscape outside that is cut into a square by the windows, and to the ambience that changes over time with the seasons and daily natural lighting. Through this, we hoped to encourage the resident to feel the richness of sensory experiences within their home.

오헤 하우스는 오래된 주택가에 재축된 프로젝트다. 집의 북쪽은 길가에, 나머지 세 면은 이웃집과 마주 보고 있어 공간을 외부에 개방하기가 어려운 상황이었다. 건축가는 편안한 실내 공간을 디자인하는 데 중점을 두면서, 출입구와 생활 공간은 출입구에서 외부와 내부를 모두 느낄 수 있도록 의도적으로 분리하는 방법을 택했다. ‘편안하기 위한 약간의 불편함’은 오헤 하우스의 큰 특징으로 내부와 외부, 그리고 그 중간 공간에 독특한 연결고리다. 입구는 마치 박물관을 방불케 하는 정적이 감돌지만, 주생활 공간으로 향하는 네모난 모양의 문은 하늘의 색깔이나 구름의 모양에 따라 분위기가 바뀐다. 두 개의 출입구(외부 및 거실 공간)는 똑같은 형태로 내부와 외부 사이에 연속성이 된다. 창문에 의해 정사각형으로 깎인 바깥 풍경과 계절과 일상적인 자연조명과 시간에 따라 바뀌는 분위기를 만들어낸다.










Architects ALTS DESIGN OFFICE
Location Shiga, Japan
Site area 168.56㎡
Building floor area 63.34㎡
Gross floor area 116.14㎡
Completion 2019. 11
Principal architect Sumiou Mizumoto
Photographer Yuji Matski
해당 프로젝트는 리빙즈, 디테일 03호에 게재되었습니다.
The project was published in LIVINGS, Detail 03
[BOOK] LIVINGS, Detail 리빙즈, 디테일 03호, 04호
<LIVINGS, Detail 리빙즈, 디테일 03호, 04호> 72개의 형태와 라이프스타일을 담은 주거공간, 국내외 “디테일한 주택 프로젝트”의 엮음 매월 국내외 다양한 건축물들을 소개해 온 <월간 건축문화>가 <
www.masilwide.com
'Architecture Project > Single Family' 카테고리의 다른 글
| DONGCHUN GREENHOUSE (0) | 2022.05.09 |
|---|---|
| DJ HOUSE (0) | 2022.05.06 |
| HOURGLASS CORRAL (0) | 2022.05.03 |
| HOUSE IN HOJO (0) | 2022.05.02 |
| GAHWAMANSASEONG (0) | 2022.04.29 |
마실와이드 | 등록번호 : 서울, 아03630 | 등록일자 : 2015년 03월 11일 | 마실와이드 | 발행ㆍ편집인 : 김명규 | 청소년보호책임자 : 최지희 | 발행소 : 서울시 마포구 월드컵로8길 45-8 1층 | 발행일자 : 매일



