
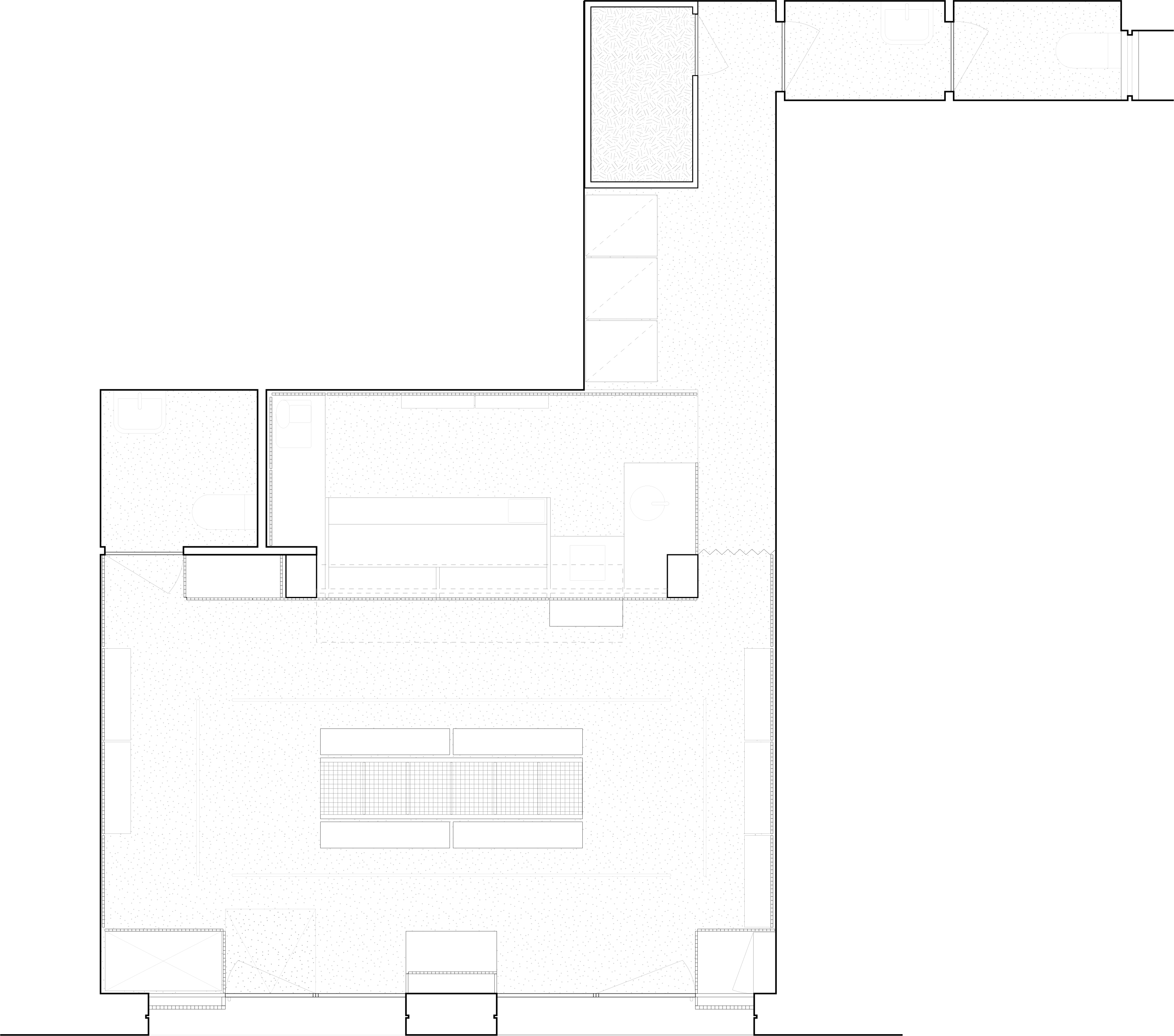
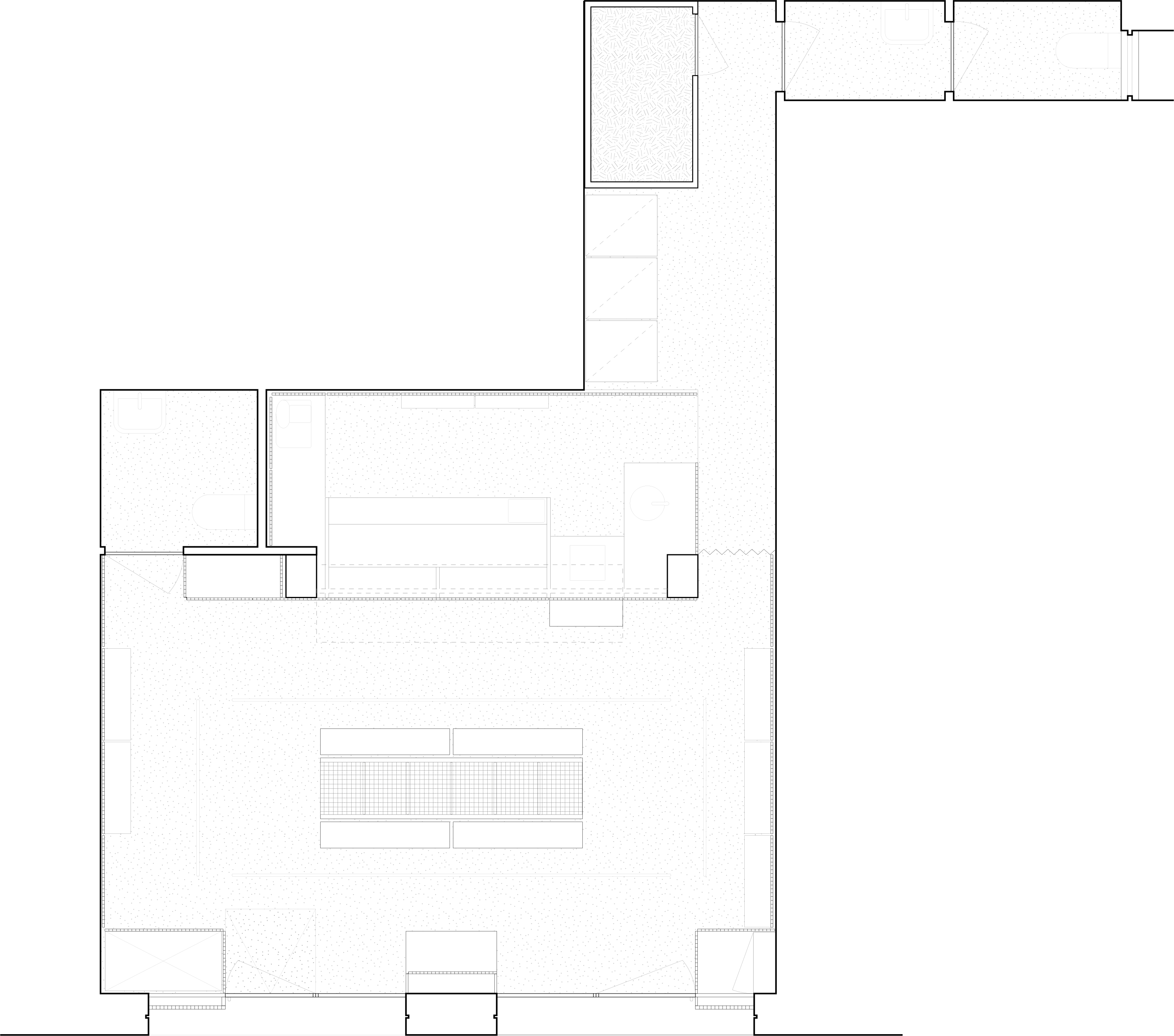
Pizzicarola is a new grocery store that opened at the beginning of 2022 in the Monteverde district of Rome. Created to respond to the changing needs related to the purchase and experience of food in the post-pandemic reality, the store intends to redefine a consolidated typology, expanding the possibilities of social and symbolic interaction between customers, space, and products. The commercial space opens to the street through two large windows, framed within a metal grid. The metal grid panels continue inside and define the perimeter of the space, completely covering it. The metal grid becomes a wall cladding, a piece of furniture, a chandelier, giving the space its distinctive character and building the infrastructure of the modular display system that develops along the walls, completely freeing the interior space of the store.

피지카롤라는 로마의 몬테베르데 지역에 2022년 초에 문을 연 새로운 식료품 가게이다. 포스트 팬데믹에서 식품 구매 및 경험과 관련된 변화하는 요구에 대응하기 위해 제작됨. 현실, 그 상점은 사회적, 상징적 가능성을 확장하면서 통합된 유형학을 재정의하려고 한다. 고객, 공간 및 제품 간의 상호 작용 상업 공간은 금속 격자 안에 있는 두 개의 큰 창문을 통해 거리로 통한다. 금속 격자 패널은 내부로 계속 이어져 공간의 둘레를 정의하며 공간을 완전히 덮습니다. 금속 격자는 벽면 피복, 가구 한 조각, 샹들리에가 돼 공간에 독특한 특성을 부여하고 벽을 따라 발전하는 모듈러 디스플레이 시스템의 인프라를 구축해 매장 내부 공간을 완벽하게 개방한다.







Design Supervoid architects
Location Roma, Italy
Gross floor area 62㎡
Project architect Benjamin Gallegos Gabilondo, Marco Provinciali, Livia Mazzochetti
Completion 2022
Photographer Giorgio De Vecchi
'Interior Project' 카테고리의 다른 글
| INOUR MANSION (0) | 2022.08.03 |
|---|---|
| Graphics (0) | 2022.08.02 |
| Milmila (0) | 2022.06.23 |
| COMPAC SHOWROOM (0) | 2022.06.14 |
| Studio Seitz (0) | 2022.06.13 |
마실와이드 | 등록번호 : 서울, 아03630 | 등록일자 : 2015년 03월 11일 | 마실와이드 | 발행ㆍ편집인 : 김명규 | 청소년보호책임자 : 최지희 | 발행소 : 서울시 마포구 월드컵로8길 45-8 1층 | 발행일자 : 매일



