
密謐阿_milmila
At the end of the hill passing through the busy streets of Itaewon, the site with an exceptionally calm atmosphere between narrow residential areas is located "Deep Silence Hill, 阿_밀_Milmua." Located on a high hill overlooking the city, this space was prepared by Master Yogakula Kim Sei, who hosts the Korea Yoga Conference and the Global Yogamala Project, for the education of yoga leaders. Yoga School, which means to be together, is a community that wants to train and gain inspiration and energy based on the Priya Yoga philosophy. Priya means to welcome and accept the divine energy of a person's Atman (nature, self, soul) as it is.
Modern people are in need of warm and heartfelt touches. The essential meaning of yoga to "control the mind and control movement to return to the natural calm mind of humans" is to read human energy to help the body align and communicate through intuition, healing life and restoring healthy relationships.
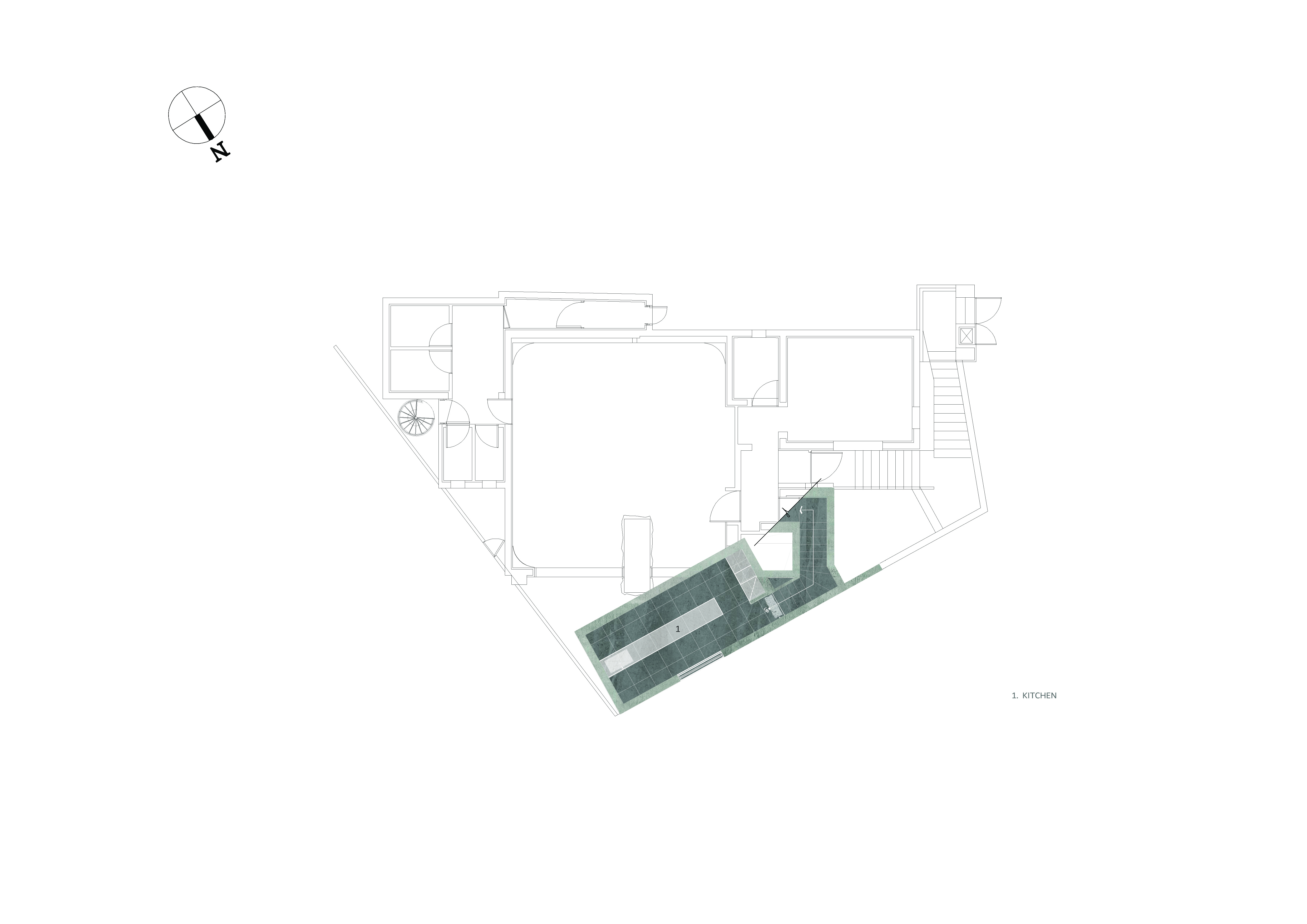
To realize this space through the essential meaning of yoga, we focused on reflecting the sequence of space by dividing the flow and depth of space into eight stages of Ashtanga Yoga_Moving meditation into largely ethical, physical, and psychological stages.
The ethical stage refers to the difficult step toward this place, the stage of purification (Yama, Nyama) that witnesses and enters the space at the end of the alley. A straight block of metal seen between steep slopes and disordered buildings leads to a long line of movement with an 'I' shaped wall. The metal blocks are connected from the outside to the inside, erasing the city's landscape with steps and inducing it to enter the space quietly with the depth of the outline of light and shadow. This leads to the entrance of the indoor space, and by homogenizing the inside and the outside, it is meaningful to erase the boundary and penetrate and reflect each other.
The space of the physical stage refers to the stage of controlling the senses (Asana, Pranayama, and Pratayahara). This space reflected the physical properties of the calmly refined 의 so that it could focus on the bonding and communication of the self, and expressed its energy with stone to give it a centripetal role. The soft elements, heavy objects, and the flexibility of the boundaries where nature interacts help you experience the flexibility of the body and the opening of emotions.
Finally, the space of the psychological stage is a space of Sammae_Three의, that is, a space of quiet appropriate_靜의 that does not have its own character and shines only as an object. This concept was reflected in the bath space and meditation space, which emphasized the power and atmosphere of the empty space, homogenizing nature and objects, and creating a lyric space where the boundary between consciousness and unconsciousness creates an intersection of thoughts.

깊은 고요의 언덕, 密謐阿_밀밀아
이태원의 번화가를 지난 언덕의 끝, 좁은 주택가 사이에 유난히 차분한 분위기를 가진 터에 ‘깊은 고요의 언덕, 密謐阿_밀밀아’가 자리한다. 도시가 내려다보이는 높은 언덕에 위치한 이 공간은 코리아 요가 컨퍼런스와 글로벌 요가말라 프로젝트를 주최하고 있는 요가쿨라 김세이 마스터가 요가지도자들의 교육을 위해 마련한 공간이다. 마음의 공동체, 함께하다는 의미를 가진 요가쿨라는 프리야 요가 철학을 바탕으로 수련하며 영감과 에너지를 얻고자 하는 공동체이다. 프리야란 사람의 아트만(본성, 자아, 영혼)이 갖고 있는 신성한 에너지를 있는 그대로 환영하고 받아들인다는 의미를 담고 있다.
현대인들은 따뜻하고 진심 어린 손길에 궁핍해있다. ‘마음을 조절하고 움직임을 억제하여 인간 본연의 고요한 마음으로 돌아가는 상태’로 가고자 하는 요가의 본질적 의미는 사람의 에너지를 읽어 신체의 바른 정렬을 돕고 직관을 통해 교감하는 과정으로 현대 사회의 신체적, 정신적인 문제와 상처를 회복함으로써 삶을 치유하고 건강한 관계를 회복시켜 삶의 질을 높이게 한다.
우리는 이 공간을 요가의 본질적인 의미를 통해 실현해보고자 'Meditation on Movement'라는 개념으로 공간의 흐름과 깊이를 아쉬탕가 요가_움직이는 명상의 8단계 수련과정을 크게 윤리적, 육체적, 심리적 단계로 구분하여 공간의 시퀀스를 반영하는데 집중했다.
윤리적 단계는 이 장소로 향하는 고단한 발걸음, 골목의 끝자락에서 공간을 목격하고 진입하는 정화(Yama, Nyama)의 단계를 의미한다. 가파른 경사와 무질서한 건물들 사이에서 목격되는 곧은 형태의 금속덩어리는 ‘I’자 벽체와 함께 긴 동선을 이끈다. 이 금속덩어리는 외부에서 내부로 연결되며, 발걸음에 따라 도시의 풍경을 지워나가고 빛과 그림자의 윤곽의 깊이로 고요하게 공간으로 진입하도록 유도한다. 이는 실내공간의 초입까지 이어지는데 내부와 외부를 동질화함으로써 그 경계를 지워 서로 투과되고 반영됨에 의미가 있다.
육체적 단계의 공간은 감각을 조절(Asana, Pranayama, Pratayahara)하는 단계를 의미한다. 이 공간은 자아의 결합과 교감에 집중할 수 있도록 차분히 가다듬은 木의 물성을 반영하고, 구심적인 역할을 부여하기 위해 石으로 그 에너지를 발현했다. 부드러운 요소와 묵직한 물체, 그리고 자연이 상호작용하는 경계의 유연함은 신체의 유연해짐과 감정의 열림을 경험할 수 있도록 돕는다.
마지막으로 심리적 단계의 공간은 삼매_三昧의 공간, 즉 자신의 성질은 없고 대상으로만 빛을 발하는 고요한 적정_寂靜의 공간이다. 이 개념은 목욕공간과 명상공간에 반영되었는데, 이는 텅 빈 공간의 힘과 분위기를 강조하며 자연과 오브제를 동질화하고 의식과 무의식의 경계가 사유의 교차점을 만들어내는 서정의 공간이 된다.

















Design : 100A associates
Location : Itaewon-dong, Yongsan-gu, Seoul, Republic of Korea
Site area : 165㎡
Building area : 110㎡
Gross floor area : 140㎡
Building scope : first basement level, the ground floor
Building to land ratio : 66.6%
Floor area ratio : 84.8%
Completion : 2020
Photographer : jaeyoon kim
'Interior Project' 카테고리의 다른 글
| INOUR MANSION (0) | 2022.08.03 |
|---|---|
| Graphics (0) | 2022.08.02 |
| COMPAC SHOWROOM (0) | 2022.06.14 |
| Studio Seitz (0) | 2022.06.13 |
| PIZZICAROLA STORE (0) | 2022.04.13 |
마실와이드 | 등록번호 : 서울, 아03630 | 등록일자 : 2015년 03월 11일 | 마실와이드 | 발행ㆍ편집인 : 김명규 | 청소년보호책임자 : 최지희 | 발행소 : 서울시 마포구 월드컵로8길 45-8 1층 | 발행일자 : 매일



