
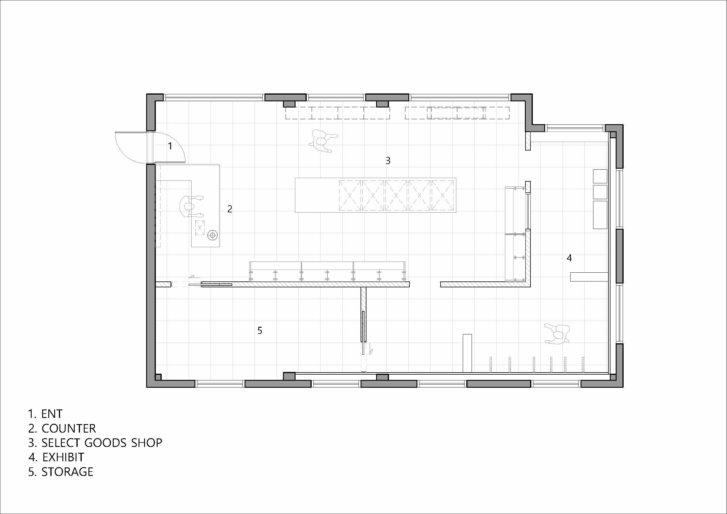
In Our Mansion, which is full of the tastes of illustrators and couples, is a cute prop shop located near Yangjae Citizen's Forest. This place, where exhibitions of the couple's works are often held, has become a showroom in the city center.
The Irish table seen from the entrance and the translucent acrylic object on it are impressive. The in-hour mansion has an impressive combination of oak wood and matte paint. The texture and color were matched with acrylic and polycarbonate materials that may feel somewhat cold to finish with a warm feeling. The design captures the stereotype of circles and squares with a matte and mysterious feeling that only translucent acrylic on the table has.
The atmosphere of the space and the contents of the space itself become the main characters. However, in the ever-changing sales and exhibition works, we sought concepts that would not only shine on the aura of the space itself, but also shine on them. The concept of Silhouette became our main direction and permeated every corner of space. For example, the works here give a different feeling depending on which direction you look at them. The silhouette of the work reflected between the polycarbonates as you enter the entrance causes visitors' curiosity rather than immediately revealing its value. The colors that spread along the unique polycarbonate grain, not just shadows, look like an abstraction from a distance. This is our wish to exquisitely express the change in revealing and covering, and at the same time, it is intended to allow visitors to look at the work in various directions. Our space adds that light to accommodate change.

일러스트 작가 부부의 취향이 듬뿍 담긴 인아워 맨션은 양재 시민의 숲 근처에 위치한 아기자기한 소품샵이다. 종종 부부의 작품 전시도 함께 열리는 이곳은 도심 속 하나의 쇼룸으로 자리 잡았다.
입구를 들어서서 보이는 아일랜드 테이블과 그 위 놓인 반투명 아크릴 오브제가 인상적이다. 오크색 우드와 매트한 도장의 조화가 인상적인 인아워맨션. 다소 차갑게 느껴질 수 있는 아크릴과 폴리카보네이트 소재에 질감과 컬러를 이와 매치시켜 따뜻한 느낌으로 마무리 지었다. 테이블 위 반투명 아크릴만이 가진 매트하고 오묘한 느낌에 원과 사각형이 주는 정형성을 디자인으로 담아냈다.
공간의 분위기, 공간의 내용 자체가 주인공이 되는 인아워맨션. 그러나 시시각각 변하는 판매품과 전시 작품들 속에서 우리는 공간 자체의 아우라뿐만이 아닌 이들을 빛나게 할 컨셉을 모색했다. 컨셉인 실루엣(Silhouette)은 이러한 우리의 주된 방향성이 되어 공간 구석구석에 스며들었다. 예를 들어, 이곳의 작품들은 어느 방향에서 바라보느냐에 따라 다른 느낌을 준다. 입구를 들어서서 폴리카보네이트 사이로 비춰지는 작품의 실루엣은 그 가치를 즉각적으로 드러내기보단 방문객의 궁금증을 유발한다. 단순한 그림자가 아닌 특유의 폴리카보네이트 결을 따라 번지는 컬러감들은 멀리서 보면 하나의 추상화같이 보인다. 이는 드러냄과 가림의 변화를 절묘하게 표현하고자 했던 우리의 바람이며, 동시에 방문객들에게 다양한 방향으로 작품을 바라볼 수 있도록 의도한 것이다. 우리의 공간은 변화를 수용할 때 그 빛을 더한다.


















Design : fratt
Location : Gangnam, South Korea
Site area : 36㎡
'Interior Project' 카테고리의 다른 글
| 에든버러 대학원생을 위한 아파트 인테리어 / Jasper Sanders + Partners (0) | 2024.12.13 |
|---|---|
| Graphics (0) | 2022.08.02 |
| Milmila (0) | 2022.06.23 |
| COMPAC SHOWROOM (0) | 2022.06.14 |
| Studio Seitz (0) | 2022.06.13 |
마실와이드 | 등록번호 : 서울, 아03630 | 등록일자 : 2015년 03월 11일 | 마실와이드 | 발행ㆍ편집인 : 김명규 | 청소년보호책임자 : 최지희 | 발행소 : 서울시 마포구 월드컵로8길 45-8 1층 | 발행일자 : 매일



