
The posture of reading books varies. So we started building by studying various positions of reading books first. Also, are windows important when reading books? Due to the nature of the site located deep in the accounting complex, the external environment was only a landscape of numerous electric cords and complex multi-family houses. This construction was developed with the sense of space and concentration for reading obtained by excluding windows, which are an important element of architecture, while only accepting light from the ceiling and walls.
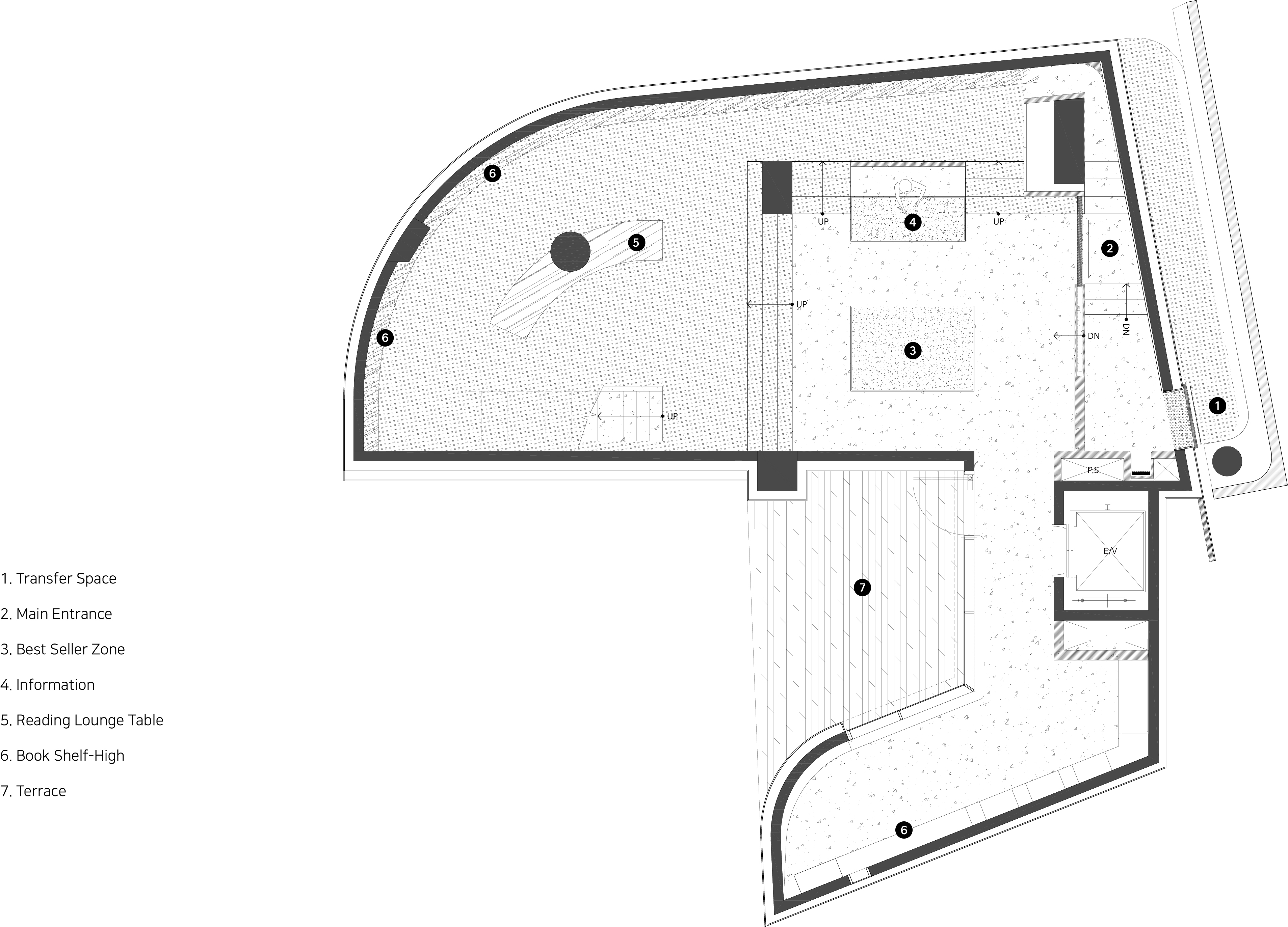
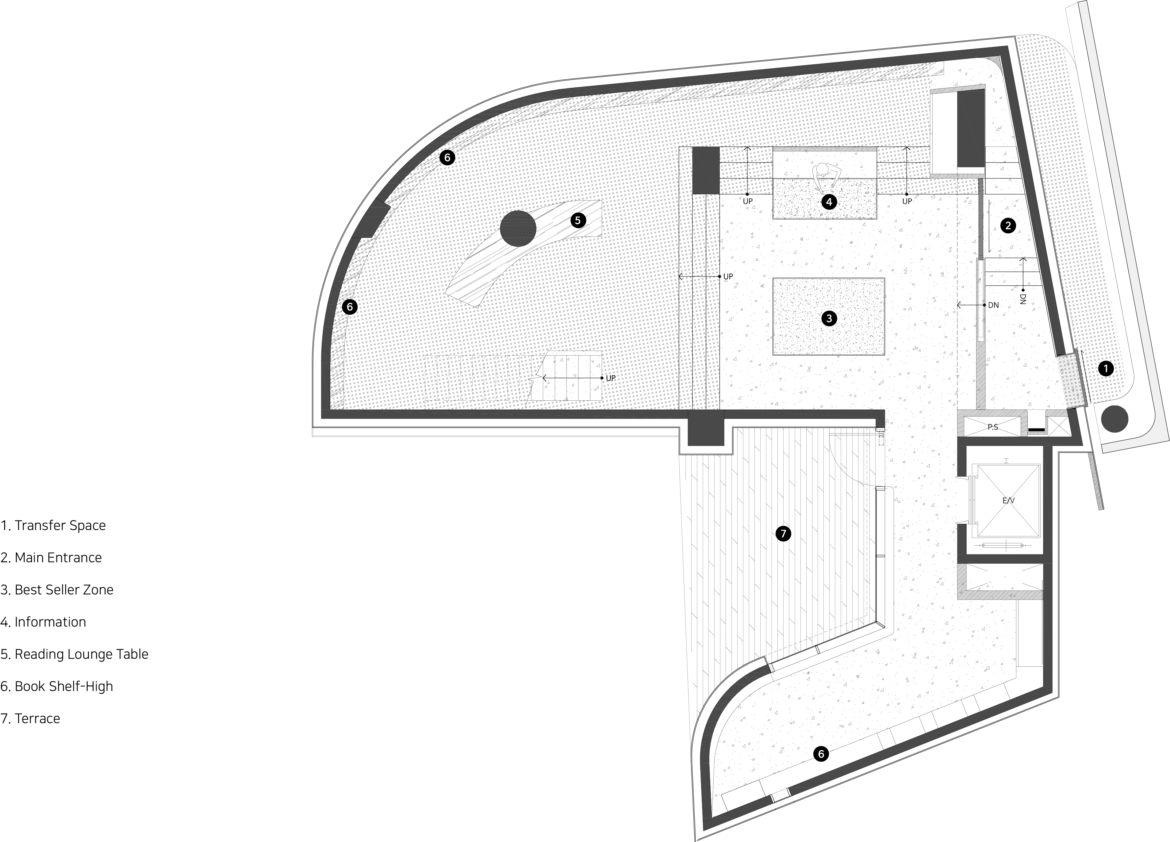
When you enter the transition space connected from the outside to the inside, books are lined up with light coming through the skylights. At the entrance, a low and wide table is arranged so that you can see the bestseller at a glance, and there is a natural straw mat on the floor, so you can enjoy reading comfortably anywhere.
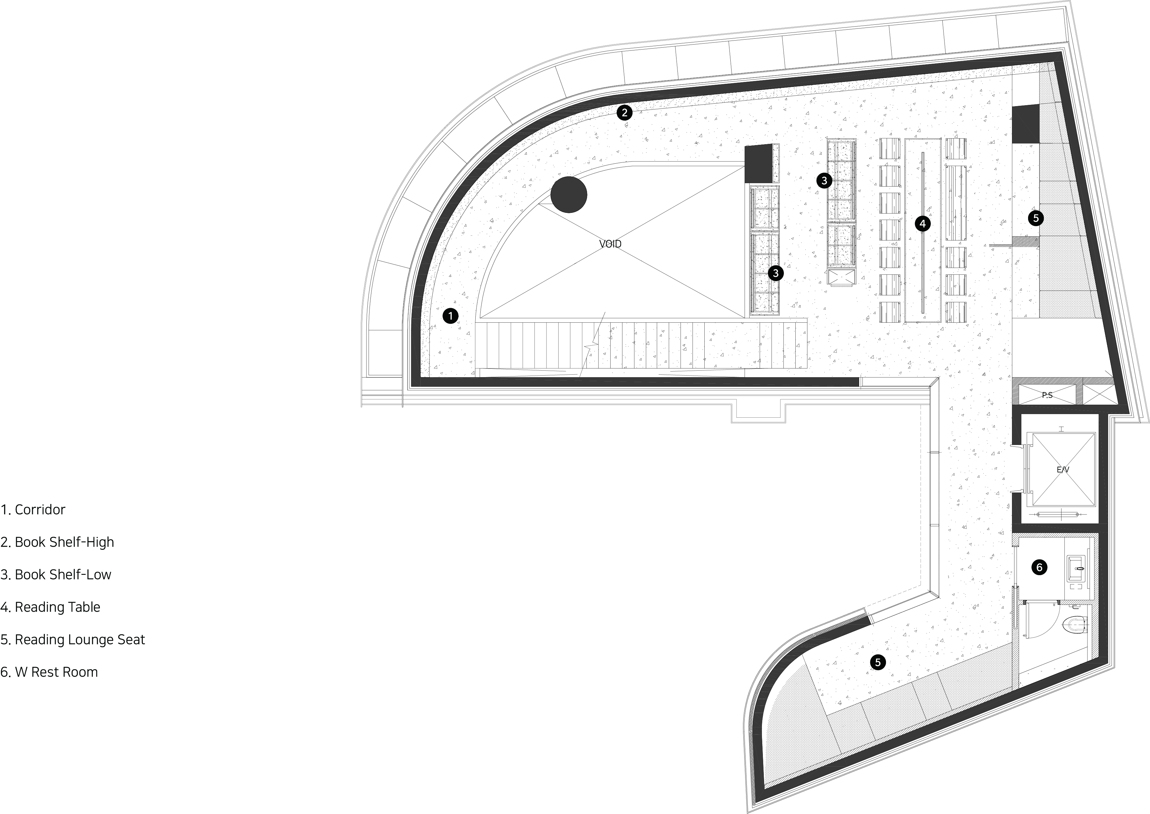
If you go up to the second floor along the pouring stick, you will arrive at a space where you can read naturally through the curved hallway. In the center, a low shelf is placed so that you can see the books placed on the wall at a glance, and in the corner space, there is a bed test for reading comfortably.
The graphic bookstore is a 'drinking comic book cafe' and the third floor is made up of liquid bars. The wall is composed of shelves to load face-off books and alcohol, and guests on the first and second floors can freely enjoy alcohol and comic books together using the self-bar.

' 술 마시는 만화방 '
책을 보는 자세는 다양하다. 그래서 우리는 책을 보는 여러 자세를 먼저 연구하여 건축을 시작하였다. 또한, 책을 볼 때 과연 창은 중요할까? 경리단 깊숙한 곳에 위치한 사이트의 특성때문에 외부의 환경은 수 많은 전기줄과 복잡한 다세대 주택들의 풍경 뿐이었다. 본 건축은 천창과 벽 틈 으로 들어오는 빛 만을 받아들이며, 오히려 건축의 중요한 요소인 창을 배제함으로써 얻어지는 공간감과 독서를 위한 집중력으로 건축을 전개하였다.
외부에서 내부로 연결된 전이공간을 따라 진입하면, 천창 사이로 들어오는 빛과 함께 책들이 줄을 이루고 있다. 입구에는 베스트셀러를 한눈에 볼 수 있게끔 낮고 넓은 테이블을 배치하였고, 바닥에는 자연 스러운 멍석이 깔려있어 어디서든 편하게 독서를 즐길 수 있다.
쏟아지는 챗살을 따라 2층으로 올라가면 곡선형 복도를 통해 자연스레 독서할 수 있는 공간에 도착한다. 중앙에는 낮은 선반을 배치하여 벽쪽에 배치된 책들을 한눈에 파악할 수 있으며, 모퉁이 공간에서는 편안히 독서할 수 있는 bed sest가 마련되어 있다.
그래픽 서점은 '술마시는 만화방' 으로 3층은 Liquid bar로 이루어져 있다. 벽에는 페이스오프된 책과 술을 적재할 수 있게끔 선반으로 구성하였고 1,2층 손님들도 자유롭게 셀프바를 이용하여 술과 만화책을 같이 즐길 수 있다.

















Design : ulab
Location : 33, Hoenamu-ro 39-gil, Yongsan-gu, Seoul
Completion : 2021
'Interior Project' 카테고리의 다른 글
| 에든버러 대학원생을 위한 아파트 인테리어 / Jasper Sanders + Partners (0) | 2024.12.13 |
|---|---|
| INOUR MANSION (0) | 2022.08.03 |
| Milmila (0) | 2022.06.23 |
| COMPAC SHOWROOM (0) | 2022.06.14 |
| Studio Seitz (0) | 2022.06.13 |
마실와이드 | 등록번호 : 서울, 아03630 | 등록일자 : 2015년 03월 11일 | 마실와이드 | 발행ㆍ편집인 : 김명규 | 청소년보호책임자 : 최지희 | 발행소 : 서울시 마포구 월드컵로8길 45-8 1층 | 발행일자 : 매일



