
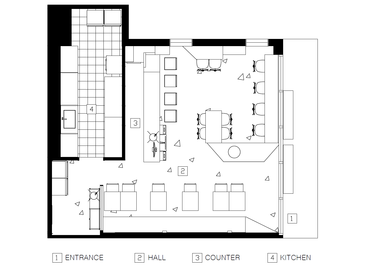
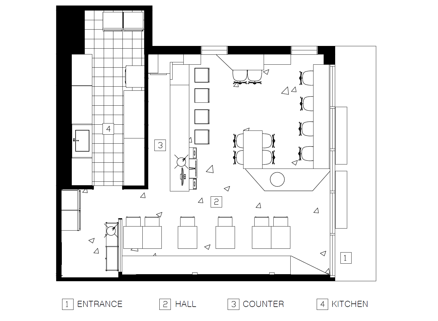
Sam joong joo(三重酒) means "clean alcohol which is filtered for three times." Along with unfamiliar Korean-based fusion foods, it offers a familiar yet different experience with various types of traditional liquor. The site with a high ceiling height was thought to be a large drawing paper that could capture the image to be expressed. The large ceiling structure seen from the front contains the frame of hieroglyphics of the store name. Traditional images were expressed by using plywood, and black-toned textures used everywhere represent modern images. The combination of achromatic colors, concrete, and wood was used to remind the image of fusion food which the brand contains.

삼중주(三重酒)는 '세번 걸러 깨끗한 술' 이라는 뜻을 담고있다. 낯설지 않은 한식기반의 퓨전 음식과 함께 다양한종류의 전통주들로 익숙하면서도 색다른 경험을 제공한다. 높은 천정고를 가진 현장은 표현하고자 하는 이미지를 담을 수 있는 큰 도화지라 생각했다. 정면에서 보이는 커다란 천정 구조물은 가게이름의 상형문자의 틀을 담아냈다. 목재 합판을 사용하여 전통적인 이미지를 표현했으며, 곳곳에 사용된 블랙 톤의 텍스처들은 현대적인 이미지를 표현한다. 무채색계열의 색상과 콘크리트, 우드의 조화는 브랜드가 담고 있는 퓨전음식의 이미지를 연상시키는 데에 사용되었다.














Design STUDIO EIGHTHOURS
Location 3-1, Buldang 31-gil, Seobuk-gu, Cheonan-si, Chungcheongnam-do, Republic of Korea
Floor area 75㎡
Construction STUDIO EIGHTHOURS
Photographer another space
'Interior Project > Cafe&Restaurant' 카테고리의 다른 글
| oooh! POKE (0) | 2022.03.28 |
|---|---|
| STANGDAL SYNDROME (0) | 2022.03.25 |
| TATD (0) | 2022.03.23 |
| HELLO, POMELO (0) | 2022.03.22 |
| IOB23 (0) | 2022.03.21 |
마실와이드 | 등록번호 : 서울, 아03630 | 등록일자 : 2015년 03월 11일 | 마실와이드 | 발행ㆍ편집인 : 김명규 | 청소년보호책임자 : 최지희 | 발행소 : 서울시 마포구 월드컵로8길 45-8 1층 | 발행일자 : 매일



