
Hello, Pomelo are projects in which buildings that have been used as factories and warehouses for more than 30 years have been reborn as local restaurants. The alley in Dangsan-dong, Yeongdeungpo-gu, where the building is located, was mainly crowded with fruit wholesalers that open at dawn, small stores in the form of logistics warehouses, and cafe-type adult entertainment venues that operate at night, so people were scarce. It is unfamiliar to have a new culture in the region, but I imagined that a dark alley would turn out to be a warm light while making use of the naturalness of the current building.
The existing building's gable roof, truss structure, some exposure to existing walls made of cement bricks, and raw finishes were selected to preserve the naturalness of the space, and larger windows and doors were built to bring a lot of light indoors in existing buildings with only functional small windows. Rather than being closed, it focused on being connected to the outside world.
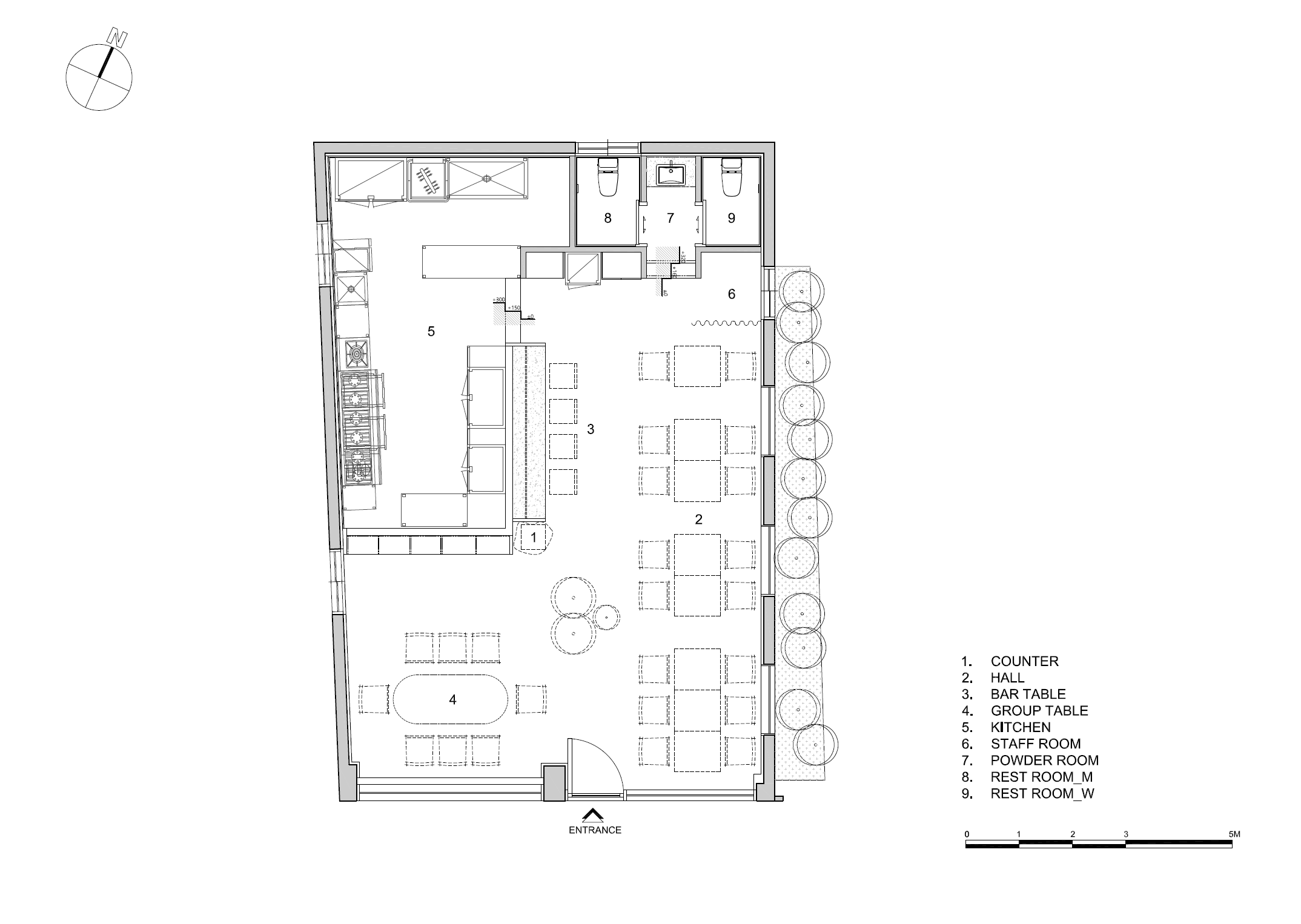
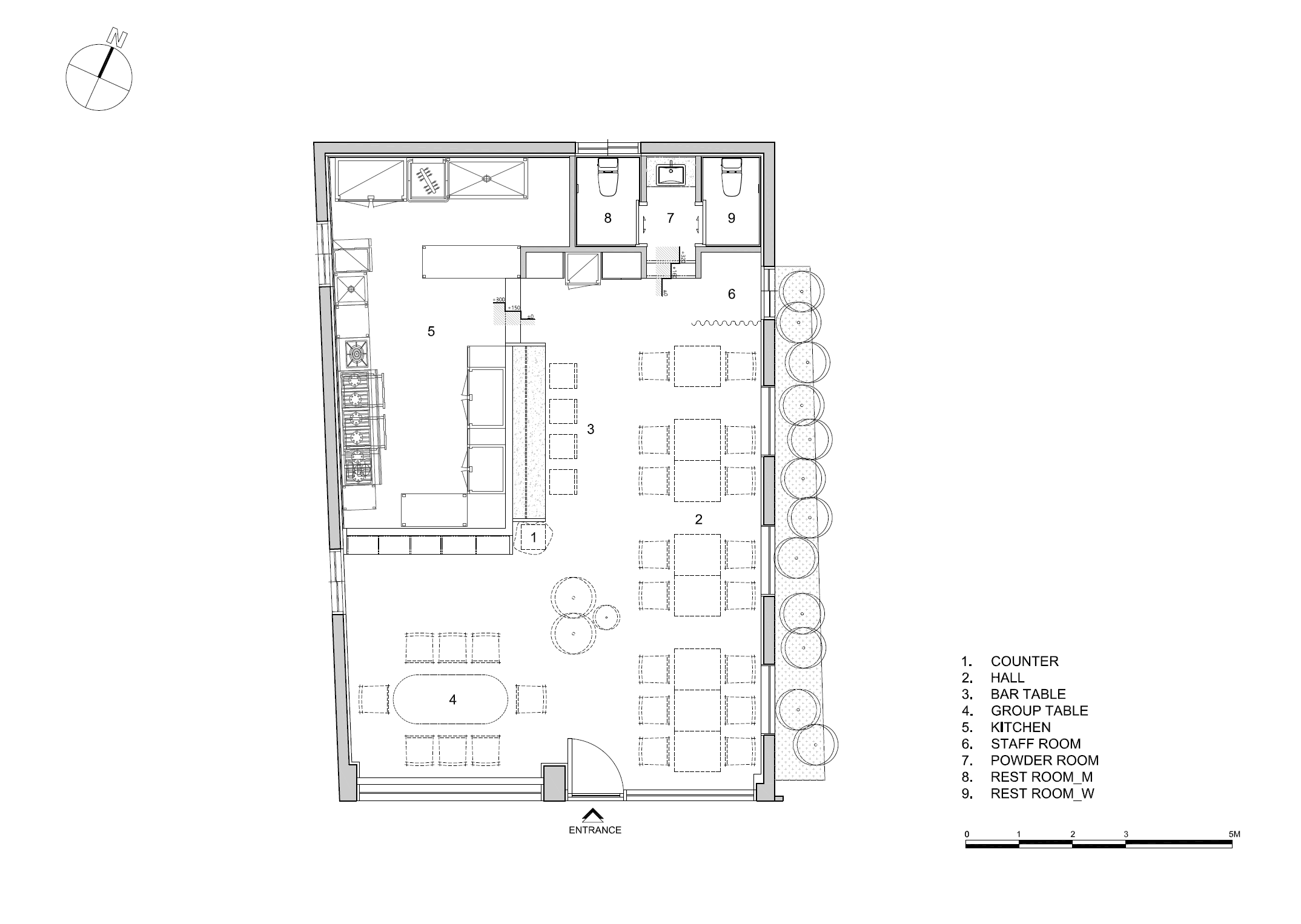
Overall, it is a dark illumination, but the face-to-face open kitchen, which is brightly created using barisol lighting, serves as a stage in the entire space with a step difference of a higher level than the hall. In particular, the harmony of sounds was important because it was an open space plan without a special wall. The location and direction of the speaker were planned in consideration of the seating arrangement, hoping that objects such as the sound in the face-to-face open kitchen, the sound of people's conversations, and the sound of tableware would not be inconvenient. And in small but well-equipped separate powder rooms and toilets, you can experience a different space for a while through another sound.

헬로, 포멜로는 30여년간 공장과 창고로 쓰이던 건물이 지역의 레스토랑으로 재탄생한 프로젝트다. 건물이 위치한 영등포구 당산동 골목은 주로 새벽에 문을 여는 청과물 도매상, 물류창고 형식의 작은 점포들, 주로 밤에 영업하는 카페형의 퇴폐업소들이 밀집해 있어서 사람의 인적이 드문 편이었다. 지역에 새로운 문화가 들어온다는 것은 낯선 일이지만, 현재 건물의 자연스러움을 살리면서 어둑한 골목이 따듯한 빛으로 밝혀지는 상상을 해봤다.
기존 건물이 가지고 있던 박공 지붕과 트러스 구조, 시멘트 벽돌로 만들어진 기존 벽의 일부 노출, 그에 맞는 로우(Raw)한 마감재를 선정하며 공간의 자연스러움을 살리고, 기능적인 작은 창들만 있던 기존 건물에서 많은 빛을 실내로 들이기 위해 더 큰 창문과 문을 만들었다. 폐쇄적이기보다는 외부와 연결 되는 것에 중점을 두었다.
전체적으로 어두운 조도이지만 바리솔 조명을 이용하여 밝게 연출된 대면형의 오픈 주방은 홀보다 높은 레벨의 단 차이로 전체 공간에서 무대와 같은 역할을 한다. 특히, 특별한 벽이 없는 열린 공간의 평면 계획이었기에 소리의 어우러짐이 중요했다. 대면형 오픈 주방에서의 소리, 전체 분위기를 위한 음악 소리, 사람들의 대화 소리, 식기류 등의 사물들이 부딪혀서 나는 소리가 불편한 소음이 되지 않기를 바라며 좌석 배치를 고려하여 스피커의 위치와 방향 등을 계획하였다. 그리고 작지만 잘 갖춰진 분리된 파우더룸과 화장실에서는 또 다른 소리를 통해 이 모든 것과 잠시 다른 공간을 경험하게 한다.










Design studio commongood
Location 5, Dangsan-ro 18-gil, Yeongdeungpo-gu, Seoul, Republic of Korea
Building area 89.68㎡
Gross floor area 89.68㎡
Building scope 1F
Design period 2020. 07 - 2020. 09
Construction period 2020. 09 - 2020. 10
Completion 2020. 10.
Design team studio commongood (Minsun Kim, Youngil Kim, Chiyoung Shin)
Construction J's room
Client ROMOR
Photographer Namsun Lee
'Interior Project > Cafe&Restaurant' 카테고리의 다른 글
| SAM JOONG JOO (0) | 2022.03.24 |
|---|---|
| TATD (0) | 2022.03.23 |
| IOB23 (0) | 2022.03.21 |
| Cafe OOO (0) | 2022.03.18 |
| Clair's patisserie (0) | 2022.03.17 |
마실와이드 | 등록번호 : 서울, 아03630 | 등록일자 : 2015년 03월 11일 | 마실와이드 | 발행ㆍ편집인 : 김명규 | 청소년보호책임자 : 최지희 | 발행소 : 서울시 마포구 월드컵로8길 45-8 1층 | 발행일자 : 매일



