
"My home 30 years ago".
Currently, Daecheon-dong was a city area in Boryeong in the past, but when Daecheon Station moved to Naehang-dong in 2007, it naturally became an old city. Nevertheless, the barista, who spent 20 years in Seoul after spending his childhood and school days in Daecheon-dong, wanted to return to his hometown and share memories of his old house. We tried to tell the story of the time and memories of this old house in space. The name was borrowed from 108-23 to IOB23 for its not overpainted beauty and temporality in an old space such as Wabisabi.
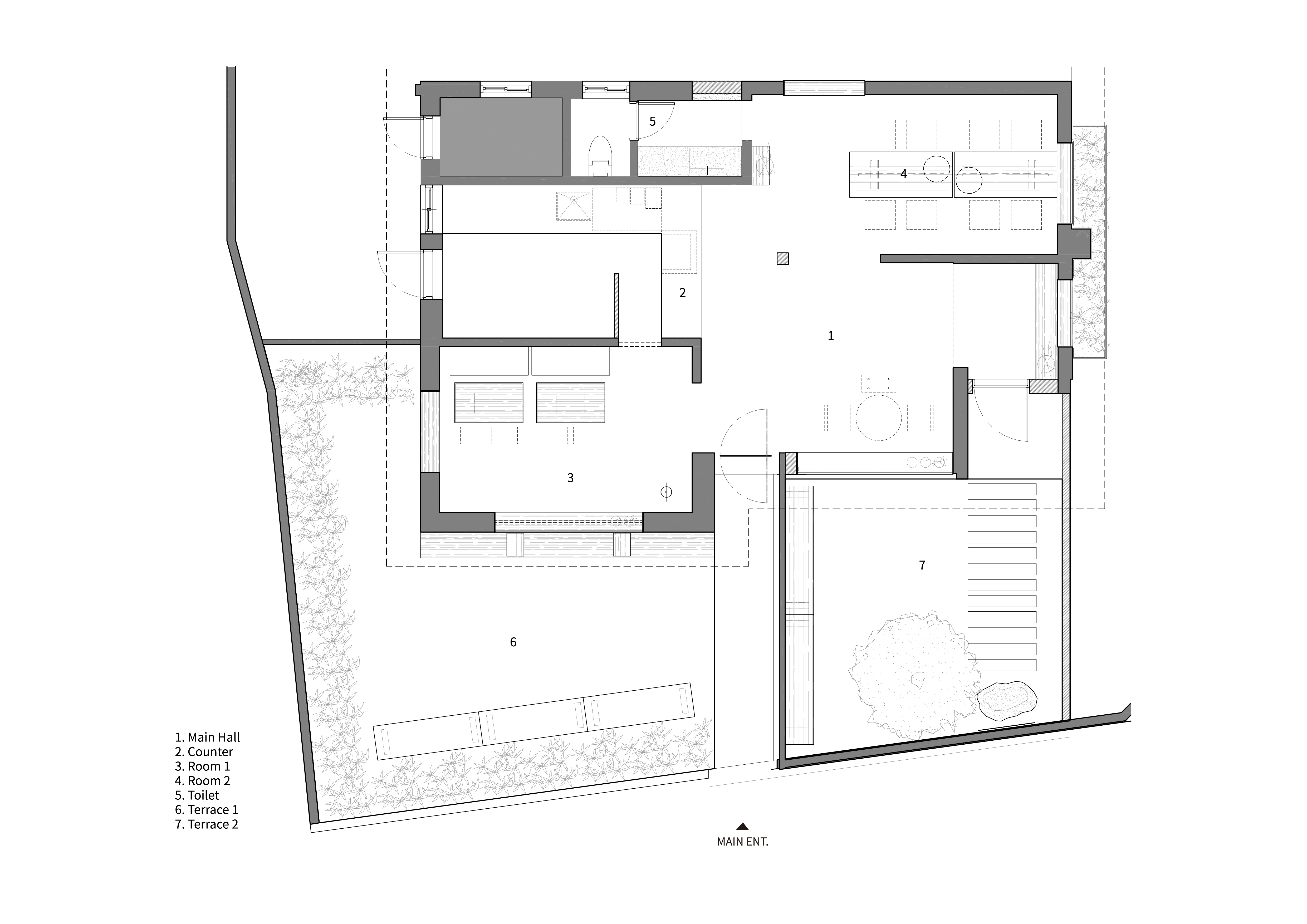
The wall (Open Garden)
The old and high walls were demolished and natural walls were built. The space visible through the tree forest obscures the boundaries by enabling free internal and external communication. This creates an open space, and over time, the shadows of trees are expressed on existing brick walls, playing a role in sharing the timeliness of old and new walls. The shadow of the tree located in the southwest direction came in with the smell of grass depending on the amount of sunlight. Repeat disappearing.
Private Garden.
The wall on the left was demolished and related to the inside, and the right side was created as a private garden by preserving the existing wall. This garden, which is connected to the inside, preserves the 30-year-old quince tree as it is and inadvertently arranges rubble and long benches. This tree serves as the central axis of the garden and implies the coziness of nature and old timeliness. The garden, consisting of a single tree and a wall, is designed as a garden that can communicate with nature, the sky, cut off from the outside.
Interior
The interior floor, walls, and ceiling finish preserved the existing concrete finish after demolition. The wall that can reach a person's hand or body was finished with a Staco coating that most resembles concrete, not a white or clean coating that removes traces of the past. The design of light also excluded stimulating hidden lights and direct installed lights as much as possible, maintained minimal illumination with a Gat lamp using fabric, and pursued the same comfort as a lamp in the past. In particular, in summer, lights with regulators were used to make darker. This place, which used to be a small room, uses the window of the room to share the nature of the open garden and does not specifically design it. It only arranged sofas and stools made of old old wood with a time of about 50 years. The space, which used to be a large room, has a house on the back of the building, showing sunlight and opaque nature using translucent glass and protecting privacy. The bathroom was made of a washbasin with concrete-like finish that appeared after using or demolishing gravel in the yard.
As such, IOB23 expressed time as an aesthetic moment by breaking down the boundary between the past and the present. Decoration shows the trees that have been in place for a long time from a new perspective through natural windows without much decoration, and the finishing material pursued the aesthetics of natural and old things by using existing concrete and recycling or repairing old trees and furniture.

“30년 전 나의 집”
현재 대천동은 과거 보령의 시가지였으나 2007년 대천역이 내항동으로 위치를 옮기면서 자연스럽게 구시가지가 되었다. 그럼에도 불구하고 대천동에서 유년시절과 학창시절을 보낸 뒤 서울에 올라와 20년의 시간을 지낸 바리스타는 다시 고향으로 돌아와 오래된 집의 추억을 공유하고 싶었다. 우리는 이 오래된 집이 가지고 있는 시간과 추억에 대한 이야기를 공간에 풀어보고자 했다. 와비사비와 같은 오래 된 공간에 덧칠하지 않은 아름다움과 그 시간성들을 표방하여 네이밍도 108-23번지에서 IOB23으로 차용하여 사용했다.
담(오픈 가든)
오래되고 높은 담을 허물고 자연의 담을 세웠다. 나무 숲 사이로 보이는 공간은 내부와 외부의 자유로운 소통이 가능하도록 하여 경계를 모호하게 한다. 이는 열린 공간을 창출하기도 하며 시간의 흐름에 따라 나무의 그림자들이 기존의 벽돌 담에 표현되어 오래된 담과 새로운 담의 시간성을 공유하는 역할을 한다. 남서향에 위치한 나무의 그림자는 햇빛의 양에 따라 나무의 풀냄새를 품고 들어왔다 사라지고를 반복한다.
프라이빗 가든
좌측의 담은 허물어 내부와 관계를 맺고 우측은 기존의 담을 보존하여 프라이빗 가든으로 조성했다. 내부로 들어오면 연결되는 이 정원은 30년 된 모과나무를 그대로 보존하고 잡석들과 긴 벤치를 무심히 배치했다. 이 나무는 가든의 중심축이 되어주며 자연의 아늑함과 오래된 시간성을 내포해준다. 한 그루의 나무와 담으로 이루어진 이 정원은 외부와 단절된 채 하늘이라는 자연과 교감할 수 있는 정원으로 설계했다.
내부
내부의 바닥, 벽체, 천장 마감은 철거 후 기존의 콘크리트 마감을 그대로 보존했다. 사람의 손이나 몸에 닿을 수 있는 벽체는 과거의 흔적이 제거되는 백색이나 깨끗한 도장이 아닌 콘크리트와 가장 흡사한 스타코 도장으로 마감했다. 빛의 설계도 자극적인 매입등이나 직부등을 최대한 배제하고 패브릭을 이용한 갓등으로 최소한의 조도를 유지하며 과거의 등불과 같은 편안함을 추구했다. 특히, 여름에는 어둡게 하기 위해 조절기가 설치된 조명을 이용했다. 작은방이었던 이 곳은 방의 창문을 이용해 오픈정원의 자연을 공유하고 있으며 특별히 디자인을 하지 않았다. 50년 정도의 시간성을 가지고 있는 오래 된 고재목들을 이용하여 제작한 소파와 스툴을 배치했을 뿐이다. 큰방이었던 공간은 건물의 후면에 주택이 있어 반투명 유리를 이용하여 햇빛과 불투명한 자연을 보여주며 프라이버시는 보호해 주고 있다. 화장실은 마당에 있던 자갈들을 이용하거나 철거하고 나타난 콘크리트와 같은 마감으로 세면대를 제작했다.
이렇듯 IOB23은 과거와 현재라는 시간의 경계를 허물어 시간을 미학적인 순간성으로 표현했다. 데코레이션은 별다른 치장 없이 자연의 창을 통해 오래전부터 자리에 있던 나무들을 새로운 시각으로 보여주며, 마감재는 기존에 존재하던 콘크리트를 이용하고, 오래된 나무와 가구를 재활용하거나 고쳐 쓰는 방법으로 자연스럽고 오래된 것의 미학을 추구했다.








Design Jungbae Shin(NONESPACE)
Location 10823, Daecheon Boryeong-si, Chungcheongnam-do, Republic of Korea
Building area 67㎡
Design team Yourim Lee, Jihoon Park, Yeonje Lee
Floor Epoxy
Wall Paint
Ceiling Concrete
Construction NONESPACE
Photographer Jungbae Shin(NONESPACE)
'Interior Project > Cafe&Restaurant' 카테고리의 다른 글
| TATD (0) | 2022.03.23 |
|---|---|
| HELLO, POMELO (0) | 2022.03.22 |
| Cafe OOO (0) | 2022.03.18 |
| Clair's patisserie (0) | 2022.03.17 |
| ANGEL IN ISLAND (0) | 2022.03.16 |
마실와이드 | 등록번호 : 서울, 아03630 | 등록일자 : 2015년 03월 11일 | 마실와이드 | 발행ㆍ편집인 : 김명규 | 청소년보호책임자 : 최지희 | 발행소 : 서울시 마포구 월드컵로8길 45-8 1층 | 발행일자 : 매일



