
Walk along a quiet pond. The afterimage of sunlight on the shaking waves seems to be constantly talking. Suseongmot and the zelkova tree located there for a long time protect the resting road so that it is not lonely. The sound of birds chirping and the sound of reeds hitting can be felt particularly loud. The water in contact with the sky is open without knowing the boundary. Among them, a small island floats in the sky. I felt that was enough. We tried to capture the nature of Suseongmot Lake in space without revealing the brand Angel in us.
When you think of a general franchise space, you are busy talking about yourself. The standardized frame is difficult to give people newness. When changes were needed, the essence we thought of was not a brand, but a 'place. I tried to show the 'unusual' scene of the everyday place where I used to walk in nature under the name of 'Angel in us.' The sky reflected in the water, shaking leaves, and the sway of the original fire on the water. The experience of looking at familiar things unfamiliarly meant the expansion of senses and the breakaway from the brand. (These factors) evoke a new perspective on the scene that continues continuously without going against the place and its relationship.
I imagined a small island floating on the water. The angel, who came down to deliver the gift of God, falls in love with the beautiful Suseongmot, cultivates a garden for the gods and serves coffee, a gift from God. This small island is a garden of angels containing the nature of Suseongmot and a space containing the stories of angels who wanted to resemble the vastly spread water and sky. The first verse of the space was recited through the reflective material in front of the facade. The expressions of the sky and water that change every moment, and the atmosphere at that time, become a new material and make the space colorful. It was intended to feel an endless sense of space like a mysterious island floating in a hole, and to show the natural scenery contained by emptying.
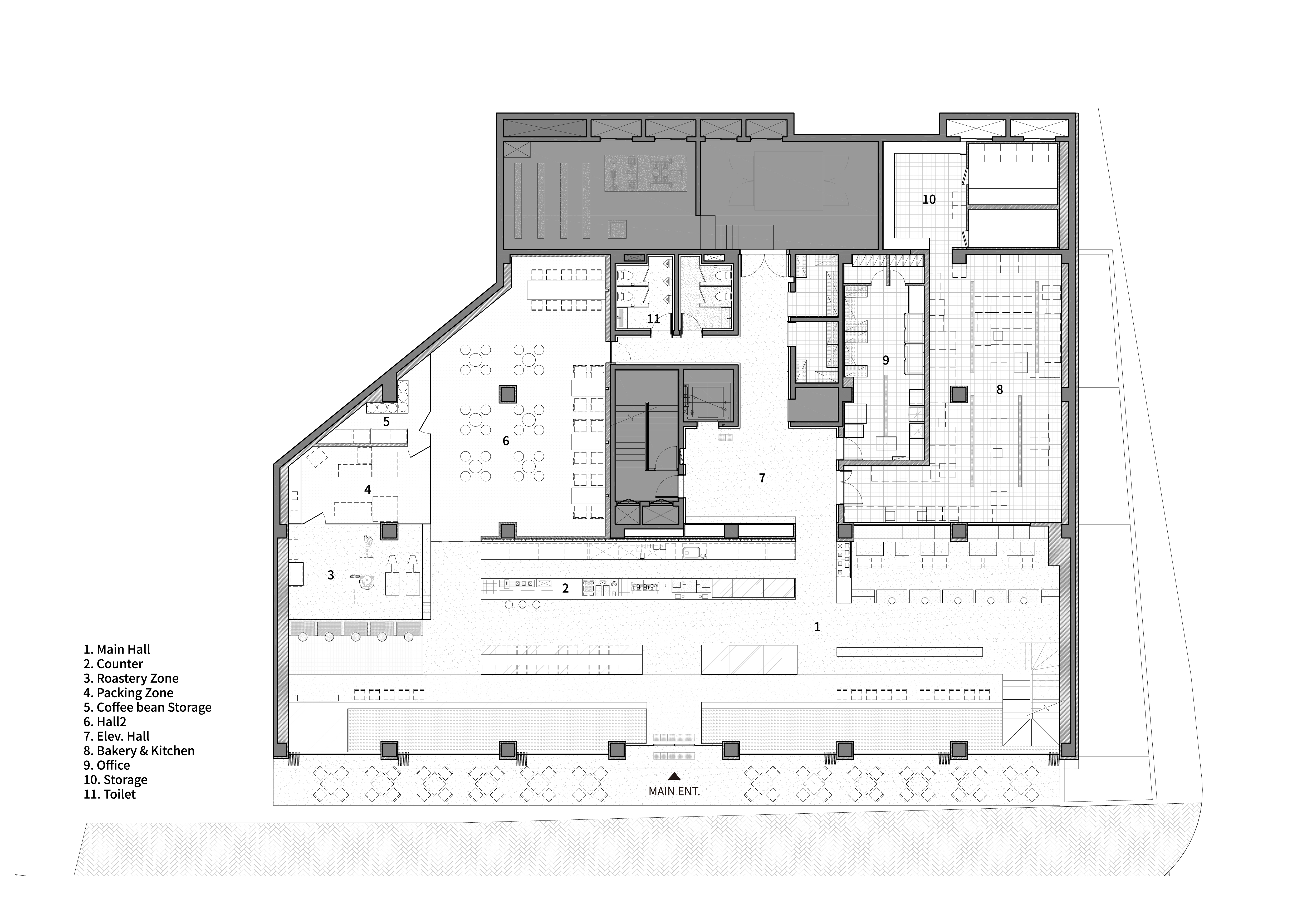
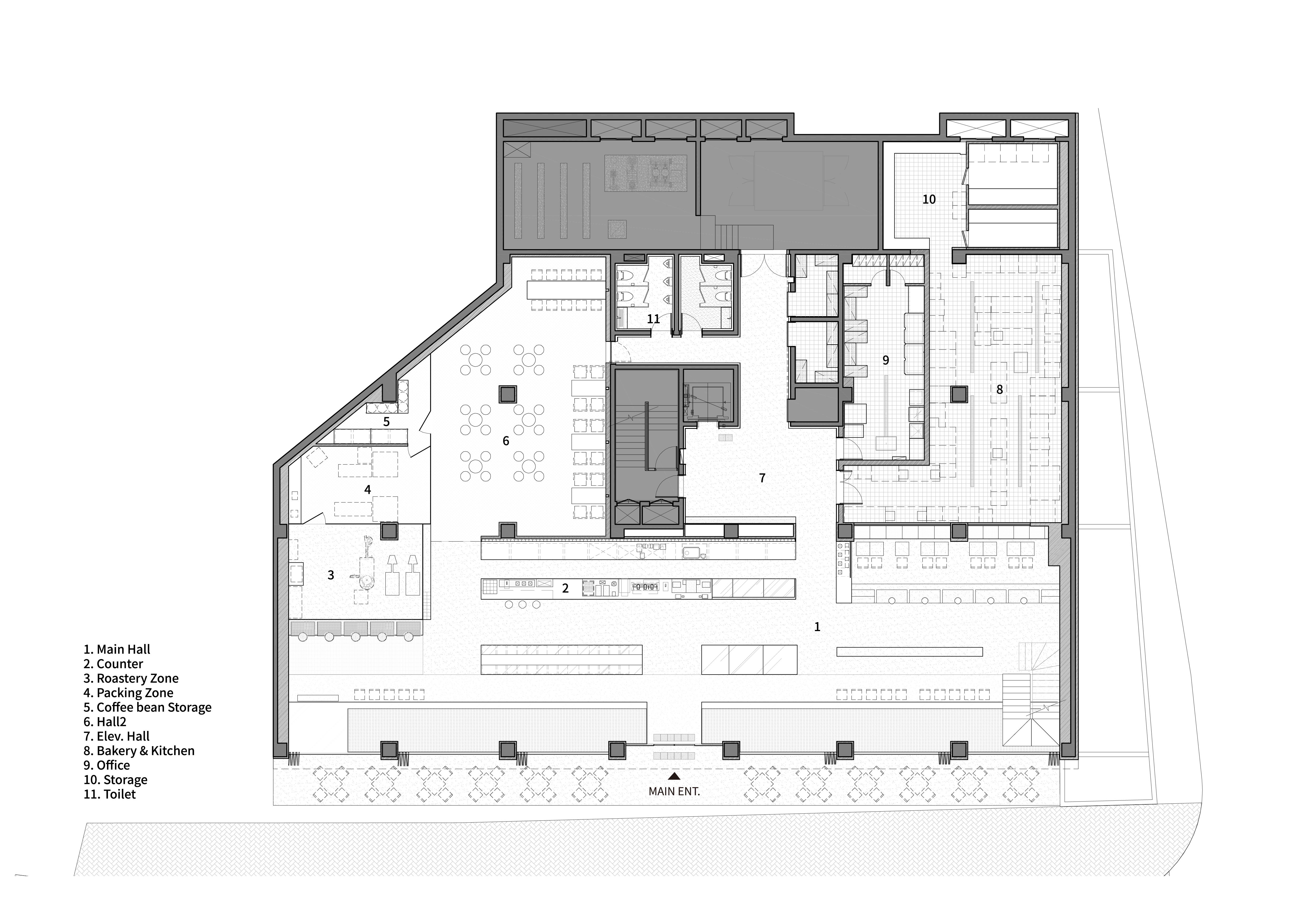
1F Welcoming
Walking in along the floating waterway, you face the illusion of angels. The irregular arrangement of small lights forms a huge mass and gives a sense of rhythm. The lights reflected on the ceiling and water change over time, as if they were disappearing underwater. The lights resonate in the space. The long water space, which resembles a horizontal still water pond, is finished with a black reflective material and contrasts with the color of the inside. The familiar scenery of Suseongmot Lake and small lights were reflected in the water space to create an unusual space, and it was divided into a daily aesthetic space overlooking the space. It allowed nature to enter the space through water as a medium. It contains nature in the space created by the blurring of the boundaries inside and outside, and a seat where you can contemplate while looking at the nature. In order not to disturb the gaze of the person behind, the seats composed of steps allow you to look at the nature of Suseongmot.
1F Counter
Against the backdrop of media art resembling a horizontal long water space, it was intended to have a hydrological effect that changes over the wall.
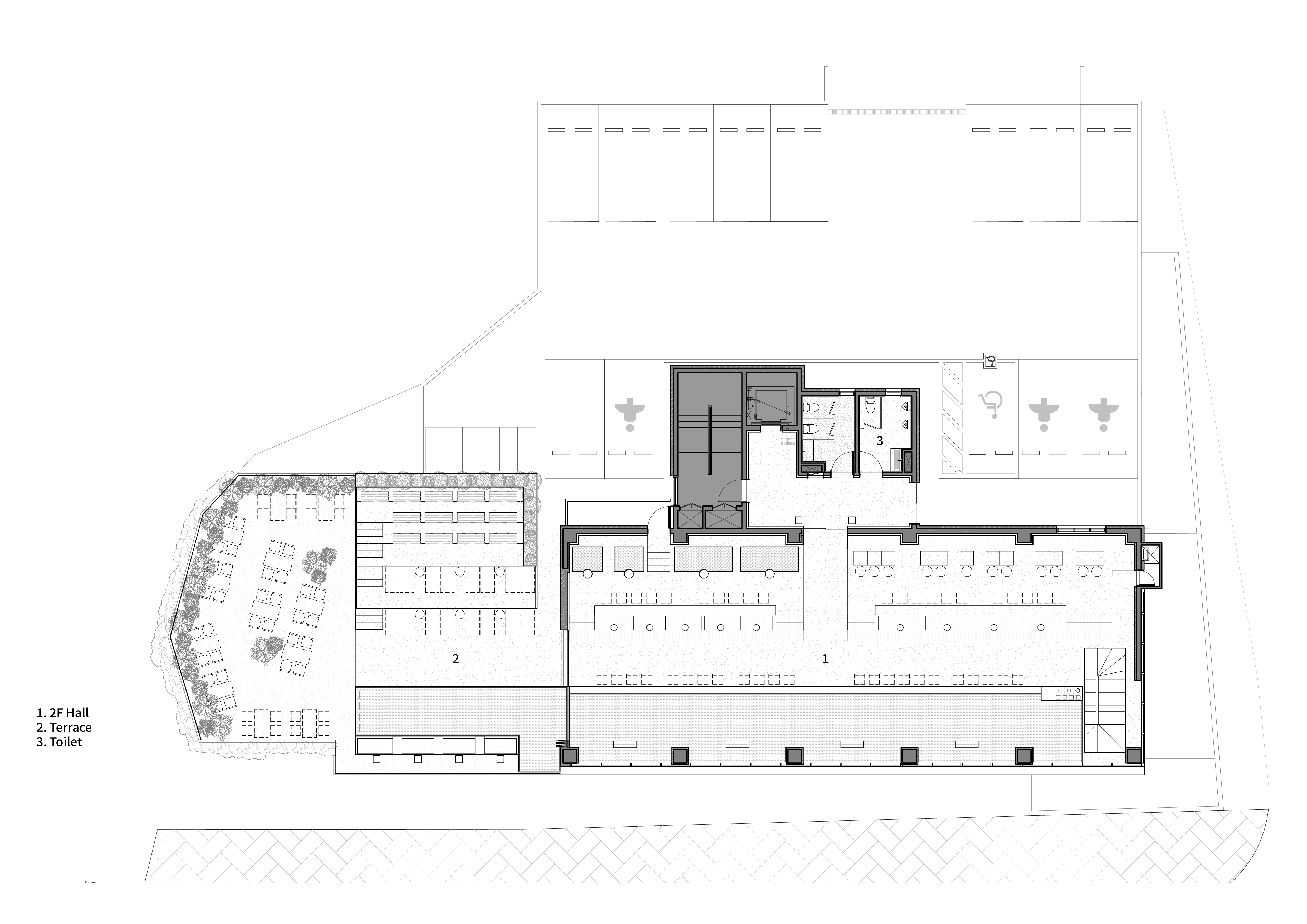
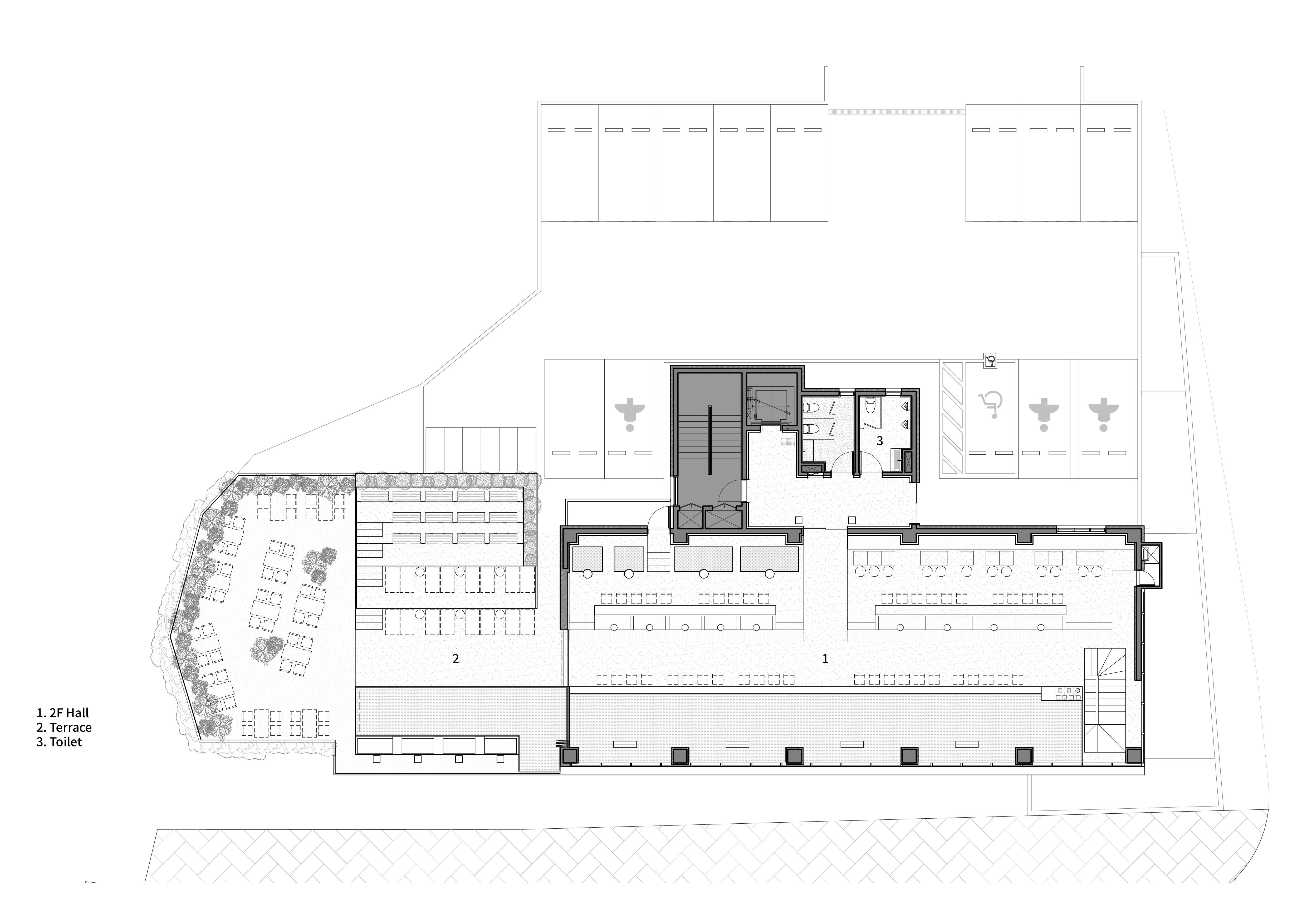
2F A piece of wing
The second floor water space, which can only contain the natural sky and the aqueous pond, utilizes the reflective material of the ceiling to further maximize its effect. It was planned as a space where you can contemplate the movement of fire and water over time. The original sway of fire floating on the water provides an unrealistic experience. Like the first floor, the terraced seats allow you to look at Suseongmot, and on top of them is an art piece shaped like the wings of an angel. Below that, there are seats that people can enjoy comfortably.
TERRACE Garden of angels
The water space on the terrace is connected to the water space on the second floor to maintain the continuity and flow of the space. It can be used as a stage space by planning a device that can function variably in it, becoming a vessel containing nature where water rises, and flowing water. Like the inner hall seats, terraced seating arrangements have secured a view for people to look at nature. On the back, unnecessary gaze was blocked through bamboo planting, and a garden was cultivated inside the terrace so that you could feel nature closely.
The scenery I was looking at while walking through Suseongmot seems to continue in space, but it is unrealistic like an island floating on the water. By looking at familiar places and brands unfamiliarly, it was intended to expand the spatial experience and break away from the frame of "Angel in us."

호젓한 못을 따라 걷는다. 흔들리는 물결 위의 햇빛의 잔상은 끊임없이 말을 걸어오는 듯하다. 수성못, 그 곳에 오래도록 자리한 느티나무는 쉬어 가는 길이 외롭지 않도록, 그 곁을 지켜준다. 새들이 지저귀는 소리, 갈대가 부딪히는 소리가 유독 크게 느껴진다. 하늘과 맞닿은 물은 경계도 모르고 열려 있다. 그 가운데 작은 섬이 천공에 떠있다. 그것으로 충분하다 느꼈다. 우리는 엔제리너스라는 브랜드를 드러내지 않고, 공간 안에 수성못의 자연을 담고자 했다.
일반적인 프랜차이즈 공간을 떠올리면, 본인들의 이야기를 하기에 바쁘다. 정형화된 프레임은 사람들에게 새로움을 주기에 어렵다. 변화가 필요할 때 우리가 생각한 본질은 브랜드가 아닌 ‘장소’였다. 자연 속을 거닐며 머물던 일상적인 장소의 ‘비일상적’인 장면을 ‘엔제리너스’라는 이름으로 보여주고자 했다. 물에 비치는 하늘과 흔들리는 나뭇잎, 물 위의 원초적인 불의 일렁거림. 익숙한 것들을 낯설게 바라봄으로써 오는 경험은 감각의 확장과 브랜드의 탈피를 의미했다. (이러한 요소들은) 장소와 그 안에서의 관계에 어긋나지 않으면서, 연속적으로 이어지는 장면을 새로운 시선으로 바라보도록 환기한다.
물 위에 떠있는 작은 섬을 상상했다. 신의 선물을 전하러 내려온 천사는 아름다운 수성못에 반해 이곳에 신들을 위한 정원을 가꾸고 신의 선물인 커피를 대접한다. 이 작은 섬은 수성못의 자연을 담은 천사들의 정원이자, 광활하게 펼쳐진 물과 하늘을 닮고 싶던 천사들의 이야기가 담긴 공간이다. 파사드 전면의 반사 소재를 통해 공간의 첫 소절을 읊었다. 시시 때때 변하는 하늘과 물의 표정, 그 때의 분위기는, 새로운 소재가 되어 공간을 다채롭게 만들어준다. 천공에 떠있는 신비의 섬처럼 끝없이 확장된 공간감을 느끼는 것을 의도했고, 비움으로써 담기는 자연의 경관을 보여주고자 했다.
1F 환영
떠 있는 물길을 따라 걸어 들어오며 천사들의 환영을 마주한다. 작은 불빛의 불규칙적인 배열은 하나의 거대한 매스를 형성하며 리듬감을 준다. 천장과 물에 비친 불빛은 물속에 아스라히 사라지는 듯, 시간의 흐름에 변화한다. 불빛들은 공간 안에 운율이 되어 아른거린다. 수평의 고요한 수성못과 닮은 긴 수공간은, 블랙 반사 소재로 마감되어 내부의 미색과 대비된다. 익숙한 수성못의 풍경과 작은 불빛들은 수공간에 반사되어 비일상적인 공간을 연출했고, 그 공간을 바라보는 일상의 미색 공간으로 구분 지었다. 그 안에 물을 매개체로 자연이 공간 안에 들어오도록 했다. 내 외부의 경계가 모호해짐으로써 생기는 공간에 자연을 담고, 그 자연을 바라보며 사색할 수 있는 좌석을 구성했다. 뒷사람의 시선을 방해하지 않도록 계단식으로 구성된 좌석은 수성못의 자연을 바라볼 수 있게 했다.
1F 카운터
수평의 긴 수공간을 닮은 미디어 아트를 배경으로, 벽면 위로 변화하는 수문 효과를 의도했다.
2F 날개의 조각
오로지 자연의 하늘과 수성못을 담을 수 있는 2층 수공간은 천장의 반사 소재를 활용하여, 그 효과가 더욱 극대화된다. 불과 물의 시간의 흐름에 따른 움직임을 관조하며 사색할 수 있는 공간으로 계획했다. 물 위에 떠있는 원초적인 불의 일렁거림은 비현실적인 체험을 제공한다. 1층과 마찬가지로, 계단식으로 구성된 좌석들은 수성못을 바라볼 수 있게 되어있고, 그 위에 천사의 날개를 형상화한 아트피스가 있다. 그 아래 사람들이 편안하게 즐길 수 있는 좌석이 있다.
TERRACE 천사들의 정원
테라스의 수공간은 2층의 수공간과 이어져 공간의 연속성과 흐름을 유지한다. 그 안에서 가변적인 기능을 할 수 있는 장치를 계획하여, 물이 차오르는 자연을 담는 그릇이 되고 물을 흘려보내면 무대 공간으로 활용할 수 있다. 내부 홀 좌석과 마찬가지로, 계단식 좌석 배치를 통해 사람들이 자연을 바라볼 수 있도록 시야를 확보했다. 후면에는 대나무 식재를 통해 불필요한 시선을 차단했으며, 테라스 안에 정원을 가꾸어 자연을 가까이에서 느낄 수 있도록 의도했다.
수성못을 거닐면서 바라보던 풍경이 공간 안에서 이어지는 듯하지만, 물 위에 뜬 섬처럼 비현실적이다. 익숙한 장소와 브랜드를 낯설게 바라봄으로써 오는 공간 경험의 확장과 ‘엔제리너스’의 프레임 탈피를 의도했다.






















Design Jungbae Shin(NONESPACE)
Location 76, Yonghak-ro, Suseong-gu, Daegu, Republic of Korea
Building area 1,260㎡
Design team Yourim Lee, Soyeon Ham(NONESPACE)
Floor Miicrete, Black stone
Wall Black sus, Mirror sus, Special paint, Fabric grass
Ceiling Special paint, Black sus, Super mirror, Sus vibration
Construction BOB PLAN
Photographer Haneol Kim
'Interior Project > Cafe&Restaurant' 카테고리의 다른 글
| Cafe OOO (0) | 2022.03.18 |
|---|---|
| Clair's patisserie (0) | 2022.03.17 |
| Korean Cuisine and Dining (0) | 2022.03.11 |
| PAGA MICROROASTERY (0) | 2022.03.04 |
| Chapter 9 Café (0) | 2022.03.03 |
마실와이드 | 등록번호 : 서울, 아03630 | 등록일자 : 2015년 03월 11일 | 마실와이드 | 발행ㆍ편집인 : 김명규 | 청소년보호책임자 : 최지희 | 발행소 : 서울시 마포구 월드컵로8길 45-8 1층 | 발행일자 : 매일



