
There is an aesthetic regarding the idea of “slowness” in the story of “Korean Cuisine and Dining”, a food documentary. The harmony of special recipes of each different region, ingredients that harbor seasonal and regional characteristics, and vinegar, salted-fish, paste, and pickled vegetables which has a thousand-year history provides time for relaxation and healing to modern people who live a busy daily life. Cooking rice requires time of waiting while having an empty bowl. The space is similar to how the original taste of the ingredients disappear when the seasoning is strong. “Korean Cuisine and Dining” pursues a simple and natural design through nothingness rather than lavish ornaments, and through emptying the Korean traditional place like how nature and humans were drawn in and communicated, instead of embodying the superficial imitation of the traditional space, we intended to embody the actual identity.
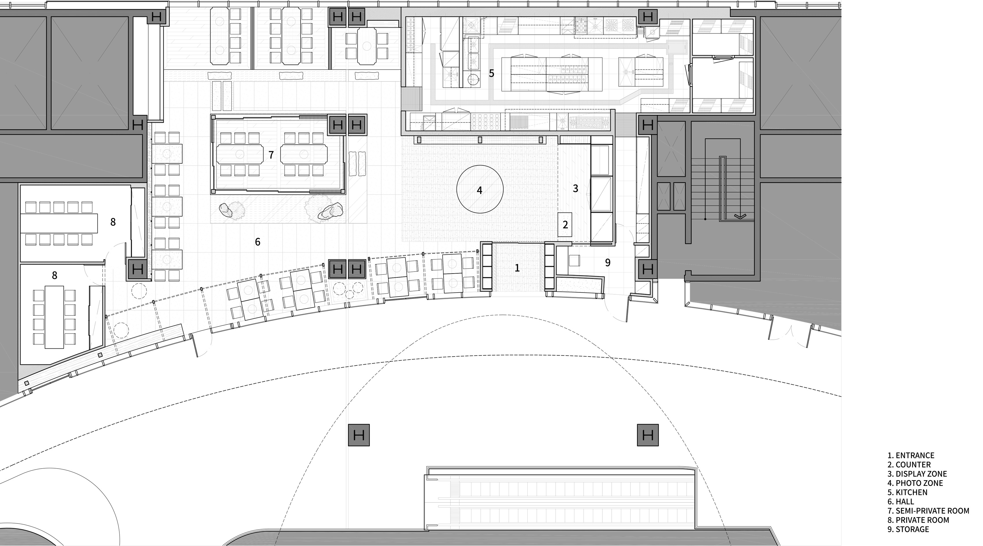
Entrance
The entrance is a space meeting the kitchen without any ornaments, and exhibits placing the moon jar used to contain paste or salted fish used in the past practical life. For the flooring, even though there is a door for Hanok kitchen, considering the fact that it is connected to the exterior, earth is made of gravel and bricks material, this implies that customers can enter unconstrained and communicate through demonstrating the interior and blurring the interior boundary.
Interior
Once you go into the actual interior, you are encountered with the ceramic objects made by the artist Hyeon Jung Lee. This object is rough like the white porcelain dish but possesses the naturalness that anyone can get along with. The delicacy of the color “white” from the white porcelain is not just a simple color but symbolizes an infinite space. Above the dish, there is an art piece that embodies rice which contributes to the richness of our dining table.
Room
In the center of the space, there is a room that is floating above water. It is a space where the concept of room and house is harbored and plays the role of connecting the back part of the space which plays the role of the floor, the water space of the front part and nature, and the surrounding environment (object). This symbolizes an open space where superposition and interpenetration are done through an ambiguous boundary. The door of this room becomes the wall like how the Korean Architecture does not distinguish the interior and exterior space. With an open structure, when the door opens, the interior and exterior space penetrates. Instead of space division, it becomes part of the whole and draws in the exterior nature into the interior. Functionally, it is open in the daytime, and anyone can use it as seats, and at night it can be used privately through the reservation system. The Hanok room is a minimal space but like how it had various acts, it is functional and economic, and intended to break away from the simple function of the room by connecting with the exterior.
Ink-and-wash painting space
Instead of completely blocking space to space, for spaces that are functionally eye-catching, we protect the privacy by adopting the concept of our ink-and-wash painting which harbors emptiness and leisure, and we applied the concept of leisure or pale Indian ink on the rest of the spaces. The superpositioned landscape adds richness instead of cross-section and demonstrates a diverse and abundant sequence that looks different depending on the position.
In this way, the “Korean Cuisine and Dining” is a place where the mind is at peace due to the presence of water and trees, light and shadow, ink-and-wash painting and white porcelain. We designed by embodying the concept of the white porcelain like how “existent” derives from “non-existent”, and the color “white” is not just a simple color but symbolizes “infinite possibility”, which is simple but valuable.

푸드멘터리 ‘한국인의 밥상’의 감성적 이야기 안에는 느림의 미학이 있다. 각 지방만의 특별한 조리법, 사시사철과 지역성을 품은 재료, 천년의 역사를 지닌 식초, 젓갈, 장, 지의 조화는 바쁜 일상 속 현대인들에게 휴식과 힐링의 시간을 선사한다. 밥을 짓는다는 것은 그릇을 비운 채 기다림의 시간이 필요한 법이고, 조미료가 강하면 재료 본연의 맛이 사라지는 것처럼 공간 또한 그렇다. ‘한국인의 밥상’과 같은 화려한 치장보다는 무위를 통한 담백하고 자연스러운, 소박하고 자유로운 디자인을 추구하고, 한국 전통 공간이 비움으로써 자연과 사람을 끌어들여 소통했던 것처럼, 전통 공간의 표피적인 모사가 아닌 실재적인 정체성을 담으려 했다.
입구
입구는 부엌과 맞닿아 있는 공간으로 아무 장식이 없는, 과거 실생활에서 장이나 젓갈 등을 담는 달항아리를 배치하여 전시했고, 이는 한국인의 밥상이 지닌 컨텐츠(장, 젓갈 등)의 진정성을 내포하고 있다. 바닥재는 한옥의 부엌이 문은 있지만 외부와 연결되어 있던 점에 착안하여 흙으로 만든 벽돌 소재와 자갈을 사용했고, 이는 내부를 스스럼 없이 보여주어 외부와 내부의 경계를 모호하게 하여 고객들이 자유롭게 드나들거나 소통할 수 있음을 의미한다.
내부
실제 내부에 들어서면 이헌정 작가의 도자 오브제와과 마주한다. 이 오브제는 하얀 백자사발 그릇처럼 투박하지만 누구와도 어울릴 수 있는 자연스러움을 지니고, 백자의 은은한 백색은 단순한 색이 아닌 비어 있는 무한한 공간을 상징한다. 그릇 위에는 우리네 밥상의 풍요로움을 더하는 쌀을 형상화 한 아트피스가 있다.
방
공간의 중심에는 물 위에 떠 있는 하나의 방이 존재한다. 방과 채의 개념을 담은 곳으로 마루의 역할을 띄는 후면의 공간, 전면의 수공간과 자연, 주변 환경(오브제)를 이어주는 역할을 한다. 이는 하나의 열린 공간을 상징하며 모호한 경계를 통해 공간의 중첩과 상호 관입이 이루어진다. 이 방은 내외부 공간을 명확히 구분 짓지 않는 한국 건축처럼 문이 벽이 되기도 하고, 문이 열리면 개방된 구조로 내외부의 공간이 관통하며 공간 구획이 아닌 전체의 일부가 되어 외부의 자연을 내부로 끌어들인다. 기능적으로는 낮에는 개방되어 누구나 이용할 수 있는 좌석으로 사용하고, 밤에는 프라이빗하게 예약제로 운영이 가능하다. 한옥의 방이 최소한의 공간이지만 다양한 행위를 했던 것처럼 기능적이고 경제적이며, 외부와 연결됨으로써 단순한 방의 기능을 탈피하고자 했다.
수묵화 공간
공간과 공간을 완전히 막는 것보단 비움과 여유로움을 지닌 우리네 수묵화의 개념을 차용하여 기능적으로 시선이 가는 공간은 먹의 농묵을 통해 프라이버시를 보호하고, 그 외에 공간은 비움과 여유로움 혹은 담묵의 개념을 적용했다. 겹겹이 쌓인 풍경의 중첩은 단면적인 것보다 풍요로움을 더하며 보는 위치에 따라 다양하고 풍부한 시퀀스를 보여준다.
이처럼 한국인의 밥상은 물과 나무, 빛과 그림자, 수묵화와 백자가 있어 마음이 평온해지는 공간이다. ‘있음’의 근원이 ‘없음’인 것처럼, ‘백색’이 단순한 색이 아닌 ‘무한한 가능성’을 상징하는 것처럼 담백하지만 가치 있는 백자의 개념을 담아 디자인했다.









Design Jungbae Shin(NONESPACE)
Location 160, Dongtan Station-ro, Hwaseong-si, Gyeonggi-do, Republic of Korea
Building area 412.5㎡
Design team Yourim Lee, Moonha Keem, Soyeon Ham
Floor Brick, Gravel, Black sus, Wood flooring
Wall Painting, Satin glass, Merbau, Super mirror
Ceiling Painting, Satin glass, Super mirror
Construction Moonha Keem(NONESPACE)
Photographer Jaeyoon Kim
'Interior Project > Cafe&Restaurant' 카테고리의 다른 글
| Clair's patisserie (0) | 2022.03.17 |
|---|---|
| ANGEL IN ISLAND (0) | 2022.03.16 |
| PAGA MICROROASTERY (0) | 2022.03.04 |
| Chapter 9 Café (0) | 2022.03.03 |
| MOTHER BKK 'Prosperous Eats' (0) | 2022.03.02 |
마실와이드 | 등록번호 : 서울, 아03630 | 등록일자 : 2015년 03월 11일 | 마실와이드 | 발행ㆍ편집인 : 김명규 | 청소년보호책임자 : 최지희 | 발행소 : 서울시 마포구 월드컵로8길 45-8 1층 | 발행일자 : 매일



