
PAGA MICROROASTERY is inspired by ‘The Mountain’ where coffee beans are cultivated, in order to pay tribute and advocate the long and fascinating process of micro specialty coffee.
The three-storey corner building in the heart of central business district is entirely constructed in white with simple solid dimensional facades, allowing the building to transform and create its natural scenes through the change of the surrounding and sunlight which radiates calmness to the busy neighborhood. This enhances emotional interaction that draw passer-by to come and hike through this micro coffee experience from tasting to making.
To deliver a tranquil yet serene corner building, the designer extended little wall to the center pillar, installed an LED engraved shop sign and a big mountain stone at the front to symbolize the story of PAGA.
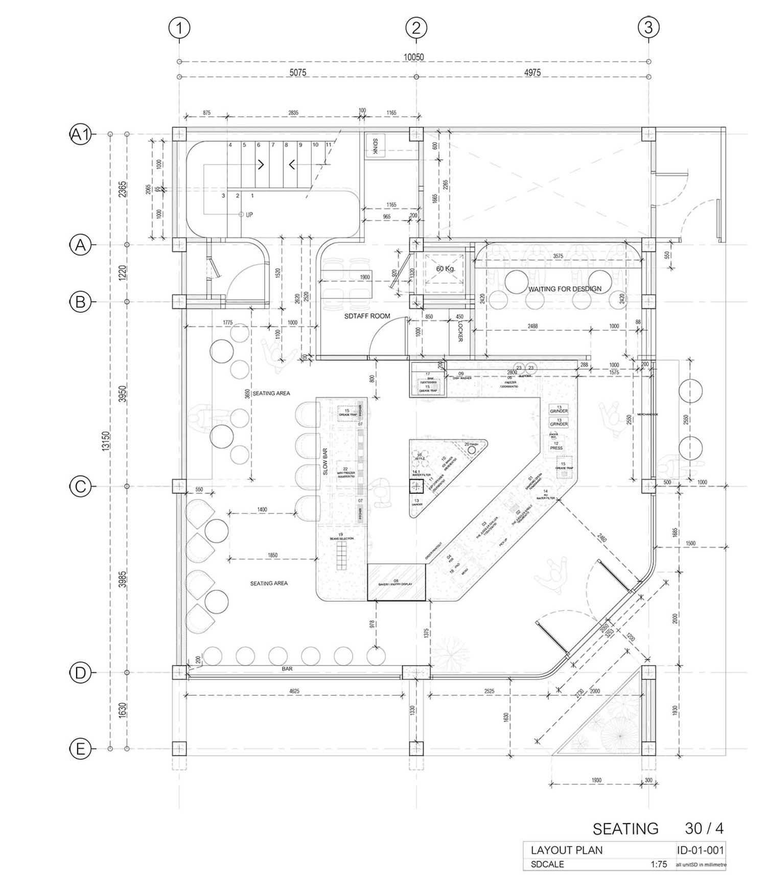
The ground floor is surrounded with glass walls that give a gaze to the atmosphere, the people and the pleasure of coffee. The entrance is placed in a slanted angle, giving new interesting dimension. As consumers step inside, the synergy of modern simplicity and nature can instantly be felt. To resemble the nature of mountain, designer infused the space with texture on the wall, curvy ceiling design, rounded and warm tone furniture; soften the neat white structure. The highlight is a solid surface curvy triangular coffee bar that physically given out more space for baristas to perform and communicate micro coffee culture with customers in friendly proximity.
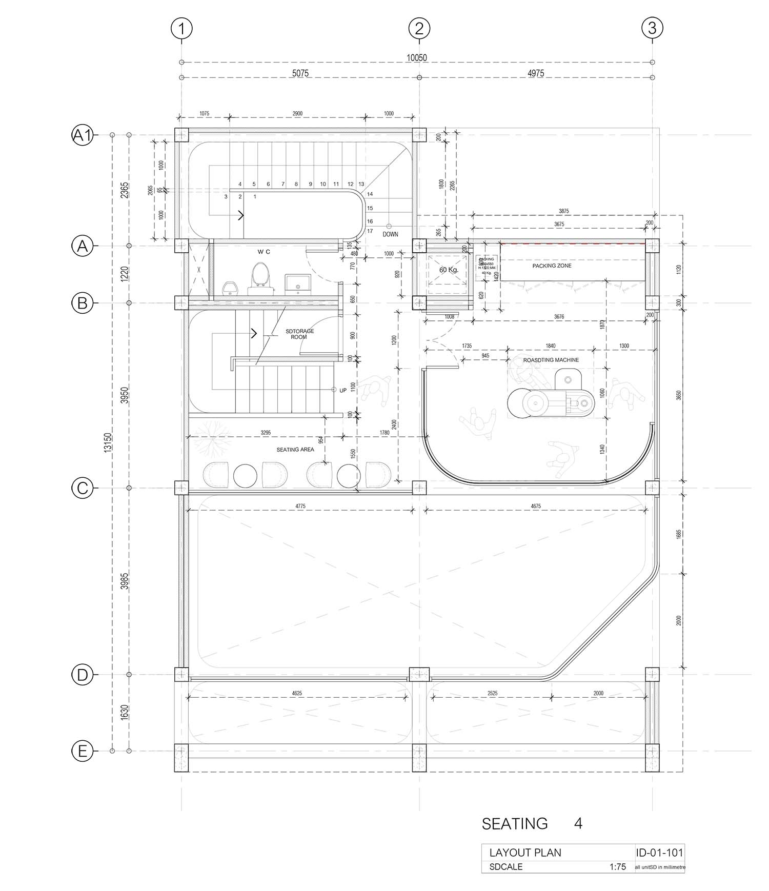
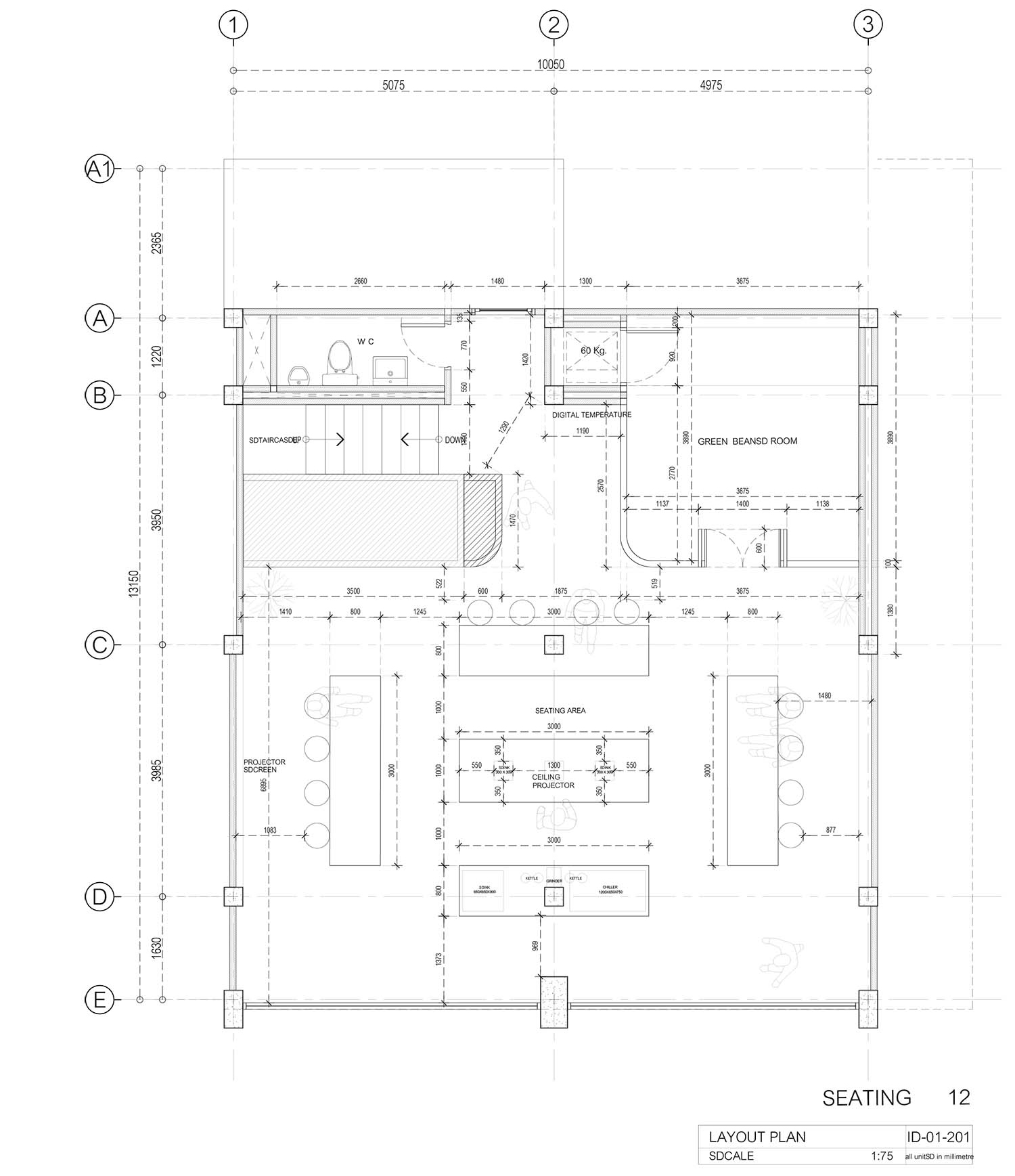
In contrast, the 1st floor and 2nd floor are covered by solid dimensional facades designed to accommodate different functions and spatialize the space. The 1st floor is coffee roasting room, designer created half facade that able to display the roaster machine while naturally helps control the light and create an appropriate atmosphere for the micro-roastery over time. Whereas the 2nd floor is a coffee storage and a workshop space, the designer created a gap between the main construction and the facade letting in the light to cast pattern and shadows on the wall, forming a private inspirational learning space for workshop participants.

PAGA Microroastery는 커피 원두를 재배하는 '더 마운틴'에서 영감을 받아 마이크로 스페셜티 커피의 길고 매력적인 과정을 표방하고 경의를 표한다.
방콕 와타나의 번화가인 Khlong Tan Nuea에 위치한 3층짜리 코너 빌딩은 전체적으로 흰색으로 지어졌으며 단순한 입체감 있는 면모를 갖추고 있어 주변과 햇빛의 변화를 통해 자연경관을 탈바꿈시켜 번화한 동네에 평온함을 발산한다. 이것은 시음부터 만들기까지 이 마이크로 커피 체험을 통해 행인을 끌어들이는 정서적 상호작용을 향상시킨다. 고요한 코너의 건물을 위해 디자이너는 작은 벽을 중앙 기둥까지 늘렸고, 전면에 LED로 새겨진 가게 간판과 큰 산석은 PAGA의 이야기를 상징한다.
1층은 유리벽으로 둘러싸여 있어 분위기와 사람, 커피의 즐거움을 한눈에 볼 수 있다. 입구가 비스듬히 배치되어 새로운 흥미로운 차원을 제공한다. 내부로 들어서는 순간 현대적 단순함과 자연의 시너지가 단숨에 느껴진다. 산의 자연을 닮기 위해 디자이너는 벽의 질감, 곡선의 천장 디자인, 둥글고 따뜻한 톤의 가구로 공간을 채워 깔끔한 흰색 구조를 부드럽게 한다. 하이라이트는 단단한 표면 곡선의 삼각 커피바로 물리적으로 바리스타들이 고객들과 친근하게 마이크로 커피 문화를 선보이고 소통할 수 있는 공간을 제공한다.
이와 대조적으로, 2층과 3층은 서로 다른 기능을 수용하고 공간을 공간화하도록 설계된 입체적인 파사드로 덮여 있다. 2층은 커피 로스팅 룸으로, 디자이너는 로스터 기계를 전시할 수 있는 하프 파사드를 만들면서 자연스럽게 빛을 조절하고 시간이 지남에 따라 마이크로 로스터리에 적합한 분위기를 만들어냈다. 3층은 커피 보관소이자 작업실 공간이다. 디자이너는 빛이 벽에 패턴과 그림자를 드리우도록 본관과 정면 사이에 틈새를 만들어 워크숍 참가자들을 위한 개인적인 영감을 주는 학습 공간을 형성했다.



















Design taste space co., ltd.
Location 45, 1 Soi Sukhumvit 31, Klongton Nueug, Watthana, Bangkok, Thailand
Building area 322㎡
Completion 2021. 05
Photographer Jinnawat borihankijanan
'Interior Project > Cafe&Restaurant' 카테고리의 다른 글
| ANGEL IN ISLAND (0) | 2022.03.16 |
|---|---|
| Korean Cuisine and Dining (0) | 2022.03.11 |
| Chapter 9 Café (0) | 2022.03.03 |
| MOTHER BKK 'Prosperous Eats' (0) | 2022.03.02 |
| ezer coffee (0) | 2022.02.28 |
마실와이드 | 등록번호 : 서울, 아03630 | 등록일자 : 2015년 03월 11일 | 마실와이드 | 발행ㆍ편집인 : 김명규 | 청소년보호책임자 : 최지희 | 발행소 : 서울시 마포구 월드컵로8길 45-8 1층 | 발행일자 : 매일



