
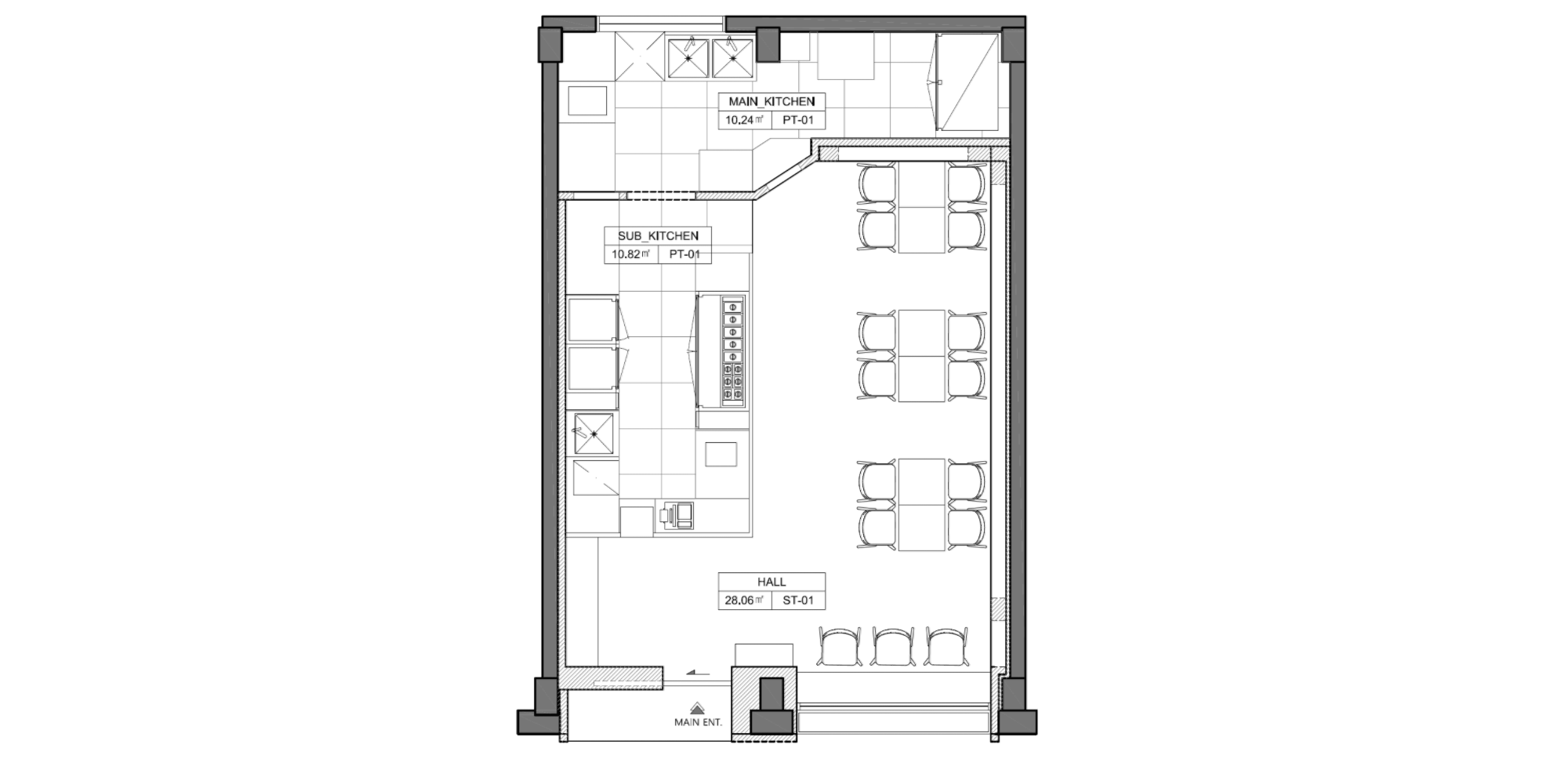
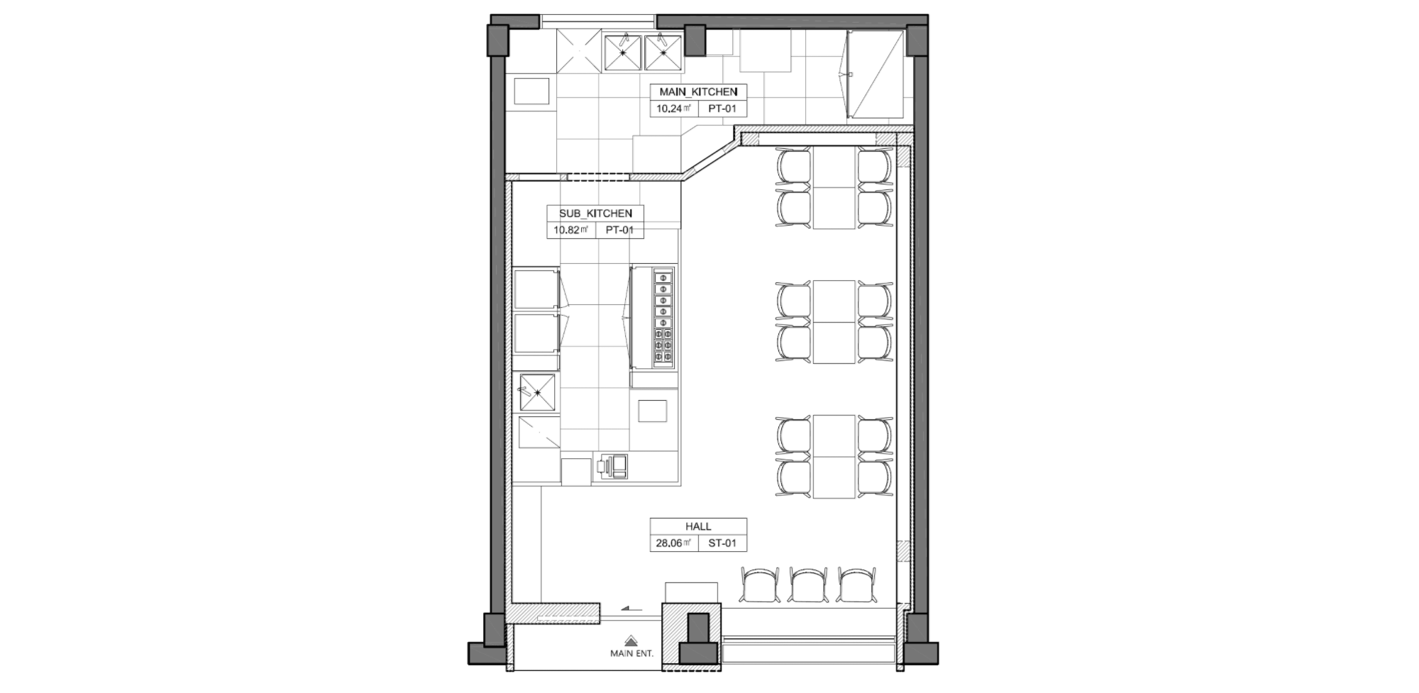
oooh! POKE is a Hawaiian salad poke restaurant located near Konkuk University Station in Seoul, which was completed in mid-December 2021. Inspired by the warm sunset color of the Hawaiian beach and the soft texture of the sandy beach, it created an oooh! POKE space. Palm trees, rattan lights, and sandy beaches created a Hawaiian beach atmosphere with the bean gravel floor. Orange point colors were used for outer signs and inner pendant has used to make the space stand out more. The soft texture and color of the sand and warm-colored wooden furniture harmonize the space

오포케(oooh! POKE)는 2021년 12월 중순에 완공 된 서울 건대입구역 쪽에 위치한 하와이안 샐러드 포케 음식점이다. 하와이 해변의 따스한 노을 컬러와 모래사장의 부드러운 질감에서 영감을 받아 오포케의 공간을 만들었다. 야자수들과 라탄 조명 그리고 모래사장이 떠오르는 콩자갈 바닥으로 하와이 해변 분위기를 만들었다. 오렌지 포인트 컬러를 외부 표지판과 내부 팬던트에 사용하여 공간을 더욱 돋보이도록 연출했다. 모래의 부드러운 질감과 컬러를 담은 벽면과 따뜻한 컬러의 원목 가구들이 공간을 조화롭게 만든다.













Design (Beaver-lab) Wonjae Lee, Eunbyuel Yeo, Myoung Kim
Location 117, Neungdong-ro, Gwangjin-gu, Seoul, Republic of Korea
Building area 54.18㎡
Building scope 1F
Completion 2021. 12
Branding design (Beaver-lab) Eunbyuel Yeo
Construction (Beaver-lab) Wonjae Lee, Kisung You, Yejin Jeong
Photographer Kuho Shim
'Interior Project > Cafe&Restaurant' 카테고리의 다른 글
| BRIX COFFEE (0) | 2022.04.08 |
|---|---|
| Hannam Berg Rooftop Cafe (0) | 2022.04.05 |
| STANGDAL SYNDROME (0) | 2022.03.25 |
| SAM JOONG JOO (0) | 2022.03.24 |
| TATD (0) | 2022.03.23 |
마실와이드 | 등록번호 : 서울, 아03630 | 등록일자 : 2015년 03월 11일 | 마실와이드 | 발행ㆍ편집인 : 김명규 | 청소년보호책임자 : 최지희 | 발행소 : 서울시 마포구 월드컵로8길 45-8 1층 | 발행일자 : 매일



