
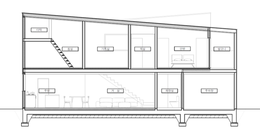
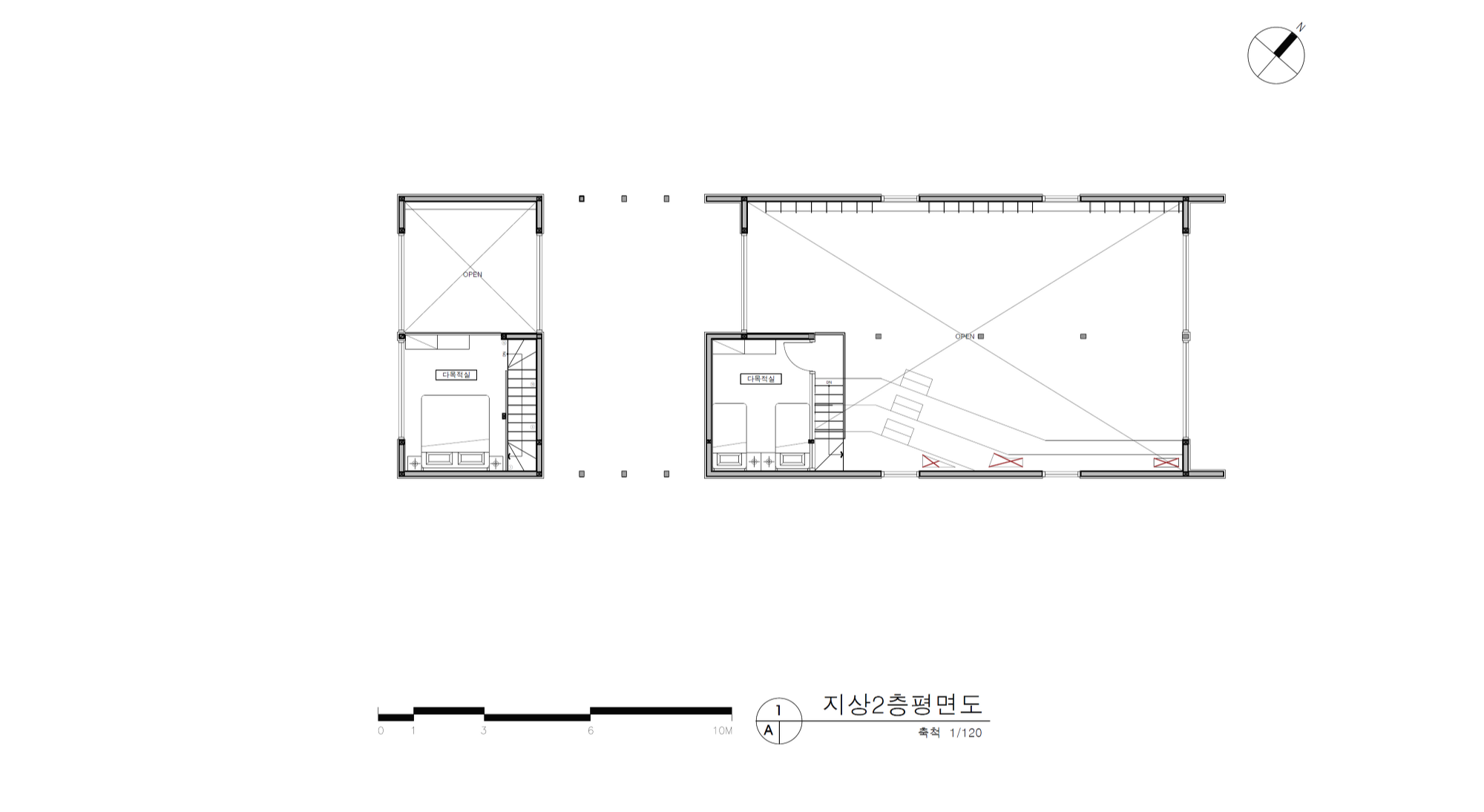
The client wanted to build a house for a family of five and a book-stay space as a spiritual haven for urban people on a scenic site full of silver grass against the backdrop of Pyeongtaek Lake. It was necessary to clarify the relationship between a living place (home) and a work place (bookstore). It was important to make a good environment for children to read books together. It was important that the family's daily lives were not interrupted by the people who visited the bookstore and that their own daily lives were guaranteed. Therefore, the site plan of houses and bookstores was arranged at a distance that could serve as a complement to each other around the yard. The direction of the house and bookstore is set in a way that actively looks at Pyeongtaek Lake, and the house is backed away from the bookstore so that the house is not seen inside the bookstore as much as possible. The two wooden buildings are shaped differently. The bookstore is finished with a gable and white steel plates, which are the prototype of the house, and the house is reminiscent of a bookshelf with books plugged in due to the regular arrangement of windows and protruding walls. Unlike bookstores, the exterior finish of the house is finished with wood, making the contrast between the two buildings distinct. The reason why it is intended to be a bookstore that resembles a house is to give comfort to adults and children who visit a bookstore, and to secure a floor height for various levels inside. In addition, when looking at a bookstore at house, they expected the bookstore to look like their house in the mirror. The window from the ceiling of the bookstore to the wall creates a gap in the long mass of a gable and actively relates to the outside world. The interior plywood finish was intended to blur the distinction between the interior and exterior as it naturally connects with the exterior environment, as it was expected that children who played for a long time would run around and read books without distinction between the yard and the interior. Through the regularly arranged windows of the house, the family shares the landscape of Pyeongtaek Lake and the wetlands that change with seasons in all spaces.

평택호를 배경으로 억새가 지천인 풍경 좋은 대지에 의뢰인은 다섯 식구의 집과 함께 도시 사람들에게 마음의 쉼터가 될 서점과 체험을 위한 북스테이를 짓기를 원했다. 삶터(집)과 일터(서점)의 관계, 성격을 분명히 할 필요가 있었다. 아이들에게 책을 읽어주고 함께 책을 읽기에 좋은 환경을 만드는 것이 중요했다. 집은 서점을 찾는 사람들로부터 가족의 일상이 방해받지 않고 그들만의 일상이 오롯이 보장되는 것이 중요했다. 그래서 집과 서점의 배치는 마당을 중심으로 서로 상보적 역할을 할 수 있는 거리를 두며 앉혀졌다. 평택호를 적극적으로 바라보는 방향으로 집과 서점의 방향을 설정하고 서점 내부에선 가급적 집이 보이지 않도록 서점의 뒤로 물러나있다. 목구조의 두 건물은 형태적으로 서로 다른 모습을 취하고 있다. 서점은 집의 원형적 형태라 할 수 있는 박공과 백색 강판으로 마감되어 있으며, 집은 규칙적인 창의 배열과 돌출벽 등으로 인해 책이 꽂혀 있는 서가를 연상하게 하는 모습이다. 집의 외부 마감은 서점과 다르게 목재로 마감되어 두 건물의 대비가 뚜렷하다. 집과 닮은 서점이길 의도한 까닭은 서점을 찾는 어른, 아이들에게 집과 같은 편안함을 주기 위해서며, 내부에 다양한 레벨을 위한 층고를 확보하기 위함이다. 또한, 집에서 서점을 바라볼 때 서점의 모습이 거울에 비춰진 자신의 집처럼 보여지기를 기대한 측면도 있다. 서점의 천정에서 벽으로 이어진 창은 박공의 긴 매스에 틈을 만들어 외부와 적극적으로 관계한다. 내부의 합판 마감은 외부 환경과 자연스럽게 연결되어 내외부의 구분을 모호하게 하려는 의도가 있었는데, 한참 뛰어 노는 아이들이 마당과 안의 구분 없이 뛰어 놀고 책을 읽는 환경이길 기대했기 때문이다. 집의 규칙적으로 배열된 창을 통해 가족은 모든 공간에서 평택호와 계절 별로 달라지는 습지의 풍경을 공유한다.





















Architects TODOT architects
Location Deongmok, Hyeondeok-myeon, Pyeongtaek-si, Gyeonggi-do, Republic of Korea
Site area House_485㎡, Bookstay_725㎡
Building area House_82.08㎡, Bookstay_131.82㎡
Gross floor area House_138.51㎡, Bookstay_158.34㎡
Building scope House_2F, Bookstay_2F
Building to land ratio House_16.92%, Bookstay_18.18%
Floor area ratio House_28.56%, Bookstay_21.84%
Construction period 2019. 09 - 2020. 01
Completion 2020. 01
Principal architect Byeonggyu Cho, Seungmin Mo
Mechanical engineer CHUNIL
Electrical engineer HANBIT ENGINEERING
Construction KSHOUSING
Photographer Jinbo Choi
해당 프로젝트는 리빙즈, 디테일 01호에 게재되었습니다.
The project was published in LIVINGS, Detail 01
[BOOK] LIVINGS, Detail 리빙즈, 디테일 01호, 02호
단행본 발행 67개의 형태와 라이프스타일을 담은 주거공간, 국내외 "디테일한 주택 프로젝트"의 엮음
www.masilwide.com
'Architecture Project > Single Family' 카테고리의 다른 글
| TWO-YARDS HOUSE (0) | 2022.03.15 |
|---|---|
| Gogiri House (0) | 2022.03.14 |
| SOOM ZIP (0) | 2022.03.11 |
| WALDEN HOUSE (0) | 2022.03.10 |
| GANGHOEHEON (0) | 2022.03.08 |
마실와이드 | 등록번호 : 서울, 아03630 | 등록일자 : 2015년 03월 11일 | 마실와이드 | 발행ㆍ편집인 : 김명규 | 청소년보호책임자 : 최지희 | 발행소 : 서울시 마포구 월드컵로8길 45-8 1층 | 발행일자 : 매일



