
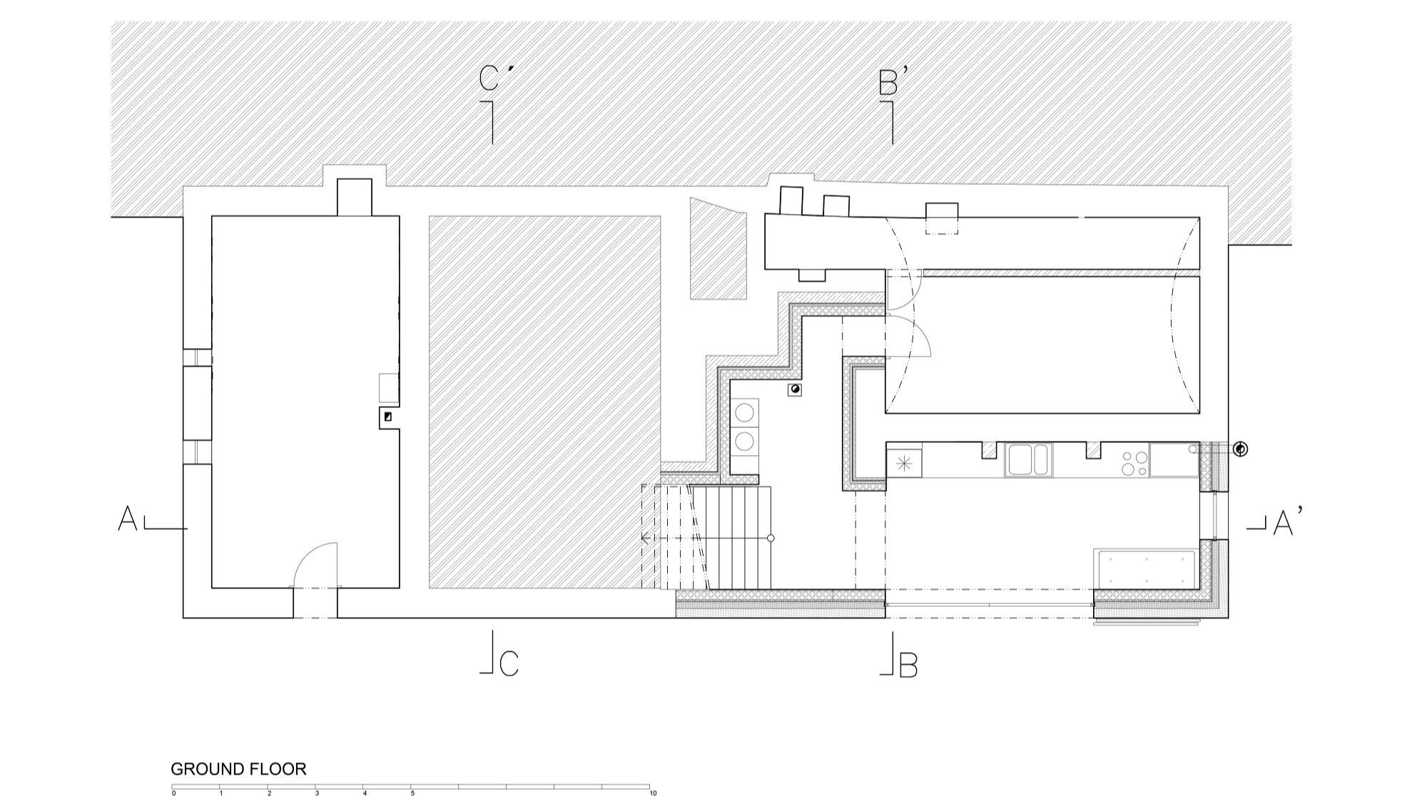
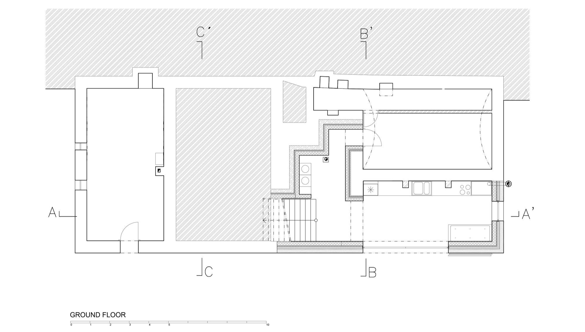
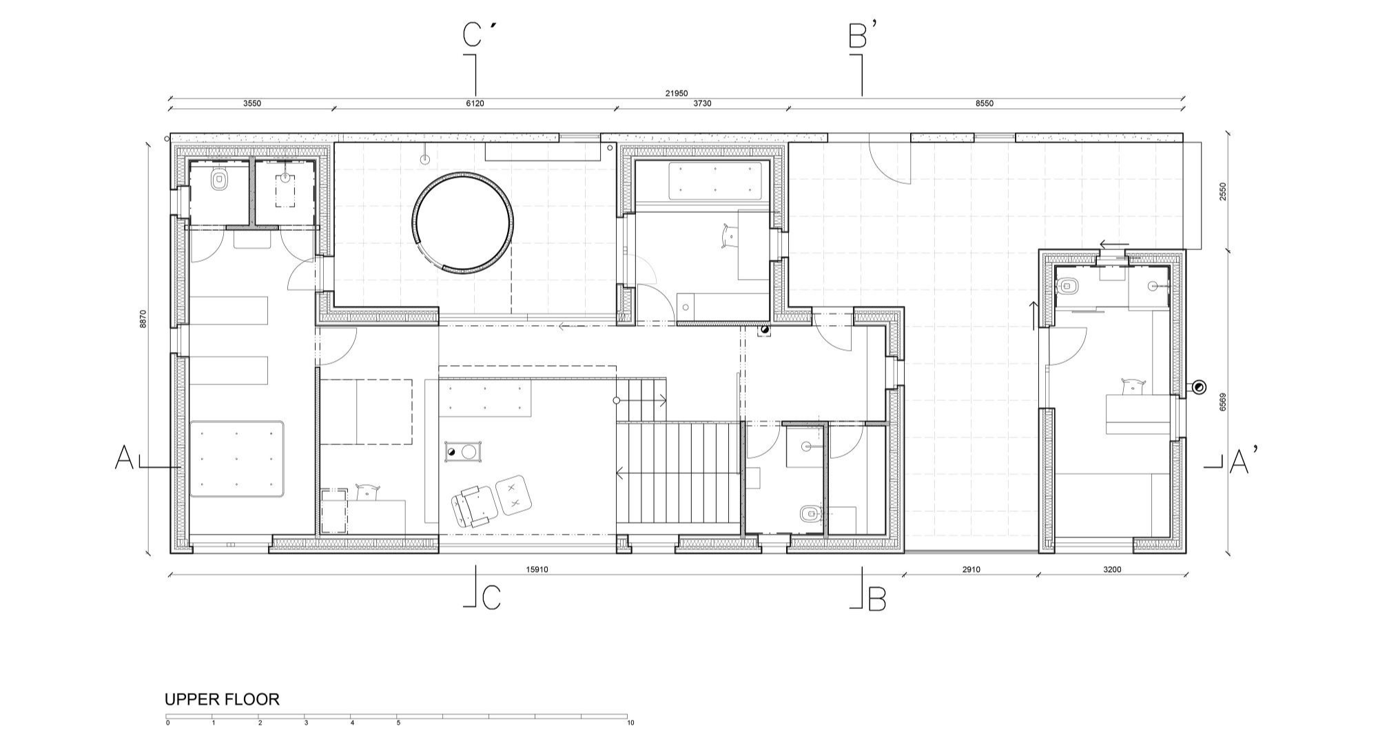
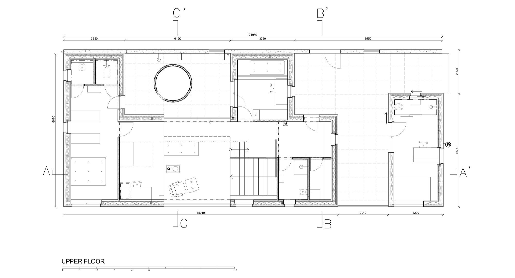
It all started with the clients’ purchase of a house over a hundred years old. The traditional building with a gable roof was at its end. Its stone basement was still in a good condition so we decided to take down the rest of the house and use the stone socle in the basement as a foundation for the new house. The courageous and somewhat risky plan worked out and today, the clients live in a beautiful, modern house which combines the historical soul of its predecessor and nordic esthetics with a touch of industrial style. The lot borders a busy road which serves as a starting point for tourists heading to the Jizera Mountains. Because of this we designed a new concrete wall in place of the former exterior wall of the old house. This will not only decrease the amount of noise from the nearby road but also define the outside entrance area to the house. Behind the wall is a small yard with a view of Ještěd which serves as a guidepost between the entrance, the guest house and the stairs to the yard below. The construction of the new part is wooden. The asphalt roof together with the black, tar-painted facade reminds us of the shed that used to stand here. On the old stone foundation behind the concrete wall are actually two houses; a family house and a small guest house for a young sailor, the clients’ son, who spends most of the year at the helm of transatlantic ships. The parents’ house is more complicated as its building design had to encompass the needs of three different people - a friendly couple and their daughter. The wooden addition above the basement ceiling consists of bedrooms, an office, a bathroom with a toilet and an outdoor yard with a sauna. The living space of the house is defined by large windows on both sides. The window on the southwest facade brings the view of the Harcov stream valley and Ještěd while the north window shows the previously mentioned sauna yard. A couple of steps lower is a living room stairhead with a fireplace and a wide staircase to the kitchen and dining room which are connected to the patio. The rest of the basement is used as a utility room and storage space.

비하인드 더월은 100년 이상된 박공 지붕의 전통적인 집을 사용하여 만들어진 리모델링 주택이다. 집은 도로 끝에 위치해 있었다. 이 집은 기존 건물 석조 지하실의 공간을 새로운 집의 기초로 사용하고 나머지 부분은 철거됐다. 다소 과감한 건축가의 계획 안으로 건축주는 이전의 역사적 흔적과 북유럽의 산업적인 스타일을 결합시킨 아름답고 현대적인 집에서 살고 있다. 이 대지는 지제라(Jizera) 산맥으로 향하는 관광객들의 출발점 역할을 하는 혼잡한 도로와 접해 있다. 이것 때문에 건축가는 옛 집의 오래된 외벽 대신 새로운 콘크리트 벽을 만들었다. 콘크리트 벽은 근처 도로에서 발생하는 소음을 차단할 뿐만 아니라 집의 외부 출입구를 나타낸다. 벽 뒤에는 제터드(Ještěd) 산이 보이는 작은 마당이 있으며, 입구, 게스트하우스로 쓰이기도 한다. 또한, 마당으로 이어지는 계단 사이에 이정표 역할도 한다. 새로 더해진 구조는 목조로 만들어졌다. 아스팔트 지붕과 타르로 칠해진 검은색 전면이 이곳에 원래부터 있던 헛간을 연상케 한다. 콘크리트 벽 뒤에 있는 오래된 석조층 위에는 두 개의 집이 있는데, 건축주 가족의 집과 젊은 여행객을 위한 작은 게스트하우스다. 가족의 집은 다정한 부부와 그들 딸의 요구 사항을 반영해야 했기 때문에 복잡한 단면을 가진다. 지하 천장의 목재는 침실, 사무실, 화장실, 사우나가 있는 야외 마당으로 구성되어 있다. 생활 공간은 양쪽의 큰 창문에 의해 정의된다. 남서쪽 정면에 있는 창문은 하르코브(Harcov) 계곡과 제터드 산의 경치를 보여주고 북쪽 창문은 사우나가 있는 마당으로 연결된다. 두어 걸음 더 내려가면 거실 계단과 벽난로가 있는 넓은 계단이 부엌과 식당으로 연결되어 있다. 지하층의 나머지는 다용도실과 수납공간으로 사용된다.















Architect Mjölk architekti
Location Liberec, Czech Republic
Site area 1,147㎡
Building area 271.50㎡
Gross floor area 226.10㎡
Usable floor area 188.10㎡
Building scope 2F
Completion 2018
Principal architect Mjölk architekti
Collaborators Michal Hejzlar, Jan Nikendey
Construction 1ku1, millante
Photographer BoysPlayNice
해당 프로젝트는 리빙즈, 디테일 01호에 게재되었습니다.
The project was published in LIVINGS, Detail 01
[BOOK] LIVINGS, Detail 리빙즈, 디테일 01호, 02호
단행본 발행 67개의 형태와 라이프스타일을 담은 주거공간, 국내외 "디테일한 주택 프로젝트"의 엮음
www.masilwide.com
'Architecture Project > Single Family' 카테고리의 다른 글
| Santo Tirso House (0) | 2022.02.14 |
|---|---|
| House G (0) | 2022.02.11 |
| Weekend House in Beskydy (0) | 2022.02.09 |
| Sou House (0) | 2022.02.08 |
| Casa Gloma (0) | 2022.02.07 |
마실와이드 | 등록번호 : 서울, 아03630 | 등록일자 : 2015년 03월 11일 | 마실와이드 | 발행ㆍ편집인 : 김명규 | 청소년보호책임자 : 최지희 | 발행소 : 서울시 마포구 월드컵로8길 45-8 1층 | 발행일자 : 매일



