
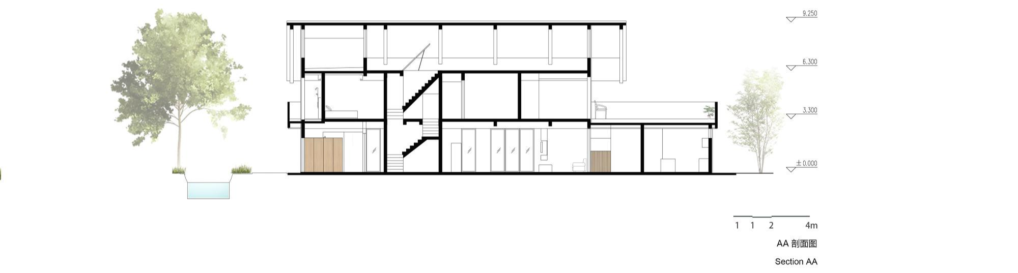
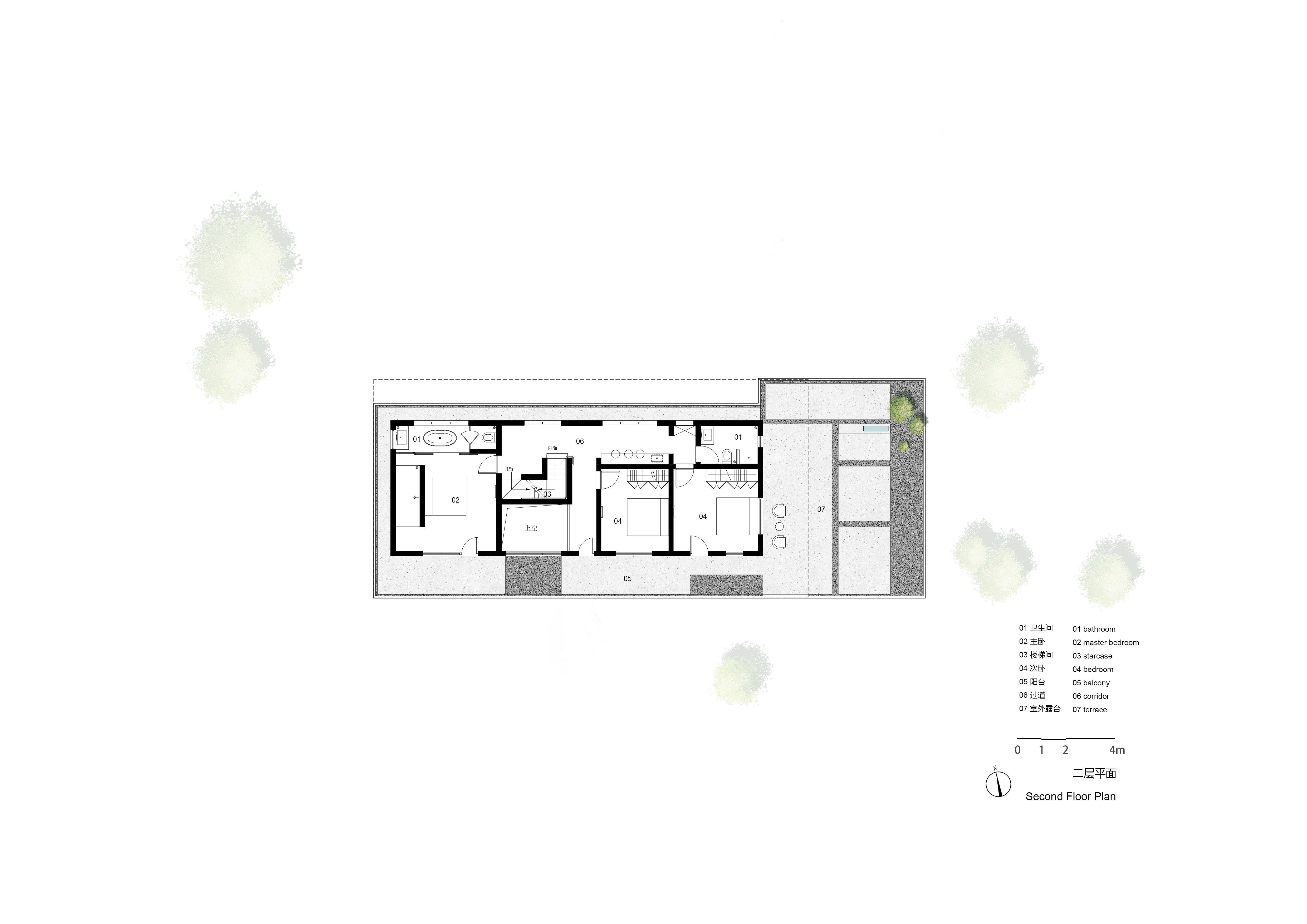
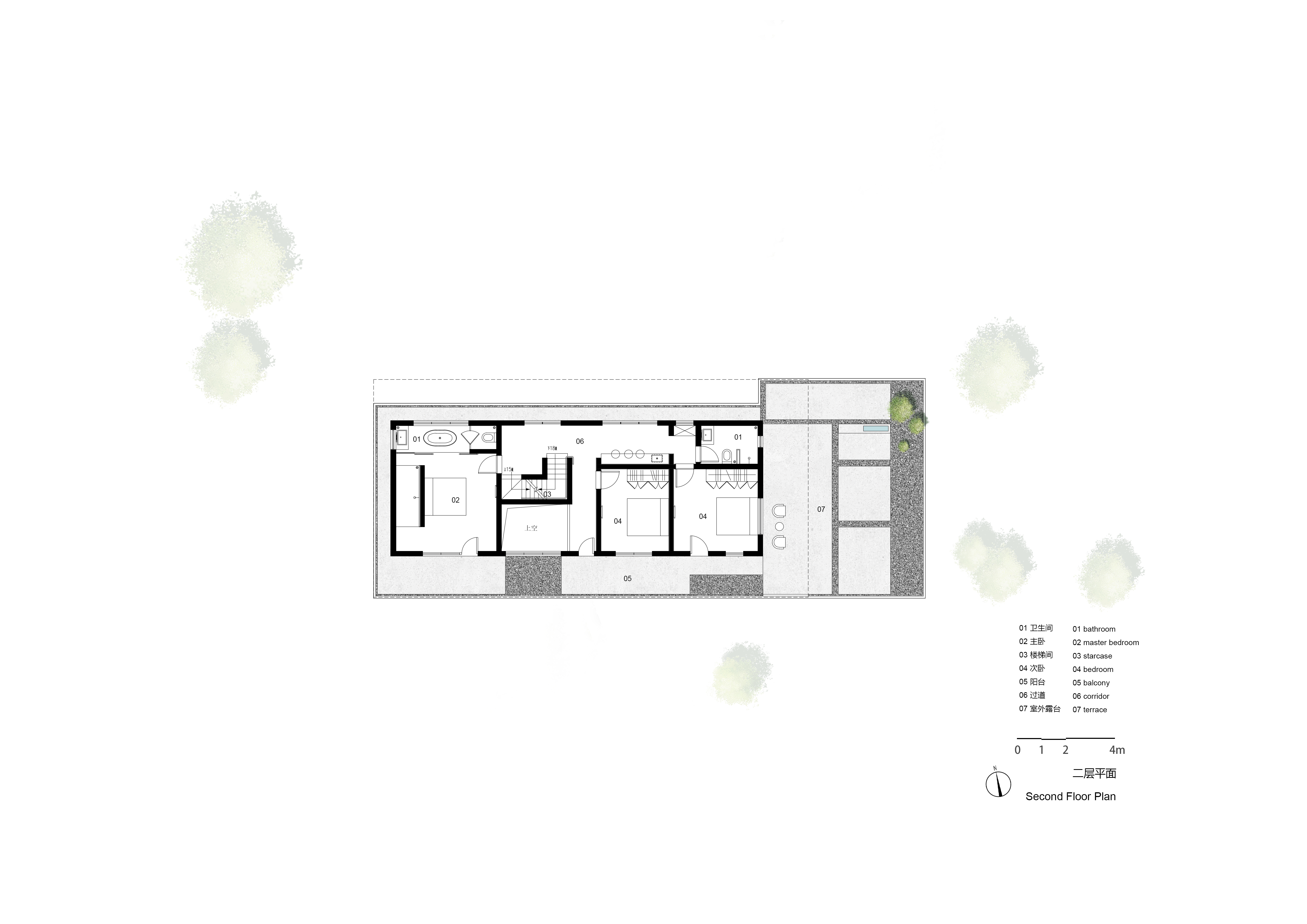
House G is located in a suburban village two hours away from Shanghai. The client is an aged couple whose children lives in downtown Shanghai but occasionally visit. The first level of the house was designed to reflect the mode of
communication and living habits of the house owners. The yard on the South is the most public area of the house. It functions as the official entrance, a place for food production, and a place of interaction. Part of the southern yard are reserved for growing of crops and locally-grown vegetables. Other part of the yard becomes the extension of domestic life from the interior outwards. They subtly define the boundary of the property and provide spaces of interaction between the house owner and their neighbors. The extended balcony on the second level not only provides shading and protection from rain, but also defines an area for neighbors to gather. The foyer of the house is not merely an entrance, but also a leisure space for house owner to play Majong with his neighbors. The living room performs not only as a space of gathering for the family, but also is a religious space to worship the ancestors during special occasions. The second level of the house is the private domain and a place for mental retreat. A bar table is placed in this corridor to provide a "node" for the family to have cup of tea and relax, thus eliminating the nature of the space as pure circulation. The continuous balconies and terrace is an extension of interior spaces on the second level. They provide a chance to enjoy the great views of the surroundings and a place for family members and close friends or relatives to gather without being disturbed by the neighbors. The small courtyard on the mezzanine level is the most private area of the house and is only used by the family members.

하우스 G는 상하이에서 두 시간 떨어진 교외 마을에 있는 집으로, 노부부 건축주와 상하이 시내에 사는 그들의 자녀들이 가끔 방문하면서 머물 수 있는 집이다. 1층은 건축주의 의사소통 방식과 생활 습관이 반영되어 있다. 남쪽의 마당은 그 집의 가장 공공적인 공간이다. 그것은 공식적인 출입구, 음식을 만드는 장소, 그리고 상호 작용을 일으키는 공간이다. 남부 마당의 일부는 농작물과 지역적에서 재배된 채소를 재배하기 위해 남겨져 있다. 마당의 다른 부분은 내부에서 바깥쪽으로의 가정 생활의 연장선이 된다. 이는 집이라는 공간의 경계를 미묘하게 정의하고 주택 소유자와 이웃 사이의 상호 작용 공간을 제공한다. 2층의 확장된 발코니는 차양 역할과 비로부터 보호뿐만 아니라 이웃이 모일 수 있는 공간을 정의한다. 현관은 단순한 입구가 아니라 건축주가 이웃과 함께 마작을 즐길 수 있는 여가 공간이기도 하다. 거실은 가족을 위한 모임의 공간일 뿐만 아니라 특별한 날에 조상을 숭배하는 종교적인 공간이기도 하다. 두 번째 층은 사적인 영역과 정신적 휴식을 위한 장소이다. 바 테이블이 복도에 배치되어 가족이 차 한 잔을 마시고 휴식을 취할 수 있는 ‘접점’을 제공하고, 순수한 동선으로 공간의 본질을 없앤다. 연속된 발코니와 테라스는 2층 내부 공간의 확장이다. 이곳은 주변의 멋진 전망을 즐길 수 있는 기회를 제공하고, 가족, 친한 친구 또는 친척들이 이웃의 방해 없이 모일 수 있는 장소를 제공한다. 다락층에 있는 작은 발코니는 집에서 가장 사적인 공간이며 가족 구성원만 사용할 수 있다.































Architect Interval Architects
Location Shanghai, China
Building area 230m2
Construction period 2017 - 2019
Completion 2019
Principal architect Oscar Ko, Gu Yunduan
Project architect Oscar Ko, Gu Yunduan
Design team Oscar Ko, Gu Yunduan, Fang Hanqi, Zhou Yi, Chen Heqiao, Ye Changqing, Chen Jingyi
Photographer Zhi Geng
해당 프로젝트는 리빙즈, 디테일 01호에 게재되었습니다.
The project was published in LIVINGS, Detail 01
[BOOK] LIVINGS, Detail 리빙즈, 디테일 01호, 02호
단행본 발행 67개의 형태와 라이프스타일을 담은 주거공간, 국내외 "디테일한 주택 프로젝트"의 엮음
www.masilwide.com
'Architecture Project > Single Family' 카테고리의 다른 글
| House L&D (0) | 2022.02.15 |
|---|---|
| Santo Tirso House (0) | 2022.02.14 |
| House Behind the Wall (0) | 2022.02.10 |
| Weekend House in Beskydy (0) | 2022.02.09 |
| Sou House (0) | 2022.02.08 |
마실와이드 | 등록번호 : 서울, 아03630 | 등록일자 : 2015년 03월 11일 | 마실와이드 | 발행ㆍ편집인 : 김명규 | 청소년보호책임자 : 최지희 | 발행소 : 서울시 마포구 월드컵로8길 45-8 1층 | 발행일자 : 매일



