
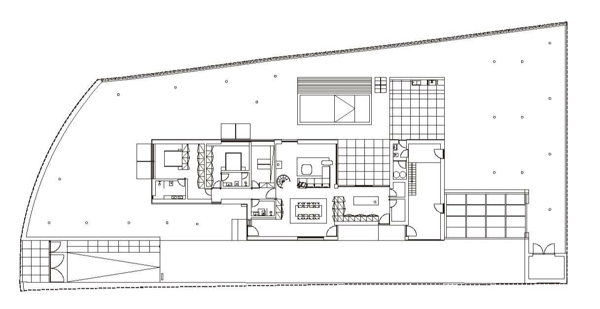
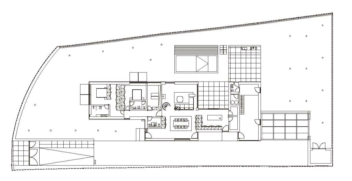
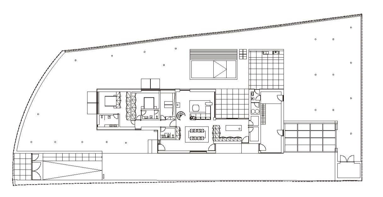
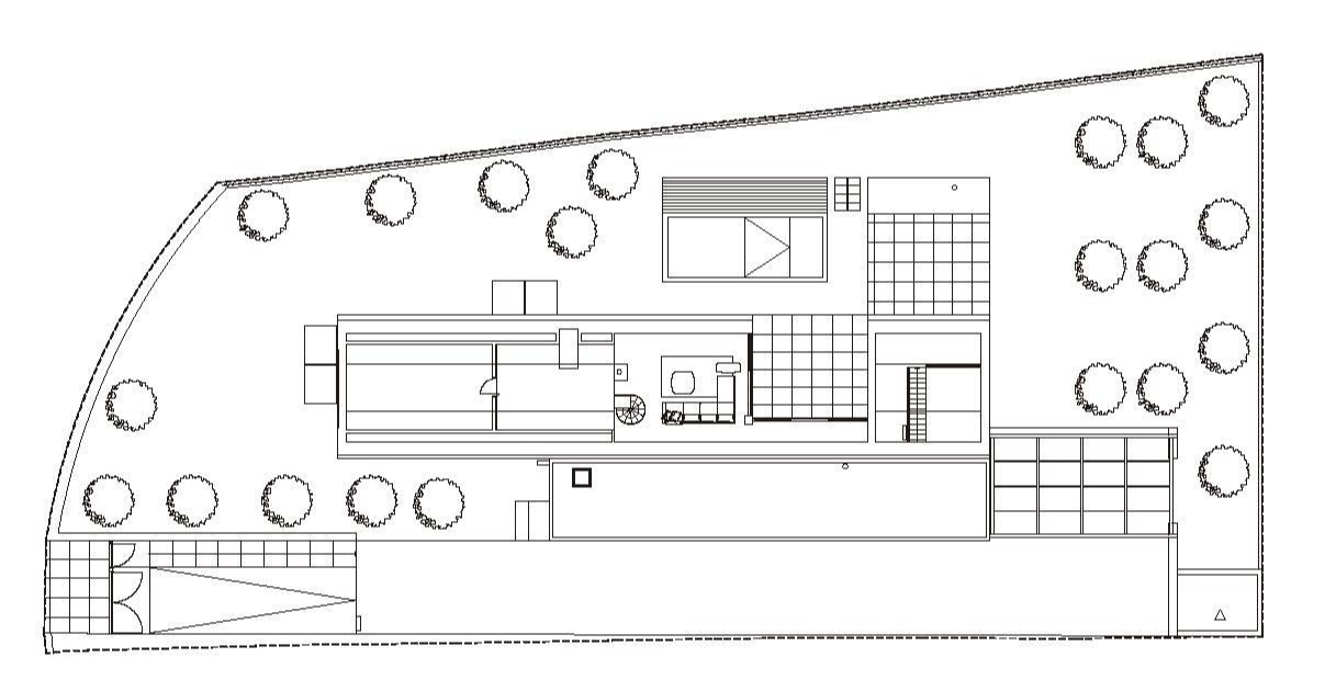
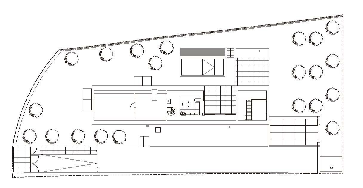
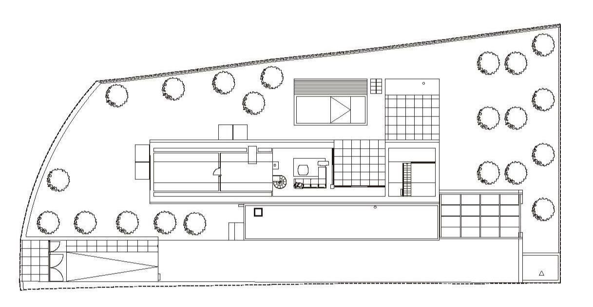
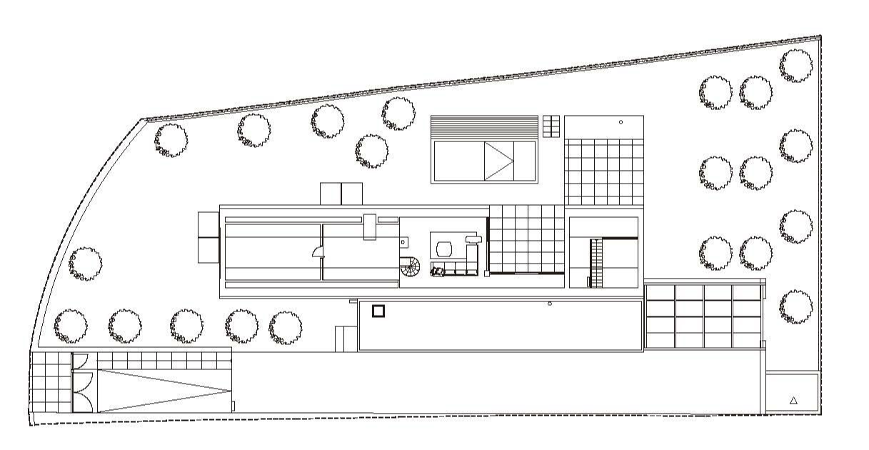
Santo Tirso House is located on a small hill, with a dark silhouette in sharp contrast to its natural environment, offering a wide view over Santo Tirso. The architect defined a northeast-southeast axis in the longitudinal direction of the land and oriented in the best view of the place. And in this linear orientation, the main volume is arranged, in a playful reconfiguration of the traditional house, it becomes remarkable in the landscape. The volume departs from the entrance of the lot to create a kind of external decompression atrium. In terms of the program's distribution, the reception lobby is the first point of contact with the house, leading us to the central and common areas of the house: dining room, living room and kitchen, spacious and generous with lots of natural light promoted by negative space, which is used as the extension of the indoor room to the outside, to the pool and outdoor dining room, taking advantage of the rhythmic play of light in the afternoon. This central block also allows us to separate two spaces that were to be independent: For the south-east, the private area, a corridor distributes the rooms and a small office, all of them with exterior spaces accessible through glass doors that balance the visual and physical connections to the landscape of each room; Over these two areas, the traditional shape of the gable roof allowed the interior spaces to be modeled to complement the nature of the programs, creating a place for reading and studying. Due to the simplicity and relevance of its interior design, with light, minimalist and smooth walls, it offers a peaceful living space. In contrast to the dark exterior, where the black plant tile and the pine together with the simple shape of the building create a striking graphic silhouette against the landscape. On the whole, through the juxtaposition of its facade materials, the architect get closer to the natural, the beautiful, where we hope that its inhabitants are happy.

산투티르수 하우스는 작은 언덕 위, 자연 환경과 뚜렷한 대조를 이루는 어두운 실루엣을 가진 집으로, 산투티르수(Santo Tirso)의 탁 트인 전망을 조망할 수 있다. 건축가는 대지의 세로 방향을 따라 북동-남동 축을 정의하고 건물이 가장 잘 보이는 방향으로 건물을 놓았다. 이 지역의 전통적인 집처럼 재구성되어 직선의 방향으로 주요 건물의 형태가 배치됐다. 대지를 진입하는 부분으로부터 다소 떨어져 배치된 집은 일종의 압축된 외부 아트리움 같은 공간이다. 집에 들어서면, 응접실을 시작으로 식사 공간, 거실, 부엌 등 집의 중앙 및 공용 공간으로 자연스럽게 연결된다. 이 공간들은 오후의 시간에 따라 리듬감 있는 빛의 변화와 함께 하는데, 이는 공간의 일부를 외부, 수영장과 외부에서 식사가 가능한 움푹 패인 외부공간과 이어진다. 이러한 움푹 패인 공간은 집을 외부로 확장할 뿐만 아니라, 넓고 높은 유리창으로 자연 채광을 집 내부로 풍부하도록 끌어들인다. 또한, 이 움푹 패인 공간으로 독립되어야 하는 두 공간이 분리된다. 사적 공간인 남동쪽에는 복도가 방과 작은 사무실을 나누어 주며, 시각, 물리적인 균형을 제공하는 유리문을 통해 접근할 수 있도록 하는 외부 공간이 있다. 이 두 공간 위에 펼쳐진 박공 지붕의 전통적인 모양은 프로그램의 특성을 보완하기 위한 내부 공간의 형태를 결정하여 독서와 공부를 위한 공간이 나타난다. 가볍고 미니멀하며 부드러운 벽을 갖춘 단순하고 적절한 인테리어 디자인은 평화로운 생활 공간을 제공한다. 이는 검은색 식물 타일과 소나무 목재가 건물의 단순한 모양과 함께 풍경과 반하여 인상적인 실루엣을 만들어내는 어두운 외관과는 대조적이다. 전체적으로 외관 재료는 통일되어 자연스러운 아름다움을 만들어낸다.















Architect Hous3
Location Santo Tirso, Portugal
Site area 1,450m²
Building area 326.50m²
Building scope 2F
Completion 2020
Principal architect Fábio Costa, Filipe Faria, Benjamin Machado
Project architect Fábio Costa, Filipe Faria, Benjamin Machado
Design team Fábio Costa, Ângela Alves, Eliseu Pinto
Photographer Ivo Tavares Studio
해당 프로젝트는 리빙즈, 디테일 01호에 게재되었습니다.
The project was published in LIVINGS, Detail 01
[BOOK] LIVINGS, Detail 리빙즈, 디테일 01호, 02호
단행본 발행 67개의 형태와 라이프스타일을 담은 주거공간, 국내외 "디테일한 주택 프로젝트"의 엮음
www.masilwide.com
'Architecture Project > Single Family' 카테고리의 다른 글
| House CG (0) | 2022.02.16 |
|---|---|
| House L&D (0) | 2022.02.15 |
| House G (0) | 2022.02.11 |
| House Behind the Wall (0) | 2022.02.10 |
| Weekend House in Beskydy (0) | 2022.02.09 |
마실와이드 | 등록번호 : 서울, 아03630 | 등록일자 : 2015년 03월 11일 | 마실와이드 | 발행ㆍ편집인 : 김명규 | 청소년보호책임자 : 최지희 | 발행소 : 서울시 마포구 월드컵로8길 45-8 1층 | 발행일자 : 매일



