
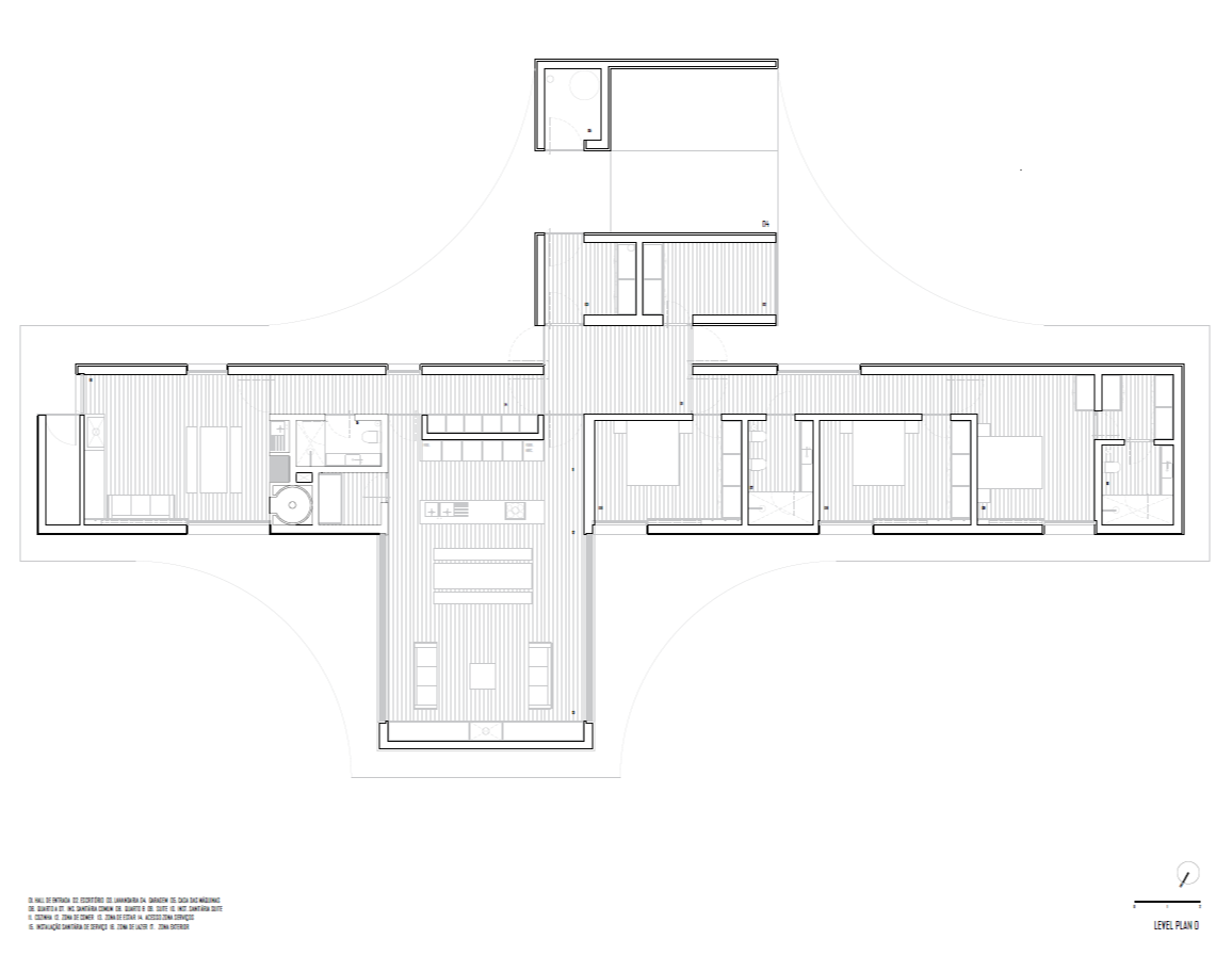
Casa Gloma arises in a small land with a slightly slope, in the vicinity of Ansião Village. The departure point of the building is the permanent contact with nature. The construction is organized through a main axle which not only intend to solve all the workable programme, but also operate as a border element of the social and the private areas. This one-story house is elevated from the floor maintaining some connection points which intend to achieve a symbiotic relationship. The applied solution creates small patios through her shape, providing the simplicity of materials and shapes encountered on the nature that surrounds it. Two concrete slabs with organic shapes, define the exterior outline, creating a piece with a sense of freedom and consequently, diversity in the creation of the interior areas, as well as permeability with the exterior. The areas are thus not limited by walls, but span out, with Nature serving as the only boundary.

카사 글로마는 안시앙 마을 부근의 경사진 작은 땅에 지어진 단층의 단독주택이다. 이 건물의 출발점은 자연과의 영원한 연결이다. 건축은 모든 요구를 수용할 뿐만 아니라 공용과 개인 영역의 경계 요소로 작동하는 주요 축을 통해 구성됐다. 이 단층집은 위로 올라가면서 공생관계를 유지하기 위한 연결점을 갖고 있다. 이 집에 적용된 해결책은 모양 자체를 통해 작은 파티오를 만들어주며, 주변의 자연에서 마주치는 재료와 형태의 단순함을 제공한다. 유기적인 형태를 가진 두 개의 콘크리트 슬래브는 외부 윤곽을 정의하면서 자유로운 느낌을 주는 형태를 만들고, 결과적으로 내부 영역의 다양성과 외부와의 투과성을 제공한다. 따라서 공간은 벽으로 제한되지 않고, 자연이 유일한 경계로 작용하고 있다.














Architect Bruno Dias Arquitectura
Location Leiria, Portugal
Building area 420m²
Building scope 1F
Height 14.75m
Construction period 2018 - 2019
Completion 2019. 08
Principal architect Bruno Lucas Dias
Project architect Bruno Lucas Dias, Kevin Lopes, Catarina Serra
Electrical engineer Plumbing “Alvorgense”
Construction Construções Nascente do Nabão / Pregozêzere
Photographer Hugo Santos Silva
해당 프로젝트는 리빙즈, 디테일 01호에 게재되었습니다.
The project was published in LIVINGS, Detail 01
[BOOK] LIVINGS, Detail 리빙즈, 디테일 01호, 02호
단행본 발행 67개의 형태와 라이프스타일을 담은 주거공간, 국내외 "디테일한 주택 프로젝트"의 엮음
www.masilwide.com
'Architecture Project > Single Family' 카테고리의 다른 글
| Weekend House in Beskydy (0) | 2022.02.09 |
|---|---|
| Sou House (0) | 2022.02.08 |
| FRAME HOUSE IN SONOMA (0) | 2022.02.04 |
| HAUS ON THE HILL (0) | 2022.01.11 |
| YANGPYEONG HOUSE (0) | 2022.01.10 |
마실와이드 | 등록번호 : 서울, 아03630 | 등록일자 : 2015년 03월 11일 | 마실와이드 | 발행ㆍ편집인 : 김명규 | 청소년보호책임자 : 최지희 | 발행소 : 서울시 마포구 월드컵로8길 45-8 1층 | 발행일자 : 매일



