
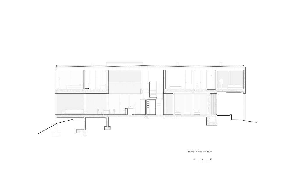
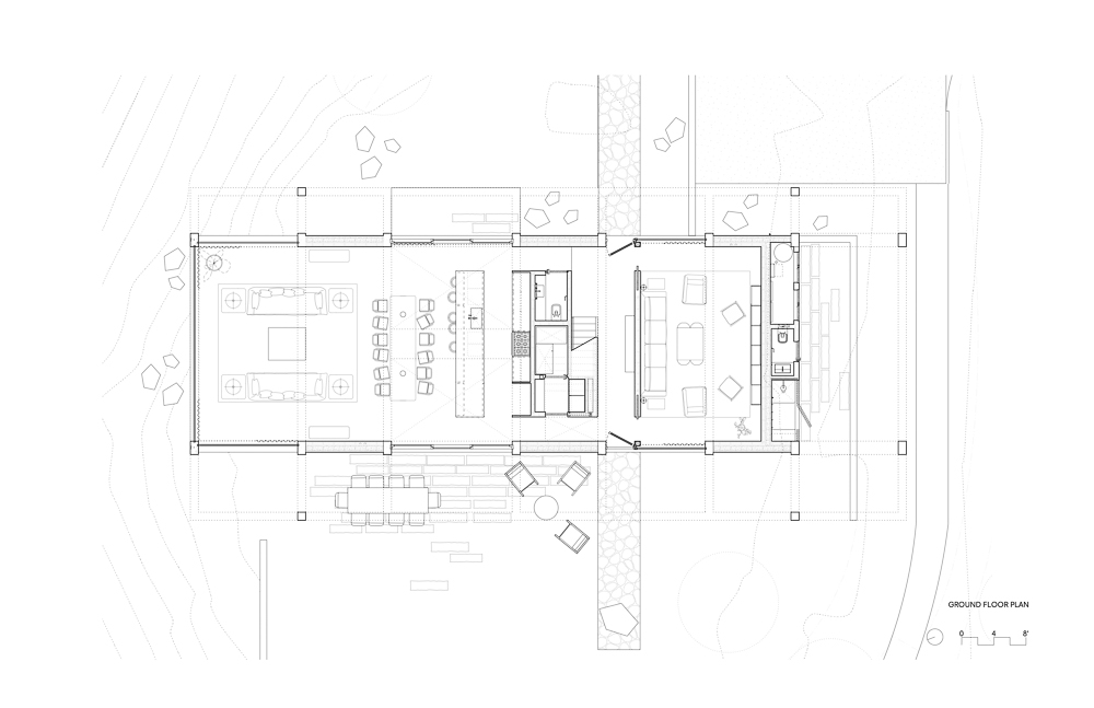
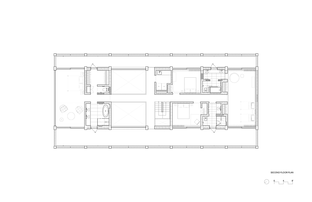
A concrete framework establishes the structure and rhythm of Frame House, a residence atop a hill in the Sonoma countryside. Rooted on a plateau above a forested canyon and vineyards, this structural grid maximizes the connection between the inside and out, allowing for natural light and direct access to the exterior from almost every room in the house. The loggia, which wraps three sides of the house’s perimeter, shades the living spaces below, and provides access to expansive views from the second level decks. The materials of the house are organic and rustic in their appearance and tactility, while providing resilience against the threat of the wildfires which have become prevalent in the Sonoma valley and damaged the previous residence on the site. To protect the new home, concrete shear walls are clad in a sacrificial layer of greying wood siding between the columns, which also organize the interior spaces. This rigorous concrete framework creates a perch from which to take in the vistas of the property and beyond. In contrast to the exterior of the house, clad in a fire-proof armor, the warm interiors are lined in Douglas Fir. The house has an extroverted relationship to the surrounding landscape, connecting the interior in almost every room to the California climate. On the inside, the home is organized around a double height space over the kitchen that connects the two levels and is punctuated by a floating catwalk leading to the two bedroom wings upstairs. The program of the house contains 4 bedrooms, 4.5 baths, media room, and great room with interior furnishings curated by The Office of Charles de Lisle. The 18 acre property includes a 3 bedroom, 3 bath all concrete guesthouse also designed by Mork-Ulnes Architects and with interior by Charles de Lisle. The garden, vegetable beds, and pool were designed by Surface Design.

고원의 끝 전원의 풍경을 소유한 집, 소노마의 프레임 하우스
숲이 우거진 협곡과 포도밭을 지나 소노마의 목가적인 풍경을 내려다볼 수 있는 고원 끝자락, 프레임 하우스가 고고하게 서 있다. 집은 높은 지대에 세워진 만큼 내리쬐는 모든 빛을 흡수한다. 자연스러운 채광을 가능하게 하는 넓은 프레임의 창문은 탁 트인 고원 아래의 전망을 바라보기 위한 것이기도 하다. 집의 세 면은 풍경을 즐길 수 있는 돌출된 발코니가 있는 모습이며, 상대적으로 2층은 열린 공간이다.
촘촘하면서도 소박한 마감재는 소노마 계곡에서 만연하고 그 부지의 이전 거주지를 훼손한 산불의 위협에 대한 탄력성을 제공한다. 콘크리트 내진벽은 집을 보호하기 위해, 기둥 사이에 회색 목재 외장용 자재로 마무리됐으며, 이로 내부 공간을 구성하기도 했다. 강력하고 단단한 콘크리트는 이 집과 그 너머의 풍경을 감상할 수 있는 가장 높은 자리를 만들어냈다. 이 외에도 집의 외부와 대조되는 따뜻한 분위기의 인테리어는 내화 처리된 소나무(Douglas Fir)로 되어 있다. 집은 적극적으로 내부와 관계를 맺고 있어 거의 모든 방을 캘리포니아 기후에 맞는 환경으로 조성한다. 집의 내부에는 2개 층을 연결하는 주방, 그 위 두 배가 높은 공간이 나타난다. 2층에는 2개의 침실로 이어지는 좁은 통로가 있다. 집에는 총 4개의 침실, 4.5개의 욕실, 미디어 룸이 있는 큰 방이 있으며 특별히 선별된 인테리어 가구들이 배치되어 분위기를 더한다. 3개의 침실, 3개의 욕실이 있는 콘크리트 게스트하우스를 포함하고 있다. 정원, 채소밭, 수영장도 마련되어 있다.















Architect Mork-Ulnes Architects
Location Sonoma County, California, USA
Site area 75,000㎡
Building area 340㎡
Gross floor area 380㎡
Completion 2021
Landscape architect Surfacedesign, Inc.
Structural engineer ZFA Structural Engineers
Interior design The Office of Charles De Lisle
Civil Engineer Adobe Associates
Photographer Bruce Damonte
해당 프로젝트는 건축문화 2021년 11월호(Vol. 486)에 게재되었습니다.
The project was published in the November, 2021 recent projects of the magazine(Vol. 486).
November 2021 : vol. 486
Contents : RECORDS OPEN EXPO 2020 DUBAI, AND KOREA PAVILION 세계에 퍼지는 한국의 친환경 메시지, 그리고 “마당" : NEWS / COMPETITION / BOOKS : SKETCH THE REMARKABLE PLACE IN THE NEIGHBO..
anc.masilwide.com
'Architecture Project > Single Family' 카테고리의 다른 글
| Sou House (0) | 2022.02.08 |
|---|---|
| Casa Gloma (0) | 2022.02.07 |
| HAUS ON THE HILL (0) | 2022.01.11 |
| YANGPYEONG HOUSE (0) | 2022.01.10 |
| LAZY HOUSE (0) | 2022.01.04 |
마실와이드 | 등록번호 : 서울, 아03630 | 등록일자 : 2015년 03월 11일 | 마실와이드 | 발행ㆍ편집인 : 김명규 | 청소년보호책임자 : 최지희 | 발행소 : 서울시 마포구 월드컵로8길 45-8 1층 | 발행일자 : 매일



