
This project is a horizontal extension of an existing house as a separate building. The program of the old building accepts the existing functions as the main residential space, and the extended building is a program that serves as the client’s hobby space, resting space, and guest space.
The entire existing site is located on a slope with a beautiful mountain landscape in the background, and it is a place where the value of the view is maximized. Therefore, to enhance the value of such a view in the interior space, the vertical circulation was arranged on the rear side, and the opening was also designed by focusing only on the front part to give contrast to the circulation.
To give continuity of the elevation and space for the client, who has affection for the existing house, the form and location of the opening (corner window), and the size were similarly planned.
The rear elevation was constructed in a very solid way to densely compose the presence of the mass.
The location of the main entrance of the site was also changed, and the entrance was reconstituted between the old and extended buildings. Upon entering the site, the client can choose a circulation between the main space of the old building and the subspace of the extension building.
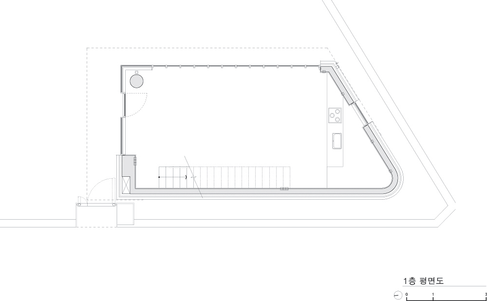
On the first floor, there is the living room where the client can dine with many people, and when the windows are opened, there is a large deck yard in front, and it was planned so that the internal and external space can be mixed and to maximize the character of step-free continuity. The stairway to the second floor was constructed with ‘U’-shaped steel cantilevers to give tension to the vertical circulation. The landscaping, interior, and furniture were also constructed by reflecting the unique sensibility and perspective of the owner.
In the rooftop garden, the mixed scenery of the city and nature in front is borrowed to give the experience of looking at a landscape painting.
We hope that the client can enjoy the richness and dense value of life in the newly extended architectural space.

본 프로젝트는 기존 주택에 별동으로 수평 증축하는 프로젝트이다. 주된 주거 공간으로서 기존의 기능을 그대로 수용하고, 증축동은 건축주의 취미공간과 휴식공간, 게스트 공간으로서 역할하는 프로그램을 구축하였다.
기존의 전체 대지가 유려한 산세를 배경으로 한 경사지에 위치하고 있고, 조망의 가치가 극대화된 곳이다. 따라서 내부 공간에서 그러한 뷰의 가치를 고양시키기 위해서 수직 동선을 배면으로 배치하였고, 개구부 또한 전면부로만 집중하여 동선상에 콘트라스트를 부여하여 설계하였다.
기존 주택에 애정을 갖고 있는 건축주를 위하여 입면과 공간의 연속성을 부여하려고, 개구부의 형상(모서리창)과 위치와 규격을 유사하게 계획하였다.
후면부 입면은 매우 솔리드 하게 구축하여 매스의 존재감을 밀도 있게 구성하려 하였다.
대지의 대문 출입구 위치 또한 변경하여 구축과 증축의 사이로 출입구를 변경하여 재구성하였다. 건축주는 대지에 들어오면서 구축의 주공간과, 증축의 부공간 사이에서 동선을 선택할 수 있다.
1층은 여러 사람들과 식사를 할 수 있는 거실로써 창호를 개방하면 전면의 넓은 데크 마당으로 내외부 공간이 혼합되며, 단차 없는 연속성의 성격을 극대화할 수 있도록 계획하였다. 2층으로 가는 계단은 ‘ㄷ’형강을 캔틸레버로 구축하여 수직 동선의 긴장감을 부여하고자 하였다. 조경과 내부 인테리어 및 가구 집기도 건축주의 고유한 감성과 안목을 반영하여 구성하였다.
옥상정원에서는 전면의 도시와 자연의 혼합된 풍경을 차경하여, 한 폭의 풍경화를 바라보는 경험을 부여하려 의도하였다.
건축주가 새로이 증축된 건축공간에서 삶의 풍요로움과 농밀한 가치를 누리며 살아갈 수 있기를 바라본다.














Architect LEE KEUN SIK ARCHITECTS
Location Gwacheon-si, Gyeonggi-do, Republic of Korea
Use Private house
Site area 669.00㎡
Built area 144.63㎡
Gross floor area 478.84㎡
Floor B1, 2F
Structure Reinforced concrete
Exterior finishing Red brick
Interior finishing Exposed concrete, Granite, Gypsum board
Project architect Keunsik Lee
Desing team Choonkun Bae
Construction Theo Construction
Photographer Uijin Gu
해당 프로젝트는 건축문화 2021년 10월호(Vol. 485)에 게재되었습니다.
The project was published in the October, 2021 recent projects of the magazine(Vol. 485).
October 2021 : vol. 485
Contents : RECORDS SEOUL ARCHITECTURE FESTIVAL 2021 성황리에 마친 서울건축문화제 2021 FORESCO, PREPARING FOR THE "CARBON NEUTRAL" THROUGH RECYCLING EXHIBITION 포레스코, 리사이클링 ..
anc.masilwide.com
'Architecture Project > Single Family' 카테고리의 다른 글
| Casa Gloma (0) | 2022.02.07 |
|---|---|
| FRAME HOUSE IN SONOMA (0) | 2022.02.04 |
| YANGPYEONG HOUSE (0) | 2022.01.10 |
| LAZY HOUSE (0) | 2022.01.04 |
| CURVED HOUSE (0) | 2022.01.03 |
마실와이드 | 등록번호 : 서울, 아03630 | 등록일자 : 2015년 03월 11일 | 마실와이드 | 발행ㆍ편집인 : 김명규 | 청소년보호책임자 : 최지희 | 발행소 : 서울시 마포구 월드컵로8길 45-8 1층 | 발행일자 : 매일


