
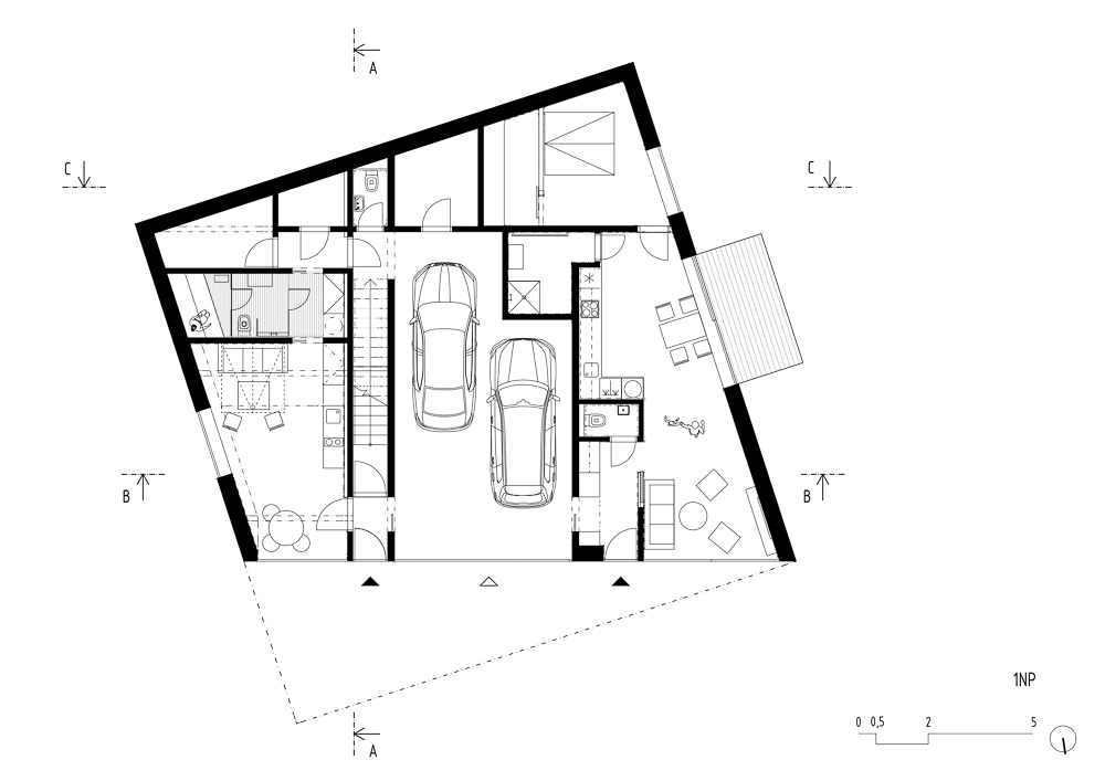
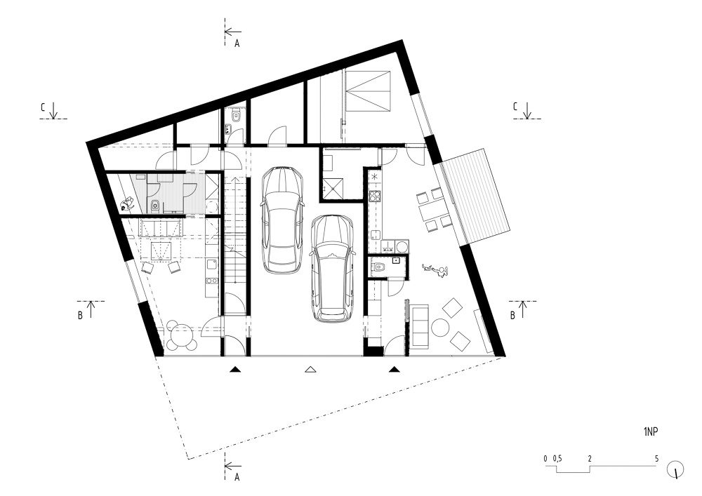
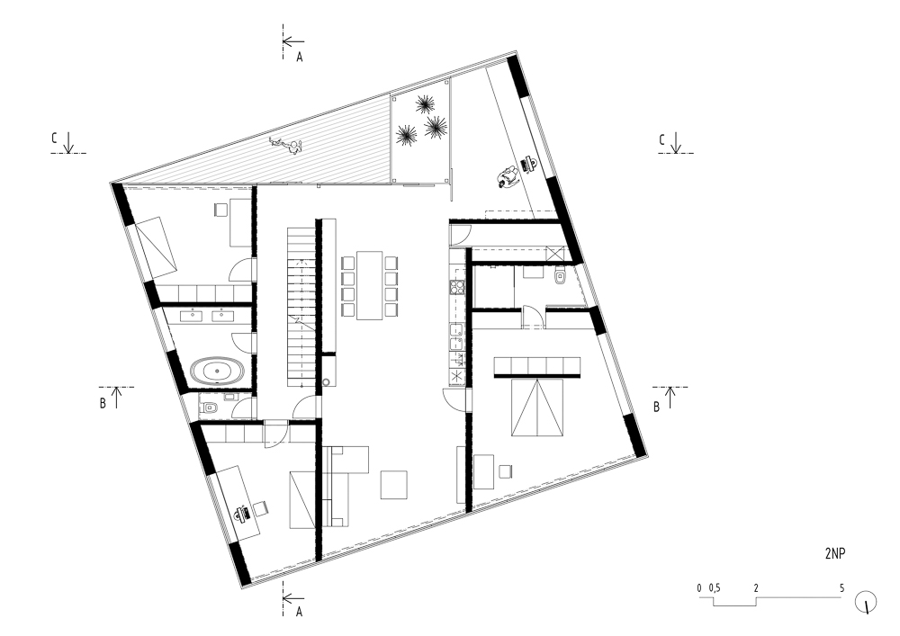
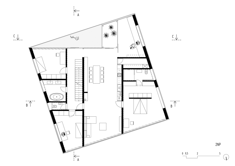
The house is situated seemingly outside the context of Baťa’s urbanism and its constructional and visual principles. However, the perception of Zlín is ubiquitous and defines the horizon of events by mutual visual contact. The composition is designed by a rotation of the interior layout, where the exterior follows the contour logic of the surrounding houses, while the interior turns towards the city in the direction of the plot’s boundaries. The house uses principle of aircraft camouflage. The main living floor is visually connected to the sky by dematerialization through mirroring and moiré facades and “levitates” on the Corten base set into the slope. From above, the green roof with the glass-walled studio merges with the garden city dotted with houses. The abstract metal exterior is balanced with the soft wooden interior with colourful accents of cast light that blend together during the evening. The layout of the main living floor minimizes corridors and is organized around a central social space connected to the garden in the south and the city in the north. Around it, there are the rooms with bathrooms, protected in contact with neighbours by a stainless-steel membrane. The lower floor contains a garage, a guest apartment with terrace, sauna and technical equipment. The garden flows around the house, ascends to the cellar with a fireplace and culminates in a residential grotto sunk in the terrain above the terrace with a swimming pool. The house changed owners during construction and was finished thanks to the development of the original concept. The title refers to the name of the locality and to the passive standard of the house. The technological solution uses heat pump with two earth boreholes and low-temperature heating and air conditioning with recuperation.

자연을 투영하여 풍경과 하나되는 집, 레이지 하우스
레이지 하우스는 체코 즐린의 도심과 동떨어진 곳에 위치한 집이다. 집의 방향은 도시를 향해 열려있지만, 외부는 주변 집들의 형태를 따른다. 집의 상부 매스는 회전되어 있는 것 처럼 보인다. 항공기가 위장하듯 자연을 투영하여 건축물 자체를 위장한 것 처럼 보인다. 거주인들의 주요한 기본 생활들이 이어지는 공간은 거울같은 효과를 가진 마감재가 하늘과 연결되듯 자연을 투영시키고 내부의 활동을 보지 못하도록 차단한다. 이렇게 집은 경사지 일부에 박혀있지만 공중 부양된 것 처럼 느껴지기도 한다. 집보다 더 높은 곳에서 바라보면 초록 지붕이 있는 유리 벽을 가진 집 처럼 느껴진다. 추상적인 철재 외관은 오후 동안 함께 어우러지는 주광의 형형색색 한 포인트가 있는 목재로 된 내부와 균형을 이룬다. 주요 생활층의 레이아웃은 복도를 최소화하며, 남 쪽의 정원, 북 쪽의 도시와 연결 된 핵심 사회 공간 주위에 조직되어 있다. 그 주위에는 이웃과의 접촉이 보호되는 화장실이 있는 객실들이 있다. 아래층은 창고, 테라스, 사우나가 있는 게스트룸 등의 공간이 있다. 정원은 집 주위를 부유하며, 벽난로가 있는 저장고로 올라가고 결국 수영장이 있는 테라스 위의 지형에 잠식된 주거용 작은 동굴로 마무리된다. 두 개의 시추 공이 있는 열 펌프와 저온 난방 및 회복성을 지닌 에어 컨디셔닝으로 집의 내부 공간은 쾌적하게 유지된다.



















Architect Petr Janda | Brainwork
Location Zlín, Czech Republic
Site area 1,400㎡
Building area 225㎡
Gross floor area 400㎡
Project period 2006 - 2020
Completion 2020
Principal architect Petr Janda
Lights Ateh
Structural engineer AREA ZLÍN
Photographer BoysPlayNice
해당 프로젝트는 건축문화 2021년 10월호(Vol. 485)에 게재되었습니다.
The project was published in the October, 2021 recent projects of the magazine(Vol. 485).
October 2021 : vol. 485
Contents : RECORDS SEOUL ARCHITECTURE FESTIVAL 2021 성황리에 마친 서울건축문화제 2021 FORESCO, PREPARING FOR THE "CARBON NEUTRAL" THROUGH RECYCLING EXHIBITION 포레스코, 리사이클링 ..
anc.masilwide.com
'Architecture Project > Single Family' 카테고리의 다른 글
| HAUS ON THE HILL (0) | 2022.01.11 |
|---|---|
| YANGPYEONG HOUSE (0) | 2022.01.10 |
| CURVED HOUSE (0) | 2022.01.03 |
| BAEGOKPO-RI TOWN HOUSE (0) | 2021.12.31 |
| Y-HOUSE (0) | 2021.11.15 |
마실와이드 | 등록번호 : 서울, 아03630 | 등록일자 : 2015년 03월 11일 | 마실와이드 | 발행ㆍ편집인 : 김명규 | 청소년보호책임자 : 최지희 | 발행소 : 서울시 마포구 월드컵로8길 45-8 1층 | 발행일자 : 매일



