
Curved House is sculpted from a white solid cube. Its straight boundaries have been carved out with large spheres, resulting in a combination of linear, curved and double-curved geometries that define both its outer and inner spaces.
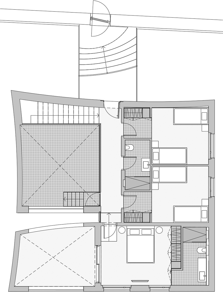
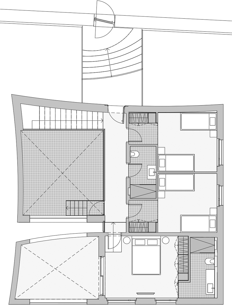
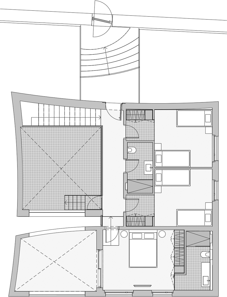
In contrast to its soft concave engravings, sharp vertical incisions organise the program in plan. Footprint restrictions lead to the creating of two hidden roof patios for stargazing and open-cinema summer nights.
When entering Curved House from its upper bridge, one has the feeling of walking into an open-air room, a private enclosed exterior were the strong mediterranean sunlight bounces on its whitewashed walls. The breathtaking sea view is framed several times through the consecutive openings on the patios’ walls, thus creating a feeling of illusion. Despite its compact look, the plan is laid out in six visually connected levels that enhance an uninterrupted flow between its stepping platforms. Light slits between slabs enlarge our vision of space and create one single continuous open area. The same technique is used in order to bring natural light into the basement, completely transforming its perception.
Full-floor-height concrete beams span over the 12m wide living room and porch. From these structural walls sequenced windows were punched out working as Vierendeel beams. The day area is conceived as one large unfolding space, framed by the bold gesture of an upper and lower arch. Under its double-curved 4m clear height ceiling porch one feels protected from neighbouring views, focusing on the garden and sea views. The stepping ground floor not only adapts to the natural terrain, but also allows the living room to look over the porch and block the strong sun. This four bedroom villa may be accessed from both the upper and lower street. From above, a bridge with curved stairs and rope handrails hovers over the steep topography, while from bellow one climbs a winding stair around a circular pool.
Entering the house through the bedroom floor entailed a challenge that was solved by transforming the hall into a bright indoor/outdoor patio and seamlessly connecting first- and ground floor through an extra-wide metal stair. Local species were used to create a wild and low maintenance garden with a circular pool and wooden sundeck that gently floats over the existing landscape.

곡선들이 만들어낸 안식의 공간, 커브드 하우스
커브드 하우스는 흰 정육면체에서 디자인이 시작됐다. 곧은 경계는 거대한 구에서 깎아내듯 계획됐고, 선과 곡선, 쌍곡선의 기하학적 구조들을 통해 내·외부의 공간들이 만들어졌다.
오목 판화 기법의 부드러운 외관과는 대조적으로, 날렵한 수직적 절개를 통해 평면 프로그램이 구성됐다. 대지의 규모적 제한은 지붕에 숨겨진 두 개의 파티오를 통해, 별을 보는 것과 여름밤의 야외극장을 위한 공간으로 창출됐다.
낮은 지면부에서 상단에 위치한 커브드 하우스로 들어설 때, 사람들은 외부 공간을 걷는 느낌을 받는다. 프라이버시를 위해 차폐된 외관은 깔끔하게 미장되었으며 지중해의 강렬한 자연광이 쏟아진다. 넓은 바다 풍경은 벽의 연속적인 개구부를 통해 여러 번 프레임화되어 인상적인 풍경을 제공한다. 간결하게 마감된 모습이지만 평면은 계단을 통한 동선을 방해받지 않으면서 여섯 개의 연결된 층에 다채롭게 펼쳐져 있다. 슬라브 사이의 밝은 틈은 풍성한 시각요소를 제공하고 균일한 콘셉트로 연결되는 개방영역을 만들어준다. 지하실 또한 같은 방법으로 내부에 자연채광을 들이고 있다.
바닥까지 닿는 콘크리트 빔은 12m 넓이의 거실과 현관으로 걸쳐져 있다. 구조벽에 배열된 개구부는 비렌델 구조의 역할을 하면서 만들어졌다. 낮 시간에는 상단과 하단을 구성하는 아치의 대담한 표현으로 짜인 하나의 큰 공간으로 인식된다. 쌍곡선으로 된 4m 높이의 현관 아래에서 사람들은 정원과 바다 조망을 즐기며 외부의 시선으로부터 보호되는 느낌을 받는다. 계단이 있는 1층은 자연적 지형을 수용하면서 거실에 들어오는 강한 햇빛을 차단한다. 이 건물은 상부 및 하부의 골목으로부터 접근 가능하다. 아래에서는 사람들이 원형의 수영장 주위를 둘러싼 구불구불한 계단을 통해 접근하며, 위에서는 곡선의 계단과 밧줄 손잡이가 있는 다리를 통해 접근한다.
침실이 있는 층에서 집 안으로 들어가는 것은 메인 홀을 밝은 실내와 외부 테라스로 바꾸고 넓은 철재 계단을 통해 매끄럽게 공간을 연결하는 것으로 해결했다. 현지에 자생하는 식물들을 통해 원형 수영장과 나무 데크가 있는 정원에 야생적이면서도 관리가 용이한 정원을 계획했다.












Architect NOMO STUDIO
Location Minorca, Spain
Program Single Family House
Site area 600㎡
Building area 125㎡
Gross floor area 177㎡
Design period 2016. 6 - 2020. 9
Completion 2020. 9
Principal architect Alicia Casals
Project architect Alicia Casals
Design team Karl Johan Nyqvist, Mira Botseva, Jennifer Méndez, Donka Dimitrova, Giorgia Conti, Maria Andonova, Polina Skorina, Sam Azrak
Buiding engineer Mus & Seguí
Structural engineer STRUMA 2005 Collaborator (Furniture) Aquitania / (Carpenter wood) Verdneix
Construction Juan Mora S.A via Gaimo Menorca Construccions S.L.
Photographer Adriâ Goulá
해당 프로젝트는 건축문화 2021년 10월호(Vol. 485)에 게재되었습니다.
The project was published in the October, 2021 recent projects of the magazine(Vol. 485).
October 2021 : vol. 485
Contents : RECORDS SEOUL ARCHITECTURE FESTIVAL 2021 성황리에 마친 서울건축문화제 2021 FORESCO, PREPARING FOR THE "CARBON NEUTRAL" THROUGH RECYCLING EXHIBITION 포레스코, 리사이클링 ..
anc.masilwide.com
'Architecture Project > Single Family' 카테고리의 다른 글
| YANGPYEONG HOUSE (0) | 2022.01.10 |
|---|---|
| LAZY HOUSE (0) | 2022.01.04 |
| BAEGOKPO-RI TOWN HOUSE (0) | 2021.12.31 |
| Y-HOUSE (0) | 2021.11.15 |
| EDGE HOUSE (0) | 2021.11.12 |
마실와이드 | 등록번호 : 서울, 아03630 | 등록일자 : 2015년 03월 11일 | 마실와이드 | 발행ㆍ편집인 : 김명규 | 청소년보호책임자 : 최지희 | 발행소 : 서울시 마포구 월드컵로8길 45-8 1층 | 발행일자 : 매일



