
Town House Baegokpo-ri is a project to plan a total of nine townhouses along the foot of the mountain around a detached house built in Baegokpo-ri, Yongpyeong-myeon, Pyeongchang-gun, Gangwon-do. In 2006, when the existing detached house was completed, it was to build a house on a about 3,305.78m2 that was difficult to enjoy in Seoul.
At the time of design, I first arrived at the site and looked at the land at the end of the mountain, and the direction was usually facing south with my back to the slope, whereas the top of the mountain was facing south, so I wondered if he had lived under the illusion of direction. It was a bold choice for the client because it was built face-to-face rather than along the mountain peak on the slope. The design and composition were also not common, so local residents could not think of it as a house. However, Baegokpo-ri’s detached house, which I visited again after 15 years, served as a weekend house with his family and became a house that gave satisfaction and pride to the client.
At the request of the owner to build a townhouse above the well-established house for 15 years, the townhouse, which will be at a higher level than the existing house, was designed with the idea that it should be an objet in harmony with the natural scenery of Pyeongchang and the existing 15-year-old house. The level was reorganized to reflect the unique topography of the site as much as possible to adapt to nature, and an outer space was constructed to expand and connect the inside and outside landscape elements to prevent disconnection between the site and the site.
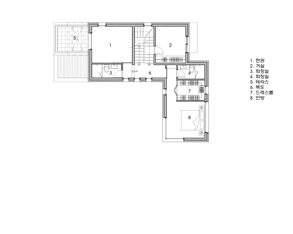
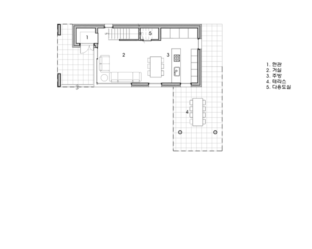
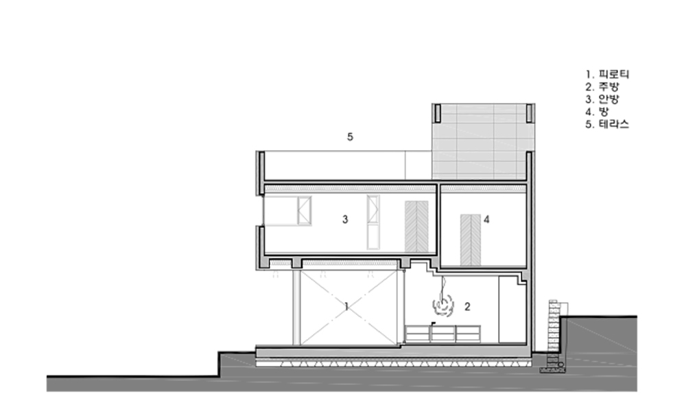
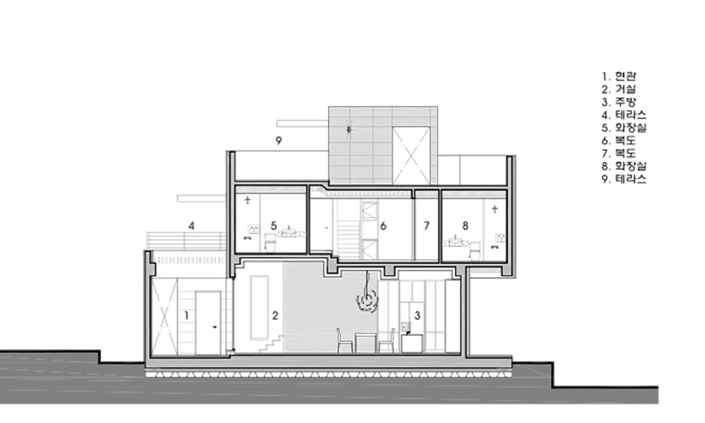
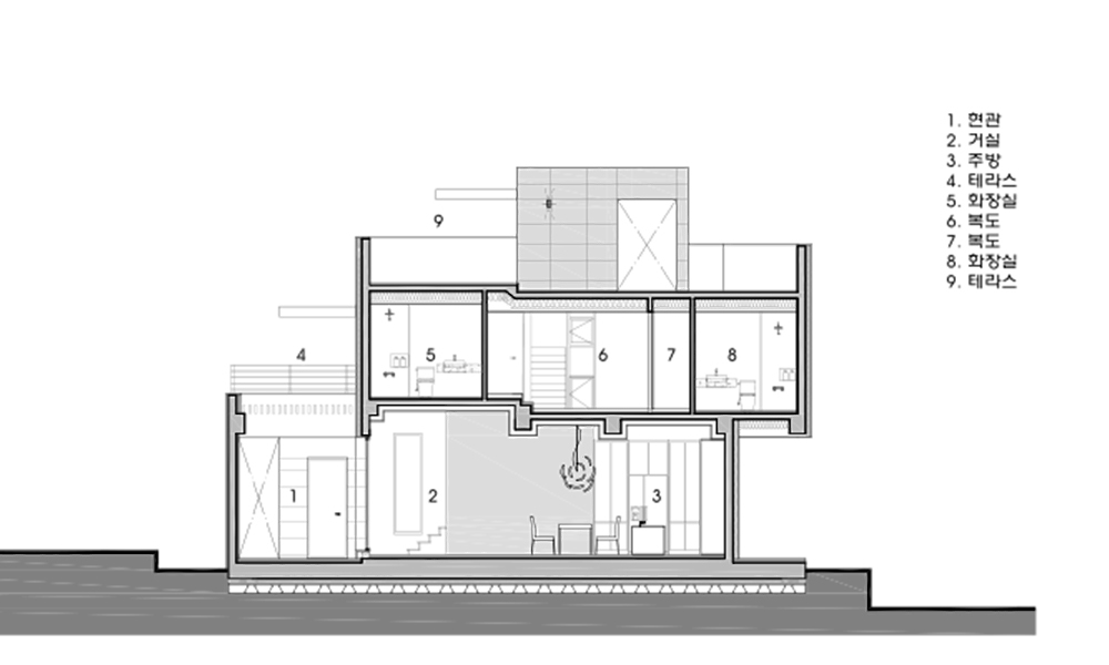
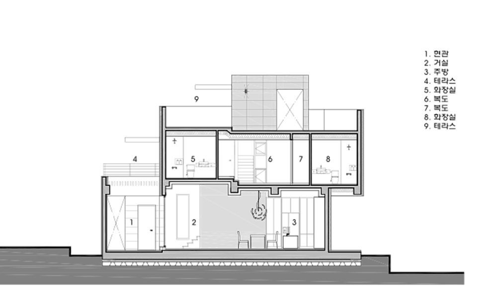
I imagined a view, a viewable building, and a view that would be seen from each space on top of the time calculation of the site. The hills of the neighborhood entrance from the main room, the front yard from the living room, the backyard and access road from the stairs, the village from the second floor, the mountains facing from the rooftop, and various rural landscapes were the backgrounds to be designed. How much can an architect narrow the difference between what is seen and and protect the existing scenery? Baegokpo-ri which I visited again 15 years later from 2006 to 2021, had land, buildings, and client became friends with each other, and I try to reconstruct the landscape into a new space composition through another townhouse. Hoping that this will also be a natural object on the site.

주택의 새로운 변화, 백옥포리 타운하우스
땅은 살아있다. 백옥포리 타운하우스는 강원도 평창군 용평면 백옥포리에 세워진 단독주택 주변에 산자락을 따라 총 9채의 타운하우스를 계획하는 프로젝트다. 기존의 단독주택이 준공된 2006년 당시, 서울에서는 누리기 어려운 1,000평 부지에 집을 짓는 것이었다. 처음 대지에 도착해 산자락 끝의 대지를 보며 향(向)이 보통은 경사면을 등지고 남향인데 반해 산의 정상이 남향으로 되어 있어 향을 착각하고 산 것이 아닌지 의구심이 들었었다. 경사지에서 산봉우리를 따라 지은 것이 아닌 맞대면하여 지은 주택이라 건축주로서는 과감한 선택이었다. 디자인과 구성 또한 일반적이지 않아 동네 주민들이 주택이라고는 생각하지 못할 정도였다. 그러나 15년이 지나 다시 방문하게 된 백옥포리의 단독주택은 가족들과 서울을 오가며 주말 주택으로서의 역할을 충실히 하며 건축주에게 만족도와 자부심을 주는 주택이 되어 있었다.
15년간 잘 자리 잡은 주택의 위쪽으로 타운하우스를 지어달라는 건축주의 새로운 요청으로 기존의 주택보다 높은 레벨에 자리하게 될 타운하우스는 평창의 자연경관과 기존의 15년된 주택과 어우러져 하나의 오브제(Objet)가 되어야 한다는 생각으로 설계를 진행했다. 부지 고유의 지형을 최대한 반영하여, 자연에 순응하는 배치가 될 수 있도록 레벨을 재구성하고, 부지와 부지 사이가 단절되지 않으면서, 안과 밖의 경관적 요소가 확장 연결될 수 있도록 외부 공간을 구성하였다.
산 정상에 올라 보이는 풍경, 보여지는 건축물, 그리고 대지의 시간 각각의 공간에서 바라보게 될 풍경을 상상해 보았다. 안방에서 바라볼 동네 진입의 언덕, 거실에서 바라다보는 실개천과 앞마당, 계단실에서 바라보는 뒷마당과 진입도로, 2층 방에서 내려다보는 마을, 옥탑에서 마주보이는 앞산, 다양한 시골의 풍경이 곧 내가 설계해야 될 공간에 담아야 할 배경이었다. 보이는 것과 보여지는 것의 차이를 건축가가 얼마나 좁히며 기존의 풍광을 지킬 수 있을까. 2006년에서 2021년, 15년이 지나 다시 찾은 백옥포리는 땅과 건축물 그리고 건축주가 서로 친구가 되어 있었고, 나는 또 다른 성격의 타운하우스를 통해 새로운 공간구성으로 경관을 재구성 해본다. 이 또한 부지에 자연스러운 오브제가 될 것임을 기대하면서.











Architect KUNIN E&C ARCHITECTURE
Location Baegokpo-ri, Yongpyeong-myeon, Pyeongchang-gun, Gangwon-do, Republic of Korea
Program Town house
Site area 450㎡
Building area 77.69㎡
Gross floor area 95.19㎡
Building scope 2F
Building to land ratio 17.26%
Floor area ratio 21.15%
Design period 2019. 12 - 2020. 6
Construction period 2020. 6 - 2021. 5
Completion 2021. 5
Principal architect KUNIN E&C Architecture
Project architect KUNIN E&C Architecture
Design team KUNIN DESIGN TEAM
Structural engineer WON
Mechanical engineer / Electrical engineer Yousung Total Engineering CO., LTD
Client Gwijong Park, Boksun Kim
Photographer Yongsu Kim
해당 프로젝트는 건축문화 2021년 10월호(Vol. 485)에 게재되었습니다.
The project was published in the October, 2021 recent projects of the magazine(Vol. 485).
October 2021 : vol. 485
Contents : RECORDS SEOUL ARCHITECTURE FESTIVAL 2021 성황리에 마친 서울건축문화제 2021 FORESCO, PREPARING FOR THE "CARBON NEUTRAL" THROUGH RECYCLING EXHIBITION 포레스코, 리사이클링 ..
anc.masilwide.com
'Architecture Project > Single Family' 카테고리의 다른 글
| LAZY HOUSE (0) | 2022.01.04 |
|---|---|
| CURVED HOUSE (0) | 2022.01.03 |
| Y-HOUSE (0) | 2021.11.15 |
| EDGE HOUSE (0) | 2021.11.12 |
| HOUSES OF CARDS (0) | 2021.10.28 |
마실와이드 | 등록번호 : 서울, 아03630 | 등록일자 : 2015년 03월 11일 | 마실와이드 | 발행ㆍ편집인 : 김명규 | 청소년보호책임자 : 최지희 | 발행소 : 서울시 마포구 월드컵로8길 45-8 1층 | 발행일자 : 매일



