
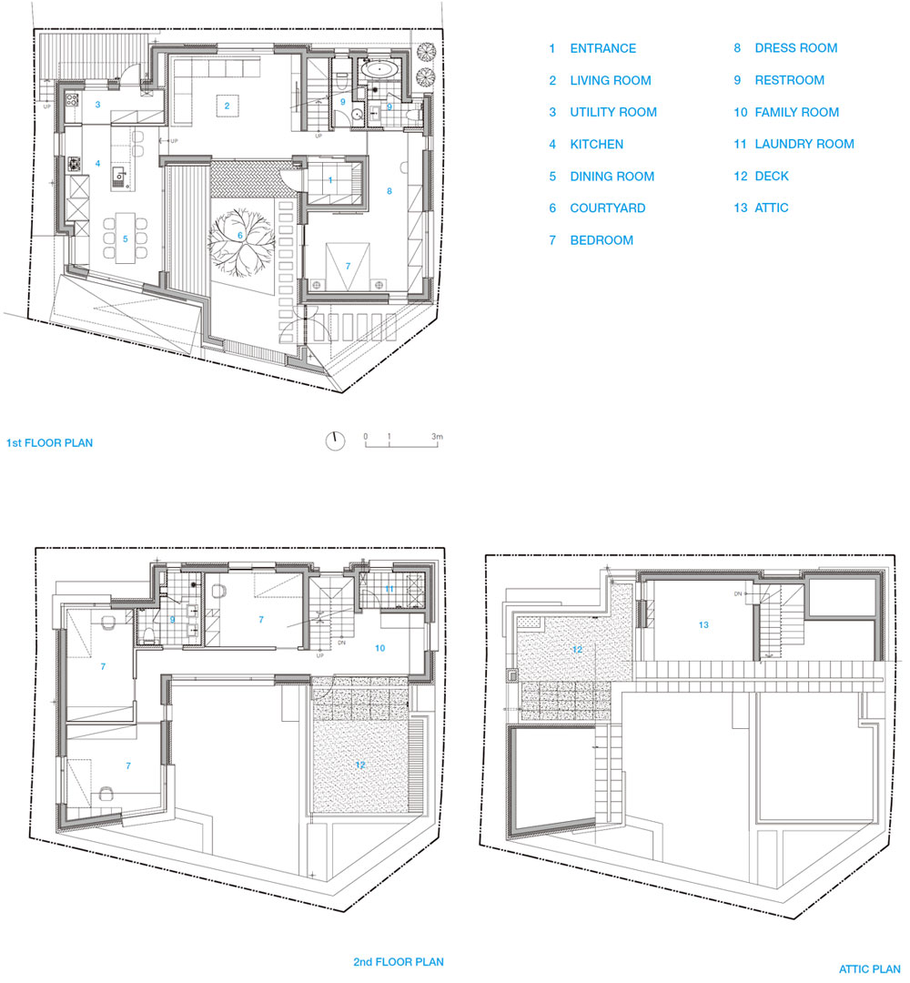
The Edge House has unique features seen at the southern entrance of the complex as one enters the detached house site. The house has a river view on the south side of the site, and has a courtyard inside, so it feels closed, but it is a cozy and open space for families. The space is located along the corner road to protect the courtyard, and the wide deck that opens to the southeast on the second floor ensures a dramatic sense of openness and a constant amount of sunlight. The shape of the roof was determined according to the district unit planning guidelines, but considering the locational characteristics of the house built on two sides of the road, the architect’s efforts to create it to look like a new and colorful space every time it is viewed from a different angle can be seen. Inside, it is a house for five family members, a married couple and three children, but you can see that it was remodeled with drywall in mind so that it can be used as a variable space if the children leave home in the future.

코너형 단독주택의 다채로운 모습, 연경동 단독주택
연경동 단독주택은 단독주택용지로 들어가는 단지 남측 입구에서 다양한 모습으로 읽히는 집이다. 집은 대지 남측에 있는 하천을 바라보는 조망권을 가지고 있으며, 내부에 계획된 가족만을 위한 중정은 폐쇄적이지만 그들에게는 아늑하고도 열린 공간이라는 것이 특징이다. 코너형 길을 따라 공간이 배치되어 있어 중정이 보호되고, 2층에 남동쪽으로 열려 있는 넓은 데크는 극적인 개방감과 일정한 일조량을 확보할 수 있다. 지구단위계획 지침상 지붕의 형태가 정해져 있었는데, 오히려 2면 도로변에 위치한 집의 위치적 특성을 고려하여 다각도로 바라볼 때마다 새롭고 다채로운 공간으로 보이도록 해석한 건축가의 노력이 엿보인다. 건물은 부부와 세 자녀가 거주하는 5인 가족을 위한 집이지만, 추후 자녀들의 분가에 따라 가변적인 공간으로 쓰일 수 있도록 건식 벽체로 리모델링을 염두에 둔 것도 볼 수 있다.








Architect ALT ARCHITECTS
Location Yeongyeong-dong, Buk-gu, Daegu, Republic of Korea
Program House
Site area 231.00m2
Building area 115.29m2
Gross floor area 195.26m2
Building scope 2F
Building to land ratio 49.91%
Floor area ratio 84.53%
Design period 2019. 8 - 2020. 5
Construction period 2020. 9 - 2021. 4
Completion 2021. 4
Principal architect Jongkyu Nam
Project architect Jongkyu Nam
Construction Architecture Consulting Woo, Jaebak Oh
Photographer Donggyu Yoon
해당 프로젝트는 건축문화 2021년 9월호(Vol. 484)에 게재되었습니다.
The project was published in the September, 2021 issue of the magazine(Vol. 484).
September 2021 : vol. 484
Contents : RECORDS 39TH SEOUL ARCHITECTURE AWARD 서울시, 제39회 서울특별시 건축상 발표 WOOD PLASTIC COFFEE DECK, THE MATERIAL IN THE LEADING CARBON-NEUTRAL ERA 커피박 합성목재, 선..
anc.masilwide.com
'Architecture Project > Single Family' 카테고리의 다른 글
| BAEGOKPO-RI TOWN HOUSE (0) | 2021.12.31 |
|---|---|
| Y-HOUSE (0) | 2021.11.15 |
| HOUSES OF CARDS (0) | 2021.10.28 |
| NUDGE HOUSE (0) | 2021.10.27 |
| Up There! (0) | 2021.08.31 |
마실와이드 | 등록번호 : 서울, 아03630 | 등록일자 : 2015년 03월 11일 | 마실와이드 | 발행ㆍ편집인 : 김명규 | 청소년보호책임자 : 최지희 | 발행소 : 서울시 마포구 월드컵로8길 45-8 1층 | 발행일자 : 매일



