
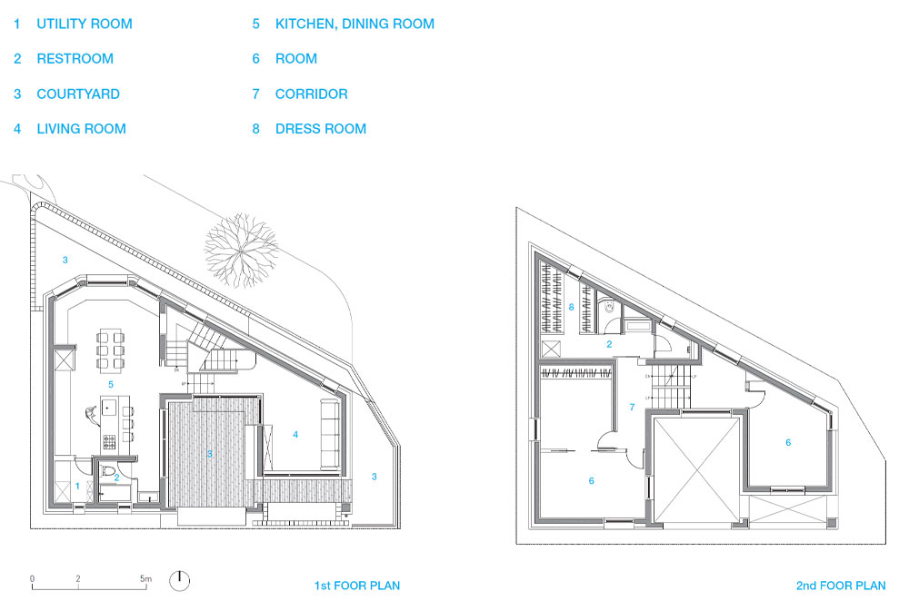
Due to the characteristics of the housing site development districts to the south, the site of Nudge House not only has its light blocked since the house in front covers the south, but to the west, an apartment complex building with around a dozen floors also stands like a wall. Because of this, the light gradually disappears after 1 o’clock in the winter and the surroundings enter the shadow of the apartment complex. If there isn’t much natural light, it may be enough to replace it with artificial light, but the light quality is incomparable. The first step of the plan was to create a courtyard, a light well to procure light. In the city center, it is common to make a courtyard to secure privacy, but since Nudge House’s building area was just over 66㎡ pyeongs, we wondered if it was possible to make a courtyard. Fortundately, using a skip floor structure, a suitably sized kitchen and living room area was procured and a courtyard was placed in between. At this moment, the living room could feel small, so a window was installed to the south, and the deck was continuously arranged so that it could seem as if the living room was extending out the window. As for the courtyard, a bagkirai deck was placed considering its utilization so that the owner can freely wander around even without wearing any shoes.
The second issue is privacy. Because of the small size of the site, most houses are built close to the boundaries of the sote within the limit allowed by law, so it is difficult to avoid having the window next door look down at our yard and living room. We believe that the double conflict of having to open because light is needed, but at the same time having to close for privacy protection is also happening in many areas within the housing site development district. As for Nudge House, the fence on the first floor was opened but the sights and gazes were covered with plantings. The second floor solved this issue with brick masonry. It was impossible to completely cover the house due to its nature of needing light, so gaps were made between the bricks be able to let in some light as well as act as a screen with the front house. Thanks to this, it is one of the many pleasures to be able to see the sight of light shining through the bricks at night.
The site is not without its drawbacks. The 12m road on the north side is a cherry tree-lined road and it turns pink and white in spring, and at night, the white cherry blossoms fall under the roadside trees. After they fall, the green leaves cast a shadow. In order to enjoy the scenery of this tree-lined road, a small backyard was arranged towards the north. The fence was made to naturally curve and embrace the backyard, to give a warm, albeit small, feeling and atmosphere. Behind the backyard is the kitchen of Nudge House. A large three-sided window was installed so that the client family, who wanted a particularly large kitchen, could all sit around the table in the evening and enjoy the scenery outside. It is our hope that they can feel the passing of the seasons at least at that moment, when time flies by so quickly.

변화하는 계절을 느낄 수 있는 집, 넛지하우스
넛지하우스의 대지는 남측을 향해 켜켜이 들어선 택지개발지구의 특성상 앞집이 남쪽을 가려 빛을 가리고 있을 뿐 아니라 서측은 십여 층에 이르는 아파트 한 동이 마치 장벽처럼 서 있는데, 덕분에 겨울에는 1시가 조금 넘어가면 주변은 아파트 그림자 속으로 들어간다. 자연광이 부족할 때 인공광으로 대신하면 그만일 수도 있지만 광질은 비교할 수 없다. 계획안의 첫걸음은 빛을 확보할 수 있는 빛우물, 중정을 만드는 것이었다. 도심에서 프라이버시 확보를 위해 중정을 만드는 것은 흔한 일이다. 넛지하우스는 20평이 조금 넘어서 과연 중정이 가능할까 싶었지만, 스킵플로어 구조를 활용해 적당한 주방과 거실의 면적을 확보하고 그 사이에 중정을 끼워 넣었다. 이때 거실 남쪽으로 전창을 두고 마루가 창밖으로 확장되어가는 분위기를 느낄 수 있게 외부에는 데크를 연속해서 배치했다. 마당은 활용을 고려해 방킬라이 데크를 두어 신발을 신지 않더라도 마음껏 돌아다닐 수 있게 하였다.
두 번째 문제는 프라이버시 문제다. 넓지 않은 대지의 형편상, 대부분 집은 대지 경계선에 법이 허용하는 한도 내에서 바짝 붙이게 되므로 옆집 창이 우리 마당과 거실을 내려다 보는 일은 피하기 어렵다. 빛이 필요해 공간을 열면서도 동시에 사생활 보호를 위해서 닫아야 하는 이중 갈등이 아마 택지개발지구 내 많은 땅에서 일어나고 있는 중이라 예상된다. 넛지 하우스의 1층은 담장을 열되 식재를 두어 시선을 가렸다. 2층은 벽돌 준공쌓기 방식으로 이를 해결했다. 빛이 필요한 집의 특성상 완전히 가릴 수도 없는 형편이라, 벽돌 사이사이를 비워 빛도 어느 정도 들이면서 앞집과의 스크린 역할도 할 수 있게 한 것이다. 덕분에 밤이 되면 벽돌 사이를 통과하는 빛의 풍경을 볼 수 있게 된 것도 즐거움 중 하나다.
대지가 단점만 있는 건 아니다. 북측 12m 도로의 벚나무 가로수 길은 봄이 되면 분홍색, 흰색으로 변하고, 밤이 되면 가로수 아래 하얗게 빛나는 벚꽃이 드리운다. 지고 나면 녹색 잎들이 그림자를 드리운다. 이 가로수 길을 풍경으로 즐기기 위해 북쪽으로 조그만 후정을 두었다. 담장이 자연스럽게 곡선을 그리면서 후정을 감싸 안고 있어, 좁지만 따뜻한 느낌이 들도록 했다. 후정 뒤로 넛지하우스의 주방이 있다. 특별히 큼직한 주방을 원한 건축주 가족들이 저녁이면 모두 식탁에 둘러앉아 외부 풍경을 즐길 수 있도록 커다란 삼면창을 두었다. 쏜살같이 지나가는 시간 속에서 그 순간만이라도 계절이 지나가는 시간을 느낄 수 있기를 바란다.
















Architect NAAULAB ARCHITECTS
Location Jukjeon-dong, Suji-gu, Yongin-si, Gyeonggi-do, Republic of Korea
Program House
Site area 166.3㎡
Building area 80.43㎡
Gross floor area 199.26㎡
Building scope B1, 2F
Building to land ratio 48.36%
Floor area ratio 81.06%
Construction period 2019. 11 - 2020. 6
Completion 2020. 6
Principal architect Junseok Choi, Hyunho Cha
Project architect Hyunho Cha
Structural engineer DELTA
Mechanical engineer SEWON engineering
Electrical engineer JUNGYUN engineering
Construction RE-WON
Photographer Namsun Lee
해당 프로젝트는 건축문화 2021년 8월호(Vol. 483)에 게재되었습니다.
The project was published in the August, 2021 issue of the magazine(Vol. 482).
August 2021 : vol. 483
Contents : RECORDS 2021 KOREA YOUNG ARCHITECT AWARD 문체부, 2021 젊은 건축가상 발표 : NEWS / COMPETITION / BOOKS : SKETCH THE SHAWSHANK REDEMPTION / CRISTINA CORREA FREILE 쇼생..
anc.masilwide.com
'Architecture Project > Single Family' 카테고리의 다른 글
| EDGE HOUSE (0) | 2021.11.12 |
|---|---|
| HOUSES OF CARDS (0) | 2021.10.28 |
| Up There! (0) | 2021.08.31 |
| Palo Alto Residence (0) | 2021.08.30 |
| 18 Screens (0) | 2021.08.27 |
마실와이드 | 등록번호 : 서울, 아03630 | 등록일자 : 2015년 03월 11일 | 마실와이드 | 발행ㆍ편집인 : 김명규 | 청소년보호책임자 : 최지희 | 발행소 : 서울시 마포구 월드컵로8길 45-8 1층 | 발행일자 : 매일



