
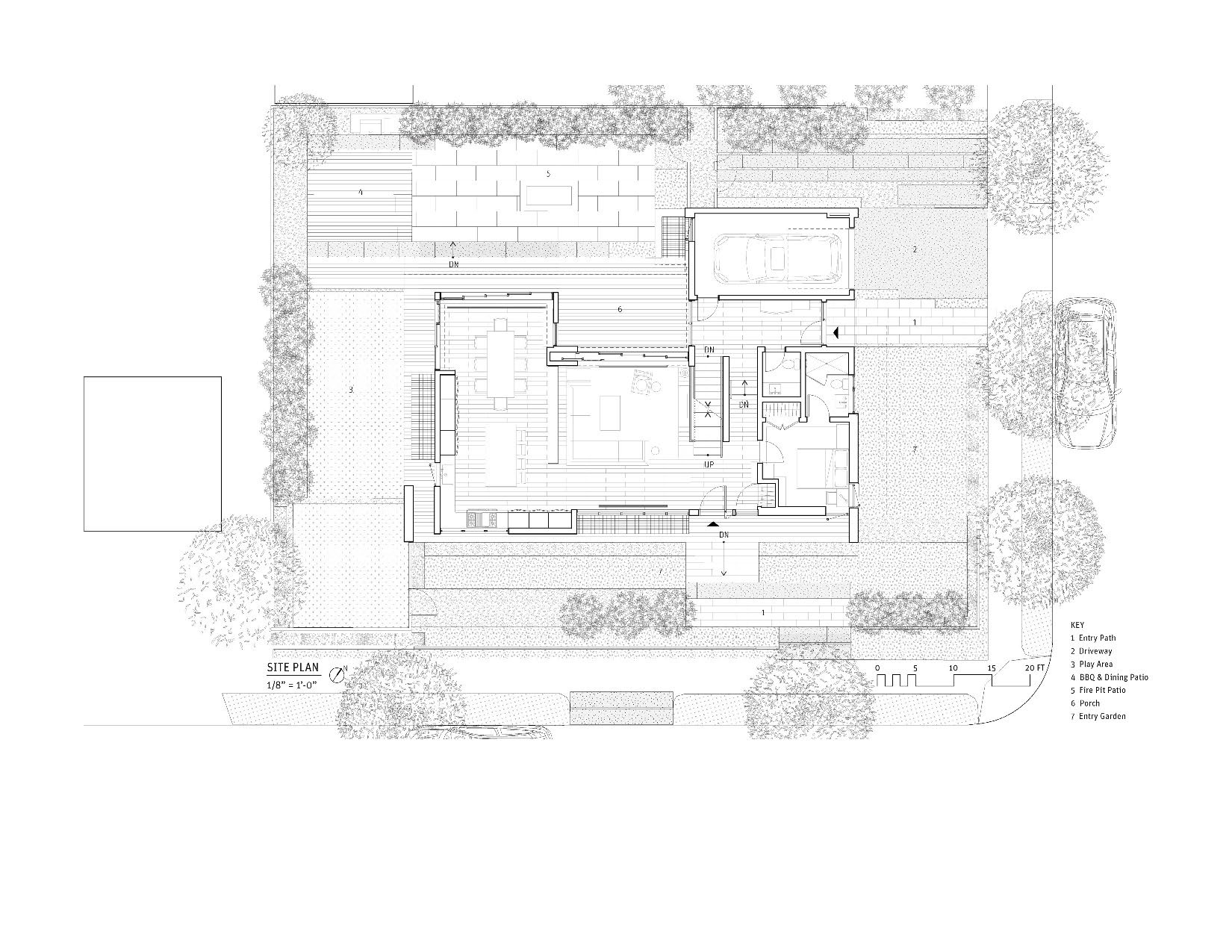
젊은 부부인 건축주는 오래된 팔로알토의 눈에 띄면서도 작은 코너 부지에 5인 가족을 위한 새로운 주택을 짓기 위해 스튜디오 바라에 의뢰했다. 많은 프로그램과 제한된 부지의 크기로, 그들은 건축가에게 작고 유연하지만 존재감있는 집을 원했다.
이 퍼즐을 풀기위해 건축가는 친밀하면서도 넓은 야외공간과 밀접하게 맞물린 공간의 '루빅스 큐브'를 콘셉트로 집을 구상했다. 매스를 분해하고 조밀한 직선형 외피 내에서 가벼움을 만들어내면서, 위로 올라갈 때 시야에서 이동하는 3개의 적층 볼륨을 분명히 하기 위해 지하실에는 콘크리트를, 1층은 목재, 2층은 아연판 등 각기 다른 고유의 재료를 사용했다. 메인 레벨이 약간 위로 올라가 있어 지하에 자연광이 침투해 전체 지하에 빛과 공기가 공급된다. 신중하게 고려된 개구부 창문의 배치는 외관에 장식성과 리듬감을 추가한다.
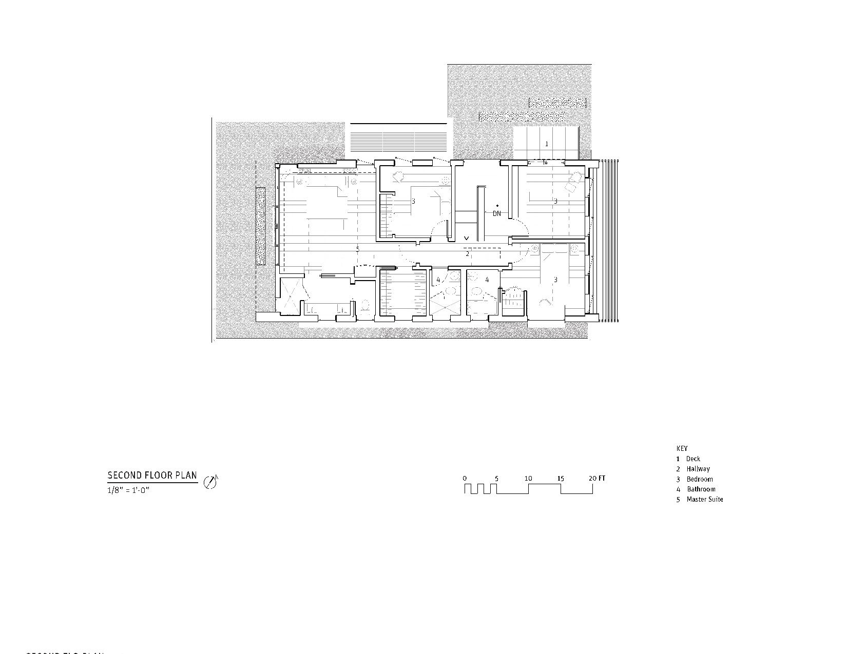
내부는 호화로운 소재와 세련된 디테일이 집안을 넓고 고급스러운 느낌이 들게한다. 천장부터 바닥까지 연속적으로 내려오는 유리벽은 외부의 자연광이 집을 투과하고 시야를 극대화해 넓은 느낌을 준다. 우아하고 신중하게 고려된 캐비닛과 메인 레벨의 빌트인 가구를 통해 열린 평면이 다락방처럼 느껴지지 않도록 조절한다. 연속적인 석재 벽 위에 세워진 조각같은 강철 계단은 집 전체의 균형을 잡고 3개 층을 통합한다. 2층의 안방은 사생활 보호와 외부 전망을 위해 전략적으로 구성되어 있다.

A young couple approached Studio VARA to design a new ground-up residence for their busy family of five on a prominent yet petite corner lot in Old Palo Alto. With a generous program and a limited allowable footprint, they challenged the designers to create a small, flexible home with a large presence.
To solve this puzzle, Studio VARA conceived of the house as a Rubik’s Cube of tightly interlocking spaces that expand outward into a landscape of intimate yet generous outdoor rooms. To break up the massing and achieve lightness within a compact, rectilinear envelope, they used distinct materials to articulate three stacked volumes that shift and recede from sight as they move up: concrete for the basement, wood at the main level, and dark zinc for the top floor. The main level is lifted slightly above grade, allowing deep light wells to penetrate underground and provide light and air to a full basement. Carefully considered window placement adds ornament and rhythm to the façade.
Inside, sumptuous materials and sophisticated detailing make the home feel large and luxurious. Uninterrupted floor-to-ceiling glass walls allow the outdoors and daylight to penetrate the house and maximize sightlines to achieve a feeling of spaciousness. Elegant, carefully considered cabinetry and built-ins in the kitchen and entertaining areas on the main level ensure that the open-plan does not feel loft-like. A sculptural steel stair set against a continuous stone-slab wall anchors the entire house and unifies the three levels. Upstairs, the master suite and bedrooms are strategically organized to ensure privacy and views outside.





















Architects Studio VARA
Location Palo Alto, California, United States of America
Completion 2018
Landscape design Studio VARA
Interior design Studio VARA
Lighting designer Tucci Lighting
Structural engineer FTF Engineering
Construction Von Clemm Construction
Photographer Matthew Millman Photography
'Architecture Project > Single Family' 카테고리의 다른 글
| NUDGE HOUSE (0) | 2021.10.27 |
|---|---|
| Up There! (0) | 2021.08.31 |
| 18 Screens (0) | 2021.08.27 |
| Langlois-Lessard Residence (0) | 2021.08.26 |
| BRICK HOUSE (0) | 2021.08.25 |
마실와이드 | 등록번호 : 서울, 아03630 | 등록일자 : 2015년 03월 11일 | 마실와이드 | 발행ㆍ편집인 : 김명규 | 청소년보호책임자 : 최지희 | 발행소 : 서울시 마포구 월드컵로8길 45-8 1층 | 발행일자 : 매일



