
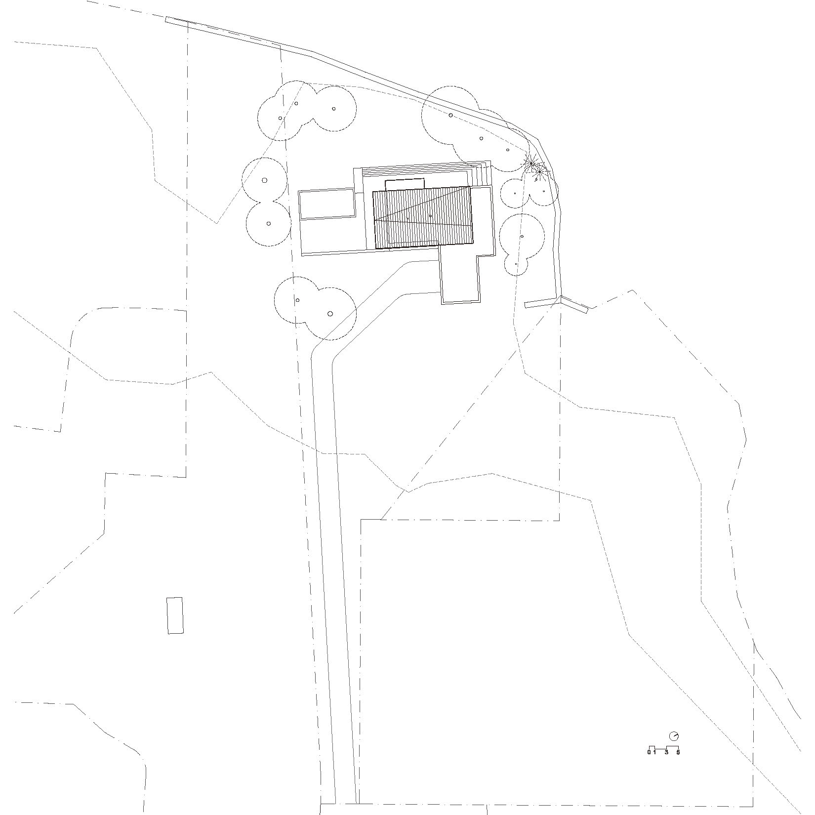
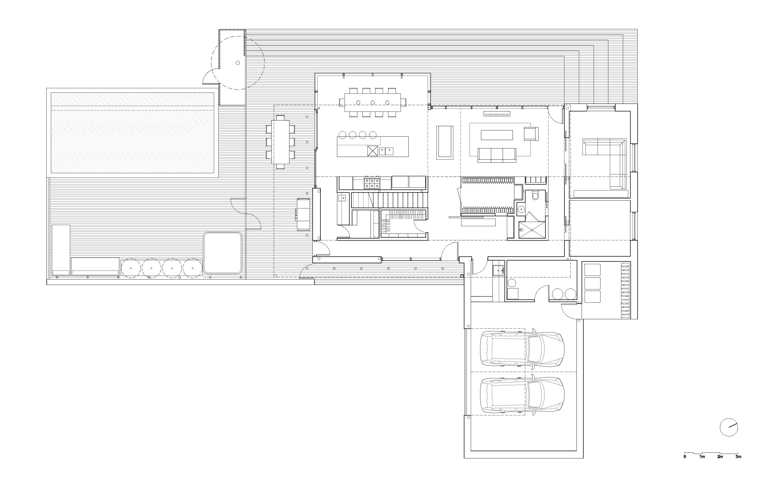
Located in a flood zone along the shore of Lake Saint-Louis, the design of the Langlois-Lessard Residence is a direct response to the interrogations that where raised during the visit to the site. The reflections included how to integrate architecturally with an exceptional natural site and how to define the spatiality of the house, its volume and its fabric in response to the site itself.

To preserve the pristine beauty of the site and its many mature trees a compact footprint was adopted by the architects Chevalier Morales, keeping the pool integrated with the house through a low horizontal wall of natural stone which also ensure intimacy. Only seven percent of the site is built upon. Oriented towards impressive views and sunsets, the residence is sited near the water, creating the impression from within that the interior spaces are unfolding onto the lake.

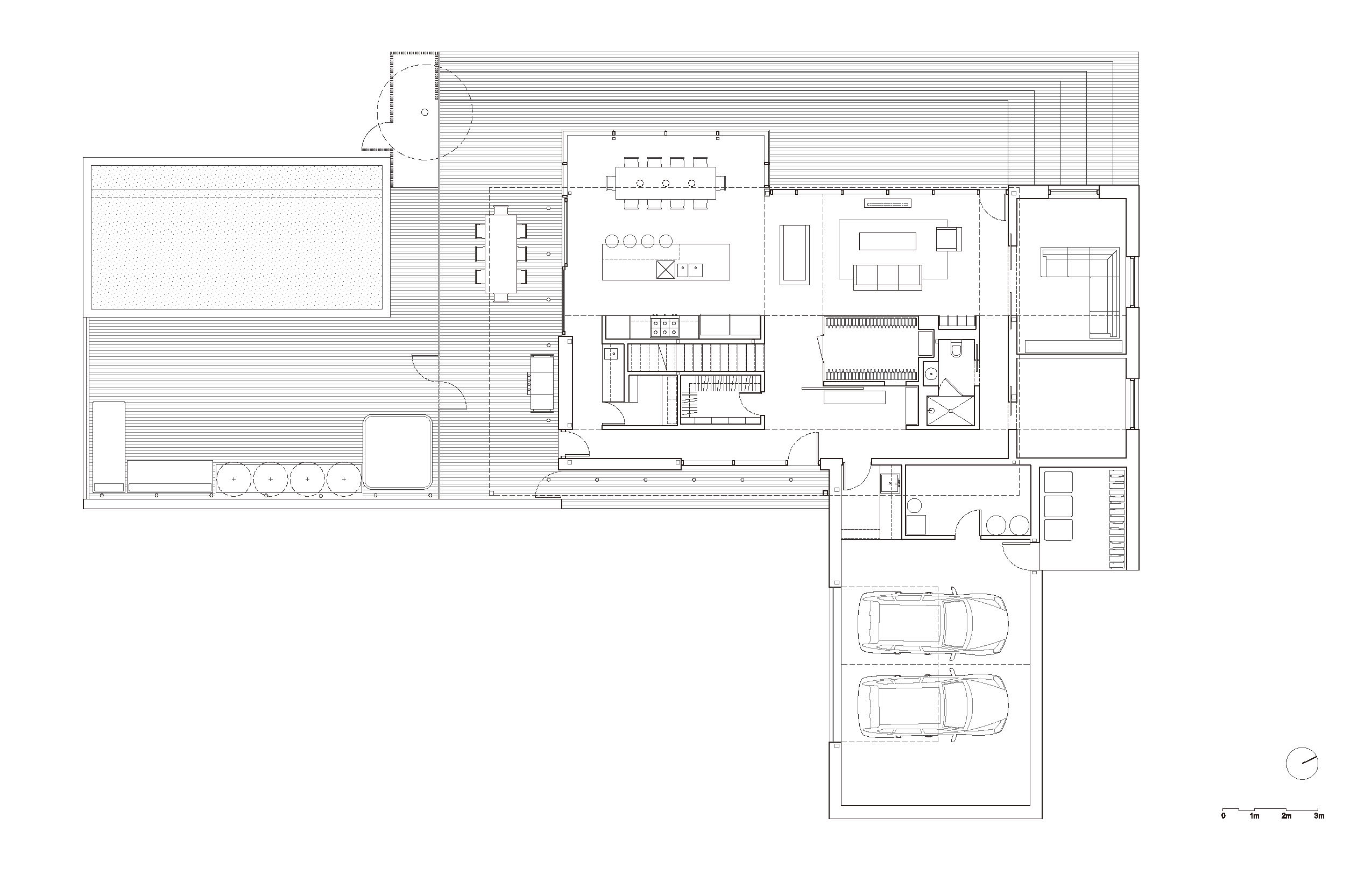
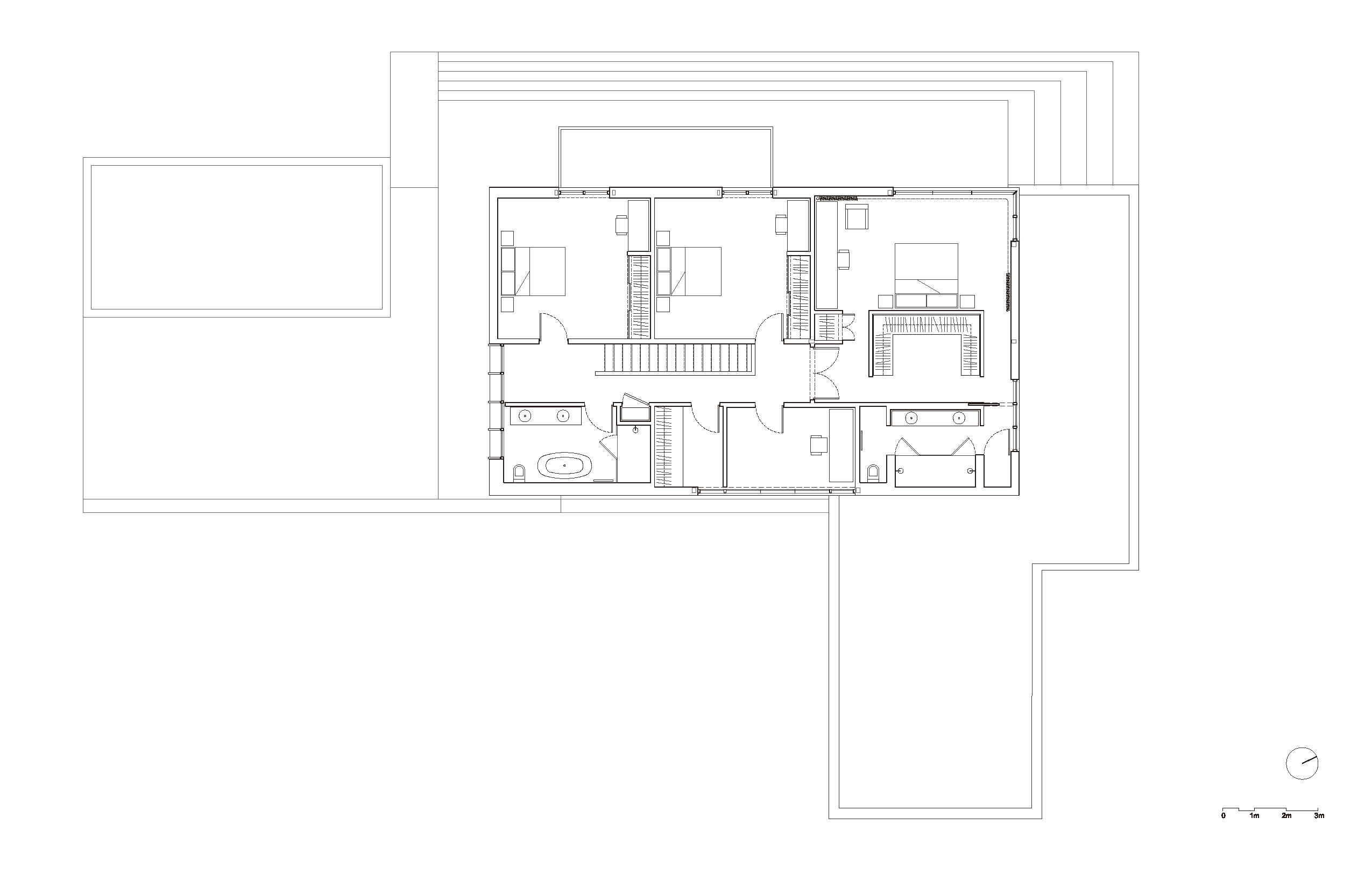
Both the exceptional quality of the landscape and solar orientation of the site guided the general planning of living spaces on both floors. As the project progressed and was refined, many architectural elements come to define the spatial identity of the house. First, an open fireplace its on the axis of the main entrance, at the heart of the volume, while service blocks detached from the exterior walls flank its sides, creating subtle sculptural volumes. Next, each floor is characterized by a remarkable spatial openness, yet the two are only connected through a very narrow and minimalist staircase. Given the water’s proximity and the elusive nature of the horizon beyond, we imagined the ground floor not only without double-height spaces but additionally with a relatively low ceiling, reinforcing the view towards the horizon. Inversely, on the second floor, the bedrooms enjoy interesting angular ceilings that generate a whimsical play of light and shadow.

The volume of the house follows from two principles: to offer intimacy to the owners and to react to the strong winds that originate in the west. The relatively opaque stone base offers the required intimacy, stretching along the pool while also establishing an artificial horizon on which the upper volume lies. The latter is displaced to offer a covered terrace protected from the sun on the pool side. The roof has been shifted and angled in response to the surrounding nature environment.

세인트 루이스의 호숫가를 따라 위치한 랑글루아-레사드 레지던스의 디자인은 사이트를 방문하는 동안 즉각적으로 계획될 수 있었다. 디자인에는 뛰어난 자연 부지와 건축을 통합하는 방법과 대지 자체에 대한 응답으로 집의 공간성, 볼륨 및 구조를 정의하는 방법이 포함되어 있다.

대상지의 깨끗한 아름다움과 많은 나무들을 보존하기 위해 건축가는 '작은 발자국'이라는 콘셉트 하에, 낮은 수평 벽을 통해 집과 수영장을 통합했다. 따라서 대상지의 7%에만 건축계획이 수립되었다. 인상적인 전망과 일몰을 자랑하는 이 주택은 호수 근처에 위치하기 때문에 내부 공간이 호수 위로 펼쳐지는 듯한 느낌을 준다.

뛰어는 경관과 부지의 자연광 방향은 두 개층으로 계획된 주택의 생활 공간을 전반적으로 계획하는데 도움을 주었다. 프로젝트가 진행되면서 많은 건축 요소가 집의 공간적 정체성을 정의하게 되었다. 첫 째, 볼륨의 중심에 있는 주 출입구 축에 개방형 벽난로를 설치하고 외벽에서 분리된 서비스 영역의 볼륨을 측면에 배치해서 미묘한 조형미를 만든다. 다음으로, 각 층은 공간적 개방성이 특징이지만 두 층은 매우 좁고 미니멀한 계단을 통해서만 연결된다. 수공간과의 접근성과 그 너머의 지평선이 드러나지 않는 특성을 감안할 때, 건축가는 지평선을 향한 시야를 강화하기 위해 1층의 천장을 상대적으로 낮게 계획했다. 반대로 2층의 침실은 빛과 그림자의 묘한 유희를 자아내는 각진 천장을 계획했다.

건물의 부피감은 건축주에게 친밀감을 제공하는 것과 서쪽에서 불어오는 강풍에 대응하는 방법에 따라 디자인 되었다. 상대적으로 불투명한 석재 바닥은 수영장을 따라 뻗어 있으며, 상부의 매스가 놓이는 인공적인 수평선을 설정하여 안정감을 준다. 상부의 매스는 수영장 쪽에서 지붕이 있는 테라스를 만들기 위해 계획된 것이다. 지붕은 주변 자연 환경에 따라 각도를 조정했다.















Architect Chevalier Morales
Location Léry, Canada
Gross floor area 418m2
Collaborators Géniex - Air Fortier
Photographer Chevalier Morales
'Architecture Project > Single Family' 카테고리의 다른 글
| Palo Alto Residence (0) | 2021.08.30 |
|---|---|
| 18 Screens (0) | 2021.08.27 |
| BRICK HOUSE (0) | 2021.08.25 |
| River House (0) | 2021.08.24 |
| Chalet Lakeside (0) | 2021.08.23 |
마실와이드 | 등록번호 : 서울, 아03630 | 등록일자 : 2015년 03월 11일 | 마실와이드 | 발행ㆍ편집인 : 김명규 | 청소년보호책임자 : 최지희 | 발행소 : 서울시 마포구 월드컵로8길 45-8 1층 | 발행일자 : 매일



