
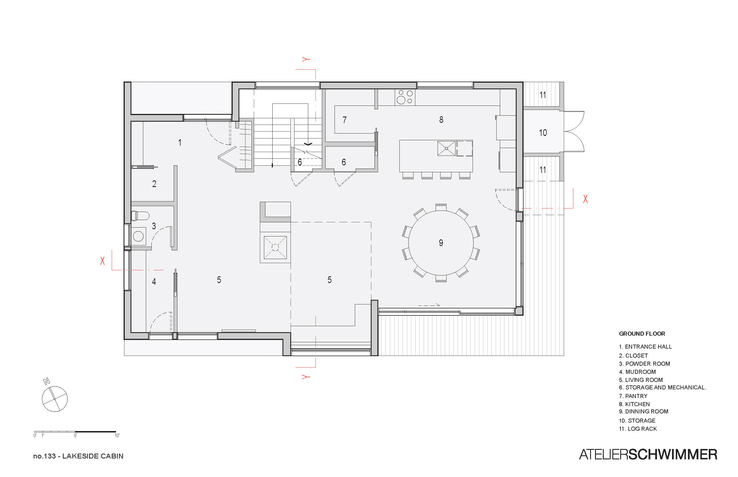
We have created the Black Cabin situated near a small town in the Eastern Townships, set amongst classical 19th- century houses and more recently built modest cottages. Conceived as an archetypical house, the building has three entrances, forming a loggia at the entrance and at the back, and a covered terrace on the side.

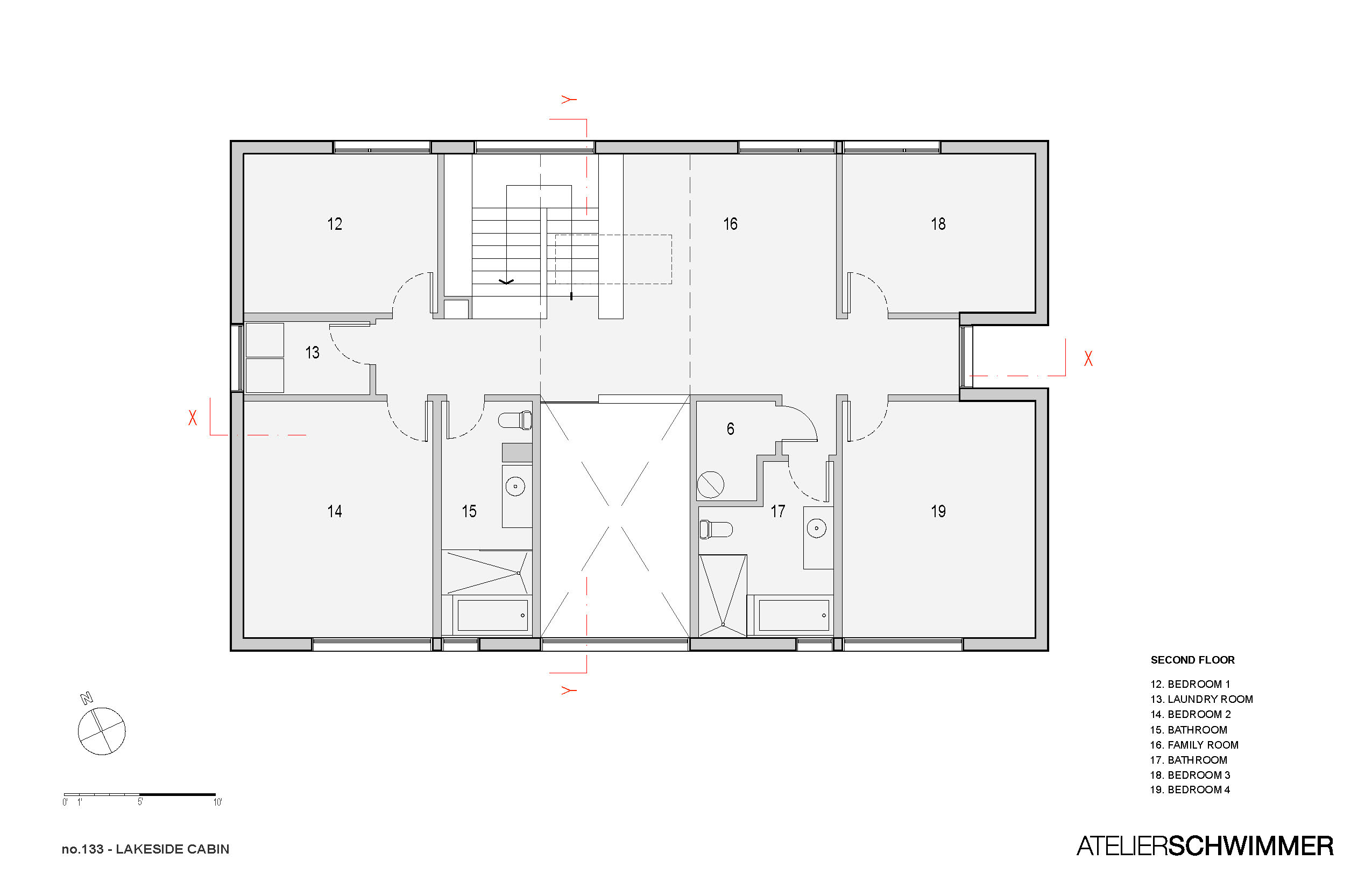
The cabin is centered around an atrium that opens to the outdoors. The design was developed around a fireplace set beside a triple-height area that makes it visible from everywhere within the cabin thus generating a canyon of hospitality. Located in the center of a concrete slab floor on the ground floor, it divides the open space into areas of various spatial qualities. On both sides of the canyon, glazed walls offer views on the outdoors. Traversing the canyon on the second floor is a bridge that creates more common space. Four bedrooms open onto the bridge.

The exterior cladding is made of larch treated with two methods. Charred planks face directly the elements and natural oil protects the recessed less exposed planks. This play of dark and light increases the singular aspect of the house.

건축가는 19세기 고전적인 주택과 최근에 지어진 수수한 오두막집을 배경으로 이스턴 타운쉽의 작은 마을 근처에 위치한 블랙 캐빈을 만들었다. 전형적인 가옥으로 보이는 이 건물은 입구와 배면에 통나무 모양의 입구가 세 개 있고, 측면에는 테라스가 있다.

오두막은 야외로 통하는 아트리움을 중심으로 구성되어 있다. 3중 높이의 벽난로를 중심으로 오두막 안 어디에서나 볼 수 있다. 1층 콘크리트 슬래브 바닥 중앙에 위치하고 있으며, 개방된 공간을 다양한 공간적 특성의 영역으로 나눈다. 이 협곡같은 공간 양쪽에는 유리로 된 벽이 있어 야외 풍경을 감상할 수 있다. 2층에 협곡을 횡단하는 다리가 있고, 침실 4개가 다리 위에 배치되어 있다.

외부 마감은 두 가지 방법으로 처리된 낙엽송으로 만들어졌다. 표면을 그을린 판자와 천연 오일로 처리된 판자는 목재를 보호하는 기법이며, 이 어둡고 밝은 재료의 교차적 이용은 건물의 독특함을 만들어내고 있다.








Architect Atelier Schwimmer
Location Lac-Brome, Canada
Gross floor area 297m2
Completion 2019
Design team Felix Schwimmer, Francesca Fiaschi
Consultants Yannick Pelletier –Structural Eng., Yves Leblanc -. Hydro.Eng., Steve St-Hilaire - PercoDesign.
Construction Dunfab construction, Guillaume Dumas
Photographer Adrien Williams
'Architecture Project > Single Family' 카테고리의 다른 글
| BRICK HOUSE (0) | 2021.08.25 |
|---|---|
| River House (0) | 2021.08.24 |
| La Frangine (1) | 2021.08.20 |
| CIRCLE WOOD HOUSE (0) | 2021.08.05 |
| MADELEINE HOUSE (0) | 2021.08.04 |
마실와이드 | 등록번호 : 서울, 아03630 | 등록일자 : 2015년 03월 11일 | 마실와이드 | 발행ㆍ편집인 : 김명규 | 청소년보호책임자 : 최지희 | 발행소 : 서울시 마포구 월드컵로8길 45-8 1층 | 발행일자 : 매일



