
Madeleine House, Gogi-dong is a work+living space for the client, who operates a furniture store. It consists of a furniture store in the basement level and a house with two floors aboveground. The site is long from east to west, and there is a stepped level difference with the adjacent sites to the north and south. To the north of the site is a panoramic view of the main road and the entire village from a distance.

The client hoped to fully enjoy a view of the village and the foothills of the mountains in the distance. In the beginning stage of the design, the idea was that the house sitting on the slope would have a view of the wonderful mountain landscape, but not look like a folding screen in the middle of the hill when viewed from the village on the bottom of the hill.

I thought deeply about a design with a good relationship with the surrounding terrain. First, the stylobate of the building was formed by using the furniture store of the basement level, the entrance staircase, and the fence as one element. The building is retracted one layer behind from the entrance, and the height of the fence and retaining wall is kept as low as possible, so that the inclined road and the building are naturally connected. The house aboveground is retracted one layer behind from the entrance road on the west side of the site so that it is not overwhelming upon entry, and is placed adjacent to the north side of the site to allow a view of the village scenery while receiving the warm sunlight from the south.

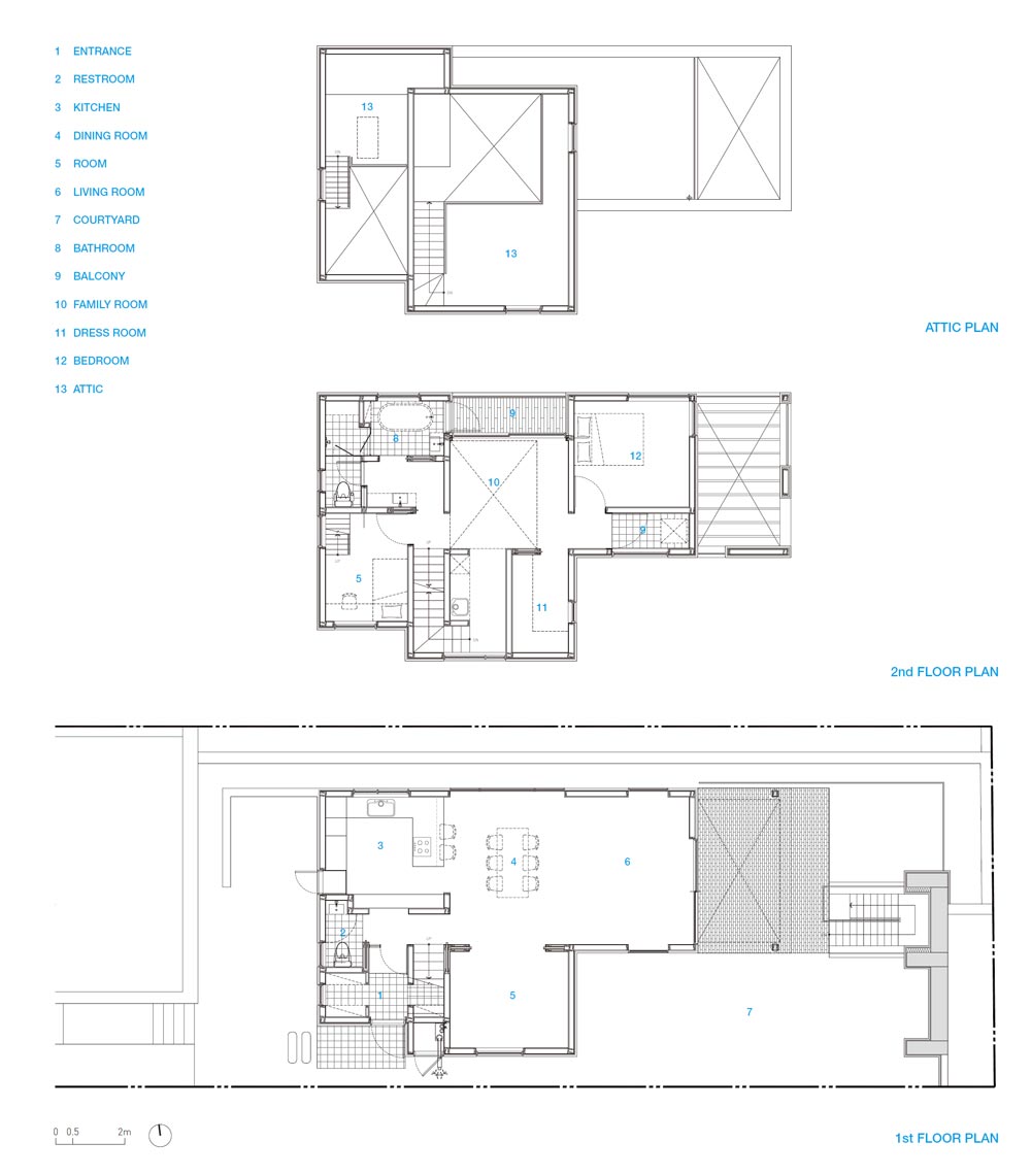
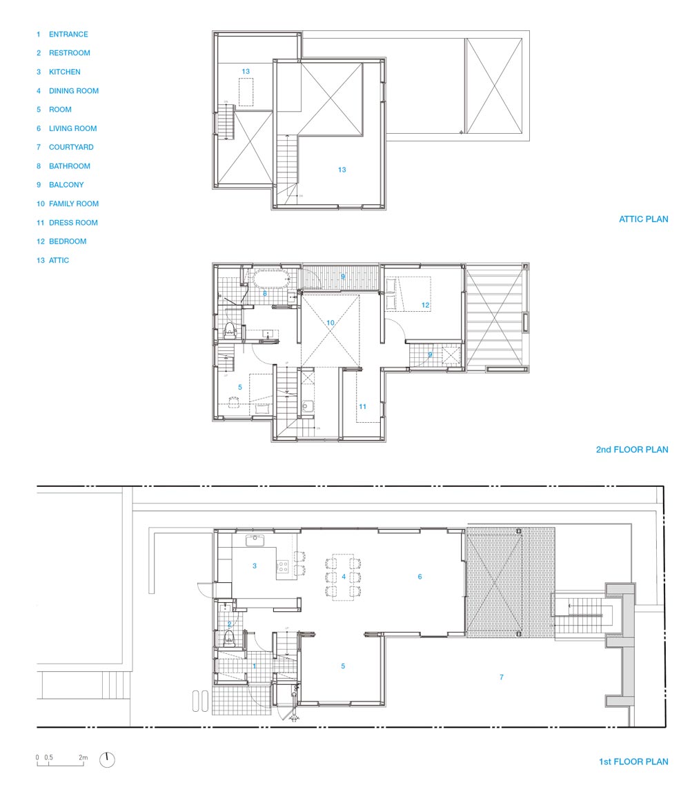
All windows are designed with a specific purpose. In the front of the first floor, there is a horizontal clerestory to divide the front mass and alleviate pressure. In addition, there are large windows in the living and dining rooms, which are common spaces, from where they can enjoy the scenery. A false wall was installed on the terrace of the second-floor master bedroom to protect privacy, and here too, a wide opening was created as an extension of the window design so that the surrounding landscape could penetrate deep into the space.

고기동 마들렌 하우스는 가구매장을 운영하는 건축주의 ‘직주’를 위한 공간으로 지하의 가구매장과 지상 2개층 규모 단독주택이 대지는 동서로 길고 남북의 인접 대지와 계단식 레벨차가 있으며 대지 북측으로 멀리 큰 길과 마을 전체가 훤히 내려다보인다. 건축주는 멀리 펼쳐진 마을과 산자락 풍경을 마음껏 조망할 수 있기를 희망했다.

설계의 시작은 멋진 산자락 풍경을 조망할 수 있는 주거공간이면서도 바깥에서 경사지에 앉은 집의 자세가 낮은 쪽 마을에서 올려 보았을 때 마치 구릉 중간을 가로막는 병풍 같은 집이 되지 않길 바라는 생각이었다. 주변 지형과 좋은 관계를 맺는 집에 자세에 대해 고민했다.

우선 지하의 가구매장과 진입 계단, 담장을 하나의 요소로 하여 건물의 기단을 형성했다. 대지 진입부에서 건물을 한 켜 물러난 배치로 하고 담장과 옹벽의 높이는 가능한 낮게 하여 경사진 도로와 건물이 자연스럽게 연결될 수 있도록 했다. 지상층 단독주택은 대지 서측 진입도로에서 한 켜 더 물러난 배치로 하여 진입 시 건물의 위압감을 줄였으며, 대지 북측에 인접하게 배치하여 마을 풍경을 조망하면서도 남향의 따스한 볕을 받을 수 있도록 했다.

창문은 모두 명확한 목적으로 디자인됐다. 1층 전면엔 수평으로 연속된 고측창을 두어 전면 매스를 분절하며 위압감을 완화했다. 여기에 공용공간인 거실과 다이닝, 가족실엔 큰 창을 계획하여 차경을 즐길 수 있도록 했다. 2층 안방 테라스엔 사생활 보호를 위한 가벽이 설치되었는데, 여기에도 창호 디자인의 연장으로 너른 개구부를 비워내 주변 풍경이 공간 깊숙이 스며들 수 있도록 했다.



Architect UTAA COMPANY + OHOO ARCHITECT
Location Gogi-dong, Suji-gu, Yongin-si, Gyeonggi-do, Republic of Korea
Program House, Retail store
Site area 336.00m2
Building area 66.93m2
Gross floor area 299.51m2
Building scope B2, 2F
Building to land ratio 19.92%
Floor area ratio 37.75%
Design period 2019. 5 - 2020. 4
Construction period 2020. 5 - 11
Completion 2020. 11
Principal architect Changgyun Kim + Seoyoung Noh
Photographer Yousub Song
해당 프로젝트는 건축문화 2021년 6월호(Vol. 481)에 게재 되었습니다.
The project was published in the June, 2021 issue of the magazine(Vol. 481).
June 2021 : vol. 481
Contents : RECORDS COMPETITION OPEN : SEOUL ARCHITECTURE AWARDS & ARCHITECTURAL STORYTELLING CONTEST WITH ME : NEWS / COMPETITION / BOOKS : SKETCH THE REASON WHY I LIKE A PLEIN AIR / ZOSIA JEMIOŁO
anc.masilwide.com
'Architecture Project > Single Family' 카테고리의 다른 글
| La Frangine (1) | 2021.08.20 |
|---|---|
| CIRCLE WOOD HOUSE (0) | 2021.08.05 |
| CABIN SENJA (0) | 2021.07.30 |
| A CASA DO CAMPO LINDO (0) | 2021.07.08 |
| NEW HOUSE IN THE OLD GARDEN (0) | 2021.07.07 |
마실와이드 | 등록번호 : 서울, 아03630 | 등록일자 : 2015년 03월 11일 | 마실와이드 | 발행ㆍ편집인 : 김명규 | 청소년보호책임자 : 최지희 | 발행소 : 서울시 마포구 월드컵로8길 45-8 1층 | 발행일자 : 매일



