
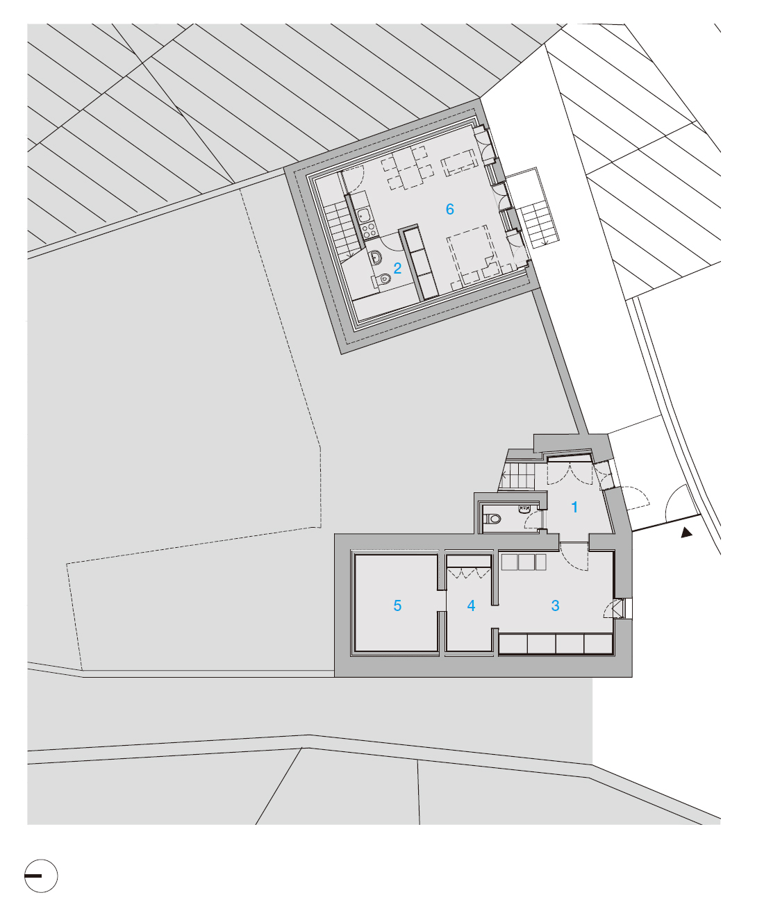
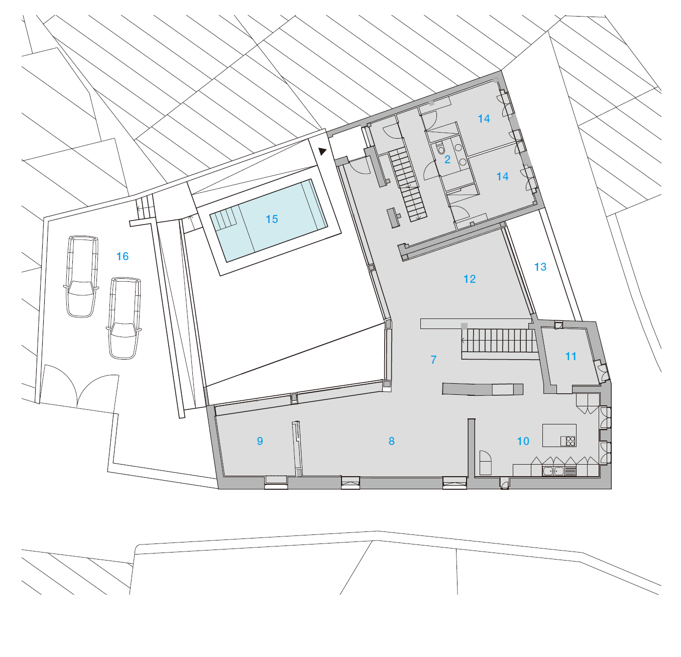
The project had the goal to unify two pre-existing ruined buildings to create a detached single-family house.

Unifying and restoring these two houses, a “L” shaped volume was created, which defined an embraced exterior space with a swimming pool. The common and private spaces are distinguished with definition of the volumes and interior design. The Common areas(kitchen, living room, gym and multipurpose room) are one-floor-open-space and private spaces(bedrooms and bathroom) are located at three stories independent tower, connected by a corridor to the other spaces. The roof of the open space was designed with the concept of “umbrellas”, which softly delimit each space in one large space. The indirect illuminations with umbrella bone shape reinforce this idea and convey a sense of well-being.

이 프로젝트의 목표는 기존 폐허가 된 두 개의 건물을 통합하여 단독주택을 만드는 것이다.

두 집을 통합하고 복원하면서, “L”자 형태의 볼륨이 만들어졌고 수영장이 있는 외부 공간을 정의하게 됐다. 공용 공간과 개인 공간은 볼륨과 내부 인테리어 디자인의 어휘로 구별된다. 공용 공간(주방, 거실, 체육관 및 다목적실)은 1층 개방 공간이며 개인 공간 (침실 및 욕실)은 복도로 다른 공간과 연결된 3층 독립 타워에 위치한다. 열린 공간의 지붕은 하나의 큰 공간에서 각 공간을 부드럽게 구분하는 ‘우산’을 콘셉트로 설계됐다. 우산 뼈 모양의 간접 조명은 이러한 아이디어를 강화하고 웰빙감을 전달한다.















Architect Ren Ito Arq
Location Porto, Portugal
Gross floor area 447m2
Completion 2020
Collaborator Sofia Augusto, Bernardo Faria, Rita Gomes, Elodie Marimba, Liana Arpinte, Manuela Maggipinto, Gayané Djeranian, Ondřej Čáp, Rintaro Yamashita, Jan Binter, Silvia Snopková, Urban Vamberger, Michalina Urbanska, Emanuele Cicero
Engineer Rodolfo Ferreira
Photographer Ivo Tavares Studio
해당 프로젝트는 건축문화 2021년 5월호(Vol. 480)에 게재 되었습니다.
The project was published in the May, 2021 issue of the magazine(Vol. 480).
May 2021 : vol. 480
Contents : SPECIAL ARTICLE BRIEF CONSIDERATIONS ON CONGLOMERATE FIRMS / HYUNTAE JUNG : RECORDS VENICE BIENNALE 2021 TO OPEN MAY : NEWS / COMPETITION / BOOKS : SKETCH THE GATE IN TRAVELLING / MARGARITA ZHDANOVA
anc.masilwide.com
'Architecture Project > Single Family' 카테고리의 다른 글
| MADELEINE HOUSE (0) | 2021.08.04 |
|---|---|
| CABIN SENJA (0) | 2021.07.30 |
| NEW HOUSE IN THE OLD GARDEN (0) | 2021.07.07 |
| Les Belles Echappées (0) | 2021.06.29 |
| Röhrig House (0) | 2021.06.25 |
마실와이드 | 등록번호 : 서울, 아03630 | 등록일자 : 2015년 03월 11일 | 마실와이드 | 발행ㆍ편집인 : 김명규 | 청소년보호책임자 : 최지희 | 발행소 : 서울시 마포구 월드컵로8길 45-8 1층 | 발행일자 : 매일



