
Montréal is known for its lively neighborhoods and its traditional streets, lined with two- and three-story row houses. Often built in the first half of the 20th Century, these homes no longer correspond to today’s lifestyles. In the hope of preserving this urban heritage, a number of architects are now attempting to give these homes a new lease on life.

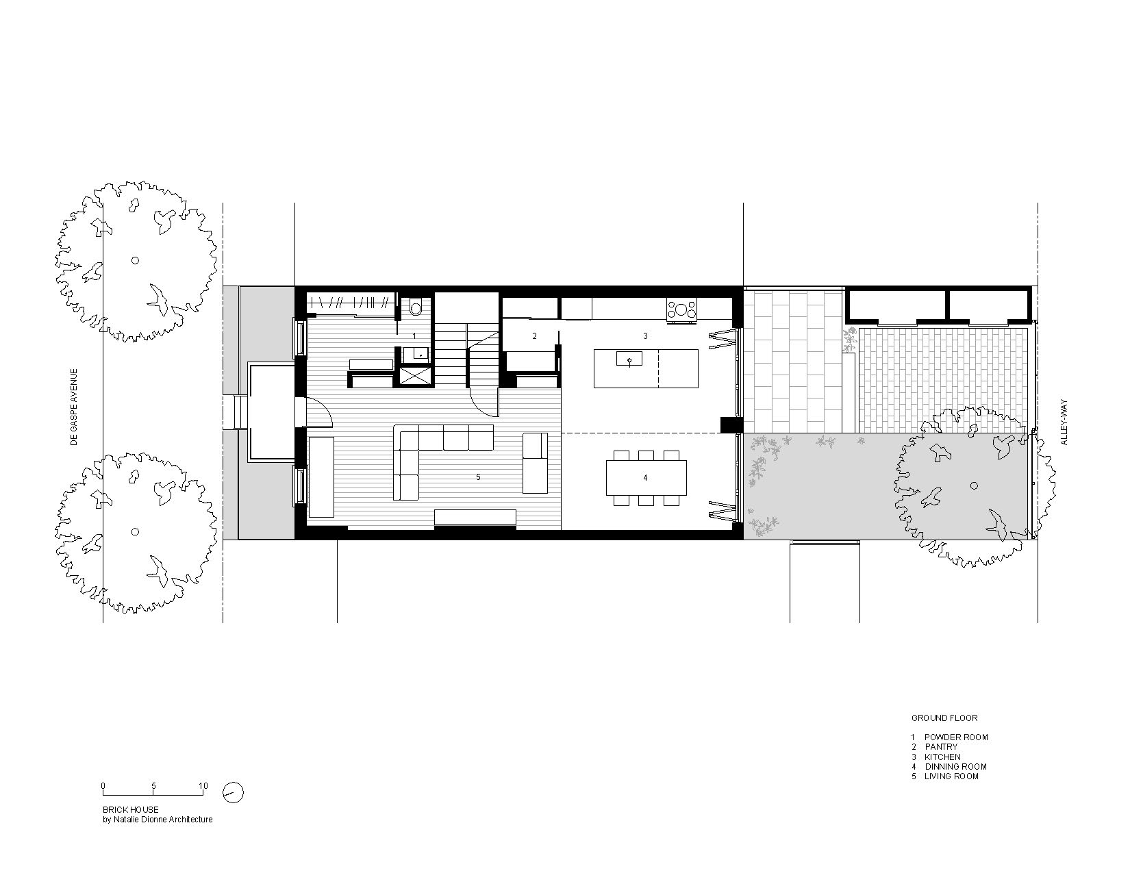
Newly renovated, the BRICK HOUSE is located on de Gaspé Street, near the popular Jean-Talon Market. The in-depth transformation bears the signature of Natalie Dionne Architecture. The program involved turning what was once a three-unit building into a generous single-family home. Interiors were opened up, light was brought in, and the yard was turned into a convivial room.

The architectural intervention is easily understood from the back of the building. Although their initial intention was to preserve the façade’s main elements, the architects had no choice but to replace the brick entirely. This gave them the opportunity to integrate more generous openings to the exterior wall. In keeping with the existing typology, four elongated windows were inserted on the upper floor, where the original openings had been. Carefully aligned with the new windows, two sets of folding doors run across the dining and the kitchen area.

A centrally located chimney, no longer in use, becomes an esthetical object, which reinforces the composition of the symmetrical façade while adding a touch of fantasy to it. With its brick, left apparent inside and outside, the chimney becomes a link between the past and the present, the old and the new.

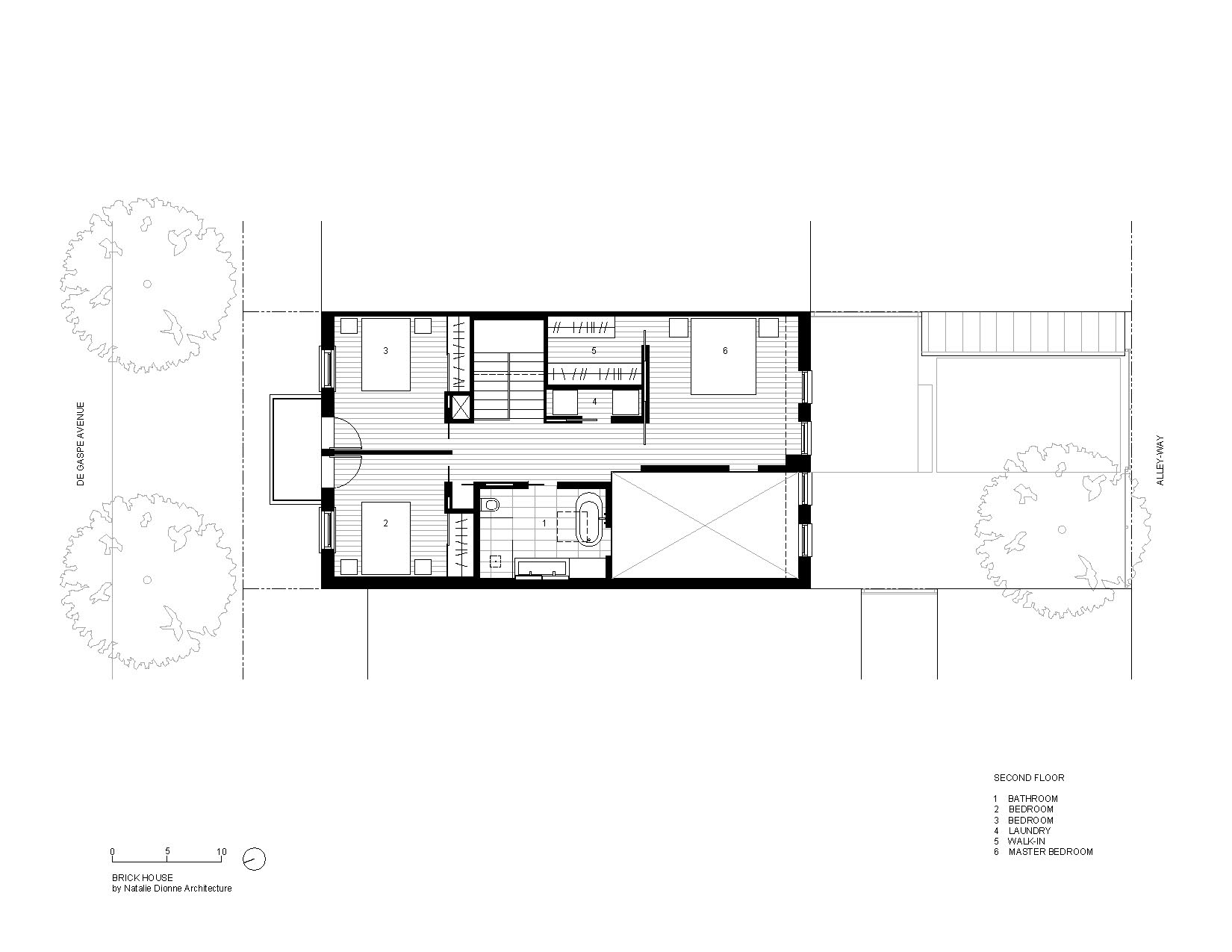
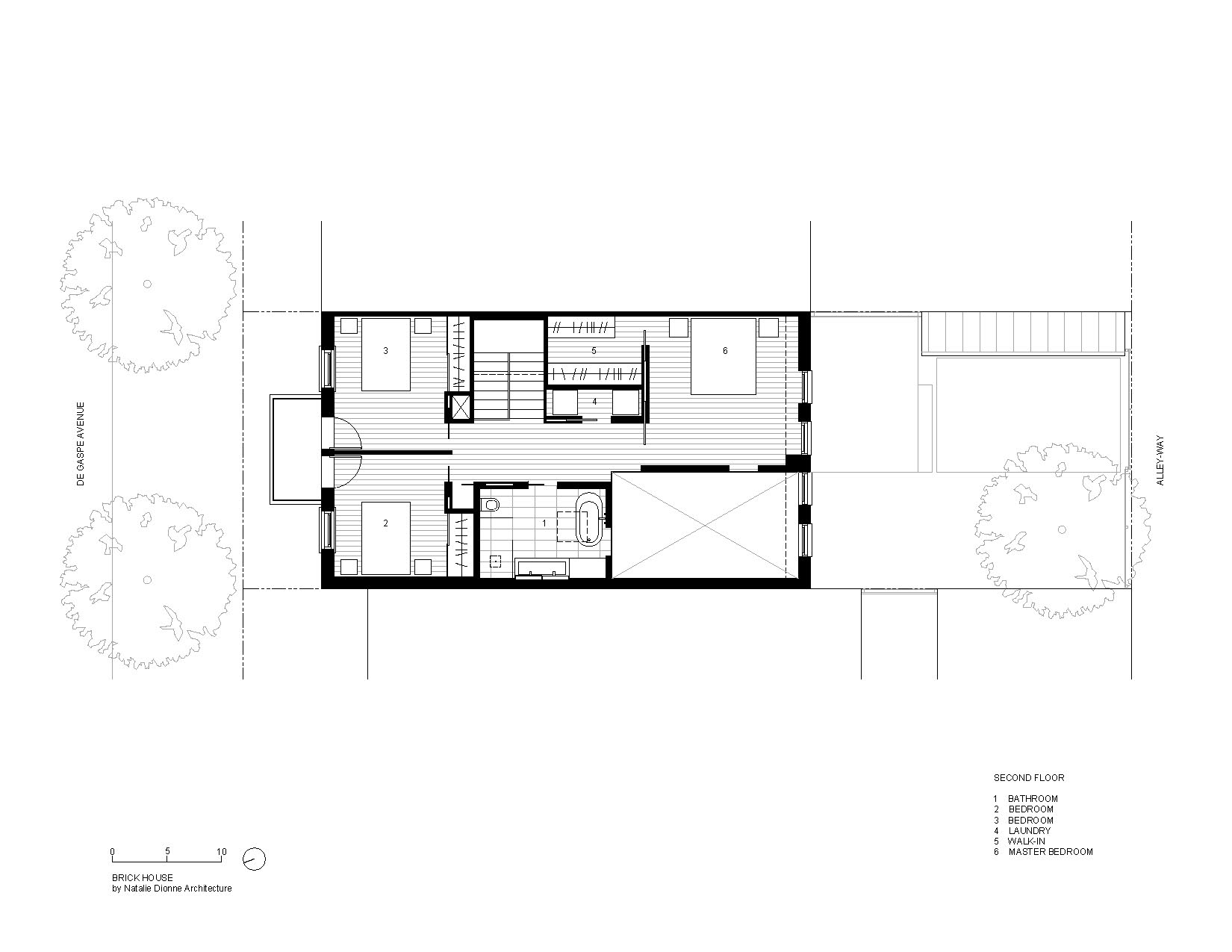
The ground floor was transformed into a vast living area while the upstairs was redesigned to accommodate three bedrooms and a large bathroom area. The architects’ most theatrical gesture was to introduce a two-story volume above the dining area. As a result of this move, the master bedroom and the upstairs bathroom appear to be floating over the ground floor. A small “balcony” was inserted between both volumes.

Interior openings generate a series of unexpected views towards the dining area, the backyard and the nearby alley. The careful positioning of the upstairs partitions ensured fluidity and transparency from one space to another. Skylights installed in previous times on the roof were totally revamped bringing natural light over the central staircase and the upstairs bathroom.

몬트리올은 활기찬 동네의 분위기와 2~3층 규모의 주택이 늘어선 전통적인 거리의 모습으로 유명하다. 대부분 20세기에 지어진 이 집들은 더이상 오늘날의 생활양식과 맞지 않다. 이 도시 유산을 보존하기 위해 많은 건축가들이 기존의 집들에 새로운 삶을 불어넣기 위해 여러 시도를 하고 있다.

새롭게 단장한 브릭하우스는 장탈롱 시장 근처의 유명한 드 가스페 거리에 자리하고 있다. 이 집의 심층적인 변화는 나탈리 디온느 건축의 특징을 지니고 있다. 이 프로젝트는 원래 3채로 구분되어 있던 건물을 하나의 넓은 단독주택으로 개조하는 것으로, 내부가 개방되고 자연광이 들어오며 마당이 쾌적하게 변했다.

건축적 개입은 건물의 배면에서 쉽게 이해할 수 있다. 처음 의도는 파사드의 주요 요소들을 보존하는 것이었지만 건축가는 벽돌을 완전히 교체할 수 밖에 없었다. 하지만 이를 통해 외벽에 보다 넉넉한 개구부를 만들 수 있었다. 기존 형태를 따라 원래 개구부가 있던 곳에 4개의 긴 창문이 끼워져 있었다. 새로운 창문과 폴딩도어가 계획되어 식당과 부엌을 가로질러 연결되었다.

중앙에 위치한 굴뚝은 더 이상 사용되지 않는 심미적인 대상이 되어 대칭적인 파사드의 구성을 강화하면서도 판타지적인 느낌을 준다. 굴뚝은 내외부가 벽돌로 구성되어 과거, 현재, 옛 것과 새 것을 이어주는 연결 고리가 된다.

1층은 넓은 거실 공간으로 바뀌었고 위층은 3개의 침실과 넓은 욕실 공간을 수용하도록 개조되었다. 건축가가 가장 고심한 부분은 식사 공간 위에 2층 높이의 볼륨을 배치하는 것이었다. 그 결과, 주 침실과 위층의 욕실은 1층 위에 떠 있는 것처럼 보이게 되었다. 그리고 두 볼륨 사이에 작은 발코니가 추가되었다.

내부 개구부는 식당, 뒷마당 및 인근 골목 쪽으로 예상치 못한 전망을 제공한다. 2층의 벽을 조심스럽게 구획하여 한 공간에서 다른 공간으로의 유동성과 투명성을 보장했다. 지붕의 채광창은 완전히 개조되어 중앙 계단과 2층 욕실에 자연 채광을 제공할 수 있게 되었다.


Architect Natalie Dionne Architecture
Location de Gaspé Avenue, Villeray, Montreal, QC, Canada
Gross floor area 171.9m2
Completion 2019
Principal architect Natalie Dionne
Design team Rosemarie Faille-Faubert, Corinne Deleers and Martin Laneuville
Engineer Conception structurale Donald Arsenault
Construction P.A. construction
Client France Houle and Leonard Eichel
Photographer Raphaël Thibodeau
'Architecture Project > Single Family' 카테고리의 다른 글
| 18 Screens (0) | 2021.08.27 |
|---|---|
| Langlois-Lessard Residence (0) | 2021.08.26 |
| River House (0) | 2021.08.24 |
| Chalet Lakeside (0) | 2021.08.23 |
| La Frangine (1) | 2021.08.20 |
마실와이드 | 등록번호 : 서울, 아03630 | 등록일자 : 2015년 03월 11일 | 마실와이드 | 발행ㆍ편집인 : 김명규 | 청소년보호책임자 : 최지희 | 발행소 : 서울시 마포구 월드컵로8길 45-8 1층 | 발행일자 : 매일



