
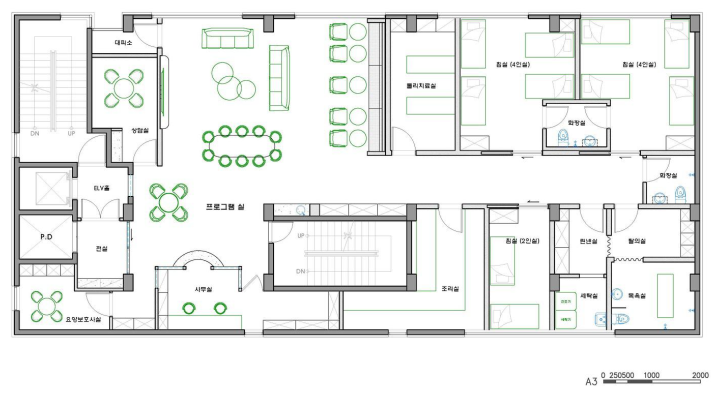
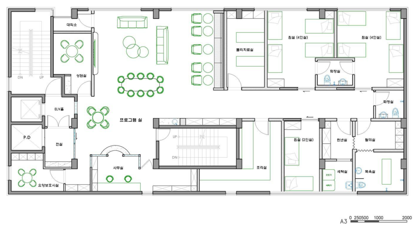
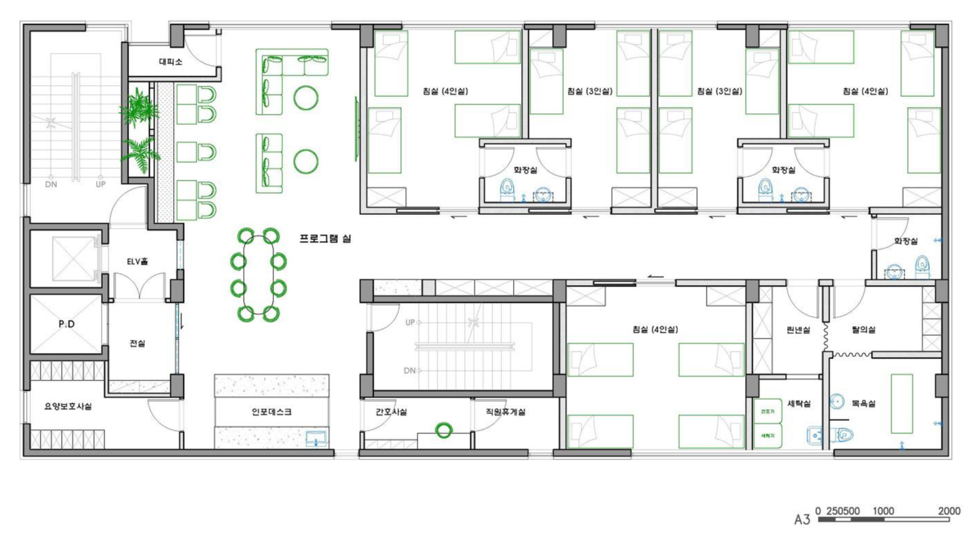
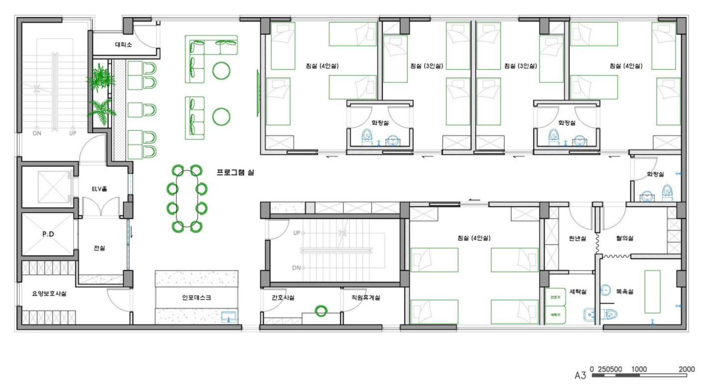
9988 Geriatric care center, advocating an intuitive motto of ‘living youthfully until 99’. This geriatric care center is using three floors of a commercial building in downtown Cheongju. We tried to accommodate all of the needs of the client who likes the elegant feel of wood and cream tones. After hearing that client wanted to approach the guardians and seniors staying at the nursing home with comfort before anything else the first time they visit, we tried to keep the composition as unobtrusive as possible. To compensate for the drawback of being forced to bend the entrance due to the building structure, a circular window was created to provide a glimpse of the interior, creating a predictable space for the interior, and this became a small signature of the geriatric care center. Rather than forming a separate office space, we applied an open spatial composition that uses the information space and office together. Considering the indoor life of seniors with limited mobility, we made a garden inside a window that can be changed at any time, which also allows a different atmosphere to be created depending on the season. The design of the walls were not divided to make use of the low ceiling height, and the space was arranged by organizing wood and cream tones into sections to give a sense of mass.

'99세까지 88하게' 라는 직관적인 모토를 표방하는 9988요양원은 충북 청주시 도심지 속 상업건물 3개층을 활용하고 있다. 우드와 크림톤의 단아한 느낌을 좋아하는 건축주의 니즈를 모두 담기 위해 노력했다. 요양원에 머무는 어르신과 보호자들이 방문했을 때 가장 먼저 편안함으로 다가가고 싶다는 이야기를 듣고 가급적 어느 곳 하나 튀지 않는 구성을 잡아가기 위해 노력했다. 건물 구조상 출입구를 꺽어 잡을 수 밖에 없어 답답해 보일 수 있다는 단점을 보완하기 위해 원형의 창을 만들어 실내를 살짝 볼 수 있어 내부에 대한 예상이 가능한 공간을 구성하고 이것이 요양원의 작은 시그니쳐가 되기도 한다. 사무공간을 따로 구성하지 않고 인포와 사무실을 함께 활용하는 개방형 공간구성을 했다. 거동이 불편한 어르신의 실내생활을 고려해 수시로 느낌을 바꿀 수 있는 창속의 정원을 만들어 계절에 따라 다른 분위기를 연출 할 수 있다. 높지 않은 천장고를 살리기 위해 벽체의 디자인을 나누지 않고 매스감을 주기 위해 우드톤과 크림톤을 섹션별로 구성해 공간 정리를 했다.


























Design Design Aid
Location Heungdeok-gu, Cheongju-si, Chungcheongbuk-do, Repulic of Korea
Building area 1,010㎡
Design period 2021. 05 - 2021. 06
Principal designer Sine Ann
Project designer Huiguk Song
Photographer Jounghyun Kim
'Interior Project > Healthcare' 카테고리의 다른 글
| U-DENTAL Clinic (0) | 2022.02.07 |
|---|---|
| Green Massage in Madang Road, Shanghai (0) | 2022.01.28 |
| Podowon Geriatric care center (0) | 2022.01.25 |
| Pilyo Pilates (0) | 2021.12.29 |
| ROUM Pilates studio (0) | 2021.12.27 |
마실와이드 | 등록번호 : 서울, 아03630 | 등록일자 : 2015년 03월 11일 | 마실와이드 | 발행ㆍ편집인 : 김명규 | 청소년보호책임자 : 최지희 | 발행소 : 서울시 마포구 월드컵로8길 45-8 1층 | 발행일자 : 매일



