
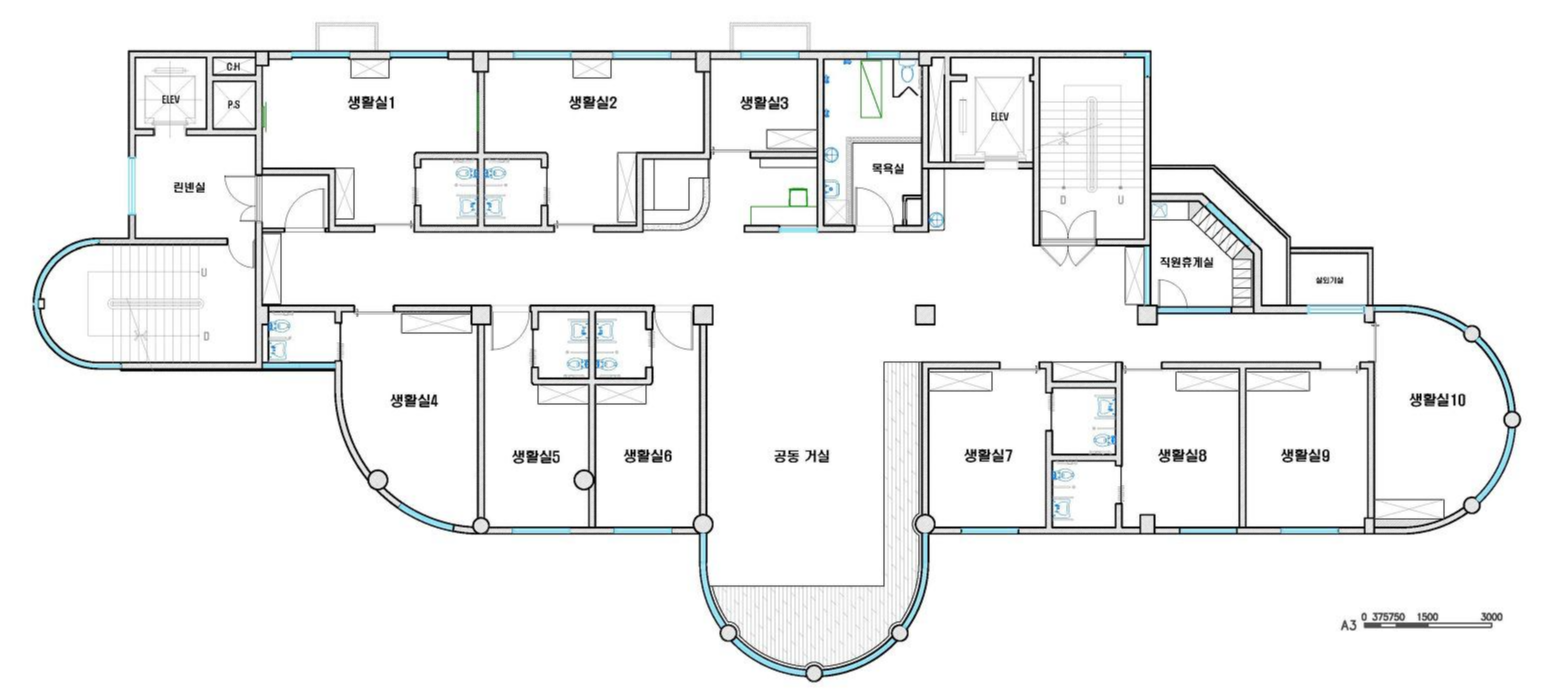
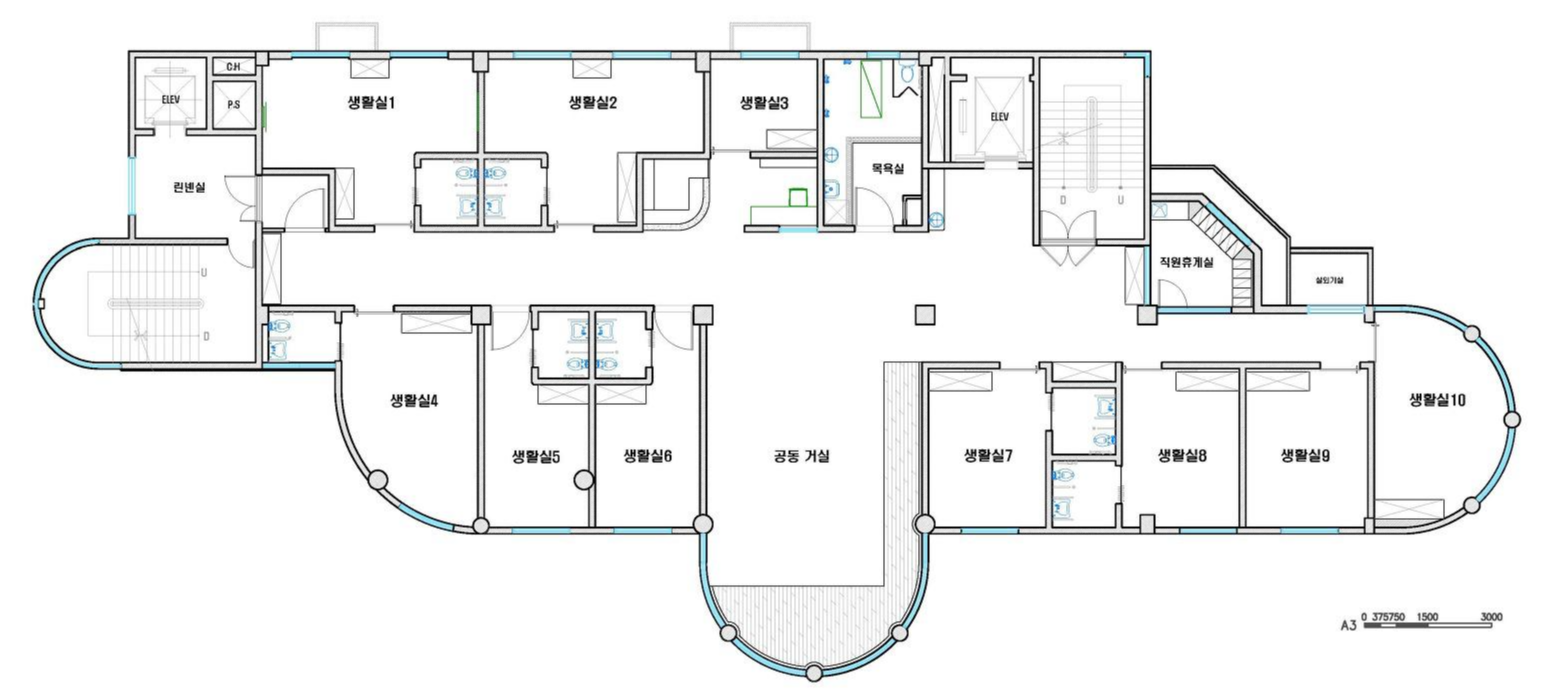
Podowon Geriatric care center, which has a vision of 'a geriatric care center that is trusted by the family and heals the indisposed body and mind of the elderly', is located at the foot of a mountain with a beautiful scenery in Namwon, Jeollabuk-do. We remodeled the second floor of the four-story geriatric care center and added openness to the existing structure to specialize in caring for the elderly with Alzheimer's disease. In consideration of the preferences of the elderly who are the ones mainly living here, the entrances to all rooms were decorated with a traditional pattern. Wood and cream were mixed for the overall color to give a fresh feeling. In particular, low wooden benches were formed along the edges of the living room to create a space for the elderly to lie down and rest, and the height of the benches was set through simulation to help caregivers care for the elderly. Between the traditional and the modern, more emphasis was placed on modernity to relieve the sense of weightiness. In most geriatric care centers, the guardians (children of the elderly) are the ones who look around and make decisions. Therefore, the starting point of he design was the thought that they should have no regrets about the facility when returning with their parents. Since they had to at least be reassured that their parents are living in a better facility than the house they were living in, we designed the software related to the operation of the geriatric care center to be able to be incorporated with the interior, which is the hardware. The corridor is divided into the lower and upper parts based on the safety handles. The upper part was finished with cream colored paint, and for the lower part, both circulation and practicality were considered by using reinforced plywood and internal wood film to prevent damage to the walls from wheelchairs for the elderly with limited mobility. Due to its nature, the geriatric care center has many supplies, so all available space below the bench and along the walls of the corridor were made to be used as storage spaces, and considering the visual aspect after they are stored, doors were made for all of these storage spaces to allow them to be covered by the design.

'가족이 신뢰하고 어르신의 불편한 몸과 마음까지 치유하는 요양원'을 비전으로 삼고 있는 포도원 요양원은 전라북도 남원의 풍광 좋은 산자락에 자리 잡고 있다. 4개 층 규모의 요양원 중 2층을 리모델링하여 치매 어르신을 전문케어하기 위해 기존 구조에 개방성을 더했다. 주로 생활하는 어르신의 취향을 고려해 생활실 출입문을 전통 살 무늬를 넣었다. 전체 컬러를 우드와 크림을 섞어 산뜻한 느낌을 주고자 했다. 특히 거실은 둘레를 평상으로 구성해 어르신들이 누워 쉴 수 있는 공간을 만들었으며 요양보호사의 어르신 케어를 돕기 위해 시뮬레이션을 거쳐 평상 높이를 정했다. 전통과 모던 중 모던에 좀 더 비중을 두어 무게감을 덜어내었다. 요양원은 대부분 보호자(어르신의 자녀)가 둘러보고 결정을 한다. 그래서 부모님을 모시고 돌아설 때 시설에 대한 미안함은 없어야 한다는 마음이 디자인의 출발점이었다. 최소한 살던 집 보다 더 나은 시설에 내 부모님이 생활하고 있다는 것에 안심이 되어야 했기에 운영에 관한 소프트웨어가 하드웨어인 인테리어에 녹아들 수 있도록 설계를 진행했다. 복도는 안전손잡이를 기준으로 하부와 상부로 나누어 상부는 크림칼라 도장으로 마감을 하고 하부는 거동이 불편한 어르신의 휠체어로 인한 벽체 파손을 방지하기 위해 합판 보강으로 하고 인테리어 우드 필름으로 마감을 하는 등 동선과 실용성도 함께 고려했다. 요양원 특성상 비품이 많이 평상 아래와 복도 중간중간 활용할 수 있는 모든 공간을 수납을 활용할 수 있도록 구성했고 수납 후 시각적인 면을 고려해 모두 도어를 만들어 디자인과 함께 묻어갈 수 있도록 했다.

















Design Design Aid
Location Gwangchi-dong, Namwon-si, Jeollabuk-do, Repulic of Korea
Building area 435㎡
Design period 2021. 01 - 2021. 03
Principal designer Sine Ann
Project designer Bomi Song
Photographer Jounghyun Kim
'Interior Project > Healthcare' 카테고리의 다른 글
| Green Massage in Madang Road, Shanghai (0) | 2022.01.28 |
|---|---|
| 9988 Geriatric care center (0) | 2022.01.26 |
| Pilyo Pilates (0) | 2021.12.29 |
| ROUM Pilates studio (0) | 2021.12.27 |
| Oikoa massage boutique (0) | 2021.12.22 |
마실와이드 | 등록번호 : 서울, 아03630 | 등록일자 : 2015년 03월 11일 | 마실와이드 | 발행ㆍ편집인 : 김명규 | 청소년보호책임자 : 최지희 | 발행소 : 서울시 마포구 월드컵로8길 45-8 1층 | 발행일자 : 매일



