
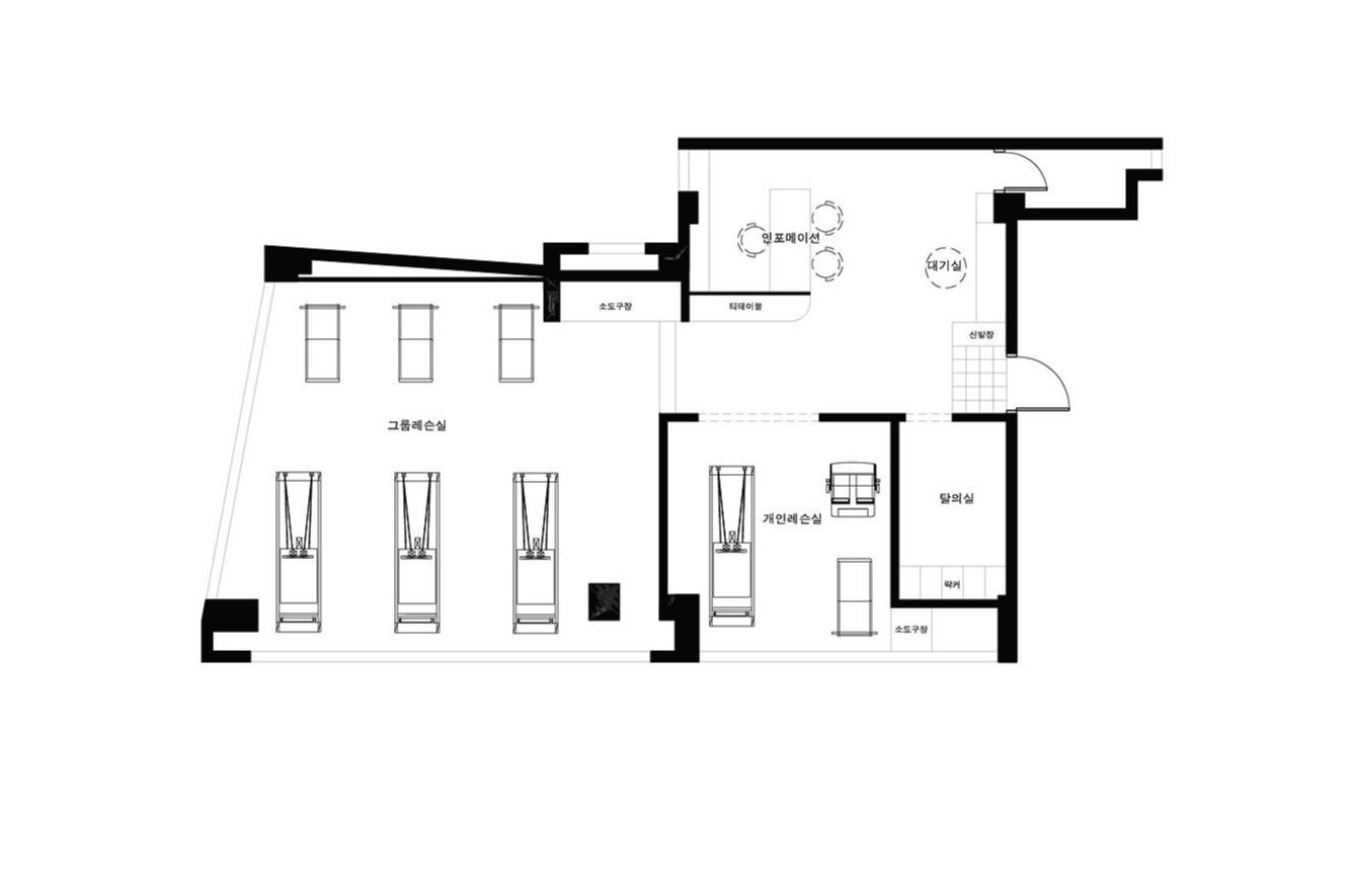
Roum Pilates has a 23-pyeong space with a skip-floor structure. For this project, we had to make a private lesson room, group lesson room, changing room, waiting room, and an information space within a small space.
Since it is a small space, the spaces were divided by using the step difference of a skip-floor structure as well as the height of the furniture rather than setting up fake walls.
Curtains were used instead of doors to give the spaces a sense of openness and to create sentimental spaces, and curves were used for gates the mirrors to give the space a softness.
As pilates is a workout that involves a lot of poses lying down, the space was designed to use lighting with less glare and the indirect light of mirrors, rather than direct light, to reduce eye fatigue.

로움필라테스는 23평 규모의 스킵플로우 형식의 공간을 지니고 있다. 소규모 공간에 프라이빗 레슨실, 그룹레슨실과 탈의실 대기실 인포메이션 공간을 만들어야 하는 곳이였다.
작은 공간이지만 답답하고 막혀 있는 느낌이 들지 않도록 가벽을 세우기 보다는 스킵플로우의 단차를 활용하여 공간을 분리하고 가구의 높낮이를 활용하여 공간을 분리하였다.
도어를 사용하기보다는 커튼을 사용하여 공간의 개방감을 주면서 감성적인 공간을 연출하도록 하였고 게이트와 거울에 곡선을 사용하여 공간의 부드러움을 주었다.
필라테스는 누워서 하는 동작이 많은 운동이라서 직접조명을 사용하기 보다는 거울의 간접조명을 사용하여 눈의 피로를 더하도록 계획하였고 눈부심이 덜한 조명을 사용하였다.





Studio DESIGN STUDIO J
Location 150 3rd floor, Singil-ro, Yeongdeungpo-gu, Seoul.
Use Healthcare
Area 75㎡
Design period 2021. 09.10 - 2021. 09.20
Completion 2021.10.20
Designer Jae-sam Kim
Design team Ye-ji Yang
Construction DESIGN STUDIO J
Client ROUM Pilates studio
Photographer DESIGN STUDIO J
'Interior Project > Healthcare' 카테고리의 다른 글
| Podowon Geriatric care center (0) | 2022.01.25 |
|---|---|
| Pilyo Pilates (0) | 2021.12.29 |
| Oikoa massage boutique (0) | 2021.12.22 |
| Bioface (0) | 2021.11.25 |
| Toxnfill_Yeongdeungpo branch (0) | 2021.11.24 |
마실와이드 | 등록번호 : 서울, 아03630 | 등록일자 : 2015년 03월 11일 | 마실와이드 | 발행ㆍ편집인 : 김명규 | 청소년보호책임자 : 최지희 | 발행소 : 서울시 마포구 월드컵로8길 45-8 1층 | 발행일자 : 매일



