
A space where you can be in awe or not heavy. Bioface is a skin clinic space. It should be easily accessed, but the caling of this project was to make it possible to experience a comfortable and accessible desire for beauty that is different from others. To capture such a space, we found a way to simplify the elements of the beauty of the temple in those days, as if worshiping Aphrodite, the goddess of beauty. Arch structures can be easily found in many shrines, temples, and cathedrals around the world. We expressed our awe of God through the mysterious and elegant arch and contain the meaning of approaching the sacred and solemn space of the arch's behavior passing through the gate. Looking at this story as a process, we created a story under the theme of "How to approach the temple through a tall orange tree forest." The concept of this project is to plan a space that can be simple but dreamy by solving its forms and elements modernly.

We chose 'arch form' as the first spatial language.
The shape of two pillars standing apart and stacking stones on them in a curved shape is called an arch. The separated stones share mutual pressure and distribute the force structurally, indicating a stable and natural shape.
This form allows viewers to feel structural stability, and above all, it has been widely used as a point element as its aesthetic form of beauty. When I thought of the image of the temple, I imagined walking along the columns of
arched pillars in nature. Arches can be a decisive factor in revealing that feeling. In fact, the initial design proposal filed the open space with repetition of more arches, but it was summarized as it is now by finding various compromises with the addition of functions. The second keyword we took was "in nature." Although there is an aweelement of the temple, we tried to mix the comfortable element of nature and the refreshing element of orange, but rather than simply showing it as it is, we tried to solve it as a modern element. I wanted to be able to feel the direction of landscape and lighting more naturally by showing it on walls and ceilings, not on the floor. So, in the waiting space, the element of landscaping from the ceiling started from the left and right with the bars of light, espectively, but naturally permeated each other. The lighting stick from the left is an object designed to keep the light looking at the landscape while gradually reducing its length and permeating the landscape from the right.

To define this project in a word, it is the directing of "a space that is awe but comfortable."
It is to create a space that you only want to approach as a space that can be easily approached. In fact, one of the trendy languages in space is Arch. In fact, they borrow a lot of arch shapes from many spaces to partial elements and express them in their own language, and the arch shapes in most buildings and spaces that are straight and perpendicular to each other show an inte ligent and beautiful appearance. Even within so many such spaces, our space is a place that reveals a more arched feeling. In addition to the listed forms, we tried to feel more presence in repetition of forms so that we can differentiate ourselves from other spaces, such as sitting in the arch space or
looking at the arch space within the arch space.

경외로우나 무겁지 아니할 수 있는 공간.
비오페이스는 피부 크리닉 공간이다. 쉽게 접근해야 하지만 남들과 다른 아름다움에 대한 꾸준한 갈망을 편안하고 접근하기 쉽게 담아두려는 체험을 할 수 있도록 만드는 것이 이번 프로젝트의 소명이었습니다. 그러한 공간을 담아내기 위해 미의여신 아프로디테를 숭배하는 듯한 그 시절 신전의 아름다움의 요소를 단순화 해서 공간에 담아 두는 방법을 찾았습니다. 세계의 많은 신전, 사원, 성당에서는 아치 구조물을 어렵지 않게 찾을 수 있습니다. 우리는 어딘지 신비롭고 우아한 모습의 아치를 통해 신에 대한 경외심을 표현했으며 아치의 관문을 지나가는 행태를 신성하고 엄숙한 공간으로 다가간다는 의미를 담아내고 있습니다. 이러한 이야기를 담아 그 과정으로 보고 우리는 ‘높은 솟은 오렌지 나무 숲을 지나 신전으로 다가가는 방법.’을 테마로 이야기를 만들었습니다. 그 형태나 요소들은 현대적으로 풀어서 단순하지만 몽환적일 수 있는 공간을 기획해보고자 하는 것이 이번 프로젝트의 컨셉입니다.

우리는 ‘아치형태’를 첫번째 공간 언어로 선택했습니다.
두 개의 기둥을 떨어뜨려 세워놓고 그위에 돌을 곡선형으로 쌓아 놓은 형태를 아치 라고 부릅니다. 분리된 돌들이 상호 압력을 나누며 구조적으로 힘을 분산해서 안정적이고 자연스러운 형태를 나타냅니다. 이러한 형태는 보는이로 하여금 구조적 안정감이 들 수 있도록 하고 있으며 최근에는 무엇보다 그 심미적 형태의 아름다움으로 하여 포인트 요소로 많이 사용되고 있습니다. 신전의 이미지를 떠올렸을 때 자연속에서 아치 형태를 한 기둥들의 열주를 따라 걸어 들어가는 모습을 상상했습니다. 그 느낌을 드러내는데 아치는 결정적인 요소 가 될 수 있습니다. 사실 초기 디자인제안에는 오픈공간을 더 많은 아치들의 반복으로 채워 졌었지만 기능의 추가로 여러 가지 타협점을 찾아가며 지금의 모습으로 정리 되었습니다. 우리가 두번째로 가지고 간 키워드가 ‘자연속‘이었습니다. ’신전’의 경외적인 요소가 있지만 자연이라는 편안한 요소 그리고 ‘오렌지‘라는 상큼한 요소를 믹싱하되 단순히 그대로 보여 지기보다 현대적 요소로 풀어 보고자 했습니다. 조경과 조명의 연출을 바닥이 아닌 벽과 천장에서 보여 짐으로써 좀더 자연 깊이 들어와 있도록 느낄 수 있었으면 했습니다. 그래서 대기 공간에 천장에서 조경이라는 요소가 빛의 막대들과 각각 좌우에서 시작해서 만나되 서로 자연스럽게 스며드는 모양을 연출했습니다. 왼쪽에서 출발한 조명스틱은 점점 길이를 잛게해서 조경속으로 스며들고 오른쪽에서 출발한 조경은 점점 그 길이를 짧게 하면서 조명스틱속으로 사라지게 하면서 빛이 조경을 계속 바라 볼 수 있도록 만들어진 오브제입니다.

이번 프로젝트를 한마디로 정의 내리자면, ‘경외롭되 편안한 공간’ 의 연출입니다.
다가가고 싶기만 한 공간을 쉽게 다가 갈 만한 공간으로 만들어 내는 것입니다. 사실 최근 공간의 트랜드 언어 중의 하나가 아치입니다. 실제로 많은 공간에서 부분부분 요소로 아치 형태를 많이 차용해서 그들만의 언어로 표현해 내고 있으며 직선과 직각인 대부분의 건축물과 공간 안에서 아치 형태는 이지적이면서도 아름다운 태를 나타냅니다. 그러한 수많은 공간 안에서도 우리의 공간은 더 아치구조의 느낌을 드러낸 곳입니다. 나열 된 형태 외에서도 아치공간에 앉을 수 있도록 또는 아치공간 안에서 아치공간을 바라 볼 수 있도록 하는 등 여러 다른 공간과 차별화 할 수 있도록 형태의 반복에서 더욱 그 존재감을 느낄 수 있도록 노력했습니다.


Studio INTOEX
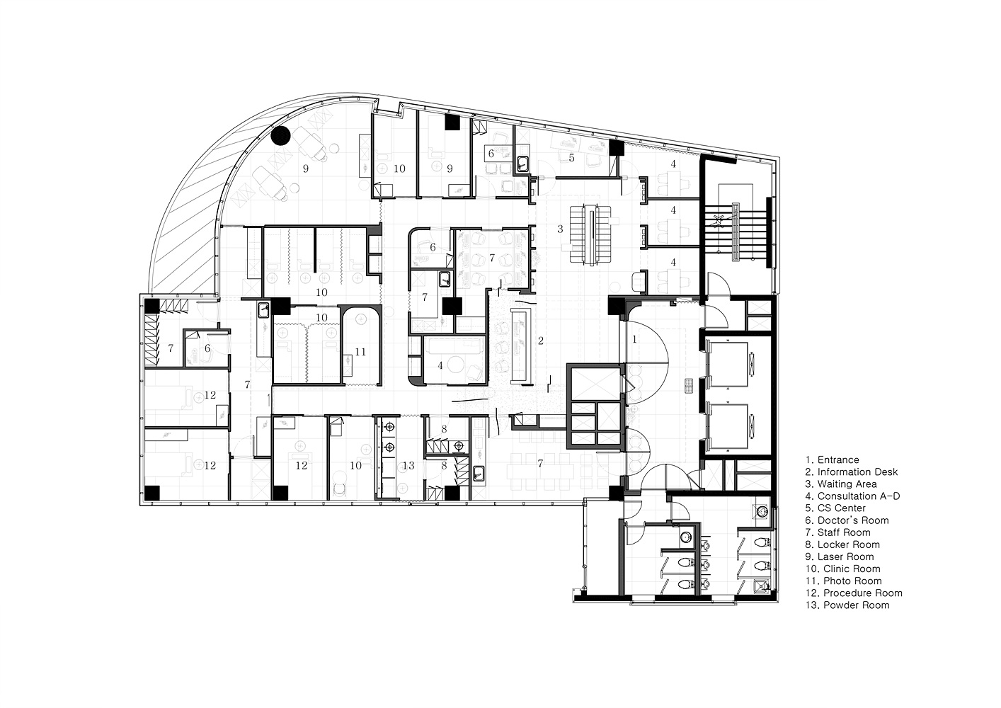
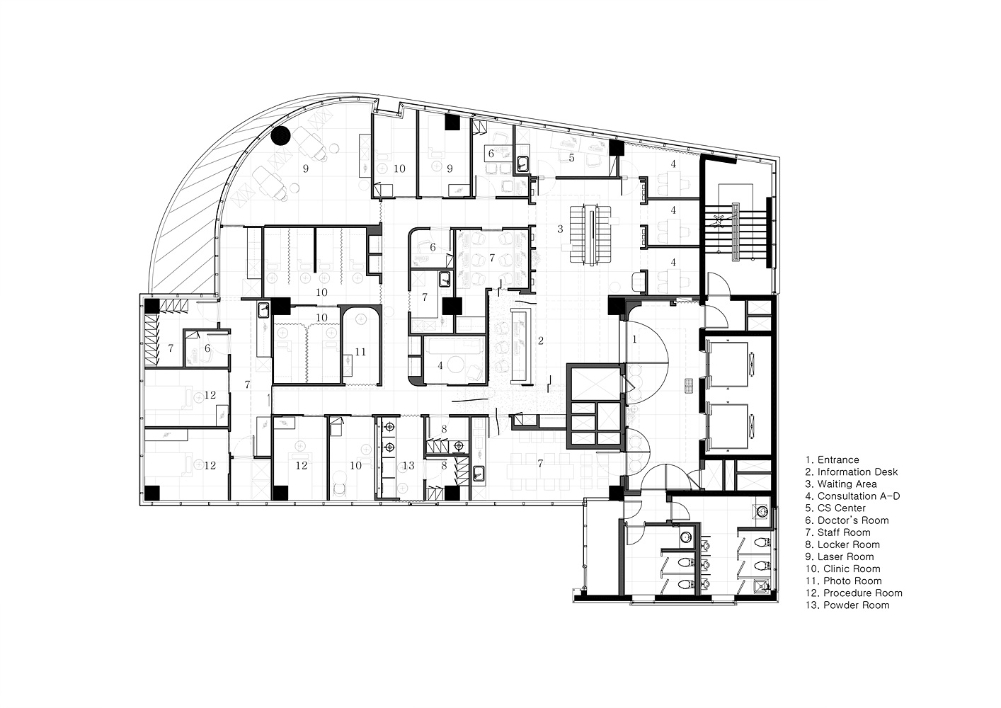
Location 12, Yeongjung-ro, Yeongdeungpo-gu, Seoul
Use Clinic
Area 320㎡
Design INTOEX / Yunjun Yang, Jungseon Jeon
Design team INTOEX / Shinyoung Kang, Youjeong Kim
Material Floor : Tile , Wall : Stucco, Fabric, paint, Steelpannel, Ceiling : Vinyl paint, Barrisol
Construction INTOEX / Jinhan Yong
Photographer Yongjun Choi
'Interior Project > Healthcare' 카테고리의 다른 글
| ROUM Pilates studio (0) | 2021.12.27 |
|---|---|
| Oikoa massage boutique (0) | 2021.12.22 |
| Toxnfill_Yeongdeungpo branch (0) | 2021.11.24 |
| SUMIYOSHIDO Kampo Lounge (0) | 2021.10.28 |
| Infinity Wellbeing (0) | 2021.10.25 |
마실와이드 | 등록번호 : 서울, 아03630 | 등록일자 : 2015년 03월 11일 | 마실와이드 | 발행ㆍ편집인 : 김명규 | 청소년보호책임자 : 최지희 | 발행소 : 서울시 마포구 월드컵로8길 45-8 1층 | 발행일자 : 매일



