
DA INTEGRATING LIMITED Conceives U-DENTAL Clinic as a "Contemporary Art Gallery"
U-DENTAL is a chain dental clinic with a history of 15 years, targeting at middle and high-end consumer groups in Shenzhen. The brand set a new premise in One Shenzhen Bay, a vibrant mixed-use community, hoping it to balance contemporary art and a sense of technology to meet the demands for upgrading healthcare consumption. To break the stereotype of conventional clinics that bring people anxiety and fear, DA INTEGRATING LIMITED adopted the concept of “contemporary art gallery” to explore the integration of medical space and contemporary art. With natural, geometric, and contemporary artistic elements intertwined in the white space, the design team created a distinctively peaceful, comfortable and warm dental experience.
Field: Starting from Emotions
The design fully considers users' experience. The overall space reveals a minimalist aesthetic. The combination of white surfaces, lines and play of light and shadows produces a peaceful, relaxing ambience, thus dispelling the depression and anxiety brought by conventional dental clinics. Geometric aesthetics are applied to the foyer and reception area, with the rigorous geometric order producing an emotional spatial field. The white marbles and beige stone materials set a simple, clean tone in the space. The carved-out opening at the center of the wall is like a cubist painting, and people naturally become the protagonist of the “enframed view”. Moreover, the warm lighting adds to a relaxing atmosphere. The slightly curved screen wall functions as a partition, delicately balancing openness and privacy. Besides, it echoes the arc-shaped ceiling, strengthening a sense of depth for the horizontal setting and meanwhile weakening the existing columns and fire-fighting pipes. Light strip is embedded in the area where the two columns connect with the ceiling, hence creating a contrast of solidness and lightness and showing aesthetics of contemporary sculptural art.
Space: From Complexity to Simplicity
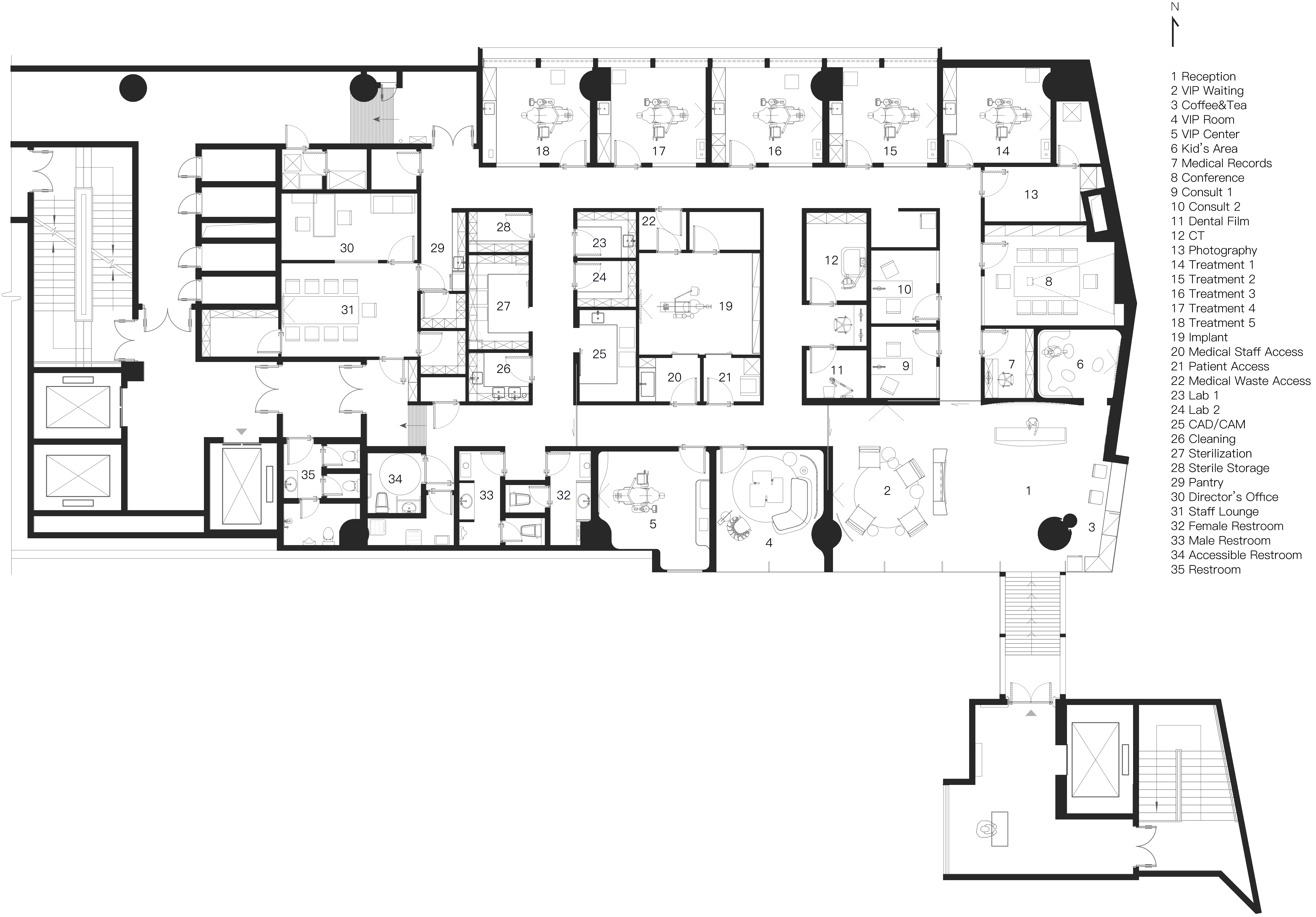
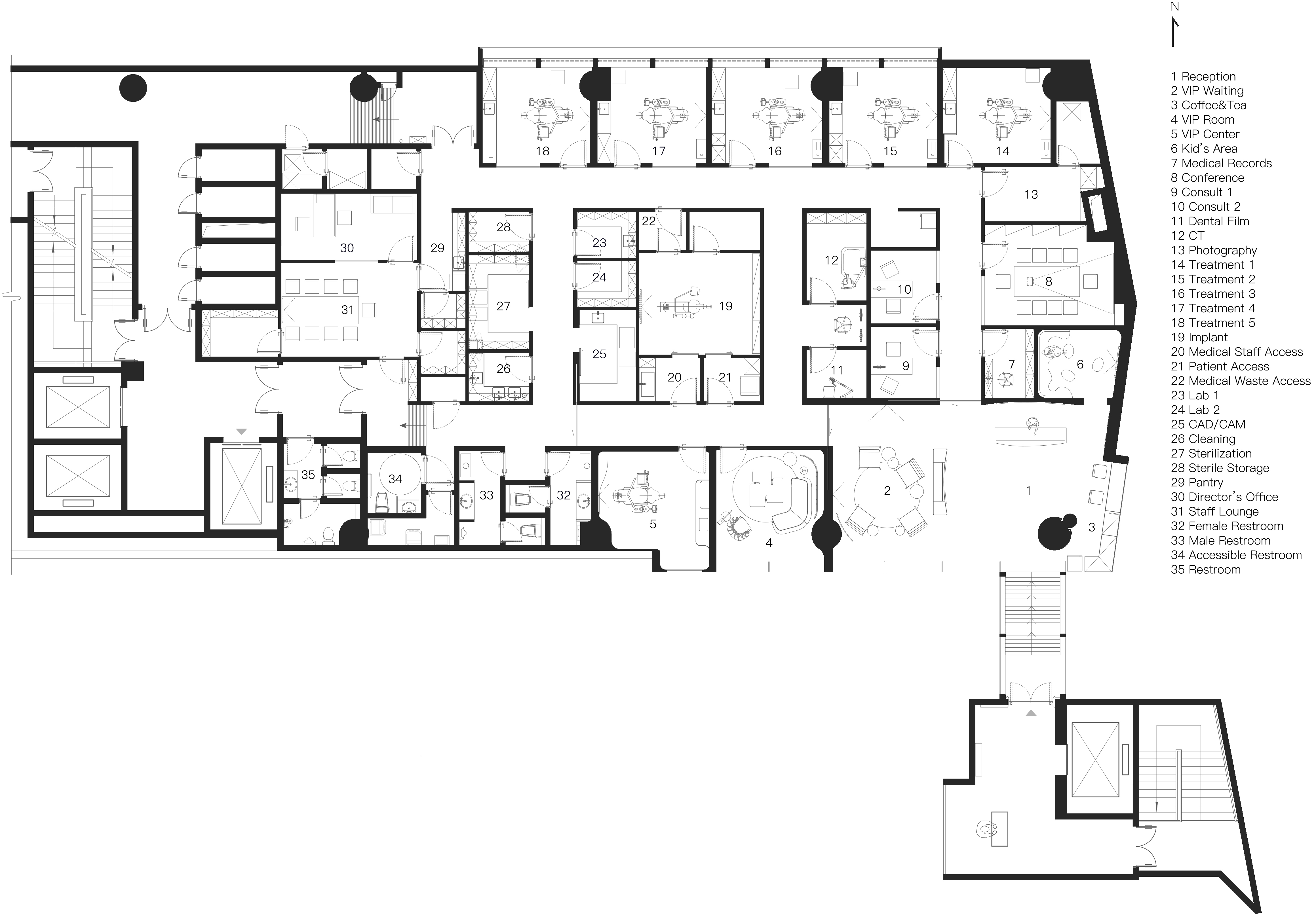
The design balances aesthetic simplicity with functional complexity. Starting from the medical attribute of this project, the main space is organized and cut in an orderly and precise manner, which efficiently accommodates professional and systematic medical functions. The design meets all the complicated specifications with a simplistic setting. By absorbing the “pure white” expressions of contemporary art gallery, the consulting & operating rooms feature a rectangular plane, and adopt flat, seamlessly connected composition to ensure an integrated, smooth circulation. The glass curtain walls bring in adequate daylight and outdoor landscapes, so as to brighten the space and remove patients’ nervousness during treatment. The professional functional area is set in an aseptic environment, with the pure “cleanness” of space complements the “complexity” of machinery and working state. Straight lines and squares from an integrated, simplistic spatial background, while dentists’ professional concentrated working status is like a piece of “artwork” in the space.
Details: Human Scale-friendly
With a limited area of about 500m², the space perfectly balances practicality and the sense of design through innovative, simplistic contemporary aesthetics. Functional zones with different attributes are divided by the two automatic doors in the foyer, and connected by a contemporary art gallery-like passage loop, which improves the separate circulation routes of patients and dentists, and enhances the spatial order as well. Resin paint, commonly seen on yachts’ exteriors, is innovatively applied to the walls of passages, which meets the high requirements of environmental cleanliness and maintenance. The clinic's U-shaped logo, which implies a smile, is extracted and translated into curved details in the space. This reveals functional aesthetics and helps weaken the sharpness of corners. At the passage area, the ceiling features curved structures and form chamfered corners with the wall, thus softening the square space.
The space incorporates not only artistic and human-friendly design languages, but also subtle lighting expressions. The professional and non-professional spaces are distinguished by white and warm lighting. Combined with materials and textures, the lighting reflection creates a differentiated visual effect. The warm yellow linear light floating on the wall shows a sense of technology, helps guide the circulation routes and provides a distinctive sensory experience.
For this project, DA INTEGRATING LIMITED created a surreal, aesthetic and transparent spatial realm, which realizes harmonious fusion of the medial space and contemporary art.

DA INTEGRATING LIMITED, U-DENTAL Clinic을 "현대 미술관"으로 구상
U-DENTAL은 선전의 중산층을 대상으로 한 15년의 역사를 가진 체인 치과 병원이다. 이 브랜드는 중국 선전의 복합 사용 커뮤니티인 One Shenzhen Bay에 새로운 전제를 제시하여 현대 예술과 기술의 균형을 이루고 의료소비의 질을 높이고자 하는 수요를 충족시키기를 원했다. DA INTEGRATING LIMITED는 사람들에게 불안과 공포를 안겨주는 기존 클리닉의 고정관념을 깨기 위해 "현대 미술관"이라는 개념을 채택하여 의료 공간과 현대 미술의 통합을 모색했다. 디자인팀은 흰 공간에 자연스럽고 기하학적이며 현대적인 예술적 요소들을 사용하여 독특하지만 평화롭고 편안하며 따뜻한 공간을 만들었다.
Field: 감정에서 시작
디자인은 사용자의 경험을 충분히 고려했다. 전체적인 공간은 미니멀한 미학을 드러낸다. 흰색 표면, 선, 빛과 그림자의 조합은 평화롭고 편안한 분위기를 만들어 기존 치과 진료소에서 가져오는 우울과 불안을 없애준다. 로비와 리셉션 공간에는 기하학적 미학을 적용해 엄격한 기하학적 질서가 감성적인 공간을 연출한다. 흰색 대리석과 베이지색 석재가 심플하고 깔끔한 공간을 연출한다. 벽 중앙의 조각된 개구부는 마치 입체파 회화를 연상케 하며 사람들은 자연스럽게 '프레임'의 주인공이 된다. 또한, 따뜻한 조명이 편안한 분위기를 더해준다. 약간 구부러진 스크린 월은 파티션 역할을 하여 개방성과 프라이버시의 균형을 섬세하게 조절한다. 뿐만 아니라 아치형 천장은 수평적 깊이감을 강조하고 기존의 기둥과 소방 파이프를 숨겨준다. 2개의 기둥이 천장과 연결되는 부분에 라이트 스트립을 매립하여 견고함과 가벼움의 대비를 이루며 현대 조각 예술의 미학을 보여준다.
Space: 복잡성에서 부터 단순함까지
디자인은 미학적 단순성과 기능적 복잡성의 균형을 유지한다. 이 프로젝트의 의학적 속성을 시작으로 주요 공간은 전문적이고 체계적인 의료 기능을 효율적으로 수용할 수 있도록 질서 있고 정확한 방식으로 디자인됐다. 디자인은 단순한 설정으로도 모든 복잡한 사양을 충족한다. 현대미술관의 "순백" 표현을 차용하여 상담실과 수술실은 직사각형 평면을 특징으로 하며, 평평하고 매끄럽게 연결된 구성을 채택하여 통합적이고 원활한 순환을 가능하게 한다. 유리 커튼 월은 충분한 일광과 야외 풍경을 가져와 공간을 밝게 하고 치료 중 환자가 긴장하지 않도록 해준다. 전문적인 기능 영역은 무균 환경에 설정되어 있으며 공간의 순수한 "청결함"은 기계 및 작업 상태의 "복잡성"을 보완한다.
Details: 친화적 휴먼스케일
약 500m²의 제한된 공간으로 혁신적이고 단순한 현대적 미학을 통해 실용성과 디자인 감각이 완벽하게 균형을 이루는 공간이다. 서로 다른 속성을 가진 기능 구역은 현관의 두 개의 자동문으로 구분되고, 현대 미술관과 같은 통로로 연결되어 환자와 치과 의사의 분리된 순환 경로를 개선하고 공간 질서를 향상한다. 요트의 외벽에 흔히 볼 수 있는 수지 페인트를 통로 벽에 적용하여 청결 및 유지관리에 대한 높은 요구사항을 충족하고 있다. 공간의 곡선 디테일은 미소를 의미하는 클리닉의 U자형 로고에서 영감을 받았다. 이는 기능적 미학을 드러내고 모서리의 날카로움을 약화시키는 데 도움이 된다. 통로 부분의 천장은 곡선형 구조로 되어 있으며 벽과 모서리를 깎아 사각 공간을 부드럽게 한다.
공간에는 예술적이고 인간 친화적인 디자인 뿐만 아니라 은은한 조명 표현들이 녹아있다. 전문 공간과 비전문 공간은 흰색과 따뜻한 조명으로 구분된다. 소재와 질감이 어우러진 조명의 반사는 차별화된 시각적 효과를 낸다. 벽면에 떠 있는 따뜻한 노란색 선형 조명은 기술 감각을 보여주고 순환 경로를 안내하며 독특한 감각적 경험을 제공한다.

























Design firm DA INTEGRATING LIMITED
Location Nanshan District, Shenzhen, China
Building area 535㎡
Completion 2021. 01
Chief designer Chinman Ngai
Design team Ou Yehua, Chen Yu, Li Bo, Huang Qicheng, Liang Wanling, Liao Zhaozhi, Xiao Xiutao
Art consulting BabuSpace (Shenzhen) / Suiyue Art (Chengdu)
Photographer Zhang Chao, Luo Canhui
'Interior Project > Healthcare' 카테고리의 다른 글
| DR. FOR HAIR (0) | 2022.03.15 |
|---|---|
| Gilton Dental Clinic (0) | 2022.02.14 |
| Green Massage in Madang Road, Shanghai (0) | 2022.01.28 |
| 9988 Geriatric care center (0) | 2022.01.26 |
| Podowon Geriatric care center (0) | 2022.01.25 |
마실와이드 | 등록번호 : 서울, 아03630 | 등록일자 : 2015년 03월 11일 | 마실와이드 | 발행ㆍ편집인 : 김명규 | 청소년보호책임자 : 최지희 | 발행소 : 서울시 마포구 월드컵로8길 45-8 1층 | 발행일자 : 매일



