
‘Sense and Sensibility’
DR. FOR HAIR, a hair care brand, has functional shampoo and customized care content (head spa) that directly manages consumers' scalp. The existing head spa store of Doctor For Hair was a space reminiscent of the hospital's image, focusing on the keyword of Doctor and limited to the medical appearance of treating the scalp with cold machines in a white space full of cleansing scent. We concepted the professional and medical appearance of "Doctor" as reason, and set "Sense and Sensibility" as a space concept that can maximize head spas and content using various senses.
Humans live by transforming the sensibility that comes from various senses and the rationality that realizes the truth every moment. Emotions and reason sometimes collide and constrain each other, but in them we experience various senses. Like Jane Austin's novel Sense and Sensibility, we tried to create a space that shows the agreement and harmony between the two concepts of rational and rational Eleanor and emotional and emotional Maryanne.
The site is located along the boulevard where many people and vehicles pass. Using the brand's identity, Hair, it gently wrapped the facade with numerous lines. The line of intuitive and clear reason that can be shown in a thin and long straight line and the line of emotion made up of subtle light leaking from the inside overlap to keep the eyes on.
The reception was divided into a space of reason and emotion in accordance with the flow of the user and assigned a suitable role. The therapy bar that welcomes customers gives them tea that suits the user's condition so that they can see the color, smell the scent, taste it, stimulate the five senses before the clinic, and restore their body and mind. This is a gesture of hospitality to stabilize the mind beyond just the purpose of treatment.
The experience zone allows you to visually show the ingredients and functions of the product so that the brand's expertise can be revealed, and experience the texture and aroma of the product that suits the user.
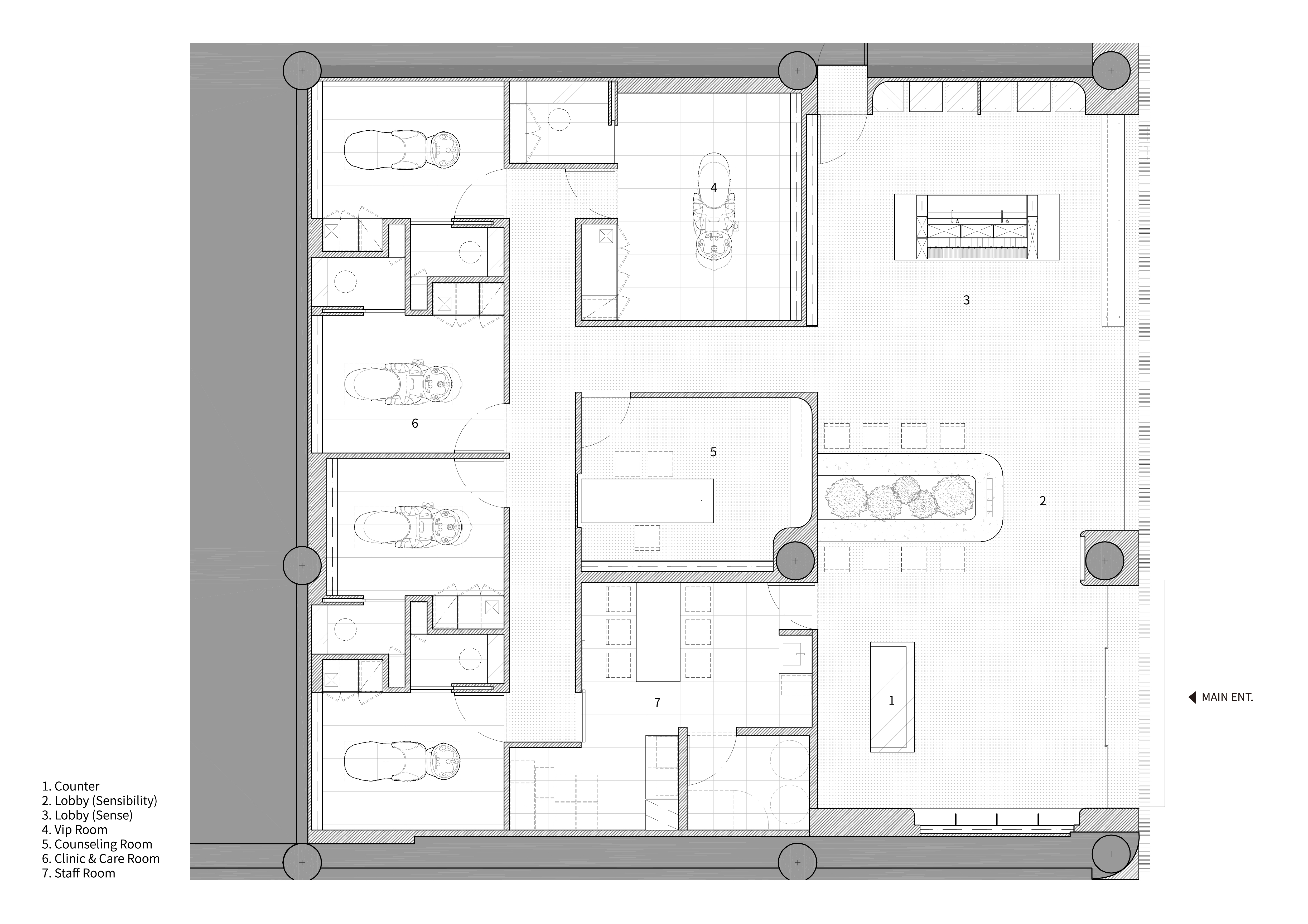
A total of five management rooms are divided into a head spa room focused on rest and a scalp clinic room where you can receive professional care. The space consisting of single rooms is full of natural light and whisper. It is a space full of the sound of water flowing, soft massage, and subtle reverberation from abundant bubbles, where you can slowly catch your breath and relax.
It is easy to receive treatment at a hospital, but it is difficult to receive healing. We believed in the power of healing. Rather than the material or color of the finishing material, it was hoped that it would be a space of hospitality that considers the mind and body with delicately stimulating five senses, such as the scent of tea passing by the nose, the tea provided according to the emotional state, and the sound of water flowing.

‘Sense and Sensibility’
헤어케어 브랜드 닥터포헤어는 기능성 샴푸와 소비자의 두피를 직접 관리해주는 맞춤 케어 컨텐츠(헤드스파)를 가지고 있다. 기존 닥터포헤어의 헤드스파 매장은 ‘닥터’의 키워드에 집중하여, 클렌징 향이 가득한 백색의 공간에서 차가운 기계들로 두피를 치료해주는 의학적인 모습에만 국한되어 병원의 이미지를 연상시키는 공간이었다. 우리는 ‘닥터’라는 전문적이고 의학적인 모습을 이성으로 개념하고, 다양한 감각을 이용하는 헤드스파와 컨텐츠를 극대화 시킬 수 있는 공간을 감성으로 관념하여, ‘Sense and Sensibility(이성과 감성)’를 공간 컨셉으로 설정했다.
인간은 매순간 다양한 감각에서 오는 감성(感性)과 진리를 깨닫는 이성(理性)을 변주하며 살아간다. 감성과 이성은 때로는 충돌하고 서로를 제약하기도 하지만 그 안에서 우리는 다양한 감각을 경험한다. 제인 오스틴의 소설 ‘Sense and Sensibility’ 처럼 이성적이고 합리적인 엘리너와 감성적이고 감정적인 메리앤의 두가지 개념의 일치와 화합을 보여주는 공간을 만들고자 했다.
사이트는 많은 사람들과 차량이 지나다니는 대로변에 위치해 있다. 브랜드의 아이덴티티인 Hair를 이용하여 수많은 선들로 파사드를 부드럽게 감싸 안았다. 얇고 긴 직선으로 보여줄 수 있는 직관적이고 명료한 이성의 선과 안에서 새어 나오는 은은한 빛으로 이루어진 감정의 선이 중첩되어 시선을 머무르게 한다.
리셉션은 사용자의 흐름에 맞추어 이성과 감성의 공간으로 구분하여 그에 맞는 역할을 부여했다. 고객을 맞이하는 테라피 바는 사용자의 컨디션에 맞는 차를 내어주어 차의 색을 보고, 향을 맡고, 맛을 느끼며 클리닉 전에 오감을 자극하며 몸과 마음을 회복할 수 있도록 하였다. 이는 단순히 치료의 목적을 넘어 심상의 안정을 꾀하기 위한 환대의 제스처이다.
체험존은 브랜드의 전문성이 드러날 수 있도록 제품의 성분과 기능을 시각적으로 직접 보여주고, 사용자와 맞는 제품의 질감과 향을 직접 느끼며 경험할 수 있도록 했다.
총 5개의 관리실은 휴식에 집중된 헤드 스파실과 전문적인 관리를 받을 수 있는 두피 클리닉실로 구분한다. 1인실로 구성된 공간은 자연의 빛과 속삭임이 가득하다. 물이 흐르는 소리와, 부드러운 마사지, 그리고 풍성한 거품에서 은은하게 나는 잔향들로 가득한 공간에서 천천히 숨을 고르며 편안히 휴식할 수 있는 공간이다.
병원에서 치료를 받는 것은 쉽지만 치유를 받기는 어렵다. 우리는 치유의 힘을 믿었다. 마감재의 재질이나 색상 따위보다는 코끝을 스치는 차의 향기, 감정 상태에 맞춰 제공하는 차, 물이 흐르는 소리 등, 섬세하게 자극 하는 오감의 경험으로 심신을 배려하는 환대의 공간이 되길 바랐다.










Design Jungbae Shin(NONESPACE)
Location 1F, 116, Bongeunsa-ro, Gangnam-gu, Seoul, Republic of Korea
Building area 209㎡
Design team Yourim Lee, Yeonje Lee(NONESPACE)
Floor Epoxy, Tile
Wall Painting, Stretch ceiling system
Construction Jihoon Park, Hyeonseop Park(NONESPACE)
Photographer Haneol Kim
'Interior Project > Healthcare' 카테고리의 다른 글
| Yesan Sound Garden (0) | 2022.04.26 |
|---|---|
| Original Feelings Yoga Studio (0) | 2022.04.12 |
| Gilton Dental Clinic (0) | 2022.02.14 |
| U-DENTAL Clinic (0) | 2022.02.07 |
| Green Massage in Madang Road, Shanghai (0) | 2022.01.28 |
마실와이드 | 등록번호 : 서울, 아03630 | 등록일자 : 2015년 03월 11일 | 마실와이드 | 발행ㆍ편집인 : 김명규 | 청소년보호책임자 : 최지희 | 발행소 : 서울시 마포구 월드컵로8길 45-8 1층 | 발행일자 : 매일



