
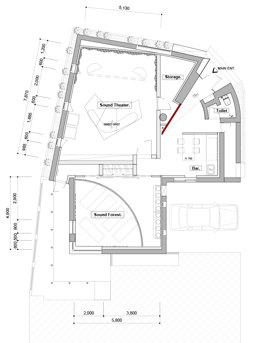
The meditation space has a sliding wood shutout to control the light entering the space according to the stage of meditation, so the texture of the material and the formability of shadows that change through the pattern of light and shadow depending on the degree of opening and closing add vitality to the space. In addition, when meditating, a space is placed in the space so that it can become a more intimate space, but this space is made into a variable space that can be territorial only during meditation. The interior is wrapped in a fan-shaped form using fabric verticals, and the air circulates, but the mind becomes a space where you can fully focus on it. This space is designed to feel the warmth of the touch felt by light, the visual softness felt from the finish of the Hanji on the walls and ceilings, and the auditory comfort that can be completely immersed in the ringing of the singing ball. The most important thing in the sound space is the good sound and the atmosphere of the space that contains the sound. Considering the spread, dispersion, and absorption of sound, 396 birch plywood with different depths were fixed to the rear and side walls of the speaker, and this form became a design element of the sound space. The sound space is also divided into upper and lower directions so that the atmosphere of the space can be changed according to the music enjoyed, and when you want to enjoy natural light, you can selectively introduce light by opening and closing three consecutive windows. These windows are designed to be recognized as walls when light does not flow in, and a unified design is designed to open a part of the wall when light is not introduced. Light in the meditation space and the acoustic space becomes a visual and empirical element that feels and recognizes light in the space due to the change in the amount and shape of shadows introduced over time depending on the season, and is a good design element that allows various feelings and enjoyment in one space.

명상공간은 명상의 단계에 따라 공간에 유입되는 빛을 조절하기 위한 미닫이 우드 덧문을 두어, 개폐 정도와 여부에 따라 달라지는 빛과 그림자의 패턴을 통해 변화하는 재료의 질감과 그림자의 조형성은 공간에 생기를 더한다. 또한 명상을 할 때에는 더욱 내밀한 공간이 될 수 있도록 공간 안에 공간을 두되, 이 공간은 명상이 이루어지는 동안에만 영역화 될 수 있는 가변의 공간으로 만들었다. 패브릭 버티컬을 이용해 부채꼴의 형태로 내부를 감싸 공기는 순환하되 정신은 온전히 그 안에 집중할 수 있는 공간이 되었다. 이 공간은 빛에 의해 느껴지는 촉각의 따뜻함과 벽과 천정의 한지 마감에서 느껴지는 시각적 부드러움, 싱잉볼의 울림에 오롯이 빠져들 수 있는 청각적 편안함을 느끼도록 계획하였다. 음향공간에서 가장 중요한 것은 좋은 소리와 그 소리를 담아내는 공간의 분위기이다. 음의 확산과 분산, 흡음을 고려해 깊이가 다른 396개의 자작나무 합판을 스피커 후면과 측면 벽체에 고정하였으며 이 형태는 음향 공간의 디자인 요소가 되었다. 음향공간 역시, 즐기는 음악에 따라 공간 분위기를 달리 할 수 있도록 간접 조명을 상, 하부로 이원화 하였고, 자연광을 즐기고자 할 때는 벽체 마감이 연속되는 창문 3개를 개폐하여 빛을 선택적으로 유입할 수 있다. 이 창문들은 빛을 유입하지 않는 때에는 벽체로서 인식되고 빛을 유입하고자 할 때는 벽체의 일부가 열리는 듯한 통일된 디자인으로 계획하였다. 명상공간과 음향공간에서의 빛은 계절에 따라 시간에 따라 내부로 유입되는 양과 그림자의 형태가 달라짐으로 인해 공간에서 빛을 느끼며 인식하는 하나의 시각적, 경험적 요소가 되며, 하나의 공간을 다양하게 느끼고 즐길 수 있게 하는 좋은 디자인 요소이다.












Design the Synergist
Construction the Synergist
Location Yesan, Chungcheongnam-do, Republic of Korea
Gross floor area 163.72㎡
Building scope 1F
Completion 2020
Photographer YongJoon Choi
'Interior Project > Healthcare' 카테고리의 다른 글
| H Zentre (0) | 2023.05.25 |
|---|---|
| ANA InterContinental® Beppu Resort & Spa (0) | 2023.04.25 |
| Original Feelings Yoga Studio (0) | 2022.04.12 |
| DR. FOR HAIR (0) | 2022.03.15 |
| Gilton Dental Clinic (0) | 2022.02.14 |
마실와이드 | 등록번호 : 서울, 아03630 | 등록일자 : 2015년 03월 11일 | 마실와이드 | 발행ㆍ편집인 : 김명규 | 청소년보호책임자 : 최지희 | 발행소 : 서울시 마포구 월드컵로8길 45-8 1층 | 발행일자 : 매일



