
Located in Montreal’s Golden Square Mile on the ground floor of a condominium building, the challenge in building this orthodontic clinic was to bring warmth to this coldly stark concrete - defined space. The idea was not to mask base materials but rather, transform them and create contrast. Surrounding brick buildings in this downtown area are referenced through the custom communal sink made of red demolition brick. This brick is also symbolic of the material of the original location of the doctors’ clinic in the Drummond Medical Building.
Go Orthodontistes does things differently and this space reflects that. Beyond functional traits, the layout and materiality of the space impacts visitors creating a positive experience with none of the anxiety-inducing connotation of a medical space. A mix of private and open clinical areas with semi-private mesh curtaining allows for flexibility in seeing patients. By concealing all ductwork in gold mesh panels, an airy lightness is felt throughout the entire open space a well as in the closed sections.
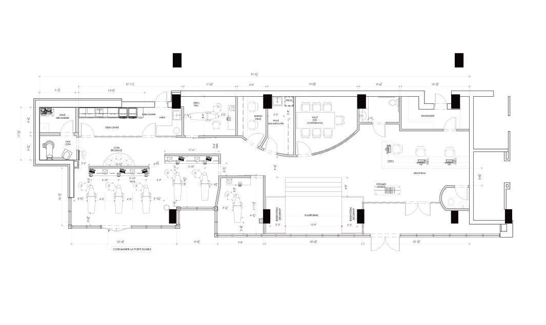
A large curved wall extends from the reception area revealing the clinical zone. Elements of magic are brought with features such as the retractable mesh curtains for semi-privacy in the clinic area, as well as the elevated reception platform. Visitors float above the water on a raised platform while waiting for their appointments. Shades of gold were used to capture the abundant sunlight during the day and create a lightbox effect at night to the street. By offsetting the medical connotation of the clinic space through the warm color palette, and an open floor plan, visitors are left with a feeling of well being.
Custom furniture is found throughout the office space making up the majority of pieces in the office. They were designed with durability and hygiene in mind, which drove the decision to work with materials such as powder coated metal, polished concrete and Corian. This includes the custom curved smoky glass closet which is designed as a mobile furniture piece with hidden casters allowing users to reconfigure the space to their preference. The metal finish on the closet matches the custom elevated waiting room platform. The platform plays host to a trio of custom modular ottomans picking up tones from the floor and allowing for multiple seating configuration. The rection desk and its surroundings in limestone create a monochromatic and textured environment that is immersive and welcoming to visitors as they enter. In the conference room, custom Vicostone quartz and powder coat steel tables exist as a large or two smaller surfaces. The conference room also contains an invisible integrated closet, which recalls the corrugated white steel walls of its room as well as the entrance washroom chamber. A communal toothbrushing station is operated with foot pedals for hands-free use, optimizing function and hygiene.
The color was used in order to create a neutral and immersive palette. The array of complementary shades allows for a warm and calming environment for patients and staff. All color choices were made to serve the harmony of the space, as well as adding depth and complexity. By bringing in noble materials, a timeless space is created. The multitude of surfaces covered in individually hand-laid marble mosaic tiles epitomizes the calming effect created by subtle color variation over large surfaces of the repeated pattern. Accents of gold are continuously found in areas such as the retractable curtains in the open clinic as well as door frames, wall partitions and faucets. The multileveled custom gold mesh ceiling emphasizes height and lets the environment breathe upward with a light-catching quality. The bright gold of the waiting room platform, reflecting in the basin beneath creates color in motion.

몬트리올의 골든 스퀘어 마일(Golden Square Mile)에 위치한 콘도미니엄 건물 1층에 위치한 이 치아 교정 클리닉을 짓는 데 있어 어려움은 차갑고 황량한 콘크리트 공간에 따뜻함을 가져다주는 것이었다. 아이디어는 기존의 것을 가리는 것이 아니라 변형하고 대비를 만드는 것이었다. 붉은 철거 벽돌로 만든 맞춤형 공용 세면대는 이 도심 지역의 주변 벽돌 건물에서 아이디어를 얻었다. 이 벽돌은 또한 Drummond 메디컬 빌딩의 진료소가 있던 원래 위치의 재료를 상징한다.
Go Orthodontists는 각자 다른 일을 하는데 이 공간은 그것을 반영하고 있다. 기능적 특성을 넘어 공간의 배치와 물질성은 의료 공간의 불안을 유발하는 어떤 암시도 없이 긍정적인 경험을 만들어 내는 데 영향을 미친다. 비개방형 공간, 반개방형 공간, 개방형 공간을 혼합하여 환자를 볼 때 유연성을 허용한다. 모든 덕트를 골드 메쉬 패널로 감춤으로써 밀폐된 부분뿐만 아니라 전체 개방된 공간에서도 통풍이 잘 되는 경량성을 느낄 수 있다.
큰 곡선 벽은 임상 구역을 드러내는 리셉션 영역에서 확장된다. 진료실의 반 프라이버시를 위한 개폐식 메쉬 커튼과 높은 리셉션 플랫폼과 같은 기능이 포함된다. 방문객들은 약속을 기다리는 동안 높은 플랫폼에서 물 위에 떠 있는 듯한 경험을 한다. 낮에는 풍부한 햇빛을 흡수하고 밤에는 거리의 라이트 박스 효과를 만들기 위해 금색 음영이 사용됐다. 따뜻한 색상의 팔레트와 개방형 평면을 통해 진료 공간의 의학적인 함축성을 상쇄함으로써 방문객들은 행복감을 느낄 수 있다.
맞춤형 가구는 사무실의 대부분을 차지하는 사무 공간 곳곳에서 볼 수 있다. 내구성과 위생을 염두에 두고 설계되었기 때문에 분말 코팅된 금속, 광택 콘크리트 및 Corian과 같은 재료로 작업됐다. 여기에는 사용자가 원하는 대로 공간을 재구성할 수 있도록 숨겨진 캐스터가 있는 이동식 가구로 설계된 맞춤형 곡선형 스모키 유리 옷장이 포함된다. 옷장의 금속 마감은 맞춤형 높은 대기실 플랫폼과 통일된다. 플랫폼은 바닥에서 소리를 잡아 여러 좌석 구성을 허용하는 맞춤형 모듈식 오토만 트리오의 호스트 역할을 한다. 응접실과 석회암으로 된 주변 환경은 방문객이 입장할 때 몰입감 있는 단색의 질감을 가진 환경을 만든다. 회의실에는 맞춤형 Vicostone 석영과 분말 코팅의 스틸 테이블이 크거나 두 개의 작은 표면으로 존재한다. 회의실에는 보이지 않는 붙박이장도 포함되어 있는데, 이는 회의실의 골판지 흰색 강철 벽과 화장실 입구를 연상시킨다. 공동 양치 구역은 핸즈프리 사용을 위해 발 페달로 작동되어 기능과 위생에 최적화되어 있다.
색상은 중립적이고 몰입감 있는 팔레트를 만들기 위해 사용되었다. 보색의 배열은 환자와 직원에게 따뜻하고 차분한 환경을 제공한다. 모든 색상은 공간의 조화를 제공하고 깊이와 복잡성을 더해주기 위해 선택됐다. 고귀한 재료를 들여와 시간이 흘러도 변치 않는 공간이 만들어졌다. 대리석 모자이크 타일로 덮인 다수의 표면은 반복되는 패턴의 넓은 표면에 미묘한 색상 변화가 만들어내는 진정 효과를 보여준다. 오픈 클리닉의 개폐식 커튼은 물론 도어 프레임, 벽 파티션 및 수도꼭지와 같은 영역에서 골드 악센트가 지속적으로 발견된다. 다단계 맞춤형 골드 메쉬 천장은 높이를 강조하고 빛을 받는 품질로 환경이 위로 숨을 쉴 수 있도록 한다. 대기실 플랫폼의 밝은 금색은 아래 수공간에 반사되어 움직이는 색상을 만들어 낸다.















Design Natasha Thorpe Design
Location Montreal, QC, Canada
Building area 4570 square feet
Completion 2019
General contractor Avantage Plus
Client Go Orthodontistes
Photographer Maxime Brouillet
'Interior Project > Healthcare' 카테고리의 다른 글
| Infinity Wellbeing (0) | 2021.10.25 |
|---|---|
| Dentist Clinic SG (0) | 2021.10.13 |
| PÇL Clinic (0) | 2021.10.05 |
| Warehouse GYM D3 (0) | 2021.09.28 |
| Dental Clinic in Los Remedios (0) | 2021.08.31 |
마실와이드 | 등록번호 : 서울, 아03630 | 등록일자 : 2015년 03월 11일 | 마실와이드 | 발행ㆍ편집인 : 김명규 | 청소년보호책임자 : 최지희 | 발행소 : 서울시 마포구 월드컵로8길 45-8 1층 | 발행일자 : 매일



