
The project tackles an interior agenda as an Architectural one, working with space, volumes and lights in order to create a unique space and unprecedented atmosphere. The play of transparencies, pastel colours, natural materials and pure forms results in a calm and positive feel, detached from the chaos of the outside world.
The project responds to the need of converting a generic, suburban, “big room”, into a space where people can experience emotions.
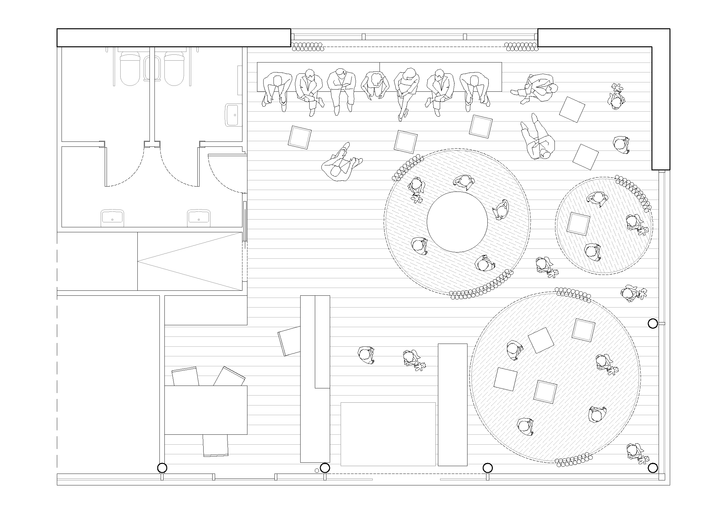
Playfulness and transparency are the themes at the base of the project for the dental clinic dedicated to children. Three distinct areas are created within the main space thanks to the use of curtains hanging from circular rails. To reinforce the limit of these spaces, there are custom-made carpets that regain the perimeter of the curtains on the ground. The feeling from the inside of these “rooms” is that of protection and intimacy, however, the visibility from the outside is ensured, so that parents have a view towards their children while they play.
From the exterior, the light blue curtains recall the hues of the mountains observed from the valley of the town, creating an effect of depth inside a small space.
The layout of the internal space aims to create a light and relaxing atmosphere, where young patients could feel comfortable while waiting for their appointment.
The pastel shades of the furnishings, inspired by the production of Donald Judd, and the use of natural materials, help to the achievement of a friendly and relaxed mood.
The furniture is designed so that it can be easily moved, changing the layout of the room and promoting new configurations, permitting to use the room differently every day. Stools can be used both for sitting and as large baskets containing toys for children. The walls have been painted with a special paint transforming them into blackboards. Different drawings appear every day, increasing the perception of a constantly changing space.
Overall, the environment promotes the exchange and interaction between patients and their parents, eliminating the classic social barriers and mixing different worlds within the same space.

이 프로젝트는 독특한 공간과 전례 없는 분위기를 만들기 위해 공간, 볼륨, 조명과 함께 일하는 건축적인 의제를 다루고 있다. 투명성, 파스텔 색상, 천연 재료, 그리고 순수한 형태의 놀이는 외부 세계의 혼돈으로부터 벗어나 차분하고 긍정적인 느낌을 낳는다.
이 프로젝트는 일반적인 교외의 "큰 방"을 사람들이 감정을 경험할 수 있는 공간으로 전환해야 할 필요성에 대응한다.
놀이성과 투명성은 어린이 전용 치과 프로젝트의 기초에 있는 주제이다. 원형 난간에 드리워진 커튼의 사용으로 인해 주요 공간 내에 3개의 뚜렷한 영역이 형성된다. 이러한 공간의 한계를 강화하기 위해, 지상의 커튼 둘레를 다시 찾는 주문 제작 카펫이 있습니다. 이런 방 안에서 느끼는 감정은 보호와 친밀감이지만 외부에서는 시야가 확보돼 부모가 자녀들을 놀면서 보는 시야가 확보된다.
외부로부터, 옅은 파란색 커튼은 마을의 계곡에서 바라본 산의 색조를 떠올리며, 좁은 공간 안에 깊이의 효과를 만들어낸다.
내부 공간의 배치는 어린 환자들이 예약을 기다리는 동안 편안함을 느낄 수 있는 가볍고 편안한 분위기를 만드는 것을 목표로 한다.
도널드 저드의 제작과 천연 재료의 사용에 영감을 받은 파스텔 색조는 친근하고 편안한 분위기를 달성하는 데 도움이 된다.
이 가구는 쉽게 이동할 수 있도록 설계되었으며, 방의 배치를 변경하고 새로운 구성을 촉진하여 매일 방을 다르게 사용할 수 있게 되었다. 스툴은 앉거나 어린이를 위한 장난감이 들어 있는 큰 바구니에 모두 사용될 수 있다. 벽은 칠판으로 변형시키는 특수 페인트로 칠해져 있다. 매일 다른 그림들이 나타나 끊임없이 변화하는 공간에 대한 인식을 높인다.
전반적으로 환경은 환자와 부모 사이의 교류와 상호작용을 촉진하여 전통적인 사회적 장벽을 없애고 동일한 공간 내에서 서로 다른 세계를 혼합한다.















Architects Atelier Giavenale
Location Schio(VI), Italy
Completion 2020
photographer Brando Ghinzelli
'Interior Project > Healthcare' 카테고리의 다른 글
| SUMIYOSHIDO Kampo Lounge (0) | 2021.10.28 |
|---|---|
| Infinity Wellbeing (0) | 2021.10.25 |
| Go Orthodontistes Downtown Flagship (0) | 2021.10.07 |
| PÇL Clinic (0) | 2021.10.05 |
| Warehouse GYM D3 (0) | 2021.09.28 |
마실와이드 | 등록번호 : 서울, 아03630 | 등록일자 : 2015년 03월 11일 | 마실와이드 | 발행ㆍ편집인 : 김명규 | 청소년보호책임자 : 최지희 | 발행소 : 서울시 마포구 월드컵로8길 45-8 1층 | 발행일자 : 매일



