
PÇL dental clinic is located in Puçol, a town situated just a few kilometers from Valencia. The site is a commercial basement of a brick residential building, typical of the 1980s.
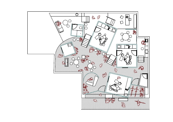
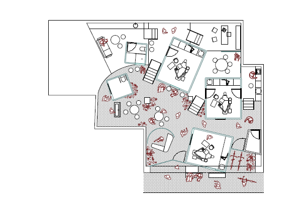
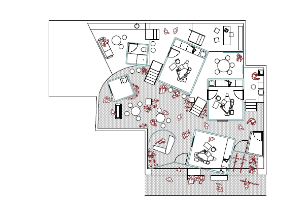
The project is mainly focused on how to solve the program and integrate the proposal into the difficult and peculiar geometry of the basement, which is also divided in different height levels.
The clinic's program requires two different areas: a public one, which is linked to the street and a private and internal one, designed for the clinic workers.
Our proposal is a series of autonomous, free-standing boxes that are scattered throughout the space, colonizing the different levels and collecting all the defined programs required by the client: bathrooms, storage, and work boxes.
The topological relationships between volumes, and the tensions between themselves and the container space, help to create a small-scale urban experience, through which clients and professionals become active participants and not only passive consumers.
Meanwhile, the waiting room, which works like a plaza, dominates the space. The system of boxes and its access areas generate a space that limits both worlds, creating the connection space between the different users of the clinic.
The external walls are set back from the facade line, generating a broken geometry and gaining depth, also allowing a gradual transition between the street and clinic. The dimensions and the south orientation allow the entry of natural light into the whole space.
The original walls of the space are pained in white, allowing the perimeter to be completely neutral. The floor plan is materialized with a gray ceramic pavement in the most public area, and linoleum of the same color on the private levels. The cladding of the boxes is a micro-perforated miniature metal sheet on the outside, and a 10x10 ceramic colored tile on the inside that allows to identify the boxes use. The bathroom and counter boxes, meanwhile, are materialized with mirror and polycarbonate panels respectively, helping to dematerialize their limits.

PÇL 덴탈클리닉은 발렌시아에서 불과 몇 킬로미터 떨어진 도시인 푸콜(Puçol)에 위치해 있다. 이곳은 1980년대의 전형적인 벽돌 주거용 건물의 상업용 지하실이다.
이 프로젝트는 지하실의 각각 다른 높이로 분할된 어렵고 독특한 프로그램을 어떻게 해결하고 기하학적 구조로 통합하는가에 초점을 맞추고 있다.
이 클리닉의 프로그램은 두 가지 다른 영역을 필요로 한다. 하나는 거리에 연결된 공공 영역이고 하나는 클리닉 종사자를 위해 설계된 개인 및 내부 영역이다.
건축가의 제안은 공간 전체에 흩어져 있는 일련의 자율적인 독립형 박스로, 다양한 레벨들을 식민지화하고 욕실, 창고, 작업 박스 등 고객에게 필요한 모든 정의된 프로그램들을 수집한다.
볼륨 간의 위상적 관계, 그리고 그 자체와 컨테이너 공간 사이의 긴장은 고객과 전문가가 수동적인 소비자뿐만 아니라 능동적인 참여자가 되는 소규모 도시 경험을 만드는 데 도움이 된다.
한편, 광장과 같은 역할을 하는 대기실이 공간을 압도하고 있다. 박스와 접근 영역은 양쪽 공간을 제한하는 공간을 생성하여 클리닉의 다른 사용자들 사이에 연결 공간을 만든다.
외벽은 정면 라인에서 뒤로 물러서서 부서진 형상을 만들고 깊이를 얻음으로써 거리와 클리닉 사이의 점진적인 전환을 가능하게 한다. 그 규모와 남향의 설계는 자연광이 전체 공간으로 들어올 수 있도록 한다.
공간의 원래 벽은 흰색으로 칠해져 주변에 대해 중립적이다. 이 평면은 가장 공공적인 공간은 회색 세라믹 바닥을, 개인 영역에는 같은 색상의 리놀륨(Linoleum) 사용했다. 박스의 클래딩의 외부는 미세 가공된 미니어처 금속 시트이며 내부는 박스의 사용 여부를 확인할 수 있는 10x10 세라믹 컬러 타일로 되어있다. 한편, 욕실과 카운터 박스는 각각 거울과 폴리카보네이트 패널로 구현돼 있어 한계를 비 물질화하는 데 도움이 된다.








Architects RAUM 4142 Architecture Office + Javier Cabanes
Location Puçol Valencia
Completion 2019
Collaborators Beatriz Riber, Elisa Ricoy and Elena Gámez
Photographer Alejandro Gómez Vives
'Interior Project > Healthcare' 카테고리의 다른 글
| Dentist Clinic SG (0) | 2021.10.13 |
|---|---|
| Go Orthodontistes Downtown Flagship (0) | 2021.10.07 |
| Warehouse GYM D3 (0) | 2021.09.28 |
| Dental Clinic in Los Remedios (0) | 2021.08.31 |
| Swiss Concept Clinic (0) | 2021.08.27 |
마실와이드 | 등록번호 : 서울, 아03630 | 등록일자 : 2015년 03월 11일 | 마실와이드 | 발행ㆍ편집인 : 김명규 | 청소년보호책임자 : 최지희 | 발행소 : 서울시 마포구 월드컵로8길 45-8 1층 | 발행일자 : 매일



