
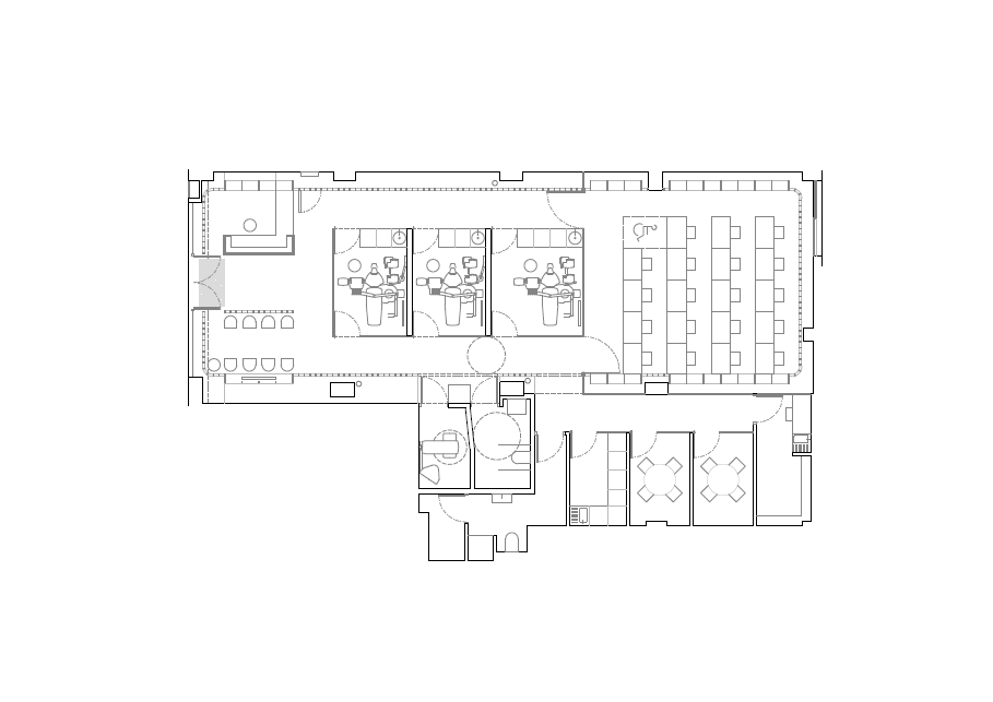
This project consists of the refurbishment of a retail space into a new dental clinic including three patient rooms and a classroom for 20 students. It focuses on the use of natural light and the optimization of circulation patterns in such a compact but diverse program.
The space only has access to natural light through its store front and a window on the back. With this in mind, the project leaves the entire shell uncovered, overlaying a series of translucent skins of various materials. These layers regulate the different levels of natural light and privacy that each room requires. On one hand, an oak wood lattice covers the entire perimeter of the space’s main bay. The lattice establishes a regular orthogonal grid, able to resolve all local programmatic requirements, such as thresholds, shelves, drawers, screens and reception desk. This regular element homogenizes the interior space of the clinic, while allowing for natural light and visual connections. It also partially shows the inconsistencies of the preexisting architectural frame.
On the other hand, a frosted glass box in the center of the space houses the three patient rooms, while also separating the access area from the classroom. This pristine volume stands freely without reaching the ceiling. Its translucent skin allows for natural light to go through, while providing privacy to the patients. The clinic’s materiality is completed with a continuous polished concrete floor. The floor is pierced by a series of chambers and ducts that host all the technical systems that the dental equipment requires. The store front is composed by large pieces of clear glass, held by ad-hoc-designed galvanized steel framework.

이 프로젝트는 3개의 병실과 20명의 학생을 위한 교실을 포함한 새로운 치과로 상업공간을 개조한 프로젝트다. 작지만 다양한 프로그램에서 자연광의 사용과 순환 패턴의 최적화에 중점을 두고 있다.
이 공간은 상점 전면과 후면의 창을 통해 자연 채광에 접근할 수 있다. 이를 염두에 두고 프로젝트는 전체를 덮지 않고 다양한 재료의 일련의 반투명 스킨을 겹쳐놓는다. 이 레이어들은 각 방이 필요로 하는 다양한 수준의 자연광과 프라이버시를 조절한다. 한편으로는 오크 나무 격자가 공간의 메인 베이 전체 둘레를 덮고 있다. 격자는 기준치, 선반, 서랍, 스크린 및 리셉션 데스크와 같은 모든 로컬 프로그래밍 요구 사항을 해결할 수 있는 직교 그리드를 설정한다. 이 규칙적인 요소는 자연 채광과 시각적 연결을 허용하면서 클리닉의 내부 공간을 균질화한다. 또한 기존 건축 프레임의 불일치를 부분적으로 보여준다.
한편, 공간 중앙의 반투명 유리 상자에는 3개의 병실이 있으며, 동시에 출입구역을 교실과 분리한다. 이 깨끗한 볼륨은 천장에 닿지 않는다. 반투명한 표면은 자연광을 통과시키는 동시에 환자에게 프라이버시를 제공한다. 클리닉의 중요성은 연속적인 광택 콘크리트 바닥으로 완성된다. 바닥은 치과 장비에 필요한 모든 기술 시스템을 수용하는 일련의 챔버와 덕트로 뚫려 있다. 매장 전면은 임시로 설계된 아연 도금 강철 프레임워크로 고정된 커다란 투명 유리 조각으로 구성되어 있다.















Architects PRÁCTICA
Location Seville, Spain
Program Dental clinic
Site area 208㎡
Building area 208㎡
Gross floor area 208㎡
Building scope 1F
Building to land ratio 100%
Floor area ratio 100%
Design period 2019. 10 - 2020. 1
Construction period 2020. 1 - 2020. 8
Completion 2020. 8
Principal architect Jaime Daroca, Jose Mayoral & Jose Ramon Sierra
Project architect Jaime Daroca, Jose Mayoral & Jose Ramon Sierra
Design team Jaime Daroca, Jose Mayoral & Jose Ramon Sierra
Mechanical engineer MB Ingienieros
Electrical engineer MB Ingienieros
Construction MVT Construye
Client Aldentista.es
Photographer Fernando Alda
'Interior Project > Healthcare' 카테고리의 다른 글
| PÇL Clinic (0) | 2021.10.05 |
|---|---|
| Warehouse GYM D3 (0) | 2021.09.28 |
| Swiss Concept Clinic (0) | 2021.08.27 |
| Clinique D diaphane (0) | 2021.08.17 |
| Care Implant Dentistry (0) | 2021.08.13 |
마실와이드 | 등록번호 : 서울, 아03630 | 등록일자 : 2015년 03월 11일 | 마실와이드 | 발행ㆍ편집인 : 김명규 | 청소년보호책임자 : 최지희 | 발행소 : 서울시 마포구 월드컵로8길 45-8 1층 | 발행일자 : 매일



