
On one of Sydney’s high-end retail streets we were invited to design a high-level state of the art dental clinic. The actual space and the brief provided by the client posed a few challenges that got us thinking. An aesthetic is something that may be mistaken as an additional almost cosmetic layer to a design, but in our projects, the aesthetic is a clear response to problem solving.

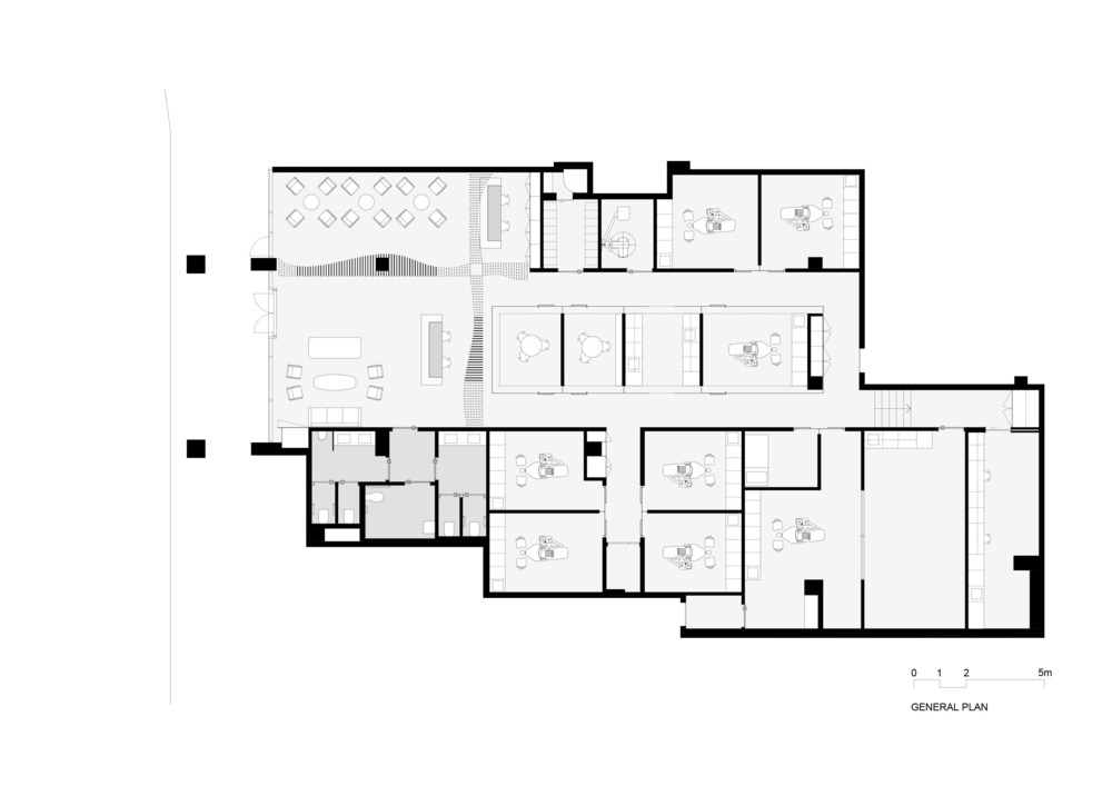
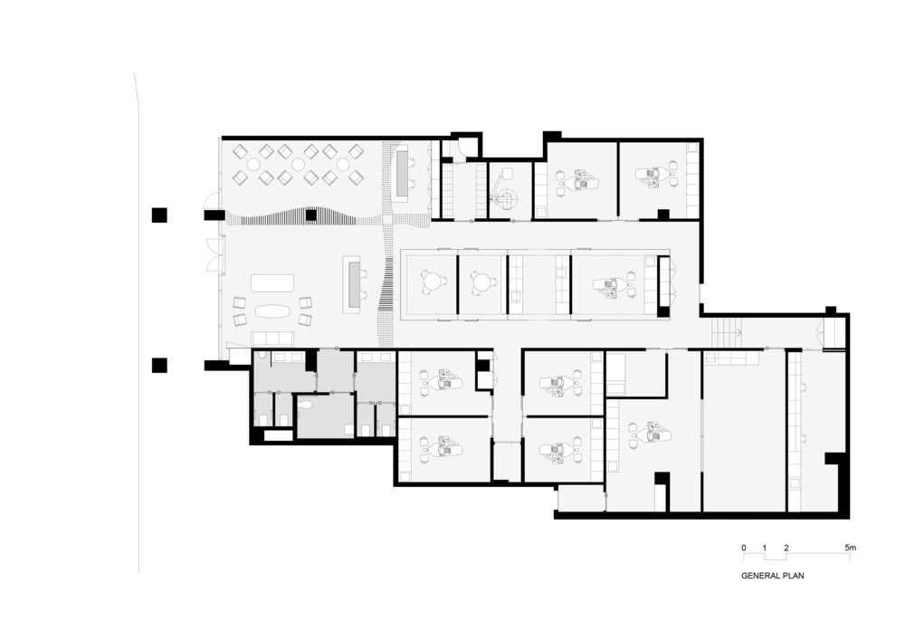
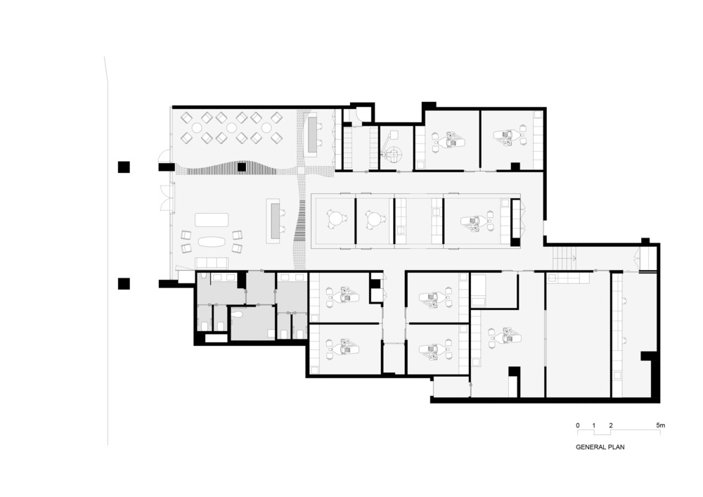
In this particular case the client requested two receptions with two entrances that could function separately but without compromising the sense of spaciousness and its relationship with people passing by. In the same space we also had a stubborn structural column that seemed to impose itself in all the attempts of trying to integrate it into the design. The solution? Answering the brief and magically making the column disappear!

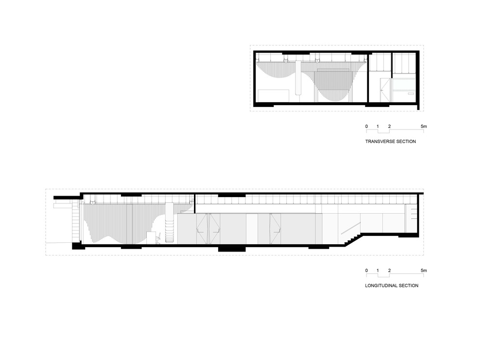
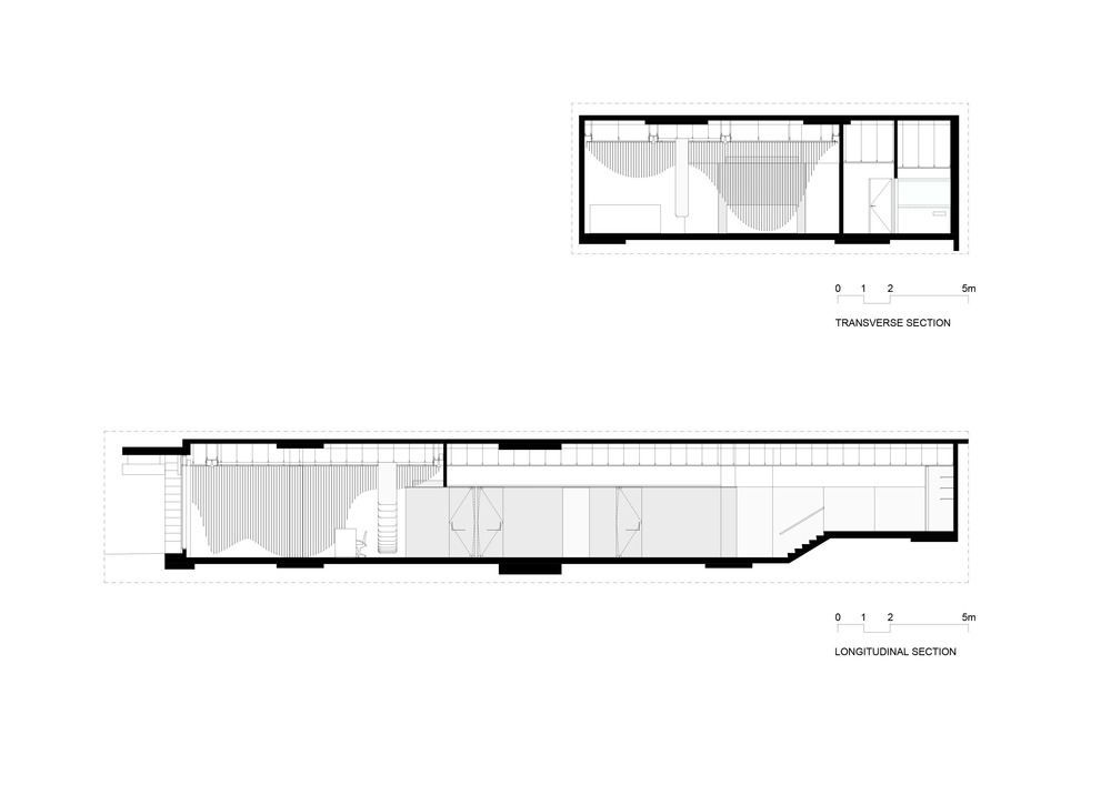
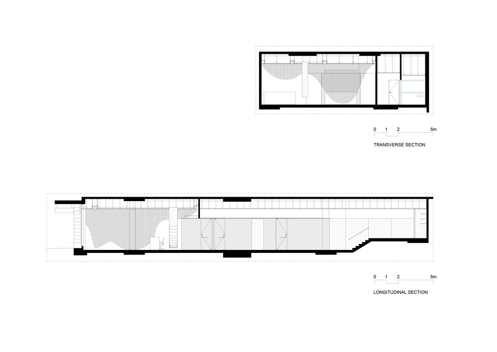
To achieve this we created a sculptural wooden element that serves as a filter between the two reception areas. This element serves a dual function: allowing for partial vision between spaces by separating them and at the same time making the concrete column vanish! Built from suspended wooden planks that start with narrow elements that then widen to engulf the existing column, this element was a response to a premise and became the predominant feature working as a space generator, influencing the ceiling and other elements.

The public accesses the clinic from Archer Street, leading towards the appropriate reception desk and waiting area. The waiting areas are composed of two lounges, one for general dentistry and the other for dental implant practice. The remaining space of the clinic is arranged around a central corridor that starts in the reception area that connects all the intricate parts of the dental clinic, from examination areas, surgeries, client areas and technical spaces. In the middle of this corridor you find a transparent central core made of glass allowing for natural light to penetrate the interior of the space.

At the far end of the clinic you find the main surgery where advanced oral procedures are performed. As a national reference in the dental arena, the client Dr Christopher Ho requested that this space be designed in a way that would allow for these complex procedures be seen by piers sharing the experience and knowledge. This was achieved by placing an observation room on a higher level with a large window towards the surgery and connected with a camera allowing for fellow surgeons to view procedures from close-up on a large screen. In summary this is a space where complex procedures are performed and we tried to create a corresponding space that communicates this level of sophistication leaving a positive and memorable impression on the patients who used it.

시드니의 고급 상점가 중 하나에 최첨단 치과를 디자인했다. 실제 공간과 건축주의 요구는 몇 가지 문제를 제기했다. 에스테틱은 디자인에 거의 미용에 가까운 추가 레이어로 착각할 수 있는 것이지만, 이 프로젝트에서 에스테틱은 문제 해결에 대한 명확한 응답이다.

특히 건축주는 별도로 기능할 수 있지만 공간감과 지나가는 사람들과의 관계를 손상시키지 않으면서 두 개의 입구가 있는 두 개의 리셉션을 요청했다. 또한 같은 공간에 완고한 구조 기둥이 있는데, 이 기둥을 디자인에 통합하려는 모든 시도는 강요하는 것처럼 보이기도 했다.

이를 위해 우리는 두 구간의 필터 역할을 하는 나무 조각을 만들었다. 이 요소는 공간을 분리하여 공간 간의 부분 시야를 허용하는 동시에 콘크리트 기둥을 사라지게 하는 이중 기능을 수행한다. 좁은 요소에서 시작하여 기존 기둥을 집어삼킬 수 있는 나무판자로 만들어진 이 요소는 천장과 다른 요소들에 영향을 미치며 공간의 주요 특징이 됐다.

이용자들이 Care Implant Dentistry로 들어가면 안내 데스크와 대기 장소로 이동한다. 대기공간은 일반 치과와 임플란트진료를 위한 2개의 라운지로 구성되어 있다. 진료소의 남은 공간은 검사 구역, 수술 구역, 고객 구역, 기술 공간 등 치과 진료소의 모든 복잡한 부분을 연결하는 안내 구역에서 시작되는 중앙 복도를 중심으로 배치된다. 이 복도 중앙에는 유리로 만들어진 투명한 중앙 코어가 있어 자연광이 공간 내부를 투과할 수 있다.

클리닉의 맨 끝에는 고급 구강 시술이 진행되는 수술실이 있다. 건축주인 Christopher Ho 박사는 이 공간을 경험과 지식을 공유하는 교각들이 이러한 복잡한 절차들을 볼 수 있도록 설계해 줄 것을 요청했다. 이는 수술실 쪽으로 큰 창문이 있는 더 높은 곳에 관찰실을 배치하고 동료 의사들이 큰 화면으로 시술을 가까이서 볼 수 있도록 카메라와 연결했다. 요약하자면 이 공간은 복잡한 시술이 이루어지는 공간이며, 이 정도의 정교함을 전달하여 이를 사용한 환자에게 긍정적이고 기억에 남는 공간을 만들려고 했다.

Architects Pedra Silva Arquitectos
Location Sydney, Australia
Program Clinic
Building area 402㎡
Completion 2014
Principal architect Luís Pedra Silva
Project architect André Góis, Dina Castro, Hugo Ramos, Hugo Ferreira, Maria Rita Pais, Ricardo Sousa
Contract manager Alex smallbone
Project manager Andrew Stewart
Contractor Renascent
Client Dr.Christopher Ho
Photographer Fernando Guerra
'Interior Project > Healthcare' 카테고리의 다른 글
| Swiss Concept Clinic (0) | 2021.08.27 |
|---|---|
| Clinique D diaphane (0) | 2021.08.17 |
| Power10 Fitness (0) | 2021.08.12 |
| Green Massage (0) | 2021.07.28 |
| Go Orthodontistes Brossard Clinic (0) | 2021.07.26 |
마실와이드 | 등록번호 : 서울, 아03630 | 등록일자 : 2015년 03월 11일 | 마실와이드 | 발행ㆍ편집인 : 김명규 | 청소년보호책임자 : 최지희 | 발행소 : 서울시 마포구 월드컵로8길 45-8 1층 | 발행일자 : 매일



