
Gloomy to glowing
Light, a critical ingredient of many dermatological treatments, is the starting point from which the project evolves. Despite its large windows facing east onto Avenir Boulevard and south onto the Montmorency metro station parking lot, the former paediatric clinic that occupied this space was dark and uninspiring. The position of the waiting room in the centre, with windowless examination rooms surrounding it, shut clients off from the outside world and its views and natural light. To make the most of the large openings, the entire office was transformed into an open-plan space with translucent elements serving different functions within the clinic, letting the abundant natural light filter in all around. The ceiling, covered wall to wall in acoustic tiles, was exposed to make the area feel more spacious.

Translucent surroundings
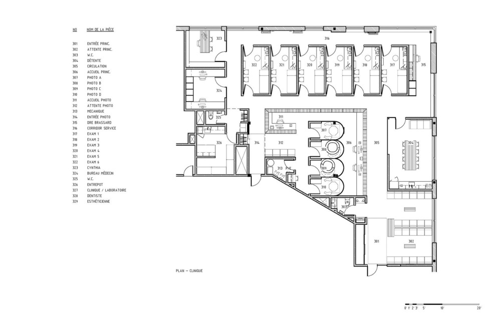
The six examination rooms, featuring frosted glass ceilings, form a long white wall punctuated by six high wooden doors. With its imposing opalescent glass wall and lowered ceiling, the relaxation room for the clinic’s professionals looks like a glowing cube. Light therapy machines sit imposingly in the centre, behind reception. The curved translucent glass walls that encapsulate them give away their function, as they emit an entrancing purple light when in operation. A long, solid ash reception desk wraps around this central core, with an entrance on either end: dermatology (main entrance) and light therapy (secondary entrance).

The client as the focal point
Dr. Brassard wants her patients to relax as soon as they enter the clinic. They should feel an uplifting sense of peace and calm during their visit rather than being weighed down by stress and discomfort. At Clinique D, the waiting room offers the most breathtaking view of the entire space: the whole stretch of Avenir Boulevard. People are more patient, more understanding when they are comfortable and well looked after. At the foot of the waiting room chairs, custom-built solid ash coffee tables mirror the look and feel of the reception desk. At the bottom of the hall closet is a wooden shoe rack, inviting patients to take their boots off as soon as they walk in. Further in, an alcove where washrooms are located also has a hot/cold water dispenser for anyone to pour themselves a cup of tea while they wait for their appointment or treatment.

Caring for the care staff
In addition to being a welcoming and comforting place for patients, the clinic must meet the needs of its staff, who spend long hours working inside its walls. It must be efficient in the way it is organized and pleasant in the way it is laid out. To achieve this, the clinic’s professionals must be able to move between the common areas, offices and examination rooms out of sight of the public. By moving the consultation rooms away from the exterior wall, a long service corridor was freed up for staff to move around in. This spatial arrangement, the true backbone of this space, created a bright and lively corridor through which nurses, technicians and physicians can move freely from one room to another, consulting their patients’ computer records, exchanging opinions and information, or even going to their offices and the relaxation room. Computer workstations are mounted on walls for medical staff to consult records before or after seeing their patients, without blocking this strategic passageway. The staff can also enjoy the transparent block within which the relaxation room is enclosed, shielded from the curious glances of the patients.

Customized lighting
To supplement the natural light, hanging Wi-Fi LED bulbs can be programmed to the desired intensity and colour for each zone. Installed 8’-0” high, they offer users maximum energy-efficient brightness, without being too blinding. Strips of recessed LED lights highlight the large wood overhang above the desk and the whole of the waiting room. The same type of recessed lighting lines the reception desk to light up the work surfaces for staff. Lastly, each examination room has light flooding from a variety of LED sources, producing a very expansive but highly efficient spectrum: in panels behind the glass ceiling, in inset linear strips along the same ceiling, and in the form of a built-in light fixture above the exam table and a directional Wi-Fi bulb on an adjustable arm beside the patient. The glass ceiling and doors to the service corridor complete the layout with diffused natural light. The intense brightness of the space lends itself well to greater precision in the visual examination of patients.

Atelier Chinotto’s signature
All of the signage was designed in collaboration with graphic designer Atelier Chinotto. Stylized but universal at the same time, it consists of a mix of custom-designed logos (phone, washrooms, charging stations) and more specific descriptors for each room (1, 2, 3, A, B, C, Dr. Danielle Brassard, lunchroom, etc.). The lettering consists of cut-outs from light grey vinyl against the white background of the walls. For the concrete floor, however, the lettering is painted white right on the grey surface. The font is understated and sleek. The 3D geometry is the pinnacle of the design. It is a 3D parametric extrusion of the 2D logo designed by Atelier Chinotto, where the depth of the grooves varies depending on their width, offering a stunning play of light and shadow.

Clinique D under the spotlight
The Clinique D diaphane project is proof that, with a client’s trust, a dynamic young firm can deliver a complex, specialized architectural project without necessarily having acquired previous expertise in similar ventures. Clinique D is confident that a welcoming and well‑designed care space promotes the well-being of its users and professionals, and indirectly leads to positive care and working conditions. Its exceptional architecture and sustainable construction details will improve the well‑being of many, a real investment for society over the longer term. A care space does not necessarily have to be dominated by technological equipment. It can be inspired by the human warmth of the people that inhabit it and the place that it calls home.

어둡고 빛나다.
빛은 많은 피부과 치료의 중요한 성분으로, 이 프로젝트가 발전하는 출발점이다. Avenir Boulevard 동쪽을 향한 커다란 창문과 Montmorency 지하철역 주차장에도 불구하고, 이 공간을 위치하고 있던 이전의 소아과 클리닉은 어둡고 감흥이 없었다. 창문이 없는 검사실이 둘러쳐진 가운데 대기실의 위치는 외부와 고객을 차단하고 전망과 자연광을 차단한다. 대형 개구부를 최대한 활용하기 위해 진료실 내 다양한 기능을 제공하는 반투명한 요소를 갖춘 오픈 플랜 공간으로 탈바꿈해 풍부한 자연광이 사방을 여과할 수 있도록 했다. 방음 타일로 벽면을 덮은 천장은 더욱 넓은 느낌을 주기 위해 노출됐다.

불투명한 환경
불투명한 유리 천장이 특징인 6개의 검사실은 6개의 높은 나무 문이 있는 길고 하얀 벽을 이루고 있다. 인상적인 유백색 유리 벽과 낮아진 천장으로 인해 클리닉의 전문가를 위한 휴게실은 빛나는 큐브처럼 보인다. 치료기계는 리셉션 뒤쪽 중앙에 당당하게 자리잡고있다. 이를 감싸는 곡선형 반투명 유리벽은 작동 시 매혹적인 보라색 빛을 내뿜기 때문에 기능을 부여한다. 길고 단단한 재 접수 데스크가 중앙 코어를 감싸고 있으며, 양쪽 끝에 피부과(정문)와 광선 치료(보조 입구)가 있다.

고객 중심
Brassard 박사는 환자가 진료소에 들어가는 즉시 휴식을 취하기를 바란다. 그들은 방문하는 동안 스트레스와 불편함에 짓눌리기보다는 위로와 평온을 느껴야 한다. Clinique D diaphane의 대기실은 Avenir Boulevard의 전체를 볼 수 있는 숨 막히는 경치를 제공한다. 사람들은 편안하고 보살핌을 받을 때 더 참을성이 있고 이해심이 많아진다. 대기실 의자 발치에는 견고한 맞춤형 애쉬 커피 테이블은 리셉션의 외관과 느낌을 그대로 반영하고 있다. 복도 벽장 아래쪽에는 나무 신발장이 있어 환자들이 들어오자마자 신발을 벗을 수 있다. 또한 화장실이 위치한 곳에는 예약 또는 치료를 기다리는 동안 누구나 직접 차를 마실 수 있는 온수/냉수 디스펜서가 설치되어 있다.

진료진 관리
이 클리닉은 환자들의 환영과 위안을 주는 장소일 뿐만 아니라 오랜 시간을 일하는 직원들의 요구를 충족시켜야 한다. 그것은 조직적인 면에서 효율적이어야 하고 배치되는 방식에서도 쾌적해야한다. 이를 위해서는 클리닉의 전문가들은 환자들의 시야에서 벗어나 공용 구역, 사무실 및 검사실 사이를 이동할 수 있어야 한다. 상담실을 외벽에서 멀리 이동함으로써 직원들이 이동할 수 있는 긴 서비스 복도가 확보됐다. 이 공간의 진정한 중추인 공간 배치는 간호사, 기술자, 의사들이 자유롭게 이 방에서 저 방으로 이동하면서 환자의 컴퓨터 기록을 참조하고 의견과 정보를 교환하거나 사무실과 휴게실까지 갈 수 있는 밝고 활기찬 복도를 만들었다. 의료진이 환자를 보기 전이나 후에 기록을 조회할 수 있도록 컴퓨터 워크스테이션이 벽에 장착되어 있어 이 전략적 통로를 막지 않는다. 직원들은 환자들의 호기심 어린 시선으로부터 보호되는 밀폐된 투명한 블록에서 휴식을 취할 수도 있다.

맞춤형 조명
자연광을 보완하기 위해 매달린 Wi-Fi LED 전구를 각 구역별로 원하는 강도와 색상으로 프로그래밍할 수 있다. 8'-0" 높이로 설치되며, 사용자에게 너무 눈부시지 않고 최대에너지 효율적인 밝기를 제공한다. 오목한 LED 조명 스트립은 책상 위와 대기실 전체에 걸쳐 있는 커다란 나무 돌출부를 강조한다. 동일한 유형의 매입형 조명은 리셉션 데스크에 일렬로 배치되어 직원의 작업 공간을 밝힌다. 마지막으로, 각 검사실에는 다양한 LED 소스에서 쏟아지는 빛을 가지고 있어 매우 광범위하지만 매우 효율적인 스펙트럼이 생성된다. 유리 천장 뒤 패널, 같은 천장을 따라 삽입된 선형 스트립, 내장 조명 형태 검사 테이블 위의 고정 장치와 환자 옆의 조절 가능한 팔에 있는 방향성 Wi-Fi 전구. 유리 천장과 서비스 복도로 통하는 문은 자연 채광이 확산되는 배치를 완성한다. 공간의 강렬한 밝기는 환자의 육안 검사의 정확성을 높여준다.

Atelier Chinotto의 시그니처
모든 브랜드 디자인은 그래픽 디자이너 Atelier Chinotto와 협업해 디자인됐다. 스타일리시하면서도 보편적인 디자인으로 디자인된 로고(전화, 화장실, 충전소)와 각 방(1, 2, 3, A, B, C, Dr. Danielle Brassard, 점심실 등)에 대한 구체적인 설명으로 구성되어 있다. 글자는 벽의 흰색 바탕에 연한 회색 비닐을 오려낸 것으로 구성되어 있다. 그러나 콘크리트 바닥의 경우 회색 표면 바로 위에 흰색으로 글자가 칠해져 있다. 글씨체가 절제되고 날렵하다. 3D 지오메트리는 디자인의 정점입니다. Atelier Chinotto가 디자인한 2D 로고의 3D 파라메트릭 압출로 너비에 따라 홈의 깊이가 달라지며 빛과 그림자의 놀라운 플레이를 제공한다.

각광받는 Clinique D diaphane
Clinique D diaphane 프로젝트는 역동적인 젊은 회사가 유사한 벤처에 대한 사전 전문 지식을 습득하지 않고도 클라이언트의 신뢰와 함께 복잡하고 전문적인 건축 프로젝트를 제공할 수 있다는 증거이다. Clinique D diaphane는 환영받는 잘 설계된 케어 공간이 사용자와 전문가의 웰빙을 증진하고 간접적으로 긍정적인 케어 및 근무 조건으로 이어진다고 확신한다. 뛰어난 건축물과 지속 가능한 건설 세부 사항은 장기적으로 사회에 대한 진정한 투자인 많은 사람들의 웰빙을 향상시킬 것이다. 치료 공간이 반드시 기술 장비에 의해 지배될 필요는 없다. 그곳에 사는 사람들과 고향이라고 부르는 장소의 인간적인 따뜻함에서 영감을 받을 수 있다.

Architect, Designer Clinique D diaphane
Location Laval, Quebec, Canada
Building area 274.064㎡
Completion 2015. 4
Design team David Grenier, Laurent McComber
Graphic design Atelier Chinotto
Lighting design Richporter Lighting, Éclairage
General contractor Brago Construction
Client Danielle Brassard and Cynthia Migneault
Photographer Raphaël Thibodeau
'Interior Project > Healthcare' 카테고리의 다른 글
| Dental Clinic in Los Remedios (0) | 2021.08.31 |
|---|---|
| Swiss Concept Clinic (0) | 2021.08.27 |
| Care Implant Dentistry (0) | 2021.08.13 |
| Power10 Fitness (0) | 2021.08.12 |
| Green Massage (0) | 2021.07.28 |
마실와이드 | 등록번호 : 서울, 아03630 | 등록일자 : 2015년 03월 11일 | 마실와이드 | 발행ㆍ편집인 : 김명규 | 청소년보호책임자 : 최지희 | 발행소 : 서울시 마포구 월드컵로8길 45-8 1층 | 발행일자 : 매일



