
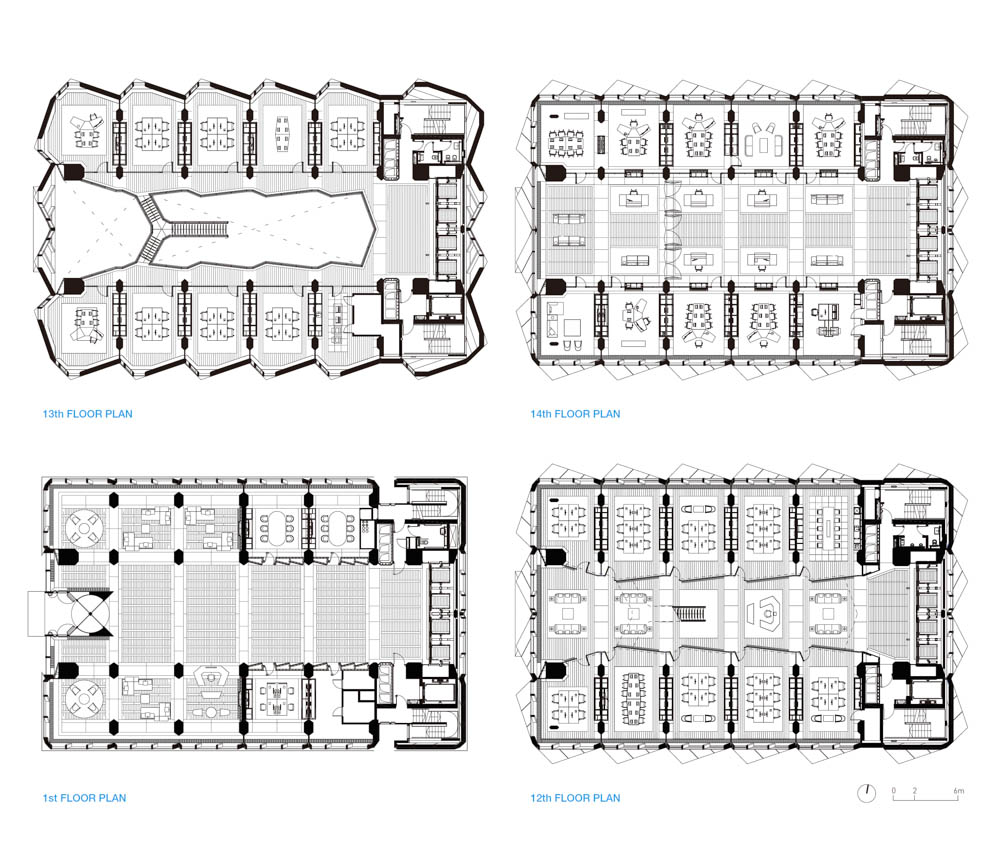
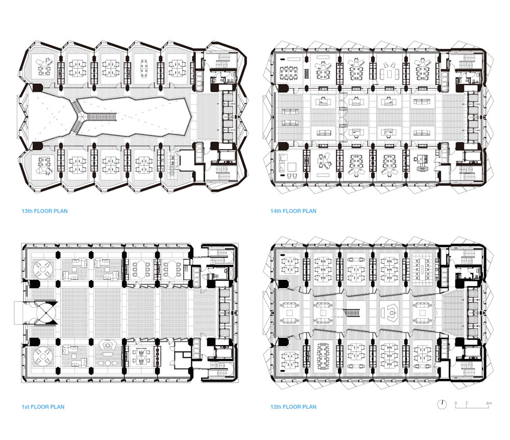
The RCC Headquarters in Ekaterinburg has officially opened. The practice’s first office building in Russia, the building reimagines the conventional cellular office to set new standards in quality, comfort and flexibility. The 15-story building’s innovative office units are enveloped in an energy-efficient enclosure, which provides a distinctive symbol for the organisation in Ekaterinburg.
RCC is one of the world’s leading producers of copper and the building’s triangulated elements draw inspiration from the crystal lattice of copper. The crown of the building integrates RCC’s new logo – a rebranding which has, in turn, been inspired by the architecture. The starting point for the office floors was to reinvent the headquarters as a ‘house for staff’ – instead of the conventional large, communal workspaces, the rooms are of a more intimate, domestic scale. The practice’s workplace consultancy group analysed the client’s operations and helped to devise the innovative modular system for these rooms. This was then developed with the in-house engineering teams to enable rapid construction and ensure ideal levels of natural daylight for concentrated work. Each two-storey module comprises a pair of offices, stacked one on top of the other – this is expressed externally through the double-storey cladding module.
The modules are arranged in rows on either side of a central hallway, which functions as a breakout space, with lounge seating and views of the city through the glazed lift shaft. At level fifteen, the space is top-lit (through the glass lanterns) to create a flexible space for company-wide gatherings and events. The design targets a BREEAM Excellent rating. Responding to Ekaterinburg’s wide temperature range between seasons – often from +30°C to -30°C – the balance between solid and glazed areas is designed as a reaction to low level winter sun, while mitigating the heat of direct sunlight during the summer. Through the glass facades overlooks the city and the recently landscaped riverbank. The green area reaches the building’s facades and it flows into a private garden for the staff. The landscaping echoes the cellular internal arrangement, with a sequence of ‘external rooms’ that provide peaceful spaces for staff to relax and eat lunch. Further facilities within the building include a video conference room and boardroom, meeting spaces and an executive dining area.

예카테린부르크에 위치한 RCC 본사가 공식적으로 문을 열었다. 건축가는 품질, 안락함, 유연성의 새로운 기준을 세우기 위해 통상적인 형태의 사무실을 재해석했다. 15층 규모의 혁신적인 사무실 유닛들은 예카테린부르크의 도시 조직에 독특한 상징을 부여하는 에너지 효율적인 외피로 둘러싸여 있다.
RCC는 세계적인 구리 생산회사이며 건축물의 삼각형 구조는 구리 결정의 격자에서 영감을 받아 만들어졌다. 건물의 상부에는 RCC의 새로운 로고가 만들어져 있다. 이는 건축물에 의해 영향을 받아 다시 브랜딩 된 결과다. 사무실 평면계획의 시작은 본사를 ‘직원들을 위한 집’으로써 재창조하는 것이었다. 각 사무실은 기존의 대형 공동 작업 공간이 아니라 좀 더 개인에게 친밀한 규모를 가지는 방법으로 계획되었다. 사무공간 컨설팅 그룹은 RCC 직원들을 분석하고 그들을 위한 혁신적인 모듈러 시스템을 계획하는 데 도움이 되었다. 그리고 사내 엔지니어링 팀과 빠른 시공이 가능하면서 업무를 위한 이상적인 수준의 자연채광을 보장할 수 있도록 계획을 구체화했다. 각 2층 규모의 모듈은 하나 위에 다른 하나가 쌓인 두 쌍의 사무실들로 구성되었고, 이는 외피 모듈을 통해 표현됐다.
모듈들은 휴식공간인 라운지와 의자, 유리로 된 승강기 통로를 통해 도시 쪽 전망을 가진 중앙 복도 양쪽에 병렬로 배치됐다. 15층에서 공간은 각종 모임과 이벤트를 위한 공간을 창조하기 위해 가장 많은 조명이 설치되었다. 디자인은 영국의 친환경 건축 인증 제도의 우수 평가를 목표로 한다. 예카테린부르크의 영상 30도에서 영하 30도를 넘나드는 기온차에 상응하여 유리창이 있는 영역과 없는 영역 사이의 균형은 여름 동안 직사광선의 열을 완화하는 반면, 겨울에는 열을 보존할 수 있도록 설계됐다. 유리 파사드를 통해서 도시와 최근 조성된 강기슭의 전망을 바라볼 수도 있다. 녹지는 건물의 정면까지 이어지고 직원을 위한 전용 정원으로 유입된다. 조경은 직원들이 휴식을 취하고 점심을 먹는 평화로운 공간들을 제공하는 일련의 외부실들의 연속을 통해 세포 같은 내부 배열을 반복한다. 추가적으로 건물에는 화상 회의실과 임원실, 회의 공간 및 임원 식당이 있다.

















Architects FOSTER + PARTNERS
Location Ekaterinburg, Russia
Site area 2,415m2
Building area 943m2
Gross floor area 18,450m2
Building scope B3, 15F
Construction period 2015 - 2021
Completion 2021
Collaborator P. M. VostokProekt
Design team Norman Foster, David Nelson, Spencer de Grey, Luke Fox, Angus Campbell, Jeremy Kim, Jonathan Parr, Mike Holland, Stefan Bench, Dimitri Chaava, Julija Cholopova, Louise Clausen, Amy Company Butler, Patrick Crocock, Elisa Fernandez Ramos, Charlotte Gallen, Raphael Giacomuzzo, Michelle Hudson, Martin Kehoe, Paul Kennedy, Alena Kereshun, Anton Khmelnitskiy, Annabel, Knightley, Andy Lister, Sarah Lister, Yuen Nam, Connie Luk, Maria Mallalieu, Luke Moloney, Aleksejus Nevemdomskis, Charlie Parford Plant, Mariia Pashenko, Stelios Psaltis, Dina Timartseva, Harry Twigg, Vincent Westbrook, Michael Woodrow
Engineer Andrew Jackson, Andrew Coward
Structural engineer Foster + Partners/P. M. VostokProekt
Mechanical engineer Foster + Partners/P. M. VostokProekt
Electrical engineer Foster + Partners/P. M. VostokProekt
Facade engineer Priedemann
Construction A1
Client RCC (Russian Copper Company)
Photographer Schueco, Oleg Kovalyuk
해당 프로젝트는 건축문화 2021년 7월호(Vol. 482)에 게재 되었습니다.
The project was published in the July, 2021 issue of the magazine(Vol. 482).
July 2021 : vol. 482
Contents: RECORDS 2021 SEOUL LIVING DESIGN FAIR : NEWS / COMPETITION / BOOKS : SKETCH BETWEEN PERSON AND ARCHITECTURE / NIKITA BATRAKOV
anc.masilwide.com
'Architecture Project > Office' 카테고리의 다른 글
| FLASH BATTERY HEADQUARTERS (0) | 2021.09.14 |
|---|---|
| LE MONDE GROUPE HEADQUARTERS (0) | 2021.09.13 |
| PLATYS (0) | 2021.09.06 |
| CARLSBERG CENTRAL OFFICE (0) | 2021.06.15 |
| STEELFORM (0) | 2021.05.21 |
마실와이드 | 등록번호 : 서울, 아03630 | 등록일자 : 2015년 03월 11일 | 마실와이드 | 발행ㆍ편집인 : 김명규 | 청소년보호책임자 : 최지희 | 발행소 : 서울시 마포구 월드컵로8길 45-8 1층 | 발행일자 : 매일



